Property
Account |
| Property ID: | 805035 | Abbreviated Legal Description: | S/2 W/2 NW SE INCL EZ |
| Geographic ID: | R13111-172-3040 | Agent Code: | |
| Type: | Real | | |
| Tax Area: | 312 - APPRAISER-Cpvl Schl Dist, outside Cpvl, improved, greater than 1 acre | Land Use Code | 11 |
| Open Space: | N | DFL | N |
| Historic Property: | N | Remodel Property: | N |
| Multi-Family Redevelopment: | N | | |
| Township: | 31 | Section: | 11 |
| Range: | R1 |
Location |
| Address: | 769 PATMORE RD COUPEVILLE, WA 98239 | Mapsco: | |
| Neighborhood: | Cycle 2 | Map ID: | 51 |
| Neighborhood CD: | 2 |
Owner |
| Name: | WILSON, ROGER A | Owner ID: | 307387 |
| Mailing Address: | ANNE P WILSON 769 PATMORE RD COUPEVILLE, WA 98239 | % Ownership: | 100.0000000000% |
| | | Exemptions: | |
Taxes and Assessment Details
Values
| (+) Improvement Homesite Value: | + | $0 | |
| (+) Improvement Non-Homesite Value: | + | $710,632 | |
| (+) Land Homesite Value: | + | $0 | |
| (+) Land Non-Homesite Value: | + | $355,000 | |
| (+) Curr Use (HS): | + | $0 | $0 |
| (+) Curr Use (NHS): | + | $0 | $0 |
| | | -------------------------- | |
| (=) Market Value: | = | $1,065,632 | |
| (–) Productivity Loss: | – | $0 | |
| | | -------------------------- | |
| (=) Subtotal: | = | $1,065,632 | |
| (+) Senior Appraised Value: | + | $0 | |
| (+) Non-Senior Appraised Value: | + | $1,065,632 | |
| | | -------------------------- | |
| (=) Total Appraised Value: | = | $1,065,632 | |
| (–) Senior Exemption Loss: | – | $0 | |
| (–) Exemption Loss: | – | $0 | |
| | | -------------------------- | |
| (=) Taxable Value: | = | $1,065,632 | |
Taxing Jurisdiction
| Owner: | WILSON, ROGER A | | |
| % Ownership: | 100.0000000000% | | |
| Total Value: | $1,065,632 | | |
| Tax Area: | 312 - APPRAISER-Cpvl Schl Dist, outside Cpvl, improved, greater than 1 acre |
| CF | Conservation Futures | 0.0316035091 | $1,065,632 | $1,065,632 | $33.68 | | |
| CEM2 | Cemetery #2 | 0.0095056933 | $1,065,632 | $1,065,632 | $10.13 | | |
| FIRE5 | Fire & Rescue Dist #5 C Whidbey GEN | 1.2008080668 | $1,065,632 | $1,065,632 | $1,279.62 | | |
| FIRE5BOND | Fire & Rescue Dist #5 C Whidbey BOND | 0.1400090713 | $1,065,632 | $1,065,632 | $149.20 | | |
| HOBOND | Hospital BOND | 0.1910887512 | $1,065,632 | $1,065,632 | $203.63 | | |
| HOGEN | Hospital GEN | 0.3902502903 | $1,065,632 | $1,065,632 | $415.86 | | |
| CE | County Current Expense | 0.3708482477 | $1,065,632 | $1,065,632 | $395.19 | | |
| CR | County Roads | 0.4584763726 | $1,065,632 | $1,065,632 | $488.57 | | |
| ISLANDEMS | Hospital GEN (EMS) | 0.5000000000 | $1,065,632 | $1,065,632 | $532.82 | | |
| LIB | Library Sno-Isle GEN | 0.3153421757 | $1,065,632 | $1,065,632 | $336.04 | | |
| LIBCAP | Library Sno-Isle BOND (Cap Fac Imp Area) | 0.0543427938 | $1,065,632 | $1,065,632 | $57.91 | | |
| POCOUP | Port of Coupeville GEN | 0.1093371703 | $1,065,632 | $1,065,632 | $116.51 | | |
| POCOUPIDD | Port of Coupeville IDD | 0.3409740022 | $1,065,632 | $1,065,632 | $363.35 | | |
| COUPSDTECH | School 204 CP (TECH) | 0.7545480007 | $1,065,632 | $1,065,632 | $804.07 | | |
| SCH204MO | School 204 Enrichment | 0.6716186034 | $1,065,632 | $1,065,632 | $715.70 | | |
| ST | State School | 1.3035497053 | $1,065,632 | $1,065,632 | $1,389.10 | | |
| ST2 | State School Part 2 | 0.8169543533 | $1,065,632 | $1,065,632 | $870.57 | | |
| | Total Tax Rate: | 7.6592568070 | | | | | |
| | | | | Taxes w/Current Exemptions: | $8,161.95 | | |
| | | | | Taxes w/o Exemptions: | $8,161.95 | | |
Improvement / Building
| Improvement #1: | RESIDENTIAL | State Code: | Y | 3715.0 sqft | Value: | $710,632 |
| Bathrooms: | 5 | Bedrooms: | 4 | | Ceiling: | DRY WALL SPRAYED | Cooling: | HEAT PUMP/CONV/V | | Exterior Wall/Cover: | CEMENT FIBER | Floor Covering: | HARDWOOD/CARP 60-40 | | Floor Structure: | WOOD W/SUBFLOOR | Foundation: | CONCRETE | | Interior Finish: | DRYWALL PAINT | Plumbing Fixture Cnt: | 24 | | Roof Slope: | 6" IN 12" | Roof Structure/Cover: | CJ ASPHALT |
|
| | Type | Description | Class CD | Sub Class CD | Year Built | Area |
| | BAS | BASE/MAIN FLOOR | 4 | 0 | 2010 | 1725.0 |
| | AGR | ATTACHED GARAGE | 4 | 0 | 2010 | 420.0 |
| | UPS | UPPER STORY | 4 | 0 | 2010 | 1150.0 |
| | OWP | OPEN WOOD PORCH W/STEPS | 4 | 0 | 2010 | 54.0 |
| | OWP | OPEN WOOD PORCH W/STEPS | 4 | 0 | 2010 | 54.0 |
| | OWC | OPEN WOOD PORCH W/STEPS/ROOF/C | 4 | 0 | 2010 | 384.0 |
| | OWC | OPEN WOOD PORCH W/STEPS/ROOF/C | 4 | 0 | 2010 | 160.0 |
| | BIG | BUILT IN GARAGE | 4 | 0 | 2010 | 840.0 |
| | UPS | UPPER STORY | 4 | 0 | 2010 | 840.0 |
| | OWP | OPEN WOOD PORCH W/STEPS | 4 | 0 | 2010 | 224.0 |
| | OP4 | OPEN PORCH W/CEILING-ROOF | 4 | 0 | 2010 | 80.0 |
| | CPD | OPEN CARPORT DIRT FLOOR | 4 | 0 | 2010 | 300.0 |
| | UTY | STORAGE/UTILITY | 4 | 0 | 2010 | 169.0 |
| | oSTA | STABLE | 2 | 0 | 2024 | 364.0 |
| | UTY | STORAGE/UTILITY | 4 | 0 | 2010 | 220.0 |
Sketch
| No sketches available for this property. |
Property Image
Land
| 1 | 91 | UNDEVELOPED LAND-METES AND BOUNDS | 9.0000 | 392040.00 | 0.00 | 0.00 | 1.00 | $135,000 | $0 |
| 2 | HS | HOMESITE | 1.0000 | 43560.00 | 0.00 | 0.00 | 1.00 | $220,000 | $0 |
Roll Value History
| 2026 | N/A | N/A | N/A | N/A | N/A |
| 2025 | $710,632 | $355,000 | $0 | $1,065,632 | $1,065,632 |
| 2024 | $680,849 | $310,000 | $0 | $990,849 | $990,849 |
| 2023 | $688,745 | $290,000 | $0 | $978,745 | $978,745 |
| 2022 | $630,790 | $260,000 | $0 | $890,790 | $890,790 |
| 2021 | $554,737 | $225,000 | $0 | $779,737 | $779,737 |
| 2020 | $538,149 | $215,000 | $0 | $753,149 | $753,149 |
| 2019 | $427,402 | $250,000 | $0 | $677,402 | $677,402 |
| 2018 | $428,569 | $220,000 | $0 | $648,569 | $648,569 |
| 2017 | $381,496 | $200,000 | $0 | $581,496 | $581,496 |
| 2016 | $385,697 | $170,000 | $0 | $555,697 | $555,697 |
| 2015 | $389,901 | $250,000 | $0 | $639,901 | $639,901 |
| 2014 | $394,102 | $250,000 | $0 | $644,102 | $644,102 |
| 2013 | $398,303 | $218,700 | $0 | $617,003 | $617,003 |
| 2012 | $402,506 | $218,700 | $0 | $621,206 | $621,206 |
| 2011 | $316,561 | $243,000 | $0 | $559,561 | $559,561 |
| 2010 | $273,792 | $243,000 | $0 | $516,792 | $516,792 |
| 2009 | $120,923 | $250,000 | $0 | $370,923 | $370,923 |
| 2008 | $104,270 | $268,123 | $0 | $372,393 | $372,393 |
| 2007 | $122,153 | $240,000 | $0 | $362,153 | $362,153 |
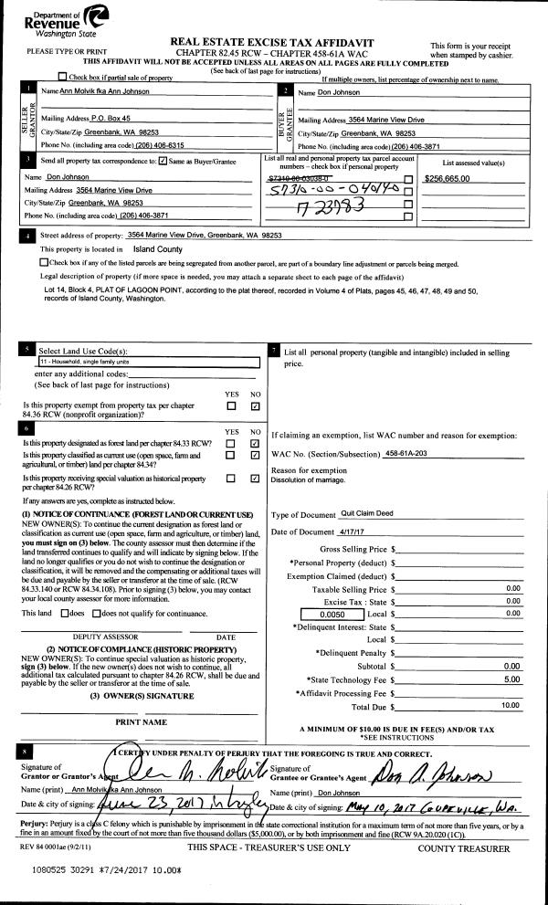
Deed and Sales History
| 1 | 01/27/2023 | QCD | Quit Claim Deed | PHILBRICK, ARLENE B | WILSON, ROGER A | | | $0.00 | 55715 | 4556165 |
| 2 | 05/30/2017 | WD | Warranty Deed | JOHNSON, SCOTT | PHILBRICK, ARLENE B | | | $632,000.00 | 29534 | 4423484 |
| 3 | 06/29/2005 | WD | Warranty Deed | ZYLSTRA, TR, TED D | JOHNSON, SCOTT | | | $148,000.00 | 53129 | 4139367 |
| 4 | 11/26/2003 | SEG | DNU - Segregation | Unknown | ZYLSTRA, TR, TED D | | | $0.00 | 70086 | 4042682 |
Payout Agreement
| No payout information available.. |