Property
Account |
| Property ID: | 805056 | Abbreviated Legal Description: | LOT 2 SP 86-99.23118.188-2350 V3 SP P495 AF#4061307 |
| Geographic ID: | R23118-206-2560 | Agent Code: | |
| Type: | Real | | |
| Tax Area: | 312 - APPRAISER-Cpvl Schl Dist, outside Cpvl, improved, greater than 1 acre | Land Use Code | 11 |
| Open Space: | N | DFL | N |
| Historic Property: | N | Remodel Property: | N |
| Multi-Family Redevelopment: | N | | |
| Township: | 31 | Section: | 18 |
| Range: | R2 |
Location |
| Address: | 1044 HAYEK'S WAY COUPEVILLE, WA 98239 | Mapsco: | |
| Neighborhood: | Cycle 2 | Map ID: | 489 |
| Neighborhood CD: | 2 |
Owner |
| Name: | REED, STEVEN G | Owner ID: | 283404 |
| Mailing Address: | DANA ALLEN REED 1044 HAYEKS WAY COUPEVILLE, WA 98239 | % Ownership: | 100.0000000000% |
| | | Exemptions: | |
Taxes and Assessment Details
Values
| (+) Improvement Homesite Value: | + | $0 | |
| (+) Improvement Non-Homesite Value: | + | $519,310 | |
| (+) Land Homesite Value: | + | $0 | |
| (+) Land Non-Homesite Value: | + | $340,148 | |
| (+) Curr Use (HS): | + | $0 | $0 |
| (+) Curr Use (NHS): | + | $0 | $0 |
| | | -------------------------- | |
| (=) Market Value: | = | $859,458 | |
| (–) Productivity Loss: | – | $0 | |
| | | -------------------------- | |
| (=) Subtotal: | = | $859,458 | |
| (+) Senior Appraised Value: | + | $0 | |
| (+) Non-Senior Appraised Value: | + | $859,458 | |
| | | -------------------------- | |
| (=) Total Appraised Value: | = | $859,458 | |
| (–) Senior Exemption Loss: | – | $0 | |
| (–) Exemption Loss: | – | $0 | |
| | | -------------------------- | |
| (=) Taxable Value: | = | $859,458 | |
Taxing Jurisdiction
| Owner: | REED, STEVEN G | | |
| % Ownership: | 100.0000000000% | | |
| Total Value: | $859,458 | | |
| Tax Area: | 312 - APPRAISER-Cpvl Schl Dist, outside Cpvl, improved, greater than 1 acre |
| CF | Conservation Futures | 0.0316035091 | $859,458 | $859,458 | $27.16 | | |
| CEM2 | Cemetery #2 | 0.0095056933 | $859,458 | $859,458 | $8.17 | | |
| FIRE5 | Fire & Rescue Dist #5 C Whidbey GEN | 1.2008080668 | $859,458 | $859,458 | $1,032.04 | | |
| FIRE5BOND | Fire & Rescue Dist #5 C Whidbey BOND | 0.1400090713 | $859,458 | $859,458 | $120.33 | | |
| HOBOND | Hospital BOND | 0.1910887512 | $859,458 | $859,458 | $164.23 | | |
| HOGEN | Hospital GEN | 0.3902502903 | $859,458 | $859,458 | $335.40 | | |
| CE | County Current Expense | 0.3708482477 | $859,458 | $859,458 | $318.73 | | |
| CR | County Roads | 0.4584763726 | $859,458 | $859,458 | $394.04 | | |
| ISLANDEMS | Hospital GEN (EMS) | 0.5000000000 | $859,458 | $859,458 | $429.73 | | |
| LIB | Library Sno-Isle GEN | 0.3153421757 | $859,458 | $859,458 | $271.02 | | |
| LIBCAP | Library Sno-Isle BOND (Cap Fac Imp Area) | 0.0543427938 | $859,458 | $859,458 | $46.71 | | |
| POCOUP | Port of Coupeville GEN | 0.1093371703 | $859,458 | $859,458 | $93.97 | | |
| POCOUPIDD | Port of Coupeville IDD | 0.3409740022 | $859,458 | $859,458 | $293.05 | | |
| COUPSDTECH | School 204 CP (TECH) | 0.7545480007 | $859,458 | $859,458 | $648.50 | | |
| SCH204MO | School 204 Enrichment | 0.6716186034 | $859,458 | $859,458 | $577.23 | | |
| ST | State School | 1.3035497053 | $859,458 | $859,458 | $1,120.35 | | |
| ST2 | State School Part 2 | 0.8169543533 | $859,458 | $859,458 | $702.14 | | |
| | Total Tax Rate: | 7.6592568070 | | | | | |
| | | | | Taxes w/Current Exemptions: | $6,582.80 | | |
| | | | | Taxes w/o Exemptions: | $6,582.80 | | |
Improvement / Building
| Improvement #1: | RESIDENTIAL | State Code: | Y | 2165.8 sqft | Value: | $519,310 |
| Bathrooms: | 2 | Bedrooms: | 3 | | Ceiling: | DRYWALL PAINTED | Exterior Wall/Cover: | CEMENT FIBER | | Floor Covering: | VINYL TILE | Floor Structure: | WOOD W/SUBFLOOR | | Foundation: | CONCRETE | Heating: | FHA GAS | | Interior Finish: | DRYWALL PAINT | Plumbing Fixture Cnt: | 12 | | Roof Slope: | 5" IN 12" | Roof Structure/Cover: | CJ ASPHALT |
|
| | Type | Description | Class CD | Sub Class CD | Year Built | Area |
| | BAS | BASE/MAIN FLOOR | 3 | 0 | 2020 | 2165.8 |
| | OP4 | OPEN PORCH W/CEILING-ROOF | 3 | 0 | 2020 | 189.0 |
| | AGR | ATTACHED GARAGE | 3 | 0 | 2020 | 696.0 |
| | OWP | OPEN WOOD PORCH W/STEPS | 3 | 0 | 2020 | 286.0 |
| | DGR | DETACHED GARAGE | 3 | 0 | 2020 | 936.0 |
| | oPOL | POLE BARN | 3 | 0 | 2019 | 2320.0 |
Sketch
| No sketches available for this property. |
Property Image
Land
| 1 | HS | HOMESITE | 1.0000 | 43560.00 | 0.00 | 0.00 | 1.00 | $220,000 | $0 |
| 2 | 91 | UNDEVELOPED LAND-METES AND BOUNDS | 4.0300 | 175546.80 | 0.00 | 0.00 | 1.00 | $120,148 | $0 |
Roll Value History
| 2026 | N/A | N/A | N/A | N/A | N/A |
| 2025 | $519,310 | $340,148 | $0 | $859,458 | $859,458 |
| 2024 | $493,526 | $290,000 | $0 | $783,526 | $783,526 |
| 2023 | $499,315 | $280,000 | $0 | $779,315 | $779,315 |
| 2022 | $457,401 | $250,000 | $0 | $707,401 | $707,401 |
| 2021 | $402,276 | $170,000 | $0 | $572,276 | $572,276 |
| 2020 | $391,941 | $160,000 | $0 | $551,941 | $551,941 |
| 2019 | $235,747 | $230,000 | $0 | $465,747 | $465,747 |
| 2018 | $250,799 | $200,000 | $0 | $450,799 | $450,799 |
| 2017 | $252,146 | $200,000 | $0 | $452,146 | $452,146 |
| 2016 | $254,916 | $140,000 | $0 | $394,916 | $394,916 |
| 2015 | $254,461 | $122,229 | $0 | $376,690 | $376,690 |
| 2014 | $257,258 | $122,229 | $0 | $379,487 | $379,487 |
| 2013 | $260,055 | $122,229 | $0 | $382,284 | $382,284 |
| 2012 | $262,850 | $122,229 | $0 | $385,079 | $385,079 |
| 2011 | $265,647 | $135,810 | $0 | $401,457 | $401,457 |
| 2010 | $272,751 | $135,810 | $0 | $408,561 | $408,561 |
| 2009 | $284,052 | $150,900 | $0 | $434,952 | $434,952 |
| 2008 | $285,183 | $167,489 | $0 | $452,672 | $452,672 |
| 2007 | $120,187 | $150,900 | $0 | $271,087 | $271,087 |
Deed and Sales History
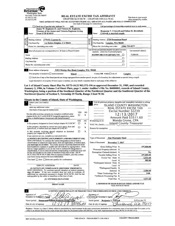
| 1 | 12/19/2017 | WD | Warranty Deed | EBERHARD, THOMAS F | REED, STEVEN G | | | $435,000.00 | 32418 | 4436433 |
| 2 | 06/08/2015 | WD | Warranty Deed | PARKER, H ALAN | EBERHARD, THOMAS F | | | $375,000.00 | 20029 | 4380290 |
| 3 | 11/18/2008 | EZ | Easement | PARKER, H ALAN | PARKER, H ALAN | | | $1,590.00 | 90642 | 4247247 |
| 4 | 06/25/2003 | WD | Warranty Deed | BECKER, ROBERT F/LORRAINE C | PARKER, H ALAN | | | $65,000.00 | 32919 | 4065952 |
| 5 | 01/01/1900 | OTHER | Other - Misc. Documents | Unknown | BECKER, ROBERT F/LORRAINE C | | | $0.00 | 0 | 0 |
Payout Agreement
| No payout information available.. |