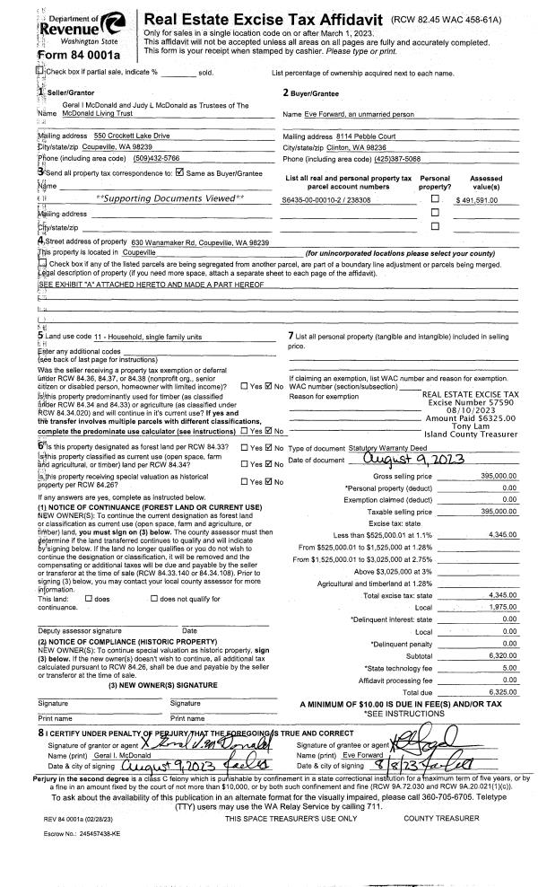
Property
Account |
| Property ID: | 805058 | Abbreviated Legal Description: | LOT 1 SP 318-02.13302.033-2980 V3 SP P496-7 AF#4061830 |
| Geographic ID: | R13302-032-2800 | Agent Code: | |
| Type: | Real | | |
| Tax Area: | 112 - APPRAISER-OH Schl Dist, outside OH, improved, greater than 1 acre | Land Use Code | 11 |
| Open Space: | N | DFL | N |
| Historic Property: | N | Remodel Property: | N |
| Multi-Family Redevelopment: | N | | |
| Township: | 33 | Section: | 02 |
| Range: | R1 |
Location |
| Address: | 4409 TERRACE DR OAK HARBOR, WA 98277 | Mapsco: | |
| Neighborhood: | Cycle 6 | Map ID: | 194 |
| Neighborhood CD: | 6 |
Owner |
| Name: | TAITANO, MARK A | Owner ID: | 203258 |
| Mailing Address: | CHIHIRO TAITANO 4409 TERRACE DR OAK HARBOR, WA 98277 | % Ownership: | 100.0000000000% |
| | | Exemptions: | |
Taxes and Assessment Details
Values
| (+) Improvement Homesite Value: | + | $0 | |
| (+) Improvement Non-Homesite Value: | + | $71,275 | |
| (+) Land Homesite Value: | + | $0 | |
| (+) Land Non-Homesite Value: | + | $300,000 | |
| (+) Curr Use (HS): | + | $0 | $0 |
| (+) Curr Use (NHS): | + | $0 | $0 |
| | | -------------------------- | |
| (=) Market Value: | = | $371,275 | |
| (–) Productivity Loss: | – | $0 | |
| | | -------------------------- | |
| (=) Subtotal: | = | $371,275 | |
| (+) Senior Appraised Value: | + | $0 | |
| (+) Non-Senior Appraised Value: | + | $371,275 | |
| | | -------------------------- | |
| (=) Total Appraised Value: | = | $371,275 | |
| (–) Senior Exemption Loss: | – | $0 | |
| (–) Exemption Loss: | – | $0 | |
| | | -------------------------- | |
| (=) Taxable Value: | = | $371,275 | |
Taxing Jurisdiction
| Owner: | TAITANO, MARK A | | |
| % Ownership: | 100.0000000000% | | |
| Total Value: | $371,275 | | |
| Tax Area: | 112 - APPRAISER-OH Schl Dist, outside OH, improved, greater than 1 acre |
| CF | Conservation Futures | 0.0316035091 | $371,275 | $371,275 | $11.73 | | |
| CEM1 | Cemetery #1 | 0.0040320932 | $371,275 | $371,275 | $1.50 | | |
| FIRE2 | Fire & Rescue Dist #2 N Whidbey GEN | 0.5475949600 | $371,275 | $371,275 | $203.31 | | |
| HOBOND | Hospital BOND | 0.1910887512 | $371,275 | $371,275 | $70.95 | | |
| HOGEN | Hospital GEN | 0.3902502903 | $371,275 | $371,275 | $144.89 | | |
| CE | County Current Expense | 0.3708482477 | $371,275 | $371,275 | $137.69 | | |
| CR | County Roads | 0.4584763726 | $371,275 | $371,275 | $170.22 | | |
| ISLANDEMS | Hospital GEN (EMS) | 0.5000000000 | $371,275 | $371,275 | $185.64 | | |
| LIB | Library Sno-Isle GEN | 0.3153421757 | $371,275 | $371,275 | $117.08 | | |
| NWHIDPRMT | P & R N Whidbey GEN | 0.2004466701 | $371,275 | $371,275 | $74.42 | | |
| SCH201MO | School 201 Enrichment | 1.8559231640 | $371,275 | $371,275 | $689.06 | | |
| ST | State School | 1.3035497053 | $371,275 | $371,275 | $483.98 | | |
| ST2 | State School Part 2 | 0.8169543533 | $371,275 | $371,275 | $303.31 | | |
| | Total Tax Rate: | 6.9861102925 | | | | | |
| | | | | Taxes w/Current Exemptions: | $2,593.78 | | |
| | | | | Taxes w/o Exemptions: | $2,593.78 | | |
Improvement / Building
| Improvement #1: | RESIDENTIAL | State Code: | Y | 1406.0 sqft | Value: | $71,275 |
| Bathrooms: | 0 | Bedrooms: | 0 | | Ceiling: | PLASTER PAINTED | Cooling: | EVAP NO DUCT | | Exterior Wall/Cover: | VINYL | Floor Covering: | CARPET 100% | | Floor Structure: | SLAB ON GRADE | Foundation: | SLAB | | Heating: | FHA ELECTRIC | Interior Finish: | PLASTER | | Plumbing Fixture Cnt: | 1 | Roof Slope: | FLAT | | Roof Structure/Cover: | CJ ALUMINIUM HEAVY |   |   |
|
| | Type | Description | Class CD | Sub Class CD | Year Built | Area |
| | BAS | BASE/MAIN FLOOR | 4 | 0 | 1984 | 1406.0 |
| | OWP | OPEN WOOD PORCH W/STEPS | 4 | 0 | 1984 | 220.6 |
| | OWP | OPEN WOOD PORCH W/STEPS | 4 | 0 | 1984 | 36.0 |
| | DGR | DETACHED GARAGE | 4 | 0 | 1984 | 480.0 |
Sketch
Property Image
Land
| 1 | 32 | AC (03.01-09.99) | 5.6500 | 0.00 | 0.00 | 0.00 | 1.00 | $300,000 | $0 |
Roll Value History
| 2026 | N/A | N/A | N/A | N/A | N/A |
| 2025 | $71,275 | $300,000 | $0 | $371,275 | $371,275 |
| 2024 | $74,670 | $280,000 | $0 | $354,670 | $354,670 |
| 2023 | $67,878 | $270,000 | $0 | $337,878 | $337,878 |
| 2022 | $56,123 | $240,000 | $0 | $296,123 | $296,123 |
| 2021 | $51,851 | $175,000 | $0 | $226,851 | $226,851 |
| 2020 | $52,314 | $140,000 | $0 | $192,314 | $192,314 |
| 2019 | $42,760 | $200,000 | $0 | $242,760 | $242,760 |
| 2018 | $44,314 | $175,000 | $0 | $219,314 | $219,314 |
| 2017 | $46,648 | $140,000 | $0 | $186,648 | $186,648 |
| 2016 | $27,288 | $140,000 | $0 | $167,288 | $167,288 |
| 2015 | $28,528 | $120,000 | $0 | $148,528 | $148,528 |
| 2014 | $29,768 | $127,125 | $0 | $156,893 | $156,893 |
| 2013 | $31,629 | $127,125 | $0 | $158,754 | $158,754 |
| 2012 | $32,869 | $127,125 | $0 | $159,994 | $159,994 |
| 2011 | $34,108 | $141,250 | $0 | $175,358 | $175,358 |
| 2010 | $44,518 | $141,250 | $0 | $185,768 | $185,768 |
| 2009 | $46,833 | $141,250 | $0 | $188,083 | $188,083 |
| 2008 | $48,402 | $166,675 | $0 | $215,077 | $215,077 |
| 2007 | $50,145 | $166,675 | $0 | $216,820 | $216,820 |
Deed and Sales History
| 1 | 06/18/2010 | WD | Warranty Deed | PANKASKIE, ROBERT A | TAITANO, MARK A | | | $185,000.00 | 1541 | 4276069 |
| 2 | 01/01/1900 | OTHER | Other - Misc. Documents | Unknown | PANKASKIE, ROBERT A | | | $0.00 | 0 | 0 |
Payout Agreement
| No payout information available.. |