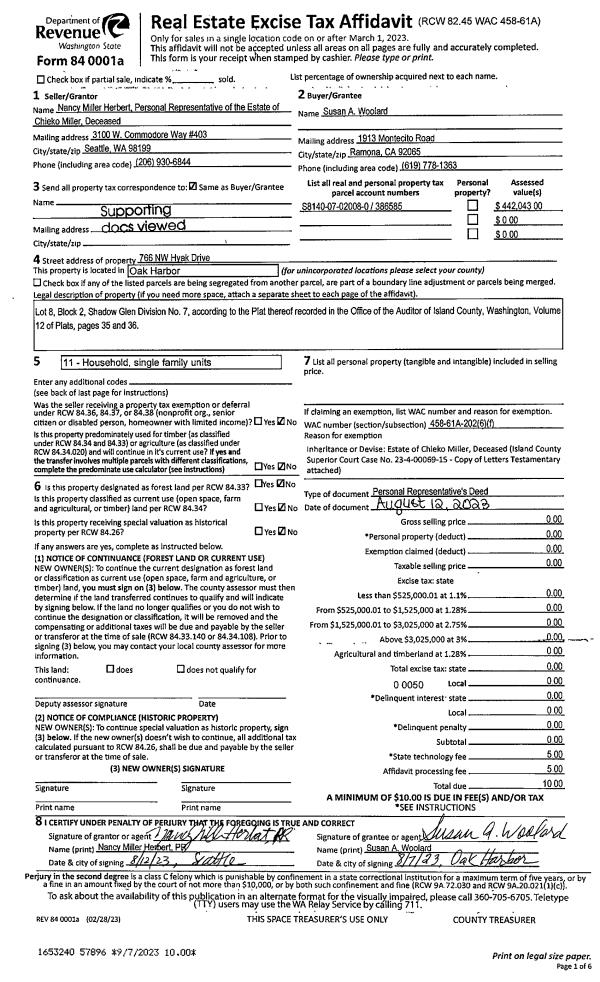
Property
Account |
| Property ID: | 805062 | Abbreviated Legal Description: | LOT 1 SP 27-98.23225.102-2330 & .038-2330 V4 SP P1-2 AF#4065742 REVISED V4 SP P6-7 AF#4072284 |
| Geographic ID: | R23225-023-2340 | Agent Code: | |
| Type: | Real | | |
| Tax Area: | 512 - APPRAISER-Stan/Cam Schl Dist, improved, greater than 1 acre | Land Use Code | 11 |
| Open Space: | N | DFL | N |
| Historic Property: | N | Remodel Property: | N |
| Multi-Family Redevelopment: | N | | |
| Township: | 32 | Section: | 25 |
| Range: | R2 |
Location |
| Address: | 420 ISLANDCREST DR CAMANO ISLAND, WA 98282 | Mapsco: | |
| Neighborhood: | North Camano | Map ID: | 562 |
| Neighborhood CD: | 06-C |
Owner |
| Name: | HOON, TIMOTHY J | Owner ID: | 277494 |
| Mailing Address: | AKIKIO K HOON 420 ISLANDCREST DR CAMANO ISLAND, WA 98282 | % Ownership: | 100.0000000000% |
| | | Exemptions: | |
Taxes and Assessment Details
Values
| (+) Improvement Homesite Value: | + | $0 | |
| (+) Improvement Non-Homesite Value: | + | $484,410 | |
| (+) Land Homesite Value: | + | $0 | |
| (+) Land Non-Homesite Value: | + | $330,000 | |
| (+) Curr Use (HS): | + | $0 | $0 |
| (+) Curr Use (NHS): | + | $0 | $0 |
| | | -------------------------- | |
| (=) Market Value: | = | $814,410 | |
| (–) Productivity Loss: | – | $0 | |
| | | -------------------------- | |
| (=) Subtotal: | = | $814,410 | |
| (+) Senior Appraised Value: | + | $0 | |
| (+) Non-Senior Appraised Value: | + | $814,410 | |
| | | -------------------------- | |
| (=) Total Appraised Value: | = | $814,410 | |
| (–) Senior Exemption Loss: | – | $0 | |
| (–) Exemption Loss: | – | $0 | |
| | | -------------------------- | |
| (=) Taxable Value: | = | $814,410 | |
Taxing Jurisdiction
| Owner: | HOON, TIMOTHY J | | |
| % Ownership: | 100.0000000000% | | |
| Total Value: | $814,410 | | |
| Tax Area: | 512 - APPRAISER-Stan/Cam Schl Dist, improved, greater than 1 acre |
| CF | Conservation Futures | 0.0316035091 | $814,410 | $814,410 | $25.74 | | |
| EMS1 | Fire & Rescue Dist #1 Camano GEN (EMS) | 0.3677864386 | $814,410 | $814,410 | $299.53 | | |
| FIRE1 | Fire & Rescue Dist #1 Camano GEN | 1.2502910536 | $814,410 | $814,410 | $1,018.25 | | |
| FIRE1BOND | Fire & Rescue Dist #1 Camano BOND | 0.1570001679 | $814,410 | $814,410 | $127.86 | | |
| CE | County Current Expense | 0.3708482477 | $814,410 | $814,410 | $302.02 | | |
| CR | County Roads | 0.4584763726 | $814,410 | $814,410 | $373.39 | | |
| LCIB | Library Sno-Isle BOND (Camano Island) | 0.0396325772 | $814,410 | $814,410 | $32.28 | | |
| LIB | Library Sno-Isle GEN | 0.3153421757 | $814,410 | $814,410 | $256.82 | | |
| SCH205_401 | School 205-401 Enrichment | 1.2698420524 | $814,410 | $814,410 | $1,034.17 | | |
| SCH205BOND | School 205-401 BOND | 0.9396497583 | $814,410 | $814,410 | $765.26 | | |
| ST | State School | 1.3035497053 | $814,410 | $814,410 | $1,061.62 | | |
| ST2 | State School Part 2 | 0.8169543533 | $814,410 | $814,410 | $665.34 | | |
| | Total Tax Rate: | 7.3209764117 | | | | | |
| | | | | Taxes w/Current Exemptions: | $5,962.28 | | |
| | | | | Taxes w/o Exemptions: | $5,962.28 | | |
Improvement / Building
| Improvement #1: | RESIDENTIAL | State Code: | Y | 2550.5 sqft | Value: | $484,410 |
| Bathrooms: | 3 | Bedrooms: | 4 | | Ceiling: | DRYWALL PAINTED | Cooling: | HEAT PUMP/CONV/V | | Exterior Wall/Cover: | CEMENT FIBER | Floor Covering: | HARDWOOD/CARP 20-80 | | Floor Structure: | WOOD W/SUBFLOOR | Foundation: | CONCRETE | | Interior Finish: | DRYWALL PAINT | Plumbing Fixture Cnt: | 18 | | Roof Slope: | 5" IN 12" | Roof Structure/Cover: | CJ ASPHALT |
|
| | Type | Description | Class CD | Sub Class CD | Year Built | Area |
| | BAS | BASE/MAIN FLOOR | 4 | 0 | 2005 | 1520.0 |
| | UTY | STORAGE/UTILITY | 4 | 0 | 2005 | 192.0 |
| | OP1 | OPEN PORCH SLAB | 4 | 0 | 2005 | 266.0 |
| | BGR | BASEMENT GARAGE | 4 | 0 | 2005 | 489.5 |
| | OWC | OPEN WOOD PORCH W/STEPS/ROOF/C | 4 | 0 | 2005 | 48.0 |
| | OWC | OPEN WOOD PORCH W/STEPS/ROOF/C | 4 | 0 | 2005 | 304.0 |
| | DWN | DOWNSTAIRS LIVING AREA | 4 | 0 | 2005 | 1030.5 |
Sketch
Property Image
Land
| 1 | 32 | AC (03.01-09.99) | 4.5000 | 0.00 | 0.00 | 0.00 | 1.00 | $330,000 | $0 |
Roll Value History
| 2026 | N/A | N/A | N/A | N/A | N/A |
| 2025 | $484,410 | $330,000 | $0 | $814,410 | $814,410 |
| 2024 | $489,898 | $340,000 | $0 | $829,898 | $829,898 |
| 2023 | $494,016 | $320,000 | $0 | $814,016 | $814,016 |
| 2022 | $428,702 | $300,000 | $0 | $728,702 | $728,702 |
| 2021 | $377,086 | $190,000 | $0 | $567,086 | $567,086 |
| 2020 | $366,585 | $190,000 | $0 | $556,585 | $556,585 |
| 2019 | $269,439 | $220,000 | $0 | $489,439 | $489,439 |
| 2018 | $270,195 | $190,000 | $0 | $460,195 | $460,195 |
| 2017 | $258,123 | $170,000 | $0 | $428,123 | $428,123 |
| 2016 | $246,265 | $135,000 | $0 | $381,265 | $381,265 |
| 2015 | $249,064 | $112,500 | $0 | $361,564 | $361,564 |
| 2014 | $251,862 | $112,500 | $0 | $364,362 | $364,362 |
| 2013 | $254,659 | $90,000 | $0 | $344,659 | $344,659 |
| 2012 | $257,459 | $90,000 | $0 | $347,459 | $347,459 |
| 2011 | $260,257 | $112,500 | $0 | $372,757 | $372,757 |
| 2010 | $327,218 | $112,500 | $0 | $439,718 | $439,718 |
| 2009 | $337,489 | $150,750 | $0 | $488,239 | $488,239 |
| 2008 | $341,242 | $157,500 | $0 | $498,742 | $498,742 |
| 2007 | $344,973 | $157,500 | $0 | $502,473 | $502,473 |
Deed and Sales History
| 1 | 11/09/2016 | WD | Warranty Deed | PALMQUIST, MATTHEW S | HOON, TIMOTHY J | | | $440,000.00 | 26902 | 441432 |
| 2 | 06/19/2014 | WD | Warranty Deed | THOMAS, VINCENT S | PALMQUIST, MATTHEW S | | | $360,000.00 | 15773 | 4361416 |
| 3 | 12/22/2004 | WD | Warranty Deed | KIMBALL, THOMAS C | THOMAS, VINCENT S | | | $95,000.00 | 50013 | 4122292 |
Payout Agreement
| No payout information available.. |