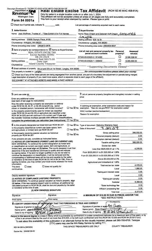
Property
Account |
| Property ID: | 805088 | Abbreviated Legal Description: | N/2 NW NW EX CO RD ALG ELN |
| Geographic ID: | R13216-495-0670 | Agent Code: | |
| Type: | Real | | |
| Tax Area: | 112 - APPRAISER-OH Schl Dist, outside OH, improved, greater than 1 acre | Land Use Code | 94 |
| Open Space: | Y | DFL | N |
| Historic Property: | N | Remodel Property: | N |
| Multi-Family Redevelopment: | N | | |
| Township: | 32 | Section: | 16 |
| Range: | R1 |
Location |
| Address: | 1587 BOON RD OAK HARBOR, WA 98277 | Mapsco: | |
| Neighborhood: | Cycle 1 | Map ID: | 130 |
| Neighborhood CD: | 1 |
Owner |
| Name: | GORVEATT, GEORGE | Owner ID: | 286838 |
| Mailing Address: | JULIE GORVEATT PO BOX 1408 OAK HARBOR, WA 98277 | % Ownership: | 100.0000000000% |
| | | Exemptions: | |
Taxes and Assessment Details
Values
| (+) Improvement Homesite Value: | + | $0 | |
| (+) Improvement Non-Homesite Value: | + | $36,100 | |
| (+) Land Homesite Value: | + | $0 | |
| (+) Land Non-Homesite Value: | + | $0 | |
| (+) Curr Use (HS): | + | $0 | $0 |
| (+) Curr Use (NHS): | + | $280,000 | $224,000 |
| | | -------------------------- | |
| (=) Market Value: | = | $316,100 | |
| (–) Productivity Loss: | – | $56,000 | |
| | | -------------------------- | |
| (=) Subtotal: | = | $260,100 | |
| (+) Senior Appraised Value: | + | $0 | |
| (+) Non-Senior Appraised Value: | + | $260,100 | |
| | | -------------------------- | |
| (=) Total Appraised Value: | = | $260,100 | |
| (–) Senior Exemption Loss: | – | $0 | |
| (–) Exemption Loss: | – | $0 | |
| | | -------------------------- | |
| (=) Taxable Value: | = | $260,100 | |
Taxing Jurisdiction
| Owner: | GORVEATT, GEORGE | | |
| % Ownership: | 100.0000000000% | | |
| Total Value: | $316,100 | | |
| Tax Area: | 112 - APPRAISER-OH Schl Dist, outside OH, improved, greater than 1 acre |
| CF | Conservation Futures | 0.0316035091 | $260,100 | $260,100 | $8.22 | | |
| CEM1 | Cemetery #1 | 0.0040320932 | $260,100 | $260,100 | $1.05 | | |
| FIRE2 | Fire & Rescue Dist #2 N Whidbey GEN | 0.5475949600 | $260,100 | $260,100 | $142.43 | | |
| HOBOND | Hospital BOND | 0.1910887512 | $260,100 | $260,100 | $49.70 | | |
| HOGEN | Hospital GEN | 0.3902502903 | $260,100 | $260,100 | $101.50 | | |
| CE | County Current Expense | 0.3708482477 | $260,100 | $260,100 | $96.46 | | |
| CR | County Roads | 0.4584763726 | $260,100 | $260,100 | $119.25 | | |
| ISLANDEMS | Hospital GEN (EMS) | 0.5000000000 | $260,100 | $260,100 | $130.05 | | |
| LIB | Library Sno-Isle GEN | 0.3153421757 | $260,100 | $260,100 | $82.02 | | |
| NWHIDPRMT | P & R N Whidbey GEN | 0.2004466701 | $260,100 | $260,100 | $52.14 | | |
| SCH201MO | School 201 Enrichment | 1.8559231640 | $260,100 | $260,100 | $482.73 | | |
| ST | State School | 1.3035497053 | $260,100 | $260,100 | $339.05 | | |
| ST2 | State School Part 2 | 0.8169543533 | $260,100 | $260,100 | $212.49 | | |
| | Total Tax Rate: | 6.9861102925 | | | | | |
| | | | | Taxes w/Current Exemptions: | $1,817.09 | | |
| | | | | Taxes w/o Exemptions: | $1,817.09 | | |
Improvement / Building
| Improvement #1: | RESIDENTIAL | State Code: | Y | 600.0 sqft | Value: | $36,100 |
| | Type | Description | Class CD | Sub Class CD | Year Built | Area |
| | DGR | DETACHED GARAGE | 1 | 0 | 2009 | 1080.0 |
| | OCP | OPEN CARPORT | 1 | 0 | 2009 | 360.0 |
| | LOF | LOFT | 1 | 0 | 2009 | 600.0 |
Sketch
Property Image
Land
| 1 | 35 | AC (10.00-30.99) | 20.0000 | 871200.00 | 0.00 | 0.00 | 1.00 | $280,000 | $224,000 |
Roll Value History
| 2026 | N/A | N/A | N/A | N/A | N/A |
| 2025 | $36,100 | $280,000 | $224,000 | $260,100 | $260,100 |
| 2024 | $36,100 | $280,000 | $224,000 | $260,100 | $260,100 |
| 2023 | $36,100 | $280,000 | $224,000 | $260,100 | $260,100 |
| 2022 | $36,100 | $270,000 | $216,000 | $252,100 | $252,100 |
| 2021 | $36,100 | $255,000 | $204,000 | $240,100 | $240,100 |
| 2020 | $36,100 | $210,000 | $168,000 | $204,100 | $204,100 |
| 2019 | $36,100 | $200,000 | $160,000 | $196,100 | $196,100 |
| 2018 | $36,100 | $200,000 | $160,000 | $196,100 | $196,100 |
| 2017 | $36,100 | $210,000 | $168,000 | $204,100 | $204,100 |
| 2016 | $36,100 | $200,000 | $160,000 | $196,100 | $196,100 |
| 2015 | $36,100 | $200,000 | $160,000 | $196,100 | $196,100 |
| 2014 | $36,100 | $195,000 | $156,000 | $192,100 | $192,100 |
| 2013 | $36,100 | $216,000 | $172,800 | $208,900 | $208,900 |
| 2012 | $36,100 | $216,000 | $172,800 | $208,900 | $208,900 |
| 2011 | $36,200 | $240,000 | $192,000 | $228,200 | $228,200 |
| 2010 | $36,200 | $240,000 | $13,684 | $49,884 | $49,884 |
| 2009 | $36,569 | $240,000 | $13,684 | $50,253 | $50,253 |
| 2008 | $0 | $322,560 | $13,684 | $13,684 | $13,684 |
| 2007 | $0 | $322,560 | $13,684 | $13,684 | $13,684 |
Deed and Sales History
| 1 | 09/27/2018 | WD | Warranty Deed | LAWNICZAK, DAVID | GORVEATT, GEORGE | | | $273,750.00 | 36083 | 4452480 |
| 2 | 10/06/2015 | EZ | Easement | LAWNICZAK, DAVID | LAWNICZAK, DAVID | | | $0.00 | 22177 | 4389625 |
| 3 | 08/01/2004 | WD | Warranty Deed | POLLARD, RONALD F | LAWNICZAK, DAVID | | | $0.00 | 43848 | 4110418 |
| 4 | 12/11/2003 | SEG | DNU - Segregation | Unknown | POLLARD, RONALD F | | | $0.00 | 70097 | 0 |
Payout Agreement
| No payout information available.. |