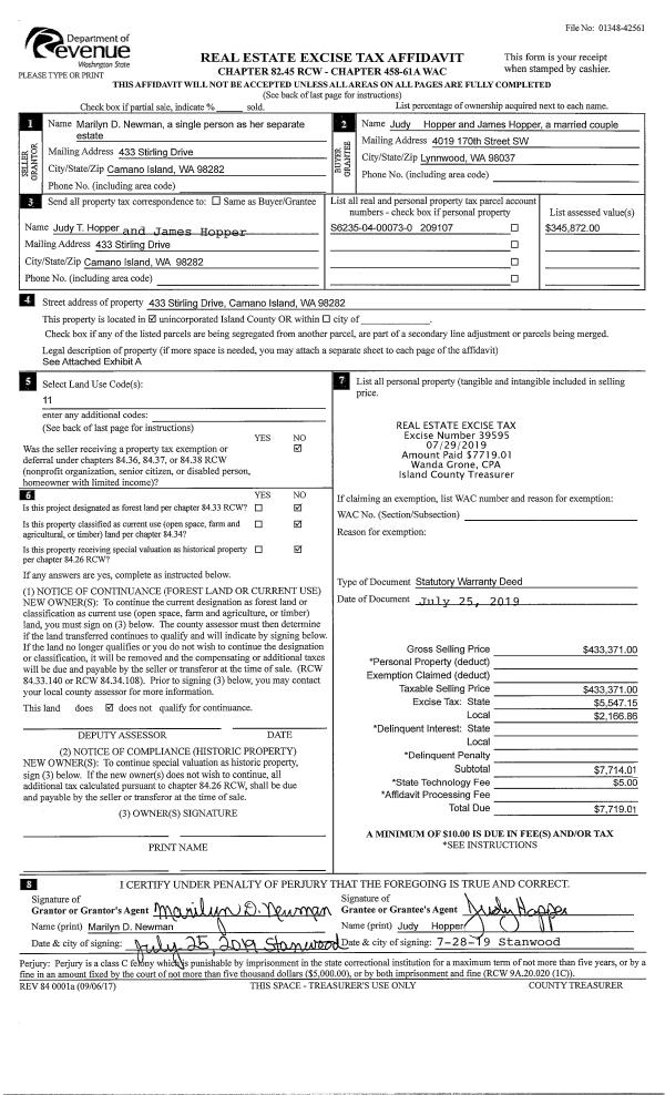
Property
Account |
| Property ID: | 805145 | Abbreviated Legal Description: | LOT 2 SP 314-02.33219.187-3330 V4 SP P3-5 AF#4071616 |
| Geographic ID: | R33219-185-3660 | Agent Code: | |
| Type: | Real | | |
| Tax Area: | 592 - APPRAISER-Stan/Cam Schl Dist, Special Dist, improved, greater than 1 acre | Land Use Code | 11 |
| Open Space: | N | DFL | N |
| Historic Property: | N | Remodel Property: | N |
| Multi-Family Redevelopment: | N | | |
| Township: | 32 | Section: | 19 |
| Range: | R3 |
Location |
| Address: | 926 ARROWHEAD RD CAMANO ISLAND, WA 98282 | Mapsco: | |
| Neighborhood: | North Camano | Map ID: | 961 |
| Neighborhood CD: | 06-C |
Owner |
| Name: | PALMER, CLARK W | Owner ID: | 291337 |
| Mailing Address: | PATRICIA A KLOPP 926 ARROWHEAD RD CAMANO ISLAND, WA 98282 | % Ownership: | 100.0000000000% |
| | | Exemptions: | |
Taxes and Assessment Details
Values
| (+) Improvement Homesite Value: | + | $0 | |
| (+) Improvement Non-Homesite Value: | + | $935,635 | |
| (+) Land Homesite Value: | + | $0 | |
| (+) Land Non-Homesite Value: | + | $470,000 | |
| (+) Curr Use (HS): | + | $0 | $0 |
| (+) Curr Use (NHS): | + | $0 | $0 |
| | | -------------------------- | |
| (=) Market Value: | = | $1,405,635 | |
| (–) Productivity Loss: | – | $0 | |
| | | -------------------------- | |
| (=) Subtotal: | = | $1,405,635 | |
| (+) Senior Appraised Value: | + | $0 | |
| (+) Non-Senior Appraised Value: | + | $1,405,635 | |
| | | -------------------------- | |
| (=) Total Appraised Value: | = | $1,405,635 | |
| (–) Senior Exemption Loss: | – | $0 | |
| (–) Exemption Loss: | – | $0 | |
| | | -------------------------- | |
| (=) Taxable Value: | = | $1,405,635 | |
Taxing Jurisdiction
| Owner: | PALMER, CLARK W | | |
| % Ownership: | 100.0000000000% | | |
| Total Value: | $1,405,635 | | |
| Tax Area: | 592 - APPRAISER-Stan/Cam Schl Dist, Special Dist, improved, greater than 1 acre |
| CF | Conservation Futures | 0.0316035091 | $1,405,635 | $1,405,635 | $44.42 | | |
| EMS1 | Fire & Rescue Dist #1 Camano GEN (EMS) | 0.3677864386 | $1,405,635 | $1,405,635 | $516.97 | | |
| FIRE1 | Fire & Rescue Dist #1 Camano GEN | 1.2502910536 | $1,405,635 | $1,405,635 | $1,757.45 | | |
| FIRE1BOND | Fire & Rescue Dist #1 Camano BOND | 0.1570001679 | $1,405,635 | $1,405,635 | $220.68 | | |
| CE | County Current Expense | 0.3708482477 | $1,405,635 | $1,405,635 | $521.28 | | |
| CR | County Roads | 0.4584763726 | $1,405,635 | $1,405,635 | $644.45 | | |
| LCIB | Library Sno-Isle BOND (Camano Island) | 0.0396325772 | $1,405,635 | $1,405,635 | $55.71 | | |
| LIB | Library Sno-Isle GEN | 0.3153421757 | $1,405,635 | $1,405,635 | $443.26 | | |
| SCH205_401 | School 205-401 Enrichment | 1.2698420524 | $1,405,635 | $1,405,635 | $1,784.93 | | |
| SCH205BOND | School 205-401 BOND | 0.9396497583 | $1,405,635 | $1,405,635 | $1,320.80 | | |
| ST | State School | 1.3035497053 | $1,405,635 | $1,405,635 | $1,832.32 | | |
| ST2 | State School Part 2 | 0.8169543533 | $1,405,635 | $1,405,635 | $1,148.34 | | |
| | Total Tax Rate: | 7.3209764117 | | | | | |
| | | | | Taxes w/Current Exemptions: | $10,290.61 | | |
| | | | | Taxes w/o Exemptions: | $10,290.61 | | |
Improvement / Building
| Improvement #1: | RESIDENTIAL | State Code: | Y | 3584.2 sqft | Value: | $935,635 |
| Bathrooms: | 3.5 | Bedrooms: | 3 | | Ceiling: | TONGUE & GROOVE | Exterior Wall/Cover: | CEMENT FIBER | | Floor Covering: | HARDWOOD/CARP 60-40 | Floor Structure: | WOOD W/SUBFLOOR | | Foundation: | CONCRETE | Heating: | FHA GAS | | Interior Finish: | DRYWALL PAINT | Plumbing Fixture Cnt: | 17 | | Roof Slope: | 10" IN 12" | Roof Structure/Cover: | CJ ASPHALT |
|
| | Type | Description | Class CD | Sub Class CD | Year Built | Area |
| | BAS | BASE/MAIN FLOOR | 5 | 0 | 2016 | 2957.2 |
| | UPS | UPPER STORY | 5 | 0 | 2016 | 627.0 |
| | AGR | ATTACHED GARAGE | 5 | 0 | 2016 | 948.0 |
| | OP4 | OPEN PORCH W/CEILING-ROOF | 5 | 0 | 2016 | 598.0 |
| | UTY | STORAGE/UTILITY | 5 | 0 | 2016 | 1512.0 |
| | OP4 | OPEN PORCH W/CEILING-ROOF | 5 | 0 | 2016 | 100.0 |
| | OP4 | OPEN PORCH W/CEILING-ROOF | 5 | 0 | 2016 | 130.0 |
Sketch
Property Image
Land
| 1 | 32 | AC (03.01-09.99) | 4.9700 | 0.00 | 0.00 | 0.00 | 1.00 | $470,000 | $0 |
Roll Value History
| 2026 | N/A | N/A | N/A | N/A | N/A |
| 2025 | $935,635 | $470,000 | $0 | $1,405,635 | $1,405,635 |
| 2024 | $942,818 | $470,000 | $0 | $1,412,818 | $1,412,818 |
| 2023 | $950,001 | $460,000 | $0 | $1,410,001 | $1,410,001 |
| 2022 | $844,308 | $400,000 | $0 | $1,244,308 | $1,244,308 |
| 2021 | $744,758 | $290,000 | $0 | $1,034,758 | $1,034,758 |
| 2020 | $724,166 | $240,000 | $0 | $964,166 | $964,166 |
| 2019 | $638,308 | $300,000 | $0 | $938,308 | $938,308 |
| 2018 | $639,853 | $250,000 | $0 | $889,853 | $889,853 |
| 2017 | $642,940 | $200,000 | $0 | $842,940 | $842,940 |
| 2016 | $386,691 | $180,000 | $0 | $566,691 | $566,691 |
| 2015 | $30,000 | $248,500 | $0 | $278,500 | $278,500 |
| 2014 | $30,000 | $248,500 | $0 | $278,500 | $278,500 |
| 2013 | $30,000 | $223,650 | $0 | $253,650 | $253,650 |
| 2012 | $0 | $223,650 | $0 | $223,650 | $223,650 |
| 2011 | $0 | $223,650 | $0 | $223,650 | $223,650 |
| 2010 | $0 | $223,650 | $0 | $223,650 | $223,650 |
| 2009 | $0 | $248,500 | $0 | $248,500 | $248,500 |
| 2008 | $0 | $248,500 | $0 | $248,500 | $248,500 |
| 2007 | $0 | $208,650 | $0 | $208,650 | $208,650 |
Deed and Sales History
| 1 | 08/06/2019 | QCD | Quit Claim Deed | PALMER, CLARK W | PALMER, CLARK W | | | $0.00 | 39851 | 4469339 |
| 2 | 01/23/2009 | WD | Warranty Deed | TORSET, LADON S | PALMER, CLARK W | | | $335,000.00 | 90190 | 4243609 |
| 3 | 01/01/1900 | OTHER | Other - Misc. Documents | Unknown | TORSET, LADON S | | | $0.00 | 0 | 0 |
Payout Agreement
| No payout information available.. |