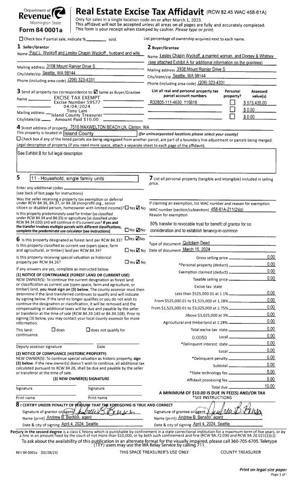
Property
Account |
| Property ID: | 805203 | Abbreviated Legal Description: | PT N/2 N/2 GL4 DESC: BG NWCR OF SEC 16 S88*E67.24' ALG NLN SEC 16 TPB S88*E99.91' TO WLN ST HWY 525 S17*E104.20' ALG WLN ST HWY 525 N88*W132.98' N1*E98.70' TPB EX PT TO IS CO V29 D P261-2 EX PT TO ST OF WASH AF#96009969 |
| Geographic ID: | R23016-527-0200 | Agent Code: | |
| Type: | Real | | |
| Tax Area: | 310 - APPRAISER-Cpvl Schl Dist, outside Cpvl, improved & 1 acre or less | Land Use Code | 11 |
| Open Space: | N | DFL | N |
| Historic Property: | N | Remodel Property: | N |
| Multi-Family Redevelopment: | N | | |
| Township: | 30 | Section: | 16 |
| Range: | R2 |
Location |
| Address: | 24813 SR525 GREENBANK, WA 98253 | Mapsco: | |
| Neighborhood: | Cycle 3 | Map ID: | 383 |
| Neighborhood CD: | 3 |
Owner |
| Name: | SWANSON, HOLLIE MARIE | Owner ID: | 310570 |
| Mailing Address: | PO BOX 148 GREENBANK, WA 98253 | % Ownership: | 100.0000000000% |
| | | Exemptions: | |
Taxes and Assessment Details
Values
| (+) Improvement Homesite Value: | + | $0 | |
| (+) Improvement Non-Homesite Value: | + | $99,133 | |
| (+) Land Homesite Value: | + | $0 | |
| (+) Land Non-Homesite Value: | + | $240,000 | |
| (+) Curr Use (HS): | + | $0 | $0 |
| (+) Curr Use (NHS): | + | $0 | $0 |
| | | -------------------------- | |
| (=) Market Value: | = | $339,133 | |
| (–) Productivity Loss: | – | $0 | |
| | | -------------------------- | |
| (=) Subtotal: | = | $339,133 | |
| (+) Senior Appraised Value: | + | $0 | |
| (+) Non-Senior Appraised Value: | + | $339,133 | |
| | | -------------------------- | |
| (=) Total Appraised Value: | = | $339,133 | |
| (–) Senior Exemption Loss: | – | $0 | |
| (–) Exemption Loss: | – | $0 | |
| | | -------------------------- | |
| (=) Taxable Value: | = | $339,133 | |
Taxing Jurisdiction
| Owner: | SWANSON, HOLLIE MARIE | | |
| % Ownership: | 100.0000000000% | | |
| Total Value: | $339,133 | | |
| Tax Area: | 310 - APPRAISER-Cpvl Schl Dist, outside Cpvl, improved & 1 acre or less |
| CF | Conservation Futures | 0.0316035091 | $339,133 | $339,133 | $10.72 | | |
| CEM2 | Cemetery #2 | 0.0095056933 | $339,133 | $339,133 | $3.22 | | |
| FIRE5 | Fire & Rescue Dist #5 C Whidbey GEN | 1.2008080668 | $339,133 | $339,133 | $407.23 | | |
| FIRE5BOND | Fire & Rescue Dist #5 C Whidbey BOND | 0.1400090713 | $339,133 | $339,133 | $47.48 | | |
| HOBOND | Hospital BOND | 0.1910887512 | $339,133 | $339,133 | $64.80 | | |
| HOGEN | Hospital GEN | 0.3902502903 | $339,133 | $339,133 | $132.35 | | |
| CE | County Current Expense | 0.3708482477 | $339,133 | $339,133 | $125.77 | | |
| CR | County Roads | 0.4584763726 | $339,133 | $339,133 | $155.48 | | |
| ISLANDEMS | Hospital GEN (EMS) | 0.5000000000 | $339,133 | $339,133 | $169.57 | | |
| LIB | Library Sno-Isle GEN | 0.3153421757 | $339,133 | $339,133 | $106.94 | | |
| LIBCAP | Library Sno-Isle BOND (Cap Fac Imp Area) | 0.0543427938 | $339,133 | $339,133 | $18.43 | | |
| POCOUP | Port of Coupeville GEN | 0.1093371703 | $339,133 | $339,133 | $37.08 | | |
| POCOUPIDD | Port of Coupeville IDD | 0.3409740022 | $339,133 | $339,133 | $115.64 | | |
| COUPSDTECH | School 204 CP (TECH) | 0.7545480007 | $339,133 | $339,133 | $255.89 | | |
| SCH204MO | School 204 Enrichment | 0.6716186034 | $339,133 | $339,133 | $227.77 | | |
| ST | State School | 1.3035497053 | $339,133 | $339,133 | $442.08 | | |
| ST2 | State School Part 2 | 0.8169543533 | $339,133 | $339,133 | $277.06 | | |
| | Total Tax Rate: | 7.6592568070 | | | | | |
| | | | | Taxes w/Current Exemptions: | $2,597.51 | | |
| | | | | Taxes w/o Exemptions: | $2,597.51 | | |
Improvement / Building
| Improvement #1: | RESIDENTIAL | State Code: | Y | 638.5 sqft | Value: | $99,133 |
| Bathrooms: | 1 | Bedrooms: | 1 | | Ceiling: | DRYWALL PAINTED | Cooling: | HEAT PUMP/CONV/V | | Exterior Wall/Cover: | PLY/HARDBOARD T-111 | Floor Covering: | CERAMIC TILE/CPT 40-60 | | Floor Structure: | WOOD W/SUBFLOOR | Foundation: | WOOD BLOCKS | | Interior Finish: | DRYWALL PAINT | Plumbing Fixture Cnt: | 6 | | Roof Slope: | 3" IN 12" | Roof Structure/Cover: | CJ ASPHALT |
|
| | Type | Description | Class CD | Sub Class CD | Year Built | Area |
| | BAS | BASE/MAIN FLOOR | 3 | 0 | 1970 | 638.5 |
| | UTY | STORAGE/UTILITY | 3 | 0 | 1970 | 68.9 |
| | OWP | OPEN WOOD PORCH W/STEPS | 3 | 0 | 1970 | 96.0 |
| | OWC | OPEN WOOD PORCH W/STEPS/ROOF/C | 3 | 0 | 1970 | 104.1 |
Sketch
Property Image
Land
| 1 | 14 | SQ (08001-12000) | 0.2700 | 11761.20 | 0.00 | 0.00 | 1.00 | $240,000 | $0 |
Roll Value History
| 2026 | N/A | N/A | N/A | N/A | N/A |
| 2025 | $99,133 | $240,000 | $0 | $339,133 | $339,133 |
| 2024 | $100,752 | $230,000 | $0 | $330,752 | $330,752 |
| 2023 | $99,161 | $230,000 | $0 | $329,161 | $329,161 |
| 2022 | $91,213 | $200,000 | $0 | $291,213 | $291,213 |
| 2021 | $80,546 | $140,000 | $0 | $220,546 | $220,546 |
| 2020 | $75,382 | $100,000 | $0 | $175,382 | $175,382 |
| 2019 | $44,293 | $160,000 | $0 | $204,293 | $204,293 |
| 2018 | $44,474 | $115,000 | $0 | $159,474 | $159,474 |
| 2017 | $44,836 | $100,000 | $0 | $144,836 | $144,836 |
| 2016 | $45,558 | $85,000 | $0 | $130,558 | $130,558 |
| 2015 | $46,282 | $90,000 | $0 | $136,282 | $136,282 |
| 2014 | $47,005 | $80,000 | $0 | $127,005 | $127,005 |
| 2013 | $47,728 | $85,000 | $0 | $132,728 | $132,728 |
| 2012 | $48,451 | $85,000 | $0 | $133,451 | $133,451 |
| 2011 | $49,175 | $100,000 | $0 | $149,175 | $149,175 |
| 2010 | $51,000 | $100,000 | $0 | $151,000 | $151,000 |
| 2009 | $53,255 | $155,000 | $0 | $208,255 | $208,255 |
| 2008 | $53,961 | $120,000 | $0 | $173,961 | $173,961 |
| 2007 | $49,311 | $120,000 | $0 | $169,311 | $169,311 |
Deed and Sales History
| 1 | 11/02/2023 | WD | Warranty Deed | APPLEGATE, CYNTHIA R | SWANSON, HOLLIE MARIE | | | $315,000.00 | 58419 | 4566383 |
| 2 | 03/03/2004 | BLA | DNU - Boundary Line Adjustment | Unknown | DANIEL, ROBERT W | | | $0.00 | 70178 | 4064818 |
| 3 | 10/20/2003 | WD | Warranty Deed | DANIEL, ROBERT W | APPLEGATE, CYNTHIA R | | | $125,000.00 | 35149 | 4082957 |
Payout Agreement
| No payout information available.. |