Property
Account |
| Property ID: | 805205 | Abbreviated Legal Description: | BRIGHTON BG SECR LOT 2 BLK 3 S89*W ALG SLN SD LOT 2 120.01' TO SWCR SD LOT 2 N8*W62.23' TO NWLY CR LOT 10 BLK 2 N66*E ALG NLY LN SD LOT 10 119.85' TO NELY CR SD LOT 10 S24*E ALG ELY LN SD LOT 10 25.01' TO COM CR OF SD LOT 10 & LOT 1 BLK 3 S6*E ALG ELN |
| Geographic ID: | S6175-00-02010-1 | Agent Code: | |
| Type: | Real | | |
| Tax Area: | 720 - APPRAISER-S Whid Schl Dist, Special District, improved & less than 1 acre | Land Use Code | 11 |
| Open Space: | N | DFL | N |
| Historic Property: | N | Remodel Property: | N |
| Multi-Family Redevelopment: | N | | |
| Township: | | Section: | |
| Range: | |
Location |
| Address: | 6264 BRIGHTON BEACH RD CLINTON, WA 98236 | Mapsco: | |
| Neighborhood: | Cycle 4 | Map ID: | 1000 |
| Neighborhood CD: | 4 |
Owner |
| Name: | LARSEN JTWROS, DANIEL J | Owner ID: | 283284 |
| Mailing Address: | LEANN LARSEN JTWROS 6264 BRIGHTON BEACH RD CLINTON, WA 98236 | % Ownership: | 100.0000000000% |
| | | Exemptions: | |
Taxes and Assessment Details
Values
| (+) Improvement Homesite Value: | + | $0 | |
| (+) Improvement Non-Homesite Value: | + | $1,011,398 | |
| (+) Land Homesite Value: | + | $0 | |
| (+) Land Non-Homesite Value: | + | $750,950 | |
| (+) Curr Use (HS): | + | $0 | $0 |
| (+) Curr Use (NHS): | + | $0 | $0 |
| | | -------------------------- | |
| (=) Market Value: | = | $1,762,348 | |
| (–) Productivity Loss: | – | $0 | |
| | | -------------------------- | |
| (=) Subtotal: | = | $1,762,348 | |
| (+) Senior Appraised Value: | + | $0 | |
| (+) Non-Senior Appraised Value: | + | $1,762,348 | |
| | | -------------------------- | |
| (=) Total Appraised Value: | = | $1,762,348 | |
| (–) Senior Exemption Loss: | – | $0 | |
| (–) Exemption Loss: | – | $0 | |
| | | -------------------------- | |
| (=) Taxable Value: | = | $1,762,348 | |
Taxing Jurisdiction
| Owner: | LARSEN JTWROS, DANIEL J | | |
| % Ownership: | 100.0000000000% | | |
| Total Value: | $1,762,348 | | |
| Tax Area: | 720 - APPRAISER-S Whid Schl Dist, Special District, improved & less than 1 acre |
| CF | Conservation Futures | 0.0316035091 | $1,762,348 | $1,762,348 | $55.70 | | |
| FIRE3 | Fire & Rescue Dist #3 S Whidbey GEN | 1.2004855531 | $1,762,348 | $1,762,348 | $2,115.67 | | |
| HOBOND | Hospital BOND | 0.1910887512 | $1,762,348 | $1,762,348 | $336.76 | | |
| HOGEN | Hospital GEN | 0.3902502903 | $1,762,348 | $1,762,348 | $687.76 | | |
| CE | County Current Expense | 0.3708482477 | $1,762,348 | $1,762,348 | $653.56 | | |
| CR | County Roads | 0.4584763726 | $1,762,348 | $1,762,348 | $807.99 | | |
| ISLANDEMS | Hospital GEN (EMS) | 0.5000000000 | $1,762,348 | $1,762,348 | $881.17 | | |
| LIB | Library Sno-Isle GEN | 0.3153421757 | $1,762,348 | $1,762,348 | $555.74 | | |
| PORTWHID | Port of S Whidbey GEN | 0.1094540357 | $1,762,348 | $1,762,348 | $192.90 | | |
| SCH206BOND | School 206 BOND | 0.3161759235 | $1,762,348 | $1,762,348 | $557.21 | | |
| SCH206MO | School 206 Enrichment | 0.4547169547 | $1,762,348 | $1,762,348 | $801.37 | | |
| ST | State School | 1.3035497053 | $1,762,348 | $1,762,348 | $2,297.31 | | |
| ST2 | State School Part 2 | 0.8169543533 | $1,762,348 | $1,762,348 | $1,439.76 | | |
| SWHIDPRBD | P & R S Whidbey BOND | 0.0152817568 | $1,762,348 | $1,762,348 | $26.93 | | |
| SWHIDPRBD2 | P & R S Whidbey BOND2 | 0.0138911264 | $1,762,348 | $1,762,348 | $24.48 | | |
| SWHIDPRMT | P & R S Whidbey GEN | 0.2053334452 | $1,762,348 | $1,762,348 | $361.87 | | |
| | Total Tax Rate: | 6.6934522006 | | | | | |
| | | | | Taxes w/Current Exemptions: | $11,796.18 | | |
| | | | | Taxes w/o Exemptions: | $11,796.18 | | |
Improvement / Building
| Improvement #1: | RESIDENTIAL | State Code: | Y | 910.0 sqft | Value: | $343,629 |
| Bathrooms: | 1 | Bedrooms: | 1 | | Ceiling: | DRYWALL PAINTED | Exterior Wall/Cover: | CEMENT FIBER | | Floor Covering: | CARPET/VINYL 60-40 | Floor Structure: | WOOD W/SUBFLOOR | | Foundation: | CONCRETE | Heating: | WALL HEAT ELECTRIC | | Interior Finish: | DRYWALL PAINT | Plumbing Fixture Cnt: | 9 | | Roof Slope: | 6" IN 12" | Roof Structure/Cover: | CJ ASPHALT |
|
| | Type | Description | Class CD | Sub Class CD | Year Built | Area |
| | BAS | BASE/MAIN FLOOR | 5 | 0 | 2004 | 910.0 |
| | BIG | BUILT IN GARAGE | 5 | 0 | 2004 | 910.0 |
| | UTY | STORAGE/UTILITY | 5 | 0 | 2004 | 93.0 |
| Improvement #2: | RESIDENTIAL | State Code: | Y | 2680.0 sqft | Value: | $667,769 |
| Bathrooms: | 3.5 | Bedrooms: | 2 | | Ceiling: | DRYWALL PAINTED | Cooling: | HEAT PUMP/CONV/V | | Exterior Wall/Cover: | CEMENT FIBER | Floor Covering: | CERAMIC TILE/HWD 40/60 | | Floor Structure: | WOOD W/SUBFLOOR | Foundation: | CONCRETE | | Interior Finish: | DRYWALL PAINT | Plumbing Fixture Cnt: | 17 | | Roof Slope: | 6" IN 12" | Roof Structure/Cover: | CJ ASPHALT |
|
| | Type | Description | Class CD | Sub Class CD | Year Built | Area |
| | BAS | BASE/MAIN FLOOR | 5 | 0 | 2004 | 1654.0 |
| | OP1 | OPEN PORCH SLAB | 5 | 0 | 2004 | 16.0 |
| | UPS | UPPER STORY | 5 | 0 | 2004 | 826.0 |
| | OWP | OPEN WOOD PORCH W/STEPS | 5 | 0 | 2004 | 32.0 |
| | OWP | OPEN WOOD PORCH W/STEPS | 5 | 0 | 2004 | 28.0 |
| | OWP | OPEN WOOD PORCH W/STEPS | 5 | 0 | 2004 | 777.0 |
| | OWC | OPEN WOOD PORCH W/STEPS/ROOF/C | 5 | 0 | 2004 | 96.0 |
| | OWC | OPEN WOOD PORCH W/STEPS/ROOF/C | 5 | 0 | 2004 | 52.0 |
| | OWC | OPEN WOOD PORCH W/STEPS/ROOF/C | 5 | 0 | 2004 | 100.0 |
| | OWC | OPEN WOOD PORCH W/STEPS/ROOF/C | 5 | 0 | 2004 | 40.0 |
| | LOF | LOFT | 5 | 0 | 2004 | 200.0 |
Sketch
Property Image
Land
| 1 | LB | LOW BANK | 0.0000 | 0.00 | 95.00 | 0.00 | 1.00 | $750,000 | $0 |
| 2 | 55 | TIDES | 0.0000 | 0.00 | 95.00 | 0.00 | 1.00 | $950 | $0 |
Roll Value History
| 2026 | N/A | N/A | N/A | N/A | N/A |
| 2025 | $1,011,398 | $750,950 | $0 | $1,762,348 | $1,762,348 |
| 2024 | $1,023,263 | $750,950 | $0 | $1,774,213 | $1,774,213 |
| 2023 | $1,035,123 | $790,950 | $0 | $1,826,073 | $1,826,073 |
| 2022 | $948,077 | $725,950 | $0 | $1,674,027 | $1,674,027 |
| 2021 | $833,768 | $600,950 | $0 | $1,434,718 | $1,434,718 |
| 2020 | $639,751 | $600,950 | $0 | $1,240,701 | $1,240,701 |
| 2019 | $491,072 | $550,950 | $0 | $1,042,022 | $1,042,022 |
| 2018 | $492,494 | $450,950 | $0 | $943,444 | $943,444 |
| 2017 | $495,351 | $450,950 | $0 | $946,301 | $946,301 |
| 2016 | $501,061 | $450,950 | $0 | $952,011 | $952,011 |
| 2015 | $506,766 | $450,950 | $0 | $957,716 | $957,716 |
| 2014 | $493,745 | $450,950 | $0 | $944,695 | $944,695 |
| 2013 | $499,293 | $441,099 | $0 | $940,392 | $940,392 |
| 2012 | $504,841 | $441,099 | $0 | $945,940 | $945,940 |
| 2011 | $510,389 | $518,772 | $0 | $1,029,161 | $1,029,161 |
| 2010 | $517,006 | $518,772 | $0 | $1,035,778 | $1,035,778 |
| 2009 | $544,196 | $648,228 | $0 | $1,192,424 | $1,192,424 |
| 2008 | $523,563 | $648,228 | $0 | $1,171,791 | $1,171,791 |
| 2007 | $529,371 | $647,563 | $0 | $1,176,934 | $1,176,934 |
Deed and Sales History
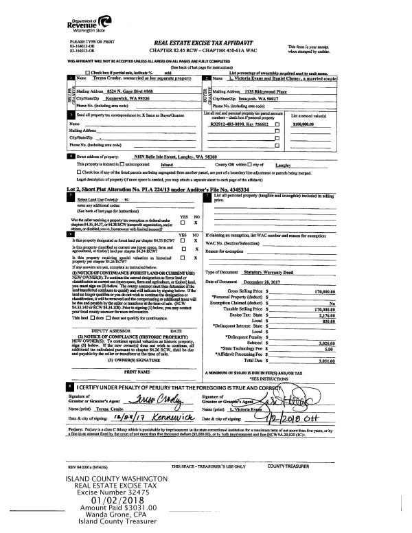
| 1 | 12/04/2017 | QCD | Quit Claim Deed | LARSEN, DANIEL J | LARSEN JTWROS, DANIEL J | | | $0.00 | 32283 | 4435785 |
| 2 | 03/09/2004 | BLA | DNU - Boundary Line Adjustment | Unknown | LARSEN, DANIEL J | | | $0.00 | 70180 | 4134171 |
Payout Agreement
| No payout information available.. |