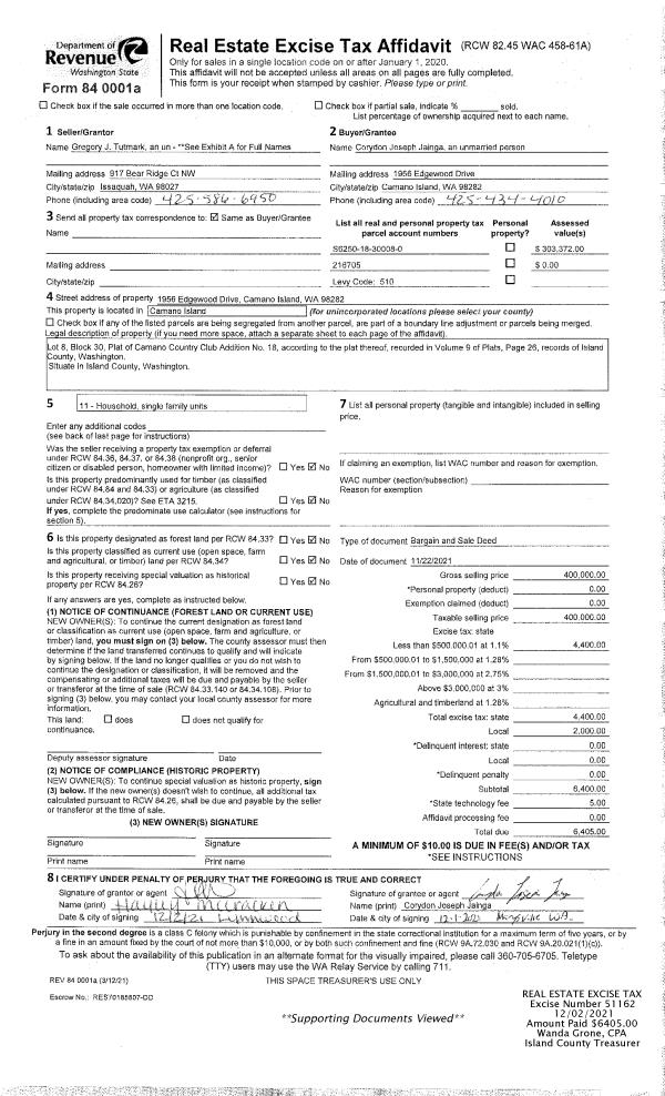
Property
Account |
| Property ID: | 805253 | Abbreviated Legal Description: | BG PT EDGECLIFF DR INTER SEC LN BETW SECS 2 & 3 W ALG NLN SD ST 200' TPB W ALG NLN SD ST 80' N TO ML E ALG ML TP N OF TPB S TPB INCL ADJ TIDES DESC 71D36 EX: BG PT NLN EDGECLIFF DR INTER ELN SEC 3 W ALG NLN SD ST 200' TPB W5' N TO NLN GL1 E ALG SD NLN TP |
| Geographic ID: | R32903-565-4860 | Agent Code: | |
| Type: | Real | | |
| Tax Area: | 700 - APPRAISER-S Whid Schl Dist, in town of Langley | Land Use Code | 11 |
| Open Space: | N | DFL | N |
| Historic Property: | N | Remodel Property: | N |
| Multi-Family Redevelopment: | N | | |
| Township: | 29 | Section: | 03 |
| Range: | R3 |
Location |
| Address: | 318 EDGECLIFF DR LANGLEY, WA 98260 | Mapsco: | |
| Neighborhood: | City of Langley | Map ID: | 727 |
| Neighborhood CD: | 04-L |
Owner |
| Name: | KERLEY TRUSTEE, CAROL | Owner ID: | 92286 |
| Mailing Address: | LINDA DUNHAM TRUSTEE PO BOX 229 LANGLEY, WA 98260 | % Ownership: | 100.0000000000% |
| | | Exemptions: | |
Taxes and Assessment Details
Values
| (+) Improvement Homesite Value: | + | $0 | |
| (+) Improvement Non-Homesite Value: | + | $809,074 | |
| (+) Land Homesite Value: | + | $0 | |
| (+) Land Non-Homesite Value: | + | $700,000 | |
| (+) Curr Use (HS): | + | $0 | $0 |
| (+) Curr Use (NHS): | + | $0 | $0 |
| | | -------------------------- | |
| (=) Market Value: | = | $1,509,074 | |
| (–) Productivity Loss: | – | $0 | |
| | | -------------------------- | |
| (=) Subtotal: | = | $1,509,074 | |
| (+) Senior Appraised Value: | + | $0 | |
| (+) Non-Senior Appraised Value: | + | $1,509,074 | |
| | | -------------------------- | |
| (=) Total Appraised Value: | = | $1,509,074 | |
| (–) Senior Exemption Loss: | – | $0 | |
| (–) Exemption Loss: | – | $0 | |
| | | -------------------------- | |
| (=) Taxable Value: | = | $1,509,074 | |
Taxing Jurisdiction
| Owner: | KERLEY TRUSTEE, CAROL | | |
| % Ownership: | 100.0000000000% | | |
| Total Value: | $1,509,074 | | |
| Tax Area: | 700 - APPRAISER-S Whid Schl Dist, in town of Langley |
| CF | Conservation Futures | 0.0316035091 | $1,509,074 | $1,509,074 | $47.69 | | |
| LANG | City of Langley | 1.0093520762 | $1,509,074 | $1,509,074 | $1,523.19 | | |
| LANGBOND | City of Langley BOND | 1.0326110892 | $1,509,074 | $1,509,074 | $1,558.29 | | |
| FIRE3 | Fire & Rescue Dist #3 S Whidbey GEN | 1.2004855531 | $1,509,074 | $1,509,074 | $1,811.62 | | |
| HOBOND | Hospital BOND | 0.1910887512 | $1,509,074 | $1,509,074 | $288.37 | | |
| HOGEN | Hospital GEN | 0.3902502903 | $1,509,074 | $1,509,074 | $588.92 | | |
| CE | County Current Expense | 0.3708482477 | $1,509,074 | $1,509,074 | $559.64 | | |
| ISLANDEMS | Hospital GEN (EMS) | 0.5000000000 | $1,509,074 | $1,509,074 | $754.54 | | |
| LIB | Library Sno-Isle GEN | 0.3153421757 | $1,509,074 | $1,509,074 | $475.87 | | |
| PORTWHID | Port of S Whidbey GEN | 0.1094540357 | $1,509,074 | $1,509,074 | $165.17 | | |
| SCH206BOND | School 206 BOND | 0.3161759235 | $1,509,074 | $1,509,074 | $477.13 | | |
| SCH206MO | School 206 Enrichment | 0.4547169547 | $1,509,074 | $1,509,074 | $686.20 | | |
| ST | State School | 1.3035497053 | $1,509,074 | $1,509,074 | $1,967.15 | | |
| ST2 | State School Part 2 | 0.8169543533 | $1,509,074 | $1,509,074 | $1,232.84 | | |
| SWHIDPRBD | P & R S Whidbey BOND | 0.0152817568 | $1,509,074 | $1,509,074 | $23.06 | | |
| SWHIDPRBD2 | P & R S Whidbey BOND2 | 0.0138911264 | $1,509,074 | $1,509,074 | $20.96 | | |
| SWHIDPRMT | P & R S Whidbey GEN | 0.2053334452 | $1,509,074 | $1,509,074 | $309.86 | | |
| | Total Tax Rate: | 8.2769389934 | | | | | |
| | | | | Taxes w/Current Exemptions: | $12,490.50 | | |
| | | | | Taxes w/o Exemptions: | $12,490.50 | | |
Improvement / Building
| Improvement #1: | RESIDENTIAL | State Code: | Y | 492.0 sqft | Value: | $155,296 |
| Bathrooms: | 1 | Bedrooms: | 0 | | Ceiling: | DRYWALL PAINTED | Cooling: | HEAT PUMP/CONV/V | | Exterior Wall/Cover: | WOOD SIDING | Floor Covering: | CARPET 100% | | Floor Structure: | WOOD W/SUBFLOOR | Foundation: | SLAB/CONCRETE | | Interior Finish: | DRYWALL PAINT | Plumbing Fixture Cnt: | 5 | | Roof Slope: | 3" IN 12" | Roof Structure/Cover: | CJ WOOD SHAKES |
|
| | Type | Description | Class CD | Sub Class CD | Year Built | Area |
| | BAS | BASE/MAIN FLOOR | 4 | 0 | 2002 | 492.0 |
| | OP4 | OPEN PORCH W/CEILING-ROOF | 4 | 0 | 2002 | 52.0 |
| Improvement #2: | RESIDENTIAL | State Code: | Y | 3320.0 sqft | Value: | $653,778 |
| Bathrooms: | 2 | Bedrooms: | 3 | | Ceiling: | DRYWALL PAINTED | Cooling: | FHA AND AC | | Exterior Wall/Cover: | WOOD SIDING | Floor Covering: | HARDWOOD/CARP 80-20 | | Floor Structure: | WOOD W/SUBFLOOR | Foundation: | CONCRETE | | Interior Finish: | DRYWALL PAINT | Plumbing Fixture Cnt: | 11 | | Roof Slope: | 8" IN 12" | Roof Structure/Cover: | CJ ASPHALT |
|
| | Type | Description | Class CD | Sub Class CD | Year Built | Area |
| | BAS | BASE/MAIN FLOOR | 4 | 0 | 2002 | 2912.0 |
| | DWN | DOWNSTAIRS LIVING AREA | 4 | 0 | 2002 | 408.0 |
| | DGR | DETACHED GARAGE | 4 | 0 | 2002 | 768.0 |
| | OWP | OPEN WOOD PORCH W/STEPS | 4 | 0 | 2002 | 120.0 |
| | OWP | OPEN WOOD PORCH W/STEPS | 4 | 0 | 2002 | 132.0 |
| | OWP | OPEN WOOD PORCH W/STEPS | 4 | 0 | 2002 | 168.0 |
| | OWP | OPEN WOOD PORCH W/STEPS | 4 | 0 | 2002 | 823.0 |
| | OWC | OPEN WOOD PORCH W/STEPS/ROOF/C | 4 | 0 | 2002 | 146.4 |
| | OWC | OPEN WOOD PORCH W/STEPS/ROOF/C | 4 | 0 | 2002 | 132.0 |
Sketch
Property Image
Land
| 1 | HB | HIGH BLUFF | 0.0000 | 0.00 | 170.00 | 0.00 | 1.00 | $700,000 | $0 |
Roll Value History
| 2026 | N/A | N/A | N/A | N/A | N/A |
| 2025 | $809,074 | $700,000 | $0 | $1,509,074 | $1,509,074 |
| 2024 | $819,149 | $700,000 | $0 | $1,519,149 | $1,519,149 |
| 2023 | $829,218 | $700,000 | $0 | $1,529,218 | $1,529,218 |
| 2022 | $759,976 | $750,000 | $0 | $1,509,976 | $1,509,976 |
| 2021 | $668,614 | $650,000 | $0 | $1,318,614 | $1,318,614 |
| 2020 | $644,526 | $650,000 | $0 | $1,294,526 | $1,294,526 |
| 2019 | $495,579 | $650,000 | $0 | $1,145,579 | $1,145,579 |
| 2018 | $497,033 | $650,000 | $0 | $1,147,033 | $1,147,033 |
| 2017 | $499,331 | $650,000 | $0 | $1,149,331 | $1,149,331 |
| 2016 | $505,138 | $650,000 | $0 | $1,155,138 | $1,155,138 |
| 2015 | $510,946 | $650,000 | $0 | $1,160,946 | $1,160,946 |
| 2014 | $486,930 | $650,000 | $0 | $1,136,930 | $1,136,930 |
| 2013 | $492,524 | $510,000 | $0 | $1,002,524 | $1,002,524 |
| 2012 | $498,114 | $510,000 | $0 | $1,008,114 | $1,008,114 |
| 2011 | $503,705 | $510,000 | $0 | $1,013,705 | $1,013,705 |
| 2010 | $443,493 | $565,277 | $0 | $1,008,770 | $1,008,770 |
| 2009 | $457,350 | $624,106 | $0 | $1,081,456 | $1,081,456 |
| 2008 | $425,037 | $624,106 | $0 | $1,049,143 | $1,049,143 |
| 2007 | $579,191 | $534,638 | $0 | $1,113,829 | $1,113,829 |
Deed and Sales History
| 1 | 12/10/2024 | QCD | Quit Claim Deed | KERLEY TRUSTEE, CAROL | KERLEY TRUSTEE, CAROL | | | $0.00 | 62046 | 4580284 |
| 2 | 04/06/2004 | BLA | DNU - Boundary Line Adjustment | Unknown | KERLEY TRUSTEE, CAROL | | | $0.00 | 70206 | 4075939 |
| 3 | 08/22/2003 | WD | Warranty Deed | KERLEY TRUSTEE, CAROL | KERLEY TRUSTEE, CAROL | | | $190,000.00 | 34241 | 4075940 |
Payout Agreement
| No payout information available.. |