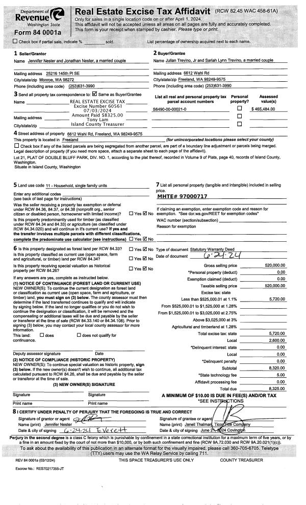
Property
Account |
| Property ID: | 805289 | Abbreviated Legal Description: | CHERRY HILL #5 LOT 107 |
| Geographic ID: | S6368-05-00107-0 | Agent Code: | |
| Type: | Real | | |
| Tax Area: | 100 - APPRAISER-OH Schl Dist, in OH | Land Use Code | 11 |
| Open Space: | N | DFL | N |
| Historic Property: | N | Remodel Property: | N |
| Multi-Family Redevelopment: | N | | |
| Township: | | Section: | |
| Range: | |
Location |
| Address: | 1668 NW CAMELLIA LOOP OAK HARBOR, WA 98277 | Mapsco: | |
| Neighborhood: | Cycle 1 | Map ID: | 255 |
| Neighborhood CD: | 1 |
Owner |
| Name: | COUNCIL, CATHERINE | Owner ID: | 301859 |
| Mailing Address: | 1668 NW CAMELLIA LP OAK HARBOR, WA 98277 | % Ownership: | 100.0000000000% |
| | | Exemptions: | |
Taxes and Assessment Details
Values
| (+) Improvement Homesite Value: | + | $0 | |
| (+) Improvement Non-Homesite Value: | + | $262,508 | |
| (+) Land Homesite Value: | + | $0 | |
| (+) Land Non-Homesite Value: | + | $195,000 | |
| (+) Curr Use (HS): | + | $0 | $0 |
| (+) Curr Use (NHS): | + | $0 | $0 |
| | | -------------------------- | |
| (=) Market Value: | = | $457,508 | |
| (–) Productivity Loss: | – | $0 | |
| | | -------------------------- | |
| (=) Subtotal: | = | $457,508 | |
| (+) Senior Appraised Value: | + | $0 | |
| (+) Non-Senior Appraised Value: | + | $457,508 | |
| | | -------------------------- | |
| (=) Total Appraised Value: | = | $457,508 | |
| (–) Senior Exemption Loss: | – | $0 | |
| (–) Exemption Loss: | – | $0 | |
| | | -------------------------- | |
| (=) Taxable Value: | = | $457,508 | |
Taxing Jurisdiction
| Owner: | COUNCIL, CATHERINE | | |
| % Ownership: | 100.0000000000% | | |
| Total Value: | $457,508 | | |
| Tax Area: | 100 - APPRAISER-OH Schl Dist, in OH |
| CF | Conservation Futures | 0.0316035091 | $457,508 | $457,508 | $14.46 | | |
| CEM1 | Cemetery #1 | 0.0040320932 | $457,508 | $457,508 | $1.84 | | |
| COH | City of Oak Harbor | 2.3001546061 | $457,508 | $457,508 | $1,052.34 | | |
| OAKBOND | City of Oak Harbor BOND | 0.1926904192 | $457,508 | $457,508 | $88.16 | | |
| HOBOND | Hospital BOND | 0.1910887512 | $457,508 | $457,508 | $87.42 | | |
| HOGEN | Hospital GEN | 0.3902502903 | $457,508 | $457,508 | $178.54 | | |
| CE | County Current Expense | 0.3708482477 | $457,508 | $457,508 | $169.67 | | |
| ISLANDEMS | Hospital GEN (EMS) | 0.5000000000 | $457,508 | $457,508 | $228.75 | | |
| LIB | Library Sno-Isle GEN | 0.3153421757 | $457,508 | $457,508 | $144.27 | | |
| NWHIDPRMT | P & R N Whidbey GEN | 0.2004466701 | $457,508 | $457,508 | $91.71 | | |
| SCH201MO | School 201 Enrichment | 1.8559231640 | $457,508 | $457,508 | $849.10 | | |
| ST | State School | 1.3035497053 | $457,508 | $457,508 | $596.38 | | |
| ST2 | State School Part 2 | 0.8169543533 | $457,508 | $457,508 | $373.76 | | |
| | Total Tax Rate: | 8.4728839852 | | | | | |
| | | | | Taxes w/Current Exemptions: | $3,876.40 | | |
| | | | | Taxes w/o Exemptions: | $3,876.40 | | |
Improvement / Building
| Improvement #1: | RESIDENTIAL | State Code: | Y | 1366.7 sqft | Value: | $262,508 |
| Bathrooms: | 2 | Bedrooms: | 3 | | Ceiling: | DRYWALL PAINTED | Exterior Wall/Cover: | CEMENT FIBER | | Floor Covering: | CARPET/VINYL 80-20 | Floor Structure: | WOOD W/SUBFLOOR | | Foundation: | CONCRETE | Heating: | FHA GAS | | Interior Finish: | DRYWALL PAINT | Plumbing Fixture Cnt: | 10 | | Roof Slope: | 6" IN 12" | Roof Structure/Cover: | CJ ASPHALT |
|
| | Type | Description | Class CD | Sub Class CD | Year Built | Area |
| | BAS | BASE/MAIN FLOOR | 3 | 0 | 2004 | 1366.7 |
| | AGR | ATTACHED GARAGE | 3 | 0 | 2004 | 455.7 |
| | OWC | OPEN WOOD PORCH W/STEPS/ROOF/C | 3 | 0 | 2004 | 38.8 |
Sketch
Property Image
Land
| 1 | 13 | SQ (06001-08000) | 0.0000 | 0.00 | 0.00 | 0.00 | 1.00 | $195,000 | $0 |
Roll Value History
| 2026 | N/A | N/A | N/A | N/A | N/A |
| 2025 | $262,508 | $195,000 | $0 | $457,508 | $457,508 |
| 2024 | $265,587 | $190,000 | $0 | $455,587 | $455,587 |
| 2023 | $268,666 | $175,000 | $0 | $443,666 | $443,666 |
| 2022 | $246,072 | $170,000 | $0 | $416,072 | $416,072 |
| 2021 | $209,684 | $120,000 | $0 | $329,684 | $329,684 |
| 2020 | $204,039 | $100,000 | $0 | $304,039 | $304,039 |
| 2019 | $146,812 | $150,000 | $0 | $296,812 | $296,812 |
| 2018 | $147,223 | $130,000 | $0 | $277,223 | $277,223 |
| 2017 | $141,344 | $110,000 | $0 | $251,344 | $251,344 |
| 2016 | $142,950 | $90,000 | $0 | $232,950 | $232,950 |
| 2015 | $144,560 | $55,000 | $0 | $199,560 | $199,560 |
| 2014 | $146,169 | $55,000 | $0 | $201,169 | $201,169 |
| 2013 | $147,776 | $55,000 | $0 | $202,776 | $202,776 |
| 2012 | $149,386 | $65,000 | $0 | $214,386 | $214,386 |
| 2011 | $152,293 | $50,000 | $0 | $202,293 | $202,293 |
| 2010 | $155,392 | $50,000 | $0 | $205,392 | $205,392 |
| 2009 | $163,569 | $52,000 | $0 | $215,569 | $215,569 |
| 2008 | $163,734 | $88,000 | $0 | $251,734 | $251,734 |
| 2007 | $165,557 | $88,000 | $0 | $253,557 | $253,557 |
Deed and Sales History
| 1 | 10/27/2021 | WD | Warranty Deed | AOKI, ERIKA | COUNCIL, CATHERINE | | | $410,000.00 | 50764 | 4533175 |
| 2 | 12/11/2018 | WD | Warranty Deed | MATRO, MARY CLAIRE | AOKI, ERIKA | | | $280,000.00 | 37060 | 4456912 |
| 3 | 12/26/2013 | QCD | Quit Claim Deed | DE GUZMAN, MARY CLAIRE G | MATRO, MARY CLAIRE | | | $80,563.00 | 13990 | 4353785 |
| 4 | 03/31/2004 | WD | Warranty Deed | FAKKEMA HOMES INC, | DE GUZMAN, MARY CLAIRE G | | | $171,000.00 | 41329 | 4096295 |
| 5 | 03/08/2004 | ESTSEPPROP | Establish Separate Property | DE GUZMAN, MARY CLAIRE G | DE GUZMAN, MARY CLAIRE G | | | $0.00 | 41330 | 4096296 |
| 6 | 01/01/1900 | OTHER | Other - Misc. Documents | Unknown | FAKKEMA HOMES INC, | | | $0.00 | 0 | 0 |
Payout Agreement
| No payout information available.. |