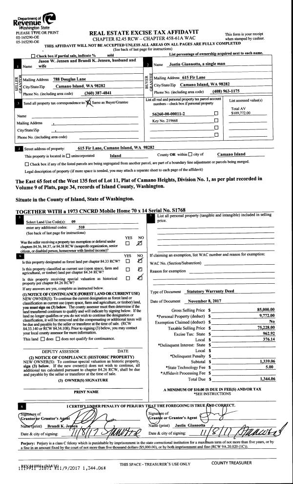
Property
Account |
| Property ID: | 805293 | Abbreviated Legal Description: | CHERRY HILL #5 LOT 111 |
| Geographic ID: | S6368-05-00111-0 | Agent Code: | |
| Type: | Real | | |
| Tax Area: | 100 - APPRAISER-OH Schl Dist, in OH | Land Use Code | 11 |
| Open Space: | N | DFL | N |
| Historic Property: | N | Remodel Property: | N |
| Multi-Family Redevelopment: | N | | |
| Township: | | Section: | |
| Range: | |
Location |
| Address: | 1622 NW CAMELLIA LOOP OAK HARBOR, WA 98277 | Mapsco: | |
| Neighborhood: | Cycle 1 | Map ID: | 255 |
| Neighborhood CD: | 1 |
Owner |
| Name: | SOIKA, MARK ANTHONY | Owner ID: | 298053 |
| Mailing Address: | RUTHLYN A SOIKA 1622 NW CAMILLIA LOOP OAK HARBOR, WA 98277 | % Ownership: | 100.0000000000% |
| | | Exemptions: | |
Taxes and Assessment Details
Values
| (+) Improvement Homesite Value: | + | $0 | |
| (+) Improvement Non-Homesite Value: | + | $287,731 | |
| (+) Land Homesite Value: | + | $0 | |
| (+) Land Non-Homesite Value: | + | $195,000 | |
| (+) Curr Use (HS): | + | $0 | $0 |
| (+) Curr Use (NHS): | + | $0 | $0 |
| | | -------------------------- | |
| (=) Market Value: | = | $482,731 | |
| (–) Productivity Loss: | – | $0 | |
| | | -------------------------- | |
| (=) Subtotal: | = | $482,731 | |
| (+) Senior Appraised Value: | + | $0 | |
| (+) Non-Senior Appraised Value: | + | $482,731 | |
| | | -------------------------- | |
| (=) Total Appraised Value: | = | $482,731 | |
| (–) Senior Exemption Loss: | – | $0 | |
| (–) Exemption Loss: | – | $0 | |
| | | -------------------------- | |
| (=) Taxable Value: | = | $482,731 | |
Taxing Jurisdiction
| Owner: | SOIKA, MARK ANTHONY | | |
| % Ownership: | 100.0000000000% | | |
| Total Value: | $482,731 | | |
| Tax Area: | 100 - APPRAISER-OH Schl Dist, in OH |
| CF | Conservation Futures | 0.0316035091 | $482,731 | $482,731 | $15.26 | | |
| CEM1 | Cemetery #1 | 0.0040320932 | $482,731 | $482,731 | $1.95 | | |
| COH | City of Oak Harbor | 2.3001546061 | $482,731 | $482,731 | $1,110.36 | | |
| OAKBOND | City of Oak Harbor BOND | 0.1926904192 | $482,731 | $482,731 | $93.02 | | |
| HOBOND | Hospital BOND | 0.1910887512 | $482,731 | $482,731 | $92.24 | | |
| HOGEN | Hospital GEN | 0.3902502903 | $482,731 | $482,731 | $188.39 | | |
| CE | County Current Expense | 0.3708482477 | $482,731 | $482,731 | $179.02 | | |
| ISLANDEMS | Hospital GEN (EMS) | 0.5000000000 | $482,731 | $482,731 | $241.37 | | |
| LIB | Library Sno-Isle GEN | 0.3153421757 | $482,731 | $482,731 | $152.23 | | |
| NWHIDPRMT | P & R N Whidbey GEN | 0.2004466701 | $482,731 | $482,731 | $96.76 | | |
| SCH201MO | School 201 Enrichment | 1.8559231640 | $482,731 | $482,731 | $895.91 | | |
| ST | State School | 1.3035497053 | $482,731 | $482,731 | $629.26 | | |
| ST2 | State School Part 2 | 0.8169543533 | $482,731 | $482,731 | $394.37 | | |
| | Total Tax Rate: | 8.4728839852 | | | | | |
| | | | | Taxes w/Current Exemptions: | $4,090.14 | | |
| | | | | Taxes w/o Exemptions: | $4,090.14 | | |
Improvement / Building
| Improvement #1: | RESIDENTIAL | State Code: | Y | 1590.6 sqft | Value: | $287,731 |
| Bathrooms: | 2 | Bedrooms: | 3 | | Ceiling: | DRYWALL PAINTED | Exterior Wall/Cover: | CEMENT FIBER | | Floor Covering: | CARPET/VINYL 60-40 | Floor Structure: | WOOD W/SUBFLOOR | | Foundation: | CONCRETE | Heating: | FHA GAS | | Interior Finish: | DRYWALL PAINT | Plumbing Fixture Cnt: | 9 | | Roof Slope: | 6" IN 12" | Roof Structure/Cover: | CJ ASPHALT |
|
| | Type | Description | Class CD | Sub Class CD | Year Built | Area |
| | BAS | BASE/MAIN FLOOR | 3 | 0 | 2004 | 1590.6 |
| | OP2 | OPEN PORCH W/STEPS | 3 | 0 | 2004 | 38.4 |
| | AGR | ATTACHED GARAGE | 3 | 0 | 2004 | 492.8 |
| | OWP | OPEN WOOD PORCH W/STEPS | 3 | 0 | 2004 | 200.0 |
| | OWC | OPEN WOOD PORCH W/STEPS/ROOF/C | 3 | 0 | 2004 | 29.3 |
Sketch
Property Image
Land
| 1 | 13 | SQ (06001-08000) | 0.0000 | 0.00 | 0.00 | 0.00 | 1.00 | $195,000 | $0 |
Roll Value History
| 2026 | N/A | N/A | N/A | N/A | N/A |
| 2025 | $287,731 | $195,000 | $0 | $482,731 | $482,731 |
| 2024 | $291,105 | $190,000 | $0 | $481,105 | $481,105 |
| 2023 | $287,731 | $175,000 | $0 | $462,731 | $462,731 |
| 2022 | $263,595 | $170,000 | $0 | $433,595 | $433,595 |
| 2021 | $231,879 | $120,000 | $0 | $351,879 | $351,879 |
| 2020 | $225,886 | $100,000 | $0 | $325,886 | $325,886 |
| 2019 | $165,070 | $150,000 | $0 | $315,070 | $315,070 |
| 2018 | $165,532 | $130,000 | $0 | $295,532 | $295,532 |
| 2017 | $160,635 | $110,000 | $0 | $270,635 | $270,635 |
| 2016 | $162,460 | $90,000 | $0 | $252,460 | $252,460 |
| 2015 | $164,286 | $55,000 | $0 | $219,286 | $219,286 |
| 2014 | $166,111 | $55,000 | $0 | $221,111 | $221,111 |
| 2013 | $167,935 | $55,000 | $0 | $222,935 | $222,935 |
| 2012 | $169,761 | $65,000 | $0 | $234,761 | $234,761 |
| 2011 | $168,783 | $50,000 | $0 | $218,783 | $218,783 |
| 2010 | $175,582 | $50,000 | $0 | $225,582 | $225,582 |
| 2009 | $184,709 | $52,098 | $0 | $236,807 | $236,807 |
| 2008 | $185,027 | $88,000 | $0 | $273,027 | $273,027 |
| 2007 | $187,110 | $88,000 | $0 | $275,110 | $275,110 |
Deed and Sales History
| 1 | 09/04/2020 | QCD | Quit Claim Deed | SOIKA, MARK ANTHONY | SOIKA, MARK ANTHONY | | | $0.00 | 44717 | 4496418 |
| 2 | 12/27/2017 | QCD | Quit Claim Deed | SOIKA, MARK ANTHONY | SOIKA, MARK ANTHONY | | | $0.00 | 32440 | 4436482 |
| 3 | 12/20/2017 | WD | Warranty Deed | CLARITY, THOMAS E | SOIKA, MARK ANTHONY | | | $303,000.00 | 32438 | 4436481 |
| 4 | 05/13/2008 | WD | Warranty Deed | MALINOWSKI, MATTHEW | CLARITY, THOMAS E | | | $269,000.00 | 81268 | 4228997 |
| 5 | 01/26/2004 | WD | Warranty Deed | THOMPSON HOMEBUILDERS INC, | MALINOWSKI, MATTHEW | | | $189,900.00 | 40319 | 4089624 |
| 6 | 10/10/2003 | WD | Warranty Deed | FAKKEMA HOMES INC, | THOMPSON HOMEBUILDERS INC, | | | $44,000.00 | 34624 | 4079176 |
| 7 | 01/01/1900 | OTHER | Other - Misc. Documents | Unknown | FAKKEMA HOMES INC, | | | $0.00 | 0 | 0 |
Payout Agreement
| No payout information available.. |