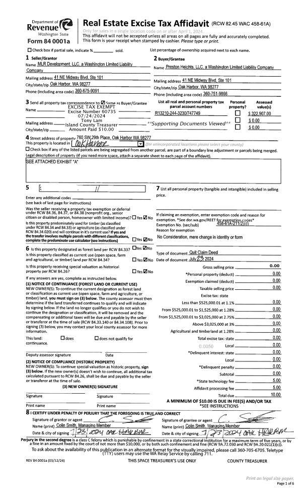
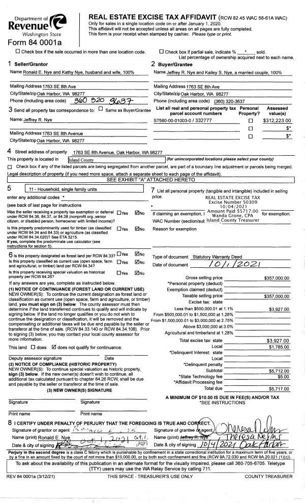
Property
Account |
| Property ID: | 805307 | Abbreviated Legal Description: | CHERRY HILL #5 LOT 125 |
| Geographic ID: | S6368-05-00125-0 | Agent Code: | |
| Type: | Real | | |
| Tax Area: | 100 - APPRAISER-OH Schl Dist, in OH | Land Use Code | 11 |
| Open Space: | N | DFL | N |
| Historic Property: | N | Remodel Property: | N |
| Multi-Family Redevelopment: | N | | |
| Township: | | Section: | |
| Range: | |
Location |
| Address: | 1505 NW CAMELLIA LOOP OAK HARBOR, WA 98277 | Mapsco: | |
| Neighborhood: | Cycle 1 | Map ID: | 255 |
| Neighborhood CD: | 1 |
Owner |
| Name: | VITAL, BLAS | Owner ID: | 298190 |
| Mailing Address: | YULIANA VITAL 23629 GOODWILL WAY CALIFORNIA, MD 20619 | % Ownership: | 100.0000000000% |
| | | Exemptions: | |
Taxes and Assessment Details
Values
| (+) Improvement Homesite Value: | + | $0 | |
| (+) Improvement Non-Homesite Value: | + | $271,462 | |
| (+) Land Homesite Value: | + | $0 | |
| (+) Land Non-Homesite Value: | + | $195,000 | |
| (+) Curr Use (HS): | + | $0 | $0 |
| (+) Curr Use (NHS): | + | $0 | $0 |
| | | -------------------------- | |
| (=) Market Value: | = | $466,462 | |
| (–) Productivity Loss: | – | $0 | |
| | | -------------------------- | |
| (=) Subtotal: | = | $466,462 | |
| (+) Senior Appraised Value: | + | $0 | |
| (+) Non-Senior Appraised Value: | + | $466,462 | |
| | | -------------------------- | |
| (=) Total Appraised Value: | = | $466,462 | |
| (–) Senior Exemption Loss: | – | $0 | |
| (–) Exemption Loss: | – | $0 | |
| | | -------------------------- | |
| (=) Taxable Value: | = | $466,462 | |
Taxing Jurisdiction
| Owner: | VITAL, BLAS | | |
| % Ownership: | 100.0000000000% | | |
| Total Value: | $466,462 | | |
| Tax Area: | 100 - APPRAISER-OH Schl Dist, in OH |
| CF | Conservation Futures | 0.0316035091 | $466,462 | $466,462 | $14.74 | | |
| CEM1 | Cemetery #1 | 0.0040320932 | $466,462 | $466,462 | $1.88 | | |
| COH | City of Oak Harbor | 2.3001546061 | $466,462 | $466,462 | $1,072.93 | | |
| OAKBOND | City of Oak Harbor BOND | 0.1926904192 | $466,462 | $466,462 | $89.88 | | |
| HOBOND | Hospital BOND | 0.1910887512 | $466,462 | $466,462 | $89.14 | | |
| HOGEN | Hospital GEN | 0.3902502903 | $466,462 | $466,462 | $182.04 | | |
| CE | County Current Expense | 0.3708482477 | $466,462 | $466,462 | $172.99 | | |
| ISLANDEMS | Hospital GEN (EMS) | 0.5000000000 | $466,462 | $466,462 | $233.23 | | |
| LIB | Library Sno-Isle GEN | 0.3153421757 | $466,462 | $466,462 | $147.10 | | |
| NWHIDPRMT | P & R N Whidbey GEN | 0.2004466701 | $466,462 | $466,462 | $93.50 | | |
| SCH201MO | School 201 Enrichment | 1.8559231640 | $466,462 | $466,462 | $865.72 | | |
| ST | State School | 1.3035497053 | $466,462 | $466,462 | $608.06 | | |
| ST2 | State School Part 2 | 0.8169543533 | $466,462 | $466,462 | $381.08 | | |
| | Total Tax Rate: | 8.4728839852 | | | | | |
| | | | | Taxes w/Current Exemptions: | $3,952.29 | | |
| | | | | Taxes w/o Exemptions: | $3,952.29 | | |
Improvement / Building
| Improvement #1: | RESIDENTIAL | State Code: | Y | 1480.6 sqft | Value: | $271,462 |
| Bathrooms: | 2.5 | Bedrooms: | 3 | | Ceiling: | DRYWALL PAINTED | Exterior Wall/Cover: | CEMENT FIBER | | Floor Covering: | CARPET/VINYL 80-20 | Floor Structure: | WOOD W/SUBFLOOR | | Foundation: | CONCRETE | Heating: | FHA GAS | | Interior Finish: | DRYWALL PAINT | Plumbing Fixture Cnt: | 11 | | Roof Slope: | 6" IN 12" | Roof Structure/Cover: | CJ ASPHALT |
|
| | Type | Description | Class CD | Sub Class CD | Year Built | Area |
| | BAS | BASE/MAIN FLOOR | 3 | 0 | 2004 | 763.6 |
| | AGR | ATTACHED GARAGE | 3 | 0 | 2004 | 430.3 |
| | UPS | UPPER STORY | 3 | 0 | 2004 | 717.0 |
| | OWC | OPEN WOOD PORCH W/STEPS/ROOF/C | 3 | 0 | 2004 | 121.6 |
| | OP1 | OPEN PORCH SLAB | 3 | 0 | 2004 | 99.0 |
Sketch
Property Image
Land
| 1 | 13 | SQ (06001-08000) | 0.0000 | 0.00 | 0.00 | 0.00 | 1.00 | $195,000 | $0 |
Roll Value History
| 2026 | N/A | N/A | N/A | N/A | N/A |
| 2025 | $271,462 | $195,000 | $0 | $466,462 | $466,462 |
| 2024 | $274,646 | $190,000 | $0 | $464,646 | $464,646 |
| 2023 | $271,462 | $175,000 | $0 | $446,462 | $446,462 |
| 2022 | $248,694 | $170,000 | $0 | $418,694 | $418,694 |
| 2021 | $218,772 | $120,000 | $0 | $338,772 | $338,772 |
| 2020 | $212,654 | $100,000 | $0 | $312,654 | $312,654 |
| 2019 | $152,657 | $150,000 | $0 | $302,657 | $302,657 |
| 2018 | $153,085 | $130,000 | $0 | $283,085 | $283,085 |
| 2017 | $150,831 | $110,000 | $0 | $260,831 | $260,831 |
| 2016 | $152,546 | $90,000 | $0 | $242,546 | $242,546 |
| 2015 | $154,263 | $55,000 | $0 | $209,263 | $209,263 |
| 2014 | $155,975 | $55,000 | $0 | $210,975 | $210,975 |
| 2013 | $157,690 | $55,000 | $0 | $212,690 | $212,690 |
| 2012 | $159,404 | $65,000 | $0 | $224,404 | $224,404 |
| 2011 | $163,513 | $50,000 | $0 | $213,513 | $213,513 |
| 2010 | $168,230 | $50,000 | $0 | $218,230 | $218,230 |
| 2009 | $177,054 | $52,000 | $0 | $229,054 | $229,054 |
| 2008 | $177,194 | $88,000 | $0 | $265,194 | $265,194 |
| 2007 | $179,127 | $88,000 | $0 | $267,127 | $267,127 |
Deed and Sales History
| 1 | 02/11/2021 | WD | Warranty Deed | CAVELL, TODD | VITAL, BLAS | | | $390,000.00 | 47012 | 4511414 |
| 2 | 02/08/2016 | WD | Warranty Deed | PRUYNE, MIKE R | CAVELL, TODD | | | $260,000.00 | 23118 | 4393951 |
| 3 | 06/20/2006 | WD | Warranty Deed | RAUEN, DONNA L | PRUYNE, MIKE R | | | $275,000.00 | 62833 | 4174724 |
| 4 | 11/21/2003 | WD | Warranty Deed | THOMPSON HOMEBUILDERS INC, | RAUEN, DONNA L | | | $179,700.00 | 35327 | 4084246 |
| 5 | 07/01/2003 | WD | Warranty Deed | FAKKEMA HOMES INC, | THOMPSON HOMEBUILDERS INC, | | | $45,000.00 | 32861 | 4065281 |
| 6 | 01/01/1900 | OTHER | Other - Misc. Documents | Unknown | FAKKEMA HOMES INC, | | | $0.00 | 0 | 0 |
Payout Agreement
| No payout information available.. |