Property
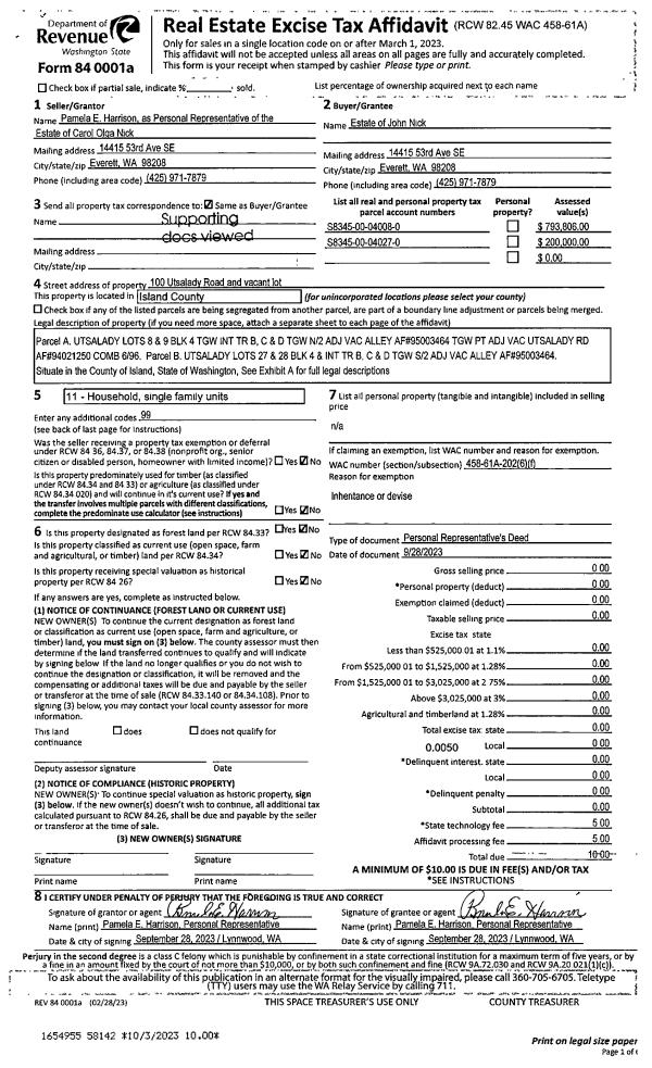
Account |
| Property ID: | 805343 | Abbreviated Legal Description: | REDWING #1 LOT 15 |
| Geographic ID: | S8008-00-00015-0 | Agent Code: | |
| Type: | Real | | |
| Tax Area: | 100 - APPRAISER-OH Schl Dist, in OH | Land Use Code | 11 |
| Open Space: | N | DFL | N |
| Historic Property: | N | Remodel Property: | N |
| Multi-Family Redevelopment: | N | | |
| Township: | | Section: | |
| Range: | |
Location |
| Address: | 1142 NW REDWING DR OAK HARBOR, WA 98277 | Mapsco: | |
| Neighborhood: | Cycle 1 | Map ID: | 254 |
| Neighborhood CD: | 1 |
Owner |
| Name: | FAIRE, LAWRENCE A | Owner ID: | 192413 |
| Mailing Address: | SHERYL P FAIRE 1142 NW REDWING DR OAK HARBOR, WA 98277-9282 | % Ownership: | 100.0000000000% |
| | | Exemptions: | |
Taxes and Assessment Details
Values
| (+) Improvement Homesite Value: | + | $0 | |
| (+) Improvement Non-Homesite Value: | + | $312,655 | |
| (+) Land Homesite Value: | + | $0 | |
| (+) Land Non-Homesite Value: | + | $200,000 | |
| (+) Curr Use (HS): | + | $0 | $0 |
| (+) Curr Use (NHS): | + | $0 | $0 |
| | | -------------------------- | |
| (=) Market Value: | = | $512,655 | |
| (–) Productivity Loss: | – | $0 | |
| | | -------------------------- | |
| (=) Subtotal: | = | $512,655 | |
| (+) Senior Appraised Value: | + | $0 | |
| (+) Non-Senior Appraised Value: | + | $512,655 | |
| | | -------------------------- | |
| (=) Total Appraised Value: | = | $512,655 | |
| (–) Senior Exemption Loss: | – | $0 | |
| (–) Exemption Loss: | – | $0 | |
| | | -------------------------- | |
| (=) Taxable Value: | = | $512,655 | |
Taxing Jurisdiction
| Owner: | FAIRE, LAWRENCE A | | |
| % Ownership: | 100.0000000000% | | |
| Total Value: | $512,655 | | |
| Tax Area: | 100 - APPRAISER-OH Schl Dist, in OH |
| CF | Conservation Futures | 0.0316035091 | $512,655 | $512,655 | $16.20 | | |
| CEM1 | Cemetery #1 | 0.0040320932 | $512,655 | $512,655 | $2.07 | | |
| COH | City of Oak Harbor | 2.3001546061 | $512,655 | $512,655 | $1,179.19 | | |
| OAKBOND | City of Oak Harbor BOND | 0.1926904192 | $512,655 | $512,655 | $98.78 | | |
| HOBOND | Hospital BOND | 0.1910887512 | $512,655 | $512,655 | $97.96 | | |
| HOGEN | Hospital GEN | 0.3902502903 | $512,655 | $512,655 | $200.06 | | |
| CE | County Current Expense | 0.3708482477 | $512,655 | $512,655 | $190.12 | | |
| ISLANDEMS | Hospital GEN (EMS) | 0.5000000000 | $512,655 | $512,655 | $256.33 | | |
| LIB | Library Sno-Isle GEN | 0.3153421757 | $512,655 | $512,655 | $161.66 | | |
| NWHIDPRMT | P & R N Whidbey GEN | 0.2004466701 | $512,655 | $512,655 | $102.76 | | |
| SCH201MO | School 201 Enrichment | 1.8559231640 | $512,655 | $512,655 | $951.45 | | |
| ST | State School | 1.3035497053 | $512,655 | $512,655 | $668.27 | | |
| ST2 | State School Part 2 | 0.8169543533 | $512,655 | $512,655 | $418.82 | | |
| | Total Tax Rate: | 8.4728839852 | | | | | |
| | | | | Taxes w/Current Exemptions: | $4,343.67 | | |
| | | | | Taxes w/o Exemptions: | $4,343.67 | | |
Improvement / Building
| Improvement #1: | RESIDENTIAL | State Code: | Y | 1859.7 sqft | Value: | $312,655 |
| Bathrooms: | 2.5 | Bedrooms: | 3 | | Ceiling: | DRYWALL PAINTED | Exterior Wall/Cover: | VINYL | | Floor Covering: | CARPET/VINYL 80-20 | Floor Structure: | WOOD W/SUBFLOOR | | Foundation: | CONCRETE | Heating: | FHA GAS | | Interior Finish: | DRYWALL PAINT | Plumbing Fixture Cnt: | 12 | | Roof Slope: | 6" IN 12" | Roof Structure/Cover: | CJ ASPHALT |
|
| | Type | Description | Class CD | Sub Class CD | Year Built | Area |
| | BAS | BASE/MAIN FLOOR | 3 | 0 | 2004 | 849.2 |
| | OP4 | OPEN PORCH W/CEILING-ROOF | 3 | 0 | 2004 | 97.0 |
| | BIG | BUILT IN GARAGE | 3 | 0 | 2004 | 492.0 |
| | UPS | UPPER STORY | 3 | 0 | 2004 | 1010.5 |
Sketch
Property Image
Land
| 1 | 13 | SQ (06001-08000) | 0.0000 | 0.00 | 0.00 | 0.00 | 1.00 | $200,000 | $0 |
Roll Value History
| 2026 | N/A | N/A | N/A | N/A | N/A |
| 2025 | $312,655 | $200,000 | $0 | $512,655 | $512,655 |
| 2024 | $316,238 | $175,000 | $0 | $491,238 | $491,238 |
| 2023 | $305,744 | $180,000 | $0 | $485,744 | $485,744 |
| 2022 | $280,100 | $180,000 | $0 | $460,100 | $460,100 |
| 2021 | $246,393 | $120,000 | $0 | $366,393 | $366,393 |
| 2020 | $239,839 | $100,000 | $0 | $339,839 | $339,839 |
| 2019 | $177,995 | $150,000 | $0 | $327,995 | $327,995 |
| 2018 | $178,495 | $130,000 | $0 | $308,495 | $308,495 |
| 2017 | $172,456 | $110,000 | $0 | $282,456 | $282,456 |
| 2016 | $176,016 | $90,000 | $0 | $266,016 | $266,016 |
| 2015 | $178,021 | $55,000 | $0 | $233,021 | $233,021 |
| 2014 | $180,027 | $55,000 | $0 | $235,027 | $235,027 |
| 2013 | $182,033 | $55,000 | $0 | $237,033 | $237,033 |
| 2012 | $184,038 | $60,000 | $0 | $244,038 | $244,038 |
| 2011 | $186,300 | $25,859 | $0 | $212,159 | $212,159 |
| 2010 | $193,032 | $25,859 | $0 | $218,891 | $218,891 |
| 2009 | $203,198 | $55,000 | $0 | $258,198 | $258,198 |
| 2008 | $203,475 | $79,500 | $0 | $282,975 | $282,975 |
| 2007 | $205,798 | $95,000 | $0 | $300,798 | $300,798 |
Deed and Sales History
| 1 | 02/02/2004 | WD | Warranty Deed | ISLAND CONSTRUCTION INC, | FAIRE, LAWRENCE A | | | $189,900.00 | 41344 | 4096406 |
| 2 | 11/04/2003 | QCD | Quit Claim Deed | MASSEY, WILLIAM L | ISLAND CONSTRUCTION INC, | | | $0.00 | 35015 | 4081861 |
| 3 | 01/01/1900 | OTHER | Other - Misc. Documents | Unknown | MASSEY, WILLIAM L | | | $0.00 | 0 | 0 |
Payout Agreement
| No payout information available.. |