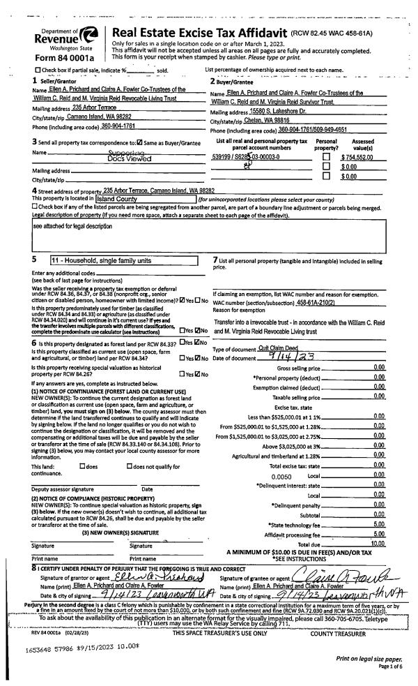
Property
Account |
| Property ID: | 805362 | Abbreviated Legal Description: | REDWING #1 LOT 33 |
| Geographic ID: | S8008-00-00033-0 | Agent Code: | |
| Type: | Real | | |
| Tax Area: | 100 - APPRAISER-OH Schl Dist, in OH | Land Use Code | 11 |
| Open Space: | N | DFL | N |
| Historic Property: | N | Remodel Property: | N |
| Multi-Family Redevelopment: | N | | |
| Township: | | Section: | |
| Range: | |
Location |
| Address: | 1061 NW REDWING DR OAK HARBOR, WA 98277 | Mapsco: | |
| Neighborhood: | Cycle 1 | Map ID: | 254 |
| Neighborhood CD: | 1 |
Owner |
| Name: | DECOTIS, ALPHA MAE ARINES | Owner ID: | 307332 |
| Mailing Address: | TIMOTHY G DECOTIS 1061 NW REDWING DR OAK HARBOR, WA 98277 | % Ownership: | 100.0000000000% |
| | | Exemptions: | |
Taxes and Assessment Details
Values
| (+) Improvement Homesite Value: | + | $0 | |
| (+) Improvement Non-Homesite Value: | + | $303,731 | |
| (+) Land Homesite Value: | + | $0 | |
| (+) Land Non-Homesite Value: | + | $200,000 | |
| (+) Curr Use (HS): | + | $0 | $0 |
| (+) Curr Use (NHS): | + | $0 | $0 |
| | | -------------------------- | |
| (=) Market Value: | = | $503,731 | |
| (–) Productivity Loss: | – | $0 | |
| | | -------------------------- | |
| (=) Subtotal: | = | $503,731 | |
| (+) Senior Appraised Value: | + | $0 | |
| (+) Non-Senior Appraised Value: | + | $503,731 | |
| | | -------------------------- | |
| (=) Total Appraised Value: | = | $503,731 | |
| (–) Senior Exemption Loss: | – | $0 | |
| (–) Exemption Loss: | – | $0 | |
| | | -------------------------- | |
| (=) Taxable Value: | = | $503,731 | |
Taxing Jurisdiction
| Owner: | DECOTIS, ALPHA MAE ARINES | | |
| % Ownership: | 100.0000000000% | | |
| Total Value: | $503,731 | | |
| Tax Area: | 100 - APPRAISER-OH Schl Dist, in OH |
| CF | Conservation Futures | 0.0316035091 | $503,731 | $503,731 | $15.92 | | |
| CEM1 | Cemetery #1 | 0.0040320932 | $503,731 | $503,731 | $2.03 | | |
| COH | City of Oak Harbor | 2.3001546061 | $503,731 | $503,731 | $1,158.66 | | |
| OAKBOND | City of Oak Harbor BOND | 0.1926904192 | $503,731 | $503,731 | $97.06 | | |
| HOBOND | Hospital BOND | 0.1910887512 | $503,731 | $503,731 | $96.26 | | |
| HOGEN | Hospital GEN | 0.3902502903 | $503,731 | $503,731 | $196.58 | | |
| CE | County Current Expense | 0.3708482477 | $503,731 | $503,731 | $186.81 | | |
| ISLANDEMS | Hospital GEN (EMS) | 0.5000000000 | $503,731 | $503,731 | $251.87 | | |
| LIB | Library Sno-Isle GEN | 0.3153421757 | $503,731 | $503,731 | $158.85 | | |
| NWHIDPRMT | P & R N Whidbey GEN | 0.2004466701 | $503,731 | $503,731 | $100.97 | | |
| SCH201MO | School 201 Enrichment | 1.8559231640 | $503,731 | $503,731 | $934.89 | | |
| ST | State School | 1.3035497053 | $503,731 | $503,731 | $656.64 | | |
| ST2 | State School Part 2 | 0.8169543533 | $503,731 | $503,731 | $411.53 | | |
| | Total Tax Rate: | 8.4728839852 | | | | | |
| | | | | Taxes w/Current Exemptions: | $4,268.07 | | |
| | | | | Taxes w/o Exemptions: | $4,268.07 | | |
Improvement / Building
| Improvement #1: | RESIDENTIAL | State Code: | Y | 1608.0 sqft | Value: | $303,731 |
| Bathrooms: | 2.5 | Bedrooms: | 3 | | Ceiling: | DRYWALL PAINTED | Exterior Wall/Cover: | VINYL | | Floor Covering: | CARPET/VINYL 80-20 | Floor Structure: | WOOD W/SUBFLOOR | | Foundation: | CONCRETE | Heating: | FHA GAS | | Interior Finish: | DRYWALL PAINT | Plumbing Fixture Cnt: | 12 | | Roof Slope: | 6" IN 12" | Roof Structure/Cover: | CJ ASPHALT |
|
| | Type | Description | Class CD | Sub Class CD | Year Built | Area |
| | BAS | BASE/MAIN FLOOR | 3 | 0 | 2004 | 1608.0 |
| | OP1 | OPEN PORCH SLAB | 3 | 0 | 2004 | 65.0 |
| | OP4 | OPEN PORCH W/CEILING-ROOF | 3 | 0 | 2004 | 70.0 |
| | AGR | ATTACHED GARAGE | 3 | 0 | 2004 | 504.0 |
Sketch
Property Image
Land
| 1 | 13 | SQ (06001-08000) | 0.0000 | 0.00 | 0.00 | 0.00 | 1.00 | $200,000 | $0 |
Roll Value History
| 2026 | N/A | N/A | N/A | N/A | N/A |
| 2025 | $303,731 | $200,000 | $0 | $503,731 | $503,731 |
| 2024 | $307,295 | $175,000 | $0 | $482,295 | $482,295 |
| 2023 | $303,444 | $180,000 | $0 | $483,444 | $483,444 |
| 2022 | $277,990 | $180,000 | $0 | $457,990 | $457,990 |
| 2021 | $244,532 | $120,000 | $0 | $364,532 | $364,532 |
| 2020 | $237,736 | $100,000 | $0 | $337,736 | $337,736 |
| 2019 | $171,336 | $150,000 | $0 | $321,336 | $321,336 |
| 2018 | $171,816 | $130,000 | $0 | $301,816 | $301,816 |
| 2017 | $163,486 | $110,000 | $0 | $273,486 | $273,486 |
| 2016 | $165,386 | $90,000 | $0 | $255,386 | $255,386 |
| 2015 | $167,288 | $55,000 | $0 | $222,288 | $222,288 |
| 2014 | $169,189 | $55,000 | $0 | $224,189 | $224,189 |
| 2013 | $171,090 | $55,000 | $0 | $226,090 | $226,090 |
| 2012 | $172,990 | $60,000 | $0 | $232,990 | $232,990 |
| 2011 | $179,376 | $25,859 | $0 | $205,235 | $205,235 |
| 2010 | $185,572 | $25,859 | $0 | $211,431 | $211,431 |
| 2009 | $195,373 | $55,000 | $0 | $250,373 | $250,373 |
| 2008 | $195,678 | $79,500 | $0 | $275,178 | $275,178 |
| 2007 | $197,916 | $95,000 | $0 | $292,916 | $292,916 |
Deed and Sales History
| 1 | 01/19/2023 | QCD | Quit Claim Deed | ARINES, ALPHA MAE A | DECOTIS, ALPHA MAE ARINES | | | $0.00 | 55651 | 4555850 |
| 2 | 06/14/2021 | WD | Warranty Deed | MOONEY, RYAN PATRICK | ARINES, ALPHA MAE A | | | $455,000.00 | 48704 | 4521972 |
| 3 | 12/19/2018 | WD | Warranty Deed | ZENNER, SCOTT R | MOONEY, RYAN PATRICK | | | $325,000.00 | 37046 | 4456885 |
| 4 | 08/21/2008 | WD | Warranty Deed | WILSON, JOHN F | ZENNER, SCOTT R | | | $265,000.00 | 82314 | 4236007 |
| 5 | 05/27/2004 | WD | Warranty Deed | ISLAND CONSTRUCTION INC, | WILSON, JOHN F | | | $196,900.00 | 42281 | 4101912 |
| 6 | 03/08/2004 | 5 | DNU - Marriage License/Name Change | MASSEY, WILLIAM L | ISLAND CONSTRUCTION INC, | | | $0.00 | 40857 | 4093345 |
| 7 | 01/01/1900 | OTHER | Other - Misc. Documents | Unknown | MASSEY, WILLIAM L | | | $0.00 | 0 | 0 |
Payout Agreement
| No payout information available.. |