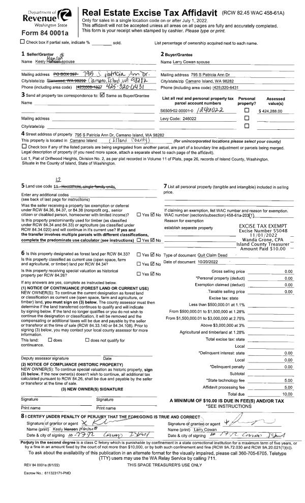
Property
Account |
| Property ID: | 805474 | Abbreviated Legal Description: | SARATOGA VIEWPOINTE #1 LOT 8 |
| Geographic ID: | S8102-00-00008-0 | Agent Code: | |
| Type: | Real | | |
| Tax Area: | 119 - APPRAISER-OH Schl Dist, outside OH, vacant & 50 acres or less | Land Use Code | 99 |
| Open Space: | N | DFL | N |
| Historic Property: | N | Remodel Property: | N |
| Multi-Family Redevelopment: | N | | |
| Township: | | Section: | |
| Range: | |
Location |
| Address: | SERGIOS VIEW LN OAK HARBOR, WA 98277 | Mapsco: | |
| Neighborhood: | Cycle 6 | Map ID: | 541 |
| Neighborhood CD: | 6 |
Owner |
| Name: | TIOSECO, MARIA KATRINA | Owner ID: | 302816 |
| Mailing Address: | RYAN FLAVIANO VILLA-REAL 6305 166TH AVE NE KIRKLAND, WA 98033 | % Ownership: | 100.0000000000% |
| | | Exemptions: | |
Taxes and Assessment Details
Values
| (+) Improvement Homesite Value: | + | $0 | |
| (+) Improvement Non-Homesite Value: | + | $0 | |
| (+) Land Homesite Value: | + | $0 | |
| (+) Land Non-Homesite Value: | + | $275,000 | |
| (+) Curr Use (HS): | + | $0 | $0 |
| (+) Curr Use (NHS): | + | $0 | $0 |
| | | -------------------------- | |
| (=) Market Value: | = | $275,000 | |
| (–) Productivity Loss: | – | $0 | |
| | | -------------------------- | |
| (=) Subtotal: | = | $275,000 | |
| (+) Senior Appraised Value: | + | $0 | |
| (+) Non-Senior Appraised Value: | + | $275,000 | |
| | | -------------------------- | |
| (=) Total Appraised Value: | = | $275,000 | |
| (–) Senior Exemption Loss: | – | $0 | |
| (–) Exemption Loss: | – | $0 | |
| | | -------------------------- | |
| (=) Taxable Value: | = | $275,000 | |
Taxing Jurisdiction
| Owner: | TIOSECO, MARIA KATRINA | | |
| % Ownership: | 100.0000000000% | | |
| Total Value: | $275,000 | | |
| Tax Area: | 119 - APPRAISER-OH Schl Dist, outside OH, vacant & 50 acres or less |
| CF | Conservation Futures | 0.0316035091 | $275,000 | $275,000 | $8.69 | | |
| CEM1 | Cemetery #1 | 0.0040320932 | $275,000 | $275,000 | $1.11 | | |
| HOBOND | Hospital BOND | 0.1910887512 | $275,000 | $275,000 | $52.55 | | |
| HOGEN | Hospital GEN | 0.3902502903 | $275,000 | $275,000 | $107.32 | | |
| CE | County Current Expense | 0.3708482477 | $275,000 | $275,000 | $101.98 | | |
| CR | County Roads | 0.4584763726 | $275,000 | $275,000 | $126.08 | | |
| ISLANDEMS | Hospital GEN (EMS) | 0.5000000000 | $275,000 | $275,000 | $137.50 | | |
| LIB | Library Sno-Isle GEN | 0.3153421757 | $275,000 | $275,000 | $86.72 | | |
| NWHIDPRMT | P & R N Whidbey GEN | 0.2004466701 | $275,000 | $275,000 | $55.12 | | |
| SCH201MO | School 201 Enrichment | 1.8559231640 | $275,000 | $275,000 | $510.38 | | |
| ST | State School | 1.3035497053 | $275,000 | $275,000 | $358.48 | | |
| ST2 | State School Part 2 | 0.8169543533 | $275,000 | $275,000 | $224.66 | | |
| | Total Tax Rate: | 6.4385153325 | | | | | |
| | | | | Taxes w/Current Exemptions: | $1,770.59 | | |
| | | | | Taxes w/o Exemptions: | $1,770.59 | | |
Improvement / Building
Sketch
| No sketches available for this property. |
Property Image
Land
| 1 | HB | HIGH BLUFF | 0.7900 | 34412.40 | 95.00 | 0.00 | 1.00 | $275,000 | $0 |
Roll Value History
| 2026 | N/A | N/A | N/A | N/A | N/A |
| 2025 | $0 | $275,000 | $0 | $275,000 | $275,000 |
| 2024 | $0 | $250,000 | $0 | $250,000 | $250,000 |
| 2023 | $0 | $225,000 | $0 | $225,000 | $225,000 |
| 2022 | $0 | $210,000 | $0 | $210,000 | $210,000 |
| 2021 | $0 | $185,000 | $0 | $185,000 | $185,000 |
| 2020 | $0 | $175,000 | $0 | $175,000 | $175,000 |
| 2019 | $0 | $200,000 | $0 | $200,000 | $200,000 |
| 2018 | $0 | $200,000 | $0 | $200,000 | $200,000 |
| 2017 | $0 | $200,000 | $0 | $200,000 | $200,000 |
| 2016 | $0 | $150,000 | $0 | $150,000 | $150,000 |
| 2015 | $0 | $150,000 | $0 | $150,000 | $150,000 |
| 2014 | $0 | $150,000 | $0 | $150,000 | $150,000 |
| 2013 | $0 | $152,008 | $0 | $152,008 | $152,008 |
| 2012 | $0 | $152,008 | $0 | $152,008 | $152,008 |
| 2011 | $0 | $152,008 | $0 | $152,008 | $152,008 |
| 2010 | $0 | $152,008 | $0 | $152,008 | $152,008 |
| 2009 | $0 | $176,946 | $0 | $176,946 | $176,946 |
| 2008 | $0 | $176,946 | $0 | $176,946 | $176,946 |
| 2007 | $0 | $181,917 | $0 | $181,917 | $181,917 |
Deed and Sales History
| 1 | 01/26/2022 | WD | Warranty Deed | HADLAND, KENNETH | TIOSECO, MARIA KATRINA | | | $245,000.00 | 51822 | 4538849 |
| 2 | 11/10/2020 | WD | Warranty Deed | SARATOGA VIEWPOINTE, LLC | HADLAND, KENNETH | | | $220,000.00 | 45739 | 4502617 |
| 3 | 09/23/2019 | SPWARDEED | Special Warranty Deed | VILLARREAL, GILBERT | SARATOGA VIEWPOINTE, LLC | | | $0.00 | 40396 | 4471951 |
| 4 | 10/20/2003 | WD | Warranty Deed | MASSEY, W L | VILLARREAL, GILBERT | | | $122,990.00 | 34754 | 4079972 |
| 5 | 01/01/1900 | OTHER | Other - Misc. Documents | Unknown | MASSEY, W L | | | $0.00 | 0 | 0 |
Payout Agreement
| No payout information available.. |