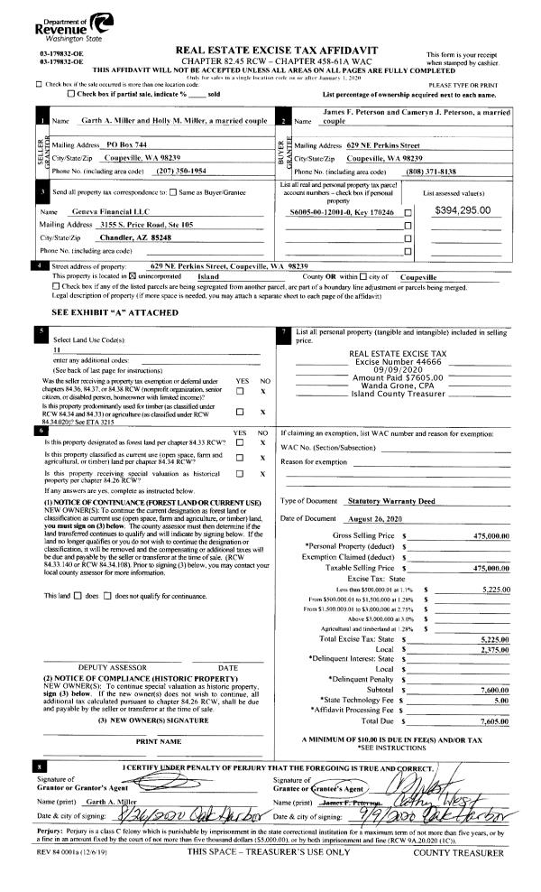
Property
Account |
| Property ID: | 805481 | Abbreviated Legal Description: | SARATOGA VIEWPOINTE #1 LOT 15 |
| Geographic ID: | S8102-00-00015-0 | Agent Code: | |
| Type: | Real | | |
| Tax Area: | 110 - APPRAISER-OH Schl Dist, outside OH, improved & 1 acre or less | Land Use Code | 11 |
| Open Space: | N | DFL | N |
| Historic Property: | N | Remodel Property: | N |
| Multi-Family Redevelopment: | N | | |
| Township: | | Section: | |
| Range: | |
Location |
| Address: | 1476 SERGIOS VIEW LN OAK HARBOR, WA 98277 | Mapsco: | |
| Neighborhood: | Cycle 6 | Map ID: | 541 |
| Neighborhood CD: | 6 |
Owner |
| Name: | ESTELLE TTEE, APRIL | Owner ID: | 314883 |
| Mailing Address: | 1476 SERGIOS VIEW OAK HARBOR, WA 98277 | % Ownership: | 100.0000000000% |
| | | Exemptions: | |
Taxes and Assessment Details
Values
| (+) Improvement Homesite Value: | + | $0 | |
| (+) Improvement Non-Homesite Value: | + | $535,364 | |
| (+) Land Homesite Value: | + | $0 | |
| (+) Land Non-Homesite Value: | + | $515,000 | |
| (+) Curr Use (HS): | + | $0 | $0 |
| (+) Curr Use (NHS): | + | $0 | $0 |
| | | -------------------------- | |
| (=) Market Value: | = | $1,050,364 | |
| (–) Productivity Loss: | – | $0 | |
| | | -------------------------- | |
| (=) Subtotal: | = | $1,050,364 | |
| (+) Senior Appraised Value: | + | $0 | |
| (+) Non-Senior Appraised Value: | + | $1,050,364 | |
| | | -------------------------- | |
| (=) Total Appraised Value: | = | $1,050,364 | |
| (–) Senior Exemption Loss: | – | $0 | |
| (–) Exemption Loss: | – | $0 | |
| | | -------------------------- | |
| (=) Taxable Value: | = | $1,050,364 | |
Taxing Jurisdiction
| Owner: | ESTELLE TTEE, APRIL | | |
| % Ownership: | 100.0000000000% | | |
| Total Value: | $1,050,364 | | |
| Tax Area: | 110 - APPRAISER-OH Schl Dist, outside OH, improved & 1 acre or less |
| CF | Conservation Futures | 0.0316035091 | $1,050,364 | $1,050,364 | $33.20 | | |
| CEM1 | Cemetery #1 | 0.0040320932 | $1,050,364 | $1,050,364 | $4.24 | | |
| FIRE2 | Fire & Rescue Dist #2 N Whidbey GEN | 0.5475949600 | $1,050,364 | $1,050,364 | $575.17 | | |
| HOBOND | Hospital BOND | 0.1910887512 | $1,050,364 | $1,050,364 | $200.71 | | |
| HOGEN | Hospital GEN | 0.3902502903 | $1,050,364 | $1,050,364 | $409.90 | | |
| CE | County Current Expense | 0.3708482477 | $1,050,364 | $1,050,364 | $389.53 | | |
| CR | County Roads | 0.4584763726 | $1,050,364 | $1,050,364 | $481.57 | | |
| ISLANDEMS | Hospital GEN (EMS) | 0.5000000000 | $1,050,364 | $1,050,364 | $525.18 | | |
| LIB | Library Sno-Isle GEN | 0.3153421757 | $1,050,364 | $1,050,364 | $331.22 | | |
| NWHIDPRMT | P & R N Whidbey GEN | 0.2004466701 | $1,050,364 | $1,050,364 | $210.54 | | |
| SCH201MO | School 201 Enrichment | 1.8559231640 | $1,050,364 | $1,050,364 | $1,949.39 | | |
| ST | State School | 1.3035497053 | $1,050,364 | $1,050,364 | $1,369.20 | | |
| ST2 | State School Part 2 | 0.8169543533 | $1,050,364 | $1,050,364 | $858.10 | | |
| | Total Tax Rate: | 6.9861102925 | | | | | |
| | | | | Taxes w/Current Exemptions: | $7,337.95 | | |
| | | | | Taxes w/o Exemptions: | $7,337.95 | | |
Improvement / Building
| Improvement #1: | RESIDENTIAL | State Code: | Y | 2234.0 sqft | Value: | $535,364 |
| Bathrooms: | 2.5 | Bedrooms: | 3 | | Ceiling: | DRYWALL PAINTED | Cooling: | HEAT PUMP/CONV/V | | Exterior Wall/Cover: | PLY/HARDBOARD T-111 | Floor Covering: | CARPET/VINYL 60-40 | | Floor Structure: | WOOD W/SUBFLOOR | Foundation: | CONCRETE | | Interior Finish: | DRYWALL PAINT | Plumbing Fixture Cnt: | 15 | | Roof Slope: | 5" IN 12" | Roof Structure/Cover: | CJ ASPHALT |
|
| | Type | Description | Class CD | Sub Class CD | Year Built | Area |
| | BAS | BASE/MAIN FLOOR | 4 | 0 | 2021 | 2234.0 |
| | AGR | ATTACHED GARAGE | 4 | 0 | 2021 | 434.0 |
| | OP4 | OPEN PORCH W/CEILING-ROOF | 4 | 0 | 2021 | 52.5 |
| | OWC | OPEN WOOD PORCH W/STEPS/ROOF/C | 4 | 0 | 2021 | 416.0 |
Sketch
Property Image
Land
| 1 | HB | HIGH BLUFF | 0.7800 | 33976.80 | 95.00 | 0.00 | 1.00 | $515,000 | $0 |
Roll Value History
| 2026 | N/A | N/A | N/A | N/A | N/A |
| 2025 | $535,364 | $515,000 | $0 | $1,050,364 | $1,050,364 |
| 2024 | $539,612 | $475,000 | $0 | $1,014,612 | $1,014,612 |
| 2023 | $545,277 | $425,000 | $0 | $970,277 | $970,277 |
| 2022 | $502,731 | $280,000 | $0 | $782,731 | $782,731 |
| 2021 | $441,212 | $275,000 | $0 | $716,212 | $716,212 |
| 2020 | $0 | $175,000 | $0 | $175,000 | $175,000 |
| 2019 | $0 | $200,000 | $0 | $200,000 | $200,000 |
| 2018 | $0 | $200,000 | $0 | $200,000 | $200,000 |
| 2017 | $0 | $200,000 | $0 | $200,000 | $200,000 |
| 2016 | $0 | $150,000 | $0 | $150,000 | $150,000 |
| 2015 | $0 | $150,000 | $0 | $150,000 | $150,000 |
| 2014 | $0 | $150,000 | $0 | $150,000 | $150,000 |
| 2013 | $0 | $152,008 | $0 | $152,008 | $152,008 |
| 2012 | $0 | $152,008 | $0 | $152,008 | $152,008 |
| 2011 | $0 | $152,008 | $0 | $152,008 | $152,008 |
| 2010 | $0 | $152,008 | $0 | $152,008 | $152,008 |
| 2009 | $0 | $176,946 | $0 | $176,946 | $176,946 |
| 2008 | $0 | $176,946 | $0 | $176,946 | $176,946 |
| 2007 | $0 | $181,917 | $0 | $181,917 | $181,917 |
Deed and Sales History
| 1 | 12/13/2024 | QCD | Quit Claim Deed | KEANEY, PATRICK | ESTELLE TTEE, APRIL | | | $0.00 | 62099 | 4580462 |
| 2 | 03/10/2021 | WD | Warranty Deed | SARATOGA VIEWPOINTE, LLC | KEANEY, PATRICK | | | $829,950.00 | 47550 | 4514989 |
| 3 | 09/23/2019 | SPWARDEED | Special Warranty Deed | VILLARREAL, GILBERT | SARATOGA VIEWPOINTE, LLC | | | $0.00 | 40396 | 4471951 |
| 4 | 10/20/2003 | WD | Warranty Deed | MASSEY, W L | VILLARREAL, GILBERT | | | $122,990.00 | 34754 | 4079972 |
| 5 | 01/01/1900 | OTHER | Other - Misc. Documents | Unknown | MASSEY, W L | | | $0.00 | 0 | 0 |
Payout Agreement
| No payout information available.. |