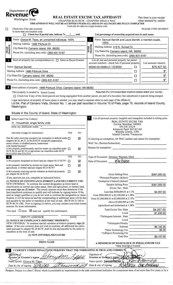
Property
Account |
| Property ID: | 805482 | Abbreviated Legal Description: | SARATOGA VIEWPOINTE #1 LOT 16 |
| Geographic ID: | S8102-00-00016-0 | Agent Code: | |
| Type: | Real | | |
| Tax Area: | 110 - APPRAISER-OH Schl Dist, outside OH, improved & 1 acre or less | Land Use Code | 11 |
| Open Space: | N | DFL | N |
| Historic Property: | N | Remodel Property: | N |
| Multi-Family Redevelopment: | N | | |
| Township: | | Section: | |
| Range: | |
Location |
| Address: | 1480 SERGIOS VIEW LN OAK HARBOR, WA 98277 | Mapsco: | |
| Neighborhood: | Cycle 6 | Map ID: | 541 |
| Neighborhood CD: | 6 |
Owner |
| Name: | YAW, PERRY DAVID | Owner ID: | 298738 |
| Mailing Address: | KRISTEN VIRGINIA KANE SWENSON 1480 SERGIOS LANE OAK HARBOR, WA 98277 | % Ownership: | 100.0000000000% |
| | | Exemptions: | |
Taxes and Assessment Details
Values
| (+) Improvement Homesite Value: | + | $0 | |
| (+) Improvement Non-Homesite Value: | + | $575,463 | |
| (+) Land Homesite Value: | + | $0 | |
| (+) Land Non-Homesite Value: | + | $515,000 | |
| (+) Curr Use (HS): | + | $0 | $0 |
| (+) Curr Use (NHS): | + | $0 | $0 |
| | | -------------------------- | |
| (=) Market Value: | = | $1,090,463 | |
| (–) Productivity Loss: | – | $0 | |
| | | -------------------------- | |
| (=) Subtotal: | = | $1,090,463 | |
| (+) Senior Appraised Value: | + | $0 | |
| (+) Non-Senior Appraised Value: | + | $1,090,463 | |
| | | -------------------------- | |
| (=) Total Appraised Value: | = | $1,090,463 | |
| (–) Senior Exemption Loss: | – | $0 | |
| (–) Exemption Loss: | – | $0 | |
| | | -------------------------- | |
| (=) Taxable Value: | = | $1,090,463 | |
Taxing Jurisdiction
| Owner: | YAW, PERRY DAVID | | |
| % Ownership: | 100.0000000000% | | |
| Total Value: | $1,090,463 | | |
| Tax Area: | 110 - APPRAISER-OH Schl Dist, outside OH, improved & 1 acre or less |
| CF | Conservation Futures | 0.0316035091 | $1,090,463 | $1,090,463 | $34.46 | | |
| CEM1 | Cemetery #1 | 0.0040320932 | $1,090,463 | $1,090,463 | $4.40 | | |
| FIRE2 | Fire & Rescue Dist #2 N Whidbey GEN | 0.5475949600 | $1,090,463 | $1,090,463 | $597.13 | | |
| HOBOND | Hospital BOND | 0.1910887512 | $1,090,463 | $1,090,463 | $208.38 | | |
| HOGEN | Hospital GEN | 0.3902502903 | $1,090,463 | $1,090,463 | $425.55 | | |
| CE | County Current Expense | 0.3708482477 | $1,090,463 | $1,090,463 | $404.40 | | |
| CR | County Roads | 0.4584763726 | $1,090,463 | $1,090,463 | $499.95 | | |
| ISLANDEMS | Hospital GEN (EMS) | 0.5000000000 | $1,090,463 | $1,090,463 | $545.23 | | |
| LIB | Library Sno-Isle GEN | 0.3153421757 | $1,090,463 | $1,090,463 | $343.87 | | |
| NWHIDPRMT | P & R N Whidbey GEN | 0.2004466701 | $1,090,463 | $1,090,463 | $218.58 | | |
| SCH201MO | School 201 Enrichment | 1.8559231640 | $1,090,463 | $1,090,463 | $2,023.82 | | |
| ST | State School | 1.3035497053 | $1,090,463 | $1,090,463 | $1,421.47 | | |
| ST2 | State School Part 2 | 0.8169543533 | $1,090,463 | $1,090,463 | $890.86 | | |
| | Total Tax Rate: | 6.9861102925 | | | | | |
| | | | | Taxes w/Current Exemptions: | $7,618.10 | | |
| | | | | Taxes w/o Exemptions: | $7,618.10 | | |
Improvement / Building
| Improvement #1: | RESIDENTIAL | State Code: | Y | 2988.0 sqft | Value: | $575,463 |
| Bathrooms: | 2.5 | Bedrooms: | 3 | | Ceiling: | DRYWALL PAINTED | Cooling: | HEAT PUMP/CONV/V | | Exterior Wall/Cover: | PLY/HARDBOARD T-111 | Floor Covering: | CARPET/VINYL 60-40 | | Floor Structure: | WOOD W/SUBFLOOR | Foundation: | CONCRETE | | Interior Finish: | DRYWALL PAINT | Plumbing Fixture Cnt: | 14 | | Roof Slope: | 6" IN 12" | Roof Structure/Cover: | CJ ASPHALT |
|
| | Type | Description | Class CD | Sub Class CD | Year Built | Area |
| | BAS | BASE/MAIN FLOOR | 4 | 0 | 2021 | 1861.7 |
| | AGR | ATTACHED GARAGE | 4 | 0 | 2021 | 425.5 |
| | DWN | DOWNSTAIRS LIVING AREA | 4 | 0 | 2021 | 1126.3 |
| | OP1 | OPEN PORCH SLAB | 4 | 0 | 2021 | 249.8 |
| | OWC | OPEN WOOD PORCH W/STEPS/ROOF/C | 4 | 0 | 2021 | 249.8 |
| | OP4 | OPEN PORCH W/CEILING-ROOF | 4 | 0 | 2021 | 54.0 |
| | UB8 | BASEMENT UNFINISHED 8" | 4 | 0 | 2021 | 148.0 |
Sketch
Property Image
Land
| 1 | HB | HIGH BLUFF | 0.7800 | 33976.80 | 95.00 | 0.00 | 1.00 | $515,000 | $0 |
Roll Value History
| 2026 | N/A | N/A | N/A | N/A | N/A |
| 2025 | $575,463 | $515,000 | $0 | $1,090,463 | $1,090,463 |
| 2024 | $580,031 | $475,000 | $0 | $1,055,031 | $1,055,031 |
| 2023 | $586,119 | $425,000 | $0 | $1,011,119 | $1,011,119 |
| 2022 | $515,019 | $280,000 | $0 | $795,019 | $795,019 |
| 2021 | $456,985 | $275,000 | $0 | $731,985 | $731,985 |
| 2020 | $0 | $175,000 | $0 | $175,000 | $175,000 |
| 2019 | $0 | $200,000 | $0 | $200,000 | $200,000 |
| 2018 | $0 | $200,000 | $0 | $200,000 | $200,000 |
| 2017 | $0 | $200,000 | $0 | $200,000 | $200,000 |
| 2016 | $0 | $150,000 | $0 | $150,000 | $150,000 |
| 2015 | $0 | $150,000 | $0 | $150,000 | $150,000 |
| 2014 | $0 | $150,000 | $0 | $150,000 | $150,000 |
| 2013 | $0 | $152,008 | $0 | $152,008 | $152,008 |
| 2012 | $0 | $152,008 | $0 | $152,008 | $152,008 |
| 2011 | $0 | $152,008 | $0 | $152,008 | $152,008 |
| 2010 | $0 | $152,008 | $0 | $152,008 | $152,008 |
| 2009 | $0 | $176,946 | $0 | $176,946 | $176,946 |
| 2008 | $0 | $176,946 | $0 | $176,946 | $176,946 |
| 2007 | $0 | $181,917 | $0 | $181,917 | $181,917 |
Deed and Sales History
| 1 | 03/17/2021 | WD | Warranty Deed | SARATOGA VIEWPOINTE, LLC | YAW, PERRY DAVID | | | $707,900.00 | 47592 | 4515222 |
| 2 | 09/23/2019 | SPWARDEED | Special Warranty Deed | VILLARREAL, GILBERT | SARATOGA VIEWPOINTE, LLC | | | $0.00 | 40396 | 4471951 |
| 3 | 10/20/2003 | WD | Warranty Deed | MASSEY, W L | VILLARREAL, GILBERT | | | $122,990.00 | 34754 | 4079972 |
| 4 | 01/01/1900 | OTHER | Other - Misc. Documents | Unknown | MASSEY, W L | | | $0.00 | 0 | 0 |
Payout Agreement
| No payout information available.. |