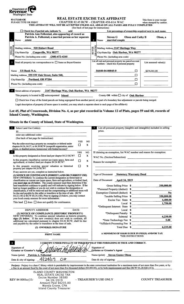
Property
Account |
| Property ID: | 805523 | Abbreviated Legal Description: | LOT 2 SP 124-99.22909.207-1600 V4 SP P20 AF#4085687 |
| Geographic ID: | R22909-208-1550 | Agent Code: | |
| Type: | Real | | |
| Tax Area: | 712 - APPRAISER-S Whid Schl Dist, outside Langley, improved, greater than 1 acre | Land Use Code | 11 |
| Open Space: | N | DFL | N |
| Historic Property: | N | Remodel Property: | N |
| Multi-Family Redevelopment: | N | | |
| Township: | 29 | Section: | 09 |
| Range: | R2 |
Location |
| Address: | 920 BUSH POINT RD FREELAND, WA 98249 | Mapsco: | |
| Neighborhood: | Cycle 3 | Map ID: | 305 |
| Neighborhood CD: | 3 |
Owner |
| Name: | ANDERSON, PATRICIA E S | Owner ID: | 294778 |
| Mailing Address: | MICHAEL D W ANDERSON 5775 MENLO BEACH LN FREELAND, WA 98249 | % Ownership: | 100.0000000000% |
| | | Exemptions: | |
Taxes and Assessment Details
Values
| (+) Improvement Homesite Value: | + | $0 | |
| (+) Improvement Non-Homesite Value: | + | $197,400 | |
| (+) Land Homesite Value: | + | $0 | |
| (+) Land Non-Homesite Value: | + | $380,000 | |
| (+) Curr Use (HS): | + | $0 | $0 |
| (+) Curr Use (NHS): | + | $0 | $0 |
| | | -------------------------- | |
| (=) Market Value: | = | $577,400 | |
| (–) Productivity Loss: | – | $0 | |
| | | -------------------------- | |
| (=) Subtotal: | = | $577,400 | |
| (+) Senior Appraised Value: | + | $0 | |
| (+) Non-Senior Appraised Value: | + | $577,400 | |
| | | -------------------------- | |
| (=) Total Appraised Value: | = | $577,400 | |
| (–) Senior Exemption Loss: | – | $0 | |
| (–) Exemption Loss: | – | $0 | |
| | | -------------------------- | |
| (=) Taxable Value: | = | $577,400 | |
Taxing Jurisdiction
| Owner: | ANDERSON, PATRICIA E S | | |
| % Ownership: | 100.0000000000% | | |
| Total Value: | $577,400 | | |
| Tax Area: | 712 - APPRAISER-S Whid Schl Dist, outside Langley, improved, greater than 1 acre |
| CF | Conservation Futures | 0.0316035091 | $577,400 | $577,400 | $18.25 | | |
| FIRE3 | Fire & Rescue Dist #3 S Whidbey GEN | 1.2004855531 | $577,400 | $577,400 | $693.16 | | |
| HOBOND | Hospital BOND | 0.1910887512 | $577,400 | $577,400 | $110.33 | | |
| HOGEN | Hospital GEN | 0.3902502903 | $577,400 | $577,400 | $225.33 | | |
| CE | County Current Expense | 0.3708482477 | $577,400 | $577,400 | $214.13 | | |
| CR | County Roads | 0.4584763726 | $577,400 | $577,400 | $264.72 | | |
| ISLANDEMS | Hospital GEN (EMS) | 0.5000000000 | $577,400 | $577,400 | $288.70 | | |
| LIB | Library Sno-Isle GEN | 0.3153421757 | $577,400 | $577,400 | $182.08 | | |
| PORTWHID | Port of S Whidbey GEN | 0.1094540357 | $577,400 | $577,400 | $63.20 | | |
| SCH206BOND | School 206 BOND | 0.3161759235 | $577,400 | $577,400 | $182.56 | | |
| SCH206MO | School 206 Enrichment | 0.4547169547 | $577,400 | $577,400 | $262.55 | | |
| ST | State School | 1.3035497053 | $577,400 | $577,400 | $752.67 | | |
| ST2 | State School Part 2 | 0.8169543533 | $577,400 | $577,400 | $471.71 | | |
| SWHIDPRBD | P & R S Whidbey BOND | 0.0152817568 | $577,400 | $577,400 | $8.82 | | |
| SWHIDPRBD2 | P & R S Whidbey BOND2 | 0.0138911264 | $577,400 | $577,400 | $8.02 | | |
| SWHIDPRMT | P & R S Whidbey GEN | 0.2053334452 | $577,400 | $577,400 | $118.56 | | |
| | Total Tax Rate: | 6.6934522006 | | | | | |
| | | | | Taxes w/Current Exemptions: | $3,864.79 | | |
| | | | | Taxes w/o Exemptions: | $3,864.79 | | |
Improvement / Building
| Improvement #1: | RESIDENTIAL | State Code: | Y | 396.0 sqft | Value: | $197,400 |
| Bathrooms: | 1 | Bedrooms: | 1 | | Ceiling: | DRYWALL PAINTED | Exterior Wall/Cover: | WOOD SIDING | | Floor Covering: | CARPET/VINYL 60-40 | Floor Structure: | SLAB ON GRADE | | Foundation: | SLAB/CONCRETE | Heating: | WALL HEAT ELECTRIC | | Interior Finish: | DRYWALL PAINT | Plumbing Fixture Cnt: | 6 | | Roof Slope: | 4" IN 12" | Roof Structure/Cover: | CJ WOOD SHAKES |
|
| | Type | Description | Class CD | Sub Class CD | Year Built | Area |
| | BAS | BASE/MAIN FLOOR | 3 | 0 | 1990 | 396.0 |
| | UTY | STORAGE/UTILITY | 3 | 0 | 1913 | 2860.0 |
| | OP4 | OPEN PORCH W/CEILING-ROOF | 3 | 0 | 1990 | 48.0 |
Sketch
Property Image
Land
| 1 | 32 | AC (03.01-09.99) | 3.3300 | 145054.80 | 0.00 | 0.00 | 1.00 | $380,000 | $0 |
Roll Value History
| 2026 | N/A | N/A | N/A | N/A | N/A |
| 2025 | $197,400 | $380,000 | $0 | $577,400 | $577,400 |
| 2024 | $200,095 | $360,000 | $0 | $560,095 | $560,095 |
| 2023 | $202,790 | $330,000 | $0 | $532,790 | $532,790 |
| 2022 | $186,066 | $280,000 | $0 | $466,066 | $466,066 |
| 2021 | $163,909 | $200,000 | $0 | $363,909 | $363,909 |
| 2020 | $158,605 | $200,000 | $0 | $358,605 | $358,605 |
| 2019 | $107,384 | $200,000 | $0 | $307,384 | $307,384 |
| 2018 | $40,000 | $250,000 | $0 | $290,000 | $290,000 |
| 2017 | $40,000 | $250,000 | $0 | $290,000 | $290,000 |
| 2016 | $40,000 | $250,000 | $0 | $290,000 | $290,000 |
| 2015 | $40,000 | $200,000 | $0 | $240,000 | $240,000 |
| 2014 | $40,000 | $200,000 | $0 | $240,000 | $240,000 |
| 2013 | $30,000 | $150,000 | $0 | $180,000 | $180,000 |
| 2012 | $40,473 | $138,706 | $0 | $179,179 | $179,179 |
| 2011 | $40,473 | $163,184 | $0 | $203,657 | $203,657 |
| 2010 | $40,473 | $163,184 | $0 | $203,657 | $203,657 |
| 2009 | $40,775 | $201,816 | $0 | $242,591 | $242,591 |
| 2008 | $41,083 | $256,816 | $0 | $297,899 | $297,899 |
| 2007 | $41,265 | $250,116 | $0 | $291,381 | $291,381 |
Deed and Sales History
| 1 | 06/10/2020 | WD | Warranty Deed | STERNER, SIGNE | ANDERSON, PATRICIA E S | | | $1,050,000.00 | 43407 | 4489046 |
|   | |
| 2 | 08/10/2018 | WD | Warranty Deed | ADAMS, JAMES R | STERNER, SIGNE | | | $700,000.00 | 35531 | 4450138 |
|   | |
| 3 | 01/01/1900 | OTHER | Other - Misc. Documents | Unknown | ADAMS, JAMES R | | | $0.00 | 0 | 0 |
Payout Agreement
| No payout information available.. |