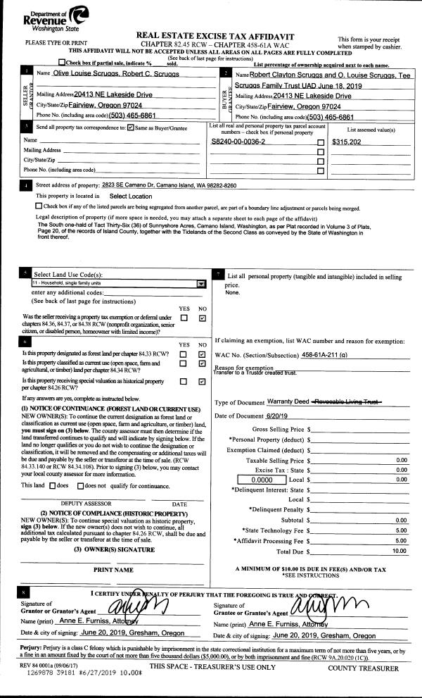
Property
Account |
| Property ID: | 805526 | Abbreviated Legal Description: | LOT 2 SP 374-03.32922.167-5050 V4 SP P22-23 AF#4087399 |
| Geographic ID: | R32922-167-4960 | Agent Code: | |
| Type: | Real | | |
| Tax Area: | 712 - APPRAISER-S Whid Schl Dist, outside Langley, improved, greater than 1 acre | Land Use Code | 11 |
| Open Space: | N | DFL | N |
| Historic Property: | N | Remodel Property: | N |
| Multi-Family Redevelopment: | N | | |
| Township: | 29 | Section: | 22 |
| Range: | R3 |
Location |
| Address: | 6278 CULTUS BAY RD CLINTON, WA 98236 | Mapsco: | |
| Neighborhood: | Cycle 4 | Map ID: | 800 |
| Neighborhood CD: | 4 |
Owner |
| Name: | HARDIN, DENNIS L | Owner ID: | 291332 |
| Mailing Address: | MARIA E HARDIN 6278 CULTUS BAY RD CLINTON, WA 98236 | % Ownership: | 100.0000000000% |
| | | Exemptions: | |
Taxes and Assessment Details
Values
| (+) Improvement Homesite Value: | + | $0 | |
| (+) Improvement Non-Homesite Value: | + | $704,584 | |
| (+) Land Homesite Value: | + | $0 | |
| (+) Land Non-Homesite Value: | + | $370,000 | |
| (+) Curr Use (HS): | + | $0 | $0 |
| (+) Curr Use (NHS): | + | $0 | $0 |
| | | -------------------------- | |
| (=) Market Value: | = | $1,074,584 | |
| (–) Productivity Loss: | – | $0 | |
| | | -------------------------- | |
| (=) Subtotal: | = | $1,074,584 | |
| (+) Senior Appraised Value: | + | $0 | |
| (+) Non-Senior Appraised Value: | + | $1,074,584 | |
| | | -------------------------- | |
| (=) Total Appraised Value: | = | $1,074,584 | |
| (–) Senior Exemption Loss: | – | $0 | |
| (–) Exemption Loss: | – | $0 | |
| | | -------------------------- | |
| (=) Taxable Value: | = | $1,074,584 | |
Taxing Jurisdiction
| Owner: | HARDIN, DENNIS L | | |
| % Ownership: | 100.0000000000% | | |
| Total Value: | $1,074,584 | | |
| Tax Area: | 712 - APPRAISER-S Whid Schl Dist, outside Langley, improved, greater than 1 acre |
| CF | Conservation Futures | 0.0316035091 | $1,074,584 | $1,074,584 | $33.96 | | |
| FIRE3 | Fire & Rescue Dist #3 S Whidbey GEN | 1.2004855531 | $1,074,584 | $1,074,584 | $1,290.02 | | |
| HOBOND | Hospital BOND | 0.1910887512 | $1,074,584 | $1,074,584 | $205.34 | | |
| HOGEN | Hospital GEN | 0.3902502903 | $1,074,584 | $1,074,584 | $419.36 | | |
| CE | County Current Expense | 0.3708482477 | $1,074,584 | $1,074,584 | $398.51 | | |
| CR | County Roads | 0.4584763726 | $1,074,584 | $1,074,584 | $492.67 | | |
| ISLANDEMS | Hospital GEN (EMS) | 0.5000000000 | $1,074,584 | $1,074,584 | $537.29 | | |
| LIB | Library Sno-Isle GEN | 0.3153421757 | $1,074,584 | $1,074,584 | $338.86 | | |
| PORTWHID | Port of S Whidbey GEN | 0.1094540357 | $1,074,584 | $1,074,584 | $117.62 | | |
| SCH206BOND | School 206 BOND | 0.3161759235 | $1,074,584 | $1,074,584 | $339.76 | | |
| SCH206MO | School 206 Enrichment | 0.4547169547 | $1,074,584 | $1,074,584 | $488.63 | | |
| ST | State School | 1.3035497053 | $1,074,584 | $1,074,584 | $1,400.77 | | |
| ST2 | State School Part 2 | 0.8169543533 | $1,074,584 | $1,074,584 | $877.89 | | |
| SWHIDPRBD | P & R S Whidbey BOND | 0.0152817568 | $1,074,584 | $1,074,584 | $16.42 | | |
| SWHIDPRBD2 | P & R S Whidbey BOND2 | 0.0138911264 | $1,074,584 | $1,074,584 | $14.93 | | |
| SWHIDPRMT | P & R S Whidbey GEN | 0.2053334452 | $1,074,584 | $1,074,584 | $220.65 | | |
| | Total Tax Rate: | 6.6934522006 | | | | | |
| | | | | Taxes w/Current Exemptions: | $7,192.68 | | |
| | | | | Taxes w/o Exemptions: | $7,192.68 | | |
Improvement / Building
| Improvement #1: | RESIDENTIAL | State Code: | Y | 3052.6 sqft | Value: | $704,584 |
| Bathrooms: | 2.75 | Bedrooms: | 2 | | Ceiling: | TONGUE & GROOVE | Exterior Wall/Cover: | WOOD SIDING | | Floor Covering: | HARDWOOD/CARP 60-40 | Floor Structure: | WOOD W/SUBFLOOR | | Foundation: | CONCRETE | Heating: | WALL HEAT ELECTRIC | | Interior Finish: | DRYWALL PAINT | Plumbing Fixture Cnt: | 13 | | Roof Slope: | 8" IN 12" | Roof Structure/Cover: | BEAM ASPHALT |
|
| | Type | Description | Class CD | Sub Class CD | Year Built | Area |
| | BAS | BASE/MAIN FLOOR | 4 | 0 | 2005 | 3052.6 |
| | OP1 | OPEN PORCH SLAB | 4 | 0 | 2005 | 742.6 |
| | OP1 | OPEN PORCH SLAB | 4 | 0 | 2005 | 312.0 |
| | AGR | ATTACHED GARAGE | 4 | 0 | 2005 | 988.0 |
| | OWP | OPEN WOOD PORCH W/STEPS | 4 | 0 | 2005 | 1897.8 |
| | OWC | OPEN WOOD PORCH W/STEPS/ROOF/C | 4 | 0 | 2005 | 25.5 |
| | OWC | OPEN WOOD PORCH W/STEPS/ROOF/C | 4 | 0 | 2005 | 120.0 |
| | oUTI | UTILITY | 4 | 0 | 2005 | 80.0 |
Sketch
Property Image
Land
| 1 | 32 | AC (03.01-09.99) | 4.8600 | 0.00 | 0.00 | 0.00 | 1.00 | $370,000 | $0 |
Roll Value History
| 2026 | N/A | N/A | N/A | N/A | N/A |
| 2025 | $704,584 | $370,000 | $0 | $1,074,584 | $1,074,584 |
| 2024 | $712,837 | $350,000 | $0 | $1,062,837 | $1,062,837 |
| 2023 | $721,089 | $330,000 | $0 | $1,051,089 | $1,051,089 |
| 2022 | $660,505 | $280,000 | $0 | $940,505 | $940,505 |
| 2021 | $580,976 | $230,000 | $0 | $810,976 | $810,976 |
| 2020 | $550,812 | $190,000 | $0 | $740,812 | $740,812 |
| 2019 | $424,719 | $250,000 | $0 | $674,719 | $674,719 |
| 2018 | $425,905 | $210,000 | $0 | $635,905 | $635,905 |
| 2017 | $428,280 | $190,000 | $0 | $618,280 | $618,280 |
| 2016 | $433,027 | $165,000 | $0 | $598,027 | $598,027 |
| 2015 | $437,774 | $135,000 | $0 | $572,774 | $572,774 |
| 2014 | $435,339 | $155,520 | $0 | $590,859 | $590,859 |
| 2013 | $440,155 | $155,520 | $0 | $595,675 | $595,675 |
| 2012 | $444,971 | $155,520 | $0 | $600,491 | $600,491 |
| 2011 | $449,787 | $155,520 | $0 | $605,307 | $605,307 |
| 2010 | $458,370 | $155,520 | $0 | $613,890 | $613,890 |
| 2009 | $472,568 | $213,840 | $0 | $686,408 | $686,408 |
| 2008 | $468,125 | $186,624 | $0 | $654,749 | $654,749 |
| 2007 | $472,988 | $186,624 | $0 | $659,612 | $659,612 |
Deed and Sales History
| 1 | 08/07/2019 | WD | Warranty Deed | BREITENSTEIN, KEY | HARDIN, DENNIS L | | | $765,000.00 | 39845 | 4469308 |
| 2 | 02/25/2004 | WD | Warranty Deed | BREITENSTEIN, KEY | BREITENSTEIN, KEY | | | $0.00 | 43027 | 4106117 |
| 3 | 02/25/2004 | WD | Warranty Deed | BAKER, NORMAN E | BREITENSTEIN, KEY | | | $100,000.00 | 40759 | 4092657 |
| 4 | 01/01/1900 | OTHER | Other - Misc. Documents | Unknown | BAKER, NORMAN E | | | $0.00 | 0 | 0 |
Payout Agreement
| No payout information available.. |