Property
Account |
| Property ID: | 805554 | Abbreviated Legal Description: | CHERRY HILL #6 LOT 99 |
| Geographic ID: | S6368-06-00099-0 | Agent Code: | |
| Type: | Real | | |
| Tax Area: | 100 - APPRAISER-OH Schl Dist, in OH | Land Use Code | 11 |
| Open Space: | N | DFL | N |
| Historic Property: | N | Remodel Property: | N |
| Multi-Family Redevelopment: | N | | |
| Township: | | Section: | |
| Range: | |
Location |
| Address: | 496 NW 12TH LOOP OAK HARBOR, WA 98277 | Mapsco: | |
| Neighborhood: | Cycle 1 | Map ID: | 255 |
| Neighborhood CD: | 1 |
Owner |
| Name: | ALSBURY, YVONNE | Owner ID: | 315810 |
| Mailing Address: | 496 NW 12TH LOOP OAK HARBOR, WA 98277 | % Ownership: | 100.0000000000% |
| | | Exemptions: | |
Taxes and Assessment Details
Values
| (+) Improvement Homesite Value: | + | $0 | |
| (+) Improvement Non-Homesite Value: | + | $274,115 | |
| (+) Land Homesite Value: | + | $0 | |
| (+) Land Non-Homesite Value: | + | $140,000 | |
| (+) Curr Use (HS): | + | $0 | $0 |
| (+) Curr Use (NHS): | + | $0 | $0 |
| | | -------------------------- | |
| (=) Market Value: | = | $414,115 | |
| (–) Productivity Loss: | – | $0 | |
| | | -------------------------- | |
| (=) Subtotal: | = | $414,115 | |
| (+) Senior Appraised Value: | + | $0 | |
| (+) Non-Senior Appraised Value: | + | $414,115 | |
| | | -------------------------- | |
| (=) Total Appraised Value: | = | $414,115 | |
| (–) Senior Exemption Loss: | – | $0 | |
| (–) Exemption Loss: | – | $0 | |
| | | -------------------------- | |
| (=) Taxable Value: | = | $414,115 | |
Taxing Jurisdiction
| Owner: | ALSBURY, YVONNE | | |
| % Ownership: | 100.0000000000% | | |
| Total Value: | $414,115 | | |
| Tax Area: | 100 - APPRAISER-OH Schl Dist, in OH |
| CF | Conservation Futures | 0.0316035091 | $414,115 | $414,115 | $13.09 | | |
| CEM1 | Cemetery #1 | 0.0040320932 | $414,115 | $414,115 | $1.67 | | |
| COH | City of Oak Harbor | 2.3001546061 | $414,115 | $414,115 | $952.53 | | |
| OAKBOND | City of Oak Harbor BOND | 0.1926904192 | $414,115 | $414,115 | $79.80 | | |
| HOBOND | Hospital BOND | 0.1910887512 | $414,115 | $414,115 | $79.13 | | |
| HOGEN | Hospital GEN | 0.3902502903 | $414,115 | $414,115 | $161.61 | | |
| CE | County Current Expense | 0.3708482477 | $414,115 | $414,115 | $153.57 | | |
| ISLANDEMS | Hospital GEN (EMS) | 0.5000000000 | $414,115 | $414,115 | $207.06 | | |
| LIB | Library Sno-Isle GEN | 0.3153421757 | $414,115 | $414,115 | $130.59 | | |
| NWHIDPRMT | P & R N Whidbey GEN | 0.2004466701 | $414,115 | $414,115 | $83.01 | | |
| SCH201MO | School 201 Enrichment | 1.8559231640 | $414,115 | $414,115 | $768.57 | | |
| ST | State School | 1.3035497053 | $414,115 | $414,115 | $539.82 | | |
| ST2 | State School Part 2 | 0.8169543533 | $414,115 | $414,115 | $338.31 | | |
| | Total Tax Rate: | 8.4728839852 | | | | | |
| | | | | Taxes w/Current Exemptions: | $3,508.76 | | |
| | | | | Taxes w/o Exemptions: | $3,508.76 | | |
Improvement / Building
| Improvement #1: | RESIDENTIAL | State Code: | Y | 1367.0 sqft | Value: | $274,115 |
| Bathrooms: | 1.75 | Bedrooms: | 2 | | Ceiling: | DRYWALL PAINTED | Exterior Wall/Cover: | CEMENT FIBER | | Floor Covering: | CARPET/VINYL 80-20 | Floor Structure: | WOOD W/SUBFLOOR | | Foundation: | CONCRETE | Heating: | FHA GAS | | Interior Finish: | DRYWALL PAINT | Plumbing Fixture Cnt: | 9 | | Roof Slope: | 6" IN 12" | Roof Structure/Cover: | CJ ASPHALT |
|
| | Type | Description | Class CD | Sub Class CD | Year Built | Area |
| | BAS | BASE/MAIN FLOOR | 3 | 0 | 2004 | 1367.0 |
| | OP4 | OPEN PORCH W/CEILING-ROOF | 3 | 0 | 2004 | 133.8 |
| | AGR | ATTACHED GARAGE | 3 | 0 | 2004 | 537.2 |
| | OWP | OPEN WOOD PORCH W/STEPS | 3 | 0 | 2004 | 120.8 |
Sketch
Property Image
Land
| 1 | 12 | SQ (00000-06000) | 0.0000 | 0.00 | 0.00 | 0.00 | 1.00 | $140,000 | $0 |
Roll Value History
| 2026 | N/A | N/A | N/A | N/A | N/A |
| 2025 | $274,115 | $140,000 | $0 | $414,115 | $414,115 |
| 2024 | $270,974 | $140,000 | $0 | $410,974 | $410,974 |
| 2023 | $267,833 | $140,000 | $0 | $407,833 | $407,833 |
| 2022 | $245,372 | $160,000 | $0 | $405,372 | $405,372 |
| 2021 | $215,839 | $80,000 | $0 | $295,839 | $295,839 |
| 2020 | $210,037 | $70,000 | $0 | $280,037 | $280,037 |
| 2019 | $151,126 | $110,000 | $0 | $261,126 | $261,126 |
| 2018 | $151,549 | $95,000 | $0 | $246,549 | $246,549 |
| 2017 | $142,618 | $70,000 | $0 | $212,618 | $72,374 |
| 2016 | $144,278 | $45,000 | $0 | $189,278 | $72,374 |
| 2015 | $145,934 | $35,000 | $0 | $180,934 | $72,374 |
| 2014 | $147,593 | $35,000 | $0 | $182,593 | $182,593 |
| 2013 | $149,252 | $35,000 | $0 | $184,252 | $184,252 |
| 2012 | $150,910 | $35,000 | $0 | $185,910 | $185,910 |
| 2011 | $158,174 | $35,000 | $0 | $193,174 | $193,174 |
| 2010 | $162,202 | $35,000 | $0 | $197,202 | $197,202 |
| 2009 | $170,713 | $55,000 | $0 | $225,713 | $225,713 |
| 2008 | $170,758 | $42,000 | $0 | $212,758 | $212,758 |
| 2007 | $172,552 | $42,000 | $0 | $214,552 | $214,552 |
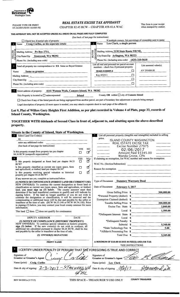
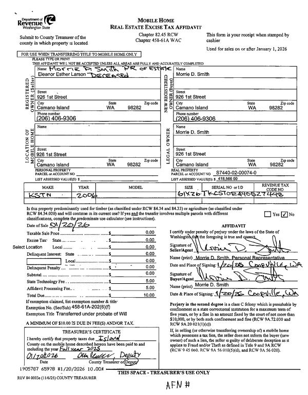
Deed and Sales History
| 1 | 03/06/2025 | WD | Warranty Deed | WICHMANAN, VIRGINIA | ALSBURY, YVONNE | | | $485,000.00 | 62831 | 4583327 |
| 2 | 03/06/2025 | LACPROBATE | Lack of Probate | HARALA, JEFFREY J | WICHMANAN, VIRGINIA | | | $0.00 | 62830 | 4583326 |
| 3 | 02/06/2017 | QCD | Quit Claim Deed | WICHMAN, VIRGINIA | WICHMAN, VIRGINIA | | | $50,000.00 | 28104 | 4417228 |
| 4 | 02/19/2016 | PRD | Personal Representatives Deed | WEFEL, ANDREW A | WICHMAN, VIRGINIA | | | $23,502.00 | 23253 | 4394616 |
| 5 | 05/14/2015 | WD | Warranty Deed | BITTNER, JACK | WEFEL, ANDREW A | | | $206,500.00 | 19620 | 4378709 |
| 6 | 10/04/2013 | WD | Warranty Deed | WEIBLE, HERBERT E | BITTNER, JACK | | | $163,000.00 | 13051 | 4349297 |
| 7 | 06/02/2004 | WD | Warranty Deed | FAKKEMA HOMES INC, | WEIBLE, HERBERT E | | | $168,900.00 | 42380 | 4102456 |
| 8 | 01/01/1900 | OTHER | Other - Misc. Documents | Unknown | FAKKEMA HOMES INC, | | | $0.00 | 0 | 0 |
Payout Agreement
| No payout information available.. |