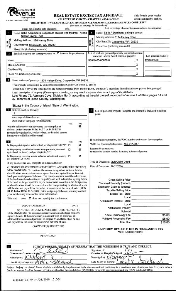
Property
Account |
| Property ID: | 805556 | Abbreviated Legal Description: | CHERRY HILL #6 LOT 101 |
| Geographic ID: | S6368-06-00101-0 | Agent Code: | |
| Type: | Real | | |
| Tax Area: | 100 - APPRAISER-OH Schl Dist, in OH | Land Use Code | 11 |
| Open Space: | N | DFL | N |
| Historic Property: | N | Remodel Property: | N |
| Multi-Family Redevelopment: | N | | |
| Township: | | Section: | |
| Range: | |
Location |
| Address: | 509 NW 12TH LOOP OAK HARBOR, WA 98277 | Mapsco: | |
| Neighborhood: | Cycle 1 | Map ID: | 255 |
| Neighborhood CD: | 1 |
Owner |
| Name: | HOSKINS, DONALD ROBERT | Owner ID: | 284131 |
| Mailing Address: | CYNTHIA MARIE HOSKINS 2990 SW SCENIC HEIGHTS OAK HARBOR, WA 98277 | % Ownership: | 100.0000000000% |
| | | Exemptions: | |
Taxes and Assessment Details
Values
| (+) Improvement Homesite Value: | + | $0 | |
| (+) Improvement Non-Homesite Value: | + | $291,561 | |
| (+) Land Homesite Value: | + | $0 | |
| (+) Land Non-Homesite Value: | + | $140,000 | |
| (+) Curr Use (HS): | + | $0 | $0 |
| (+) Curr Use (NHS): | + | $0 | $0 |
| | | -------------------------- | |
| (=) Market Value: | = | $431,561 | |
| (–) Productivity Loss: | – | $0 | |
| | | -------------------------- | |
| (=) Subtotal: | = | $431,561 | |
| (+) Senior Appraised Value: | + | $0 | |
| (+) Non-Senior Appraised Value: | + | $431,561 | |
| | | -------------------------- | |
| (=) Total Appraised Value: | = | $431,561 | |
| (–) Senior Exemption Loss: | – | $0 | |
| (–) Exemption Loss: | – | $0 | |
| | | -------------------------- | |
| (=) Taxable Value: | = | $431,561 | |
Taxing Jurisdiction
| Owner: | HOSKINS, DONALD ROBERT | | |
| % Ownership: | 100.0000000000% | | |
| Total Value: | $431,561 | | |
| Tax Area: | 100 - APPRAISER-OH Schl Dist, in OH |
| CF | Conservation Futures | 0.0316035091 | $431,561 | $431,561 | $13.64 | | |
| CEM1 | Cemetery #1 | 0.0040320932 | $431,561 | $431,561 | $1.74 | | |
| COH | City of Oak Harbor | 2.3001546061 | $431,561 | $431,561 | $992.66 | | |
| OAKBOND | City of Oak Harbor BOND | 0.1926904192 | $431,561 | $431,561 | $83.16 | | |
| HOBOND | Hospital BOND | 0.1910887512 | $431,561 | $431,561 | $82.47 | | |
| HOGEN | Hospital GEN | 0.3902502903 | $431,561 | $431,561 | $168.42 | | |
| CE | County Current Expense | 0.3708482477 | $431,561 | $431,561 | $160.04 | | |
| ISLANDEMS | Hospital GEN (EMS) | 0.5000000000 | $431,561 | $431,561 | $215.78 | | |
| LIB | Library Sno-Isle GEN | 0.3153421757 | $431,561 | $431,561 | $136.09 | | |
| NWHIDPRMT | P & R N Whidbey GEN | 0.2004466701 | $431,561 | $431,561 | $86.50 | | |
| SCH201MO | School 201 Enrichment | 1.8559231640 | $431,561 | $431,561 | $800.94 | | |
| ST | State School | 1.3035497053 | $431,561 | $431,561 | $562.56 | | |
| ST2 | State School Part 2 | 0.8169543533 | $431,561 | $431,561 | $352.57 | | |
| | Total Tax Rate: | 8.4728839852 | | | | | |
| | | | | Taxes w/Current Exemptions: | $3,656.57 | | |
| | | | | Taxes w/o Exemptions: | $3,656.57 | | |
Improvement / Building
| Improvement #1: | RESIDENTIAL | State Code: | Y | 1532.6 sqft | Value: | $291,561 |
| Bathrooms: | 1.75 | Bedrooms: | 2 | | Ceiling: | DRYWALL PAINTED | Exterior Wall/Cover: | CEMENT FIBER | | Floor Covering: | CARPET/VINYL 80-20 | Floor Structure: | WOOD W/SUBFLOOR | | Foundation: | CONCRETE | Heating: | FHA GAS | | Interior Finish: | DRYWALL PAINT | Plumbing Fixture Cnt: | 9 | | Roof Slope: | 6" IN 12" | Roof Structure/Cover: | CJ ASPHALT |
|
| | Type | Description | Class CD | Sub Class CD | Year Built | Area |
| | BAS | BASE/MAIN FLOOR | 3 | 0 | 2008 | 1532.6 |
| | OP1 | OPEN PORCH SLAB | 3 | 0 | 2008 | 111.0 |
| | OP4 | OPEN PORCH W/CEILING-ROOF | 3 | 0 | 2008 | 106.0 |
| | AGR | ATTACHED GARAGE | 3 | 0 | 2008 | 532.0 |
| | OWP | OPEN WOOD PORCH W/STEPS | 3 | 0 | 2008 | 200.0 |
Sketch
Property Image
Land
| 1 | 12 | SQ (00000-06000) | 0.0000 | 0.00 | 0.00 | 0.00 | 1.00 | $140,000 | $0 |
Roll Value History
| 2026 | N/A | N/A | N/A | N/A | N/A |
| 2025 | $291,561 | $140,000 | $0 | $431,561 | $431,561 |
| 2024 | $294,902 | $140,000 | $0 | $434,902 | $434,902 |
| 2023 | $291,561 | $140,000 | $0 | $431,561 | $431,561 |
| 2022 | $267,034 | $160,000 | $0 | $427,034 | $427,034 |
| 2021 | $234,838 | $80,000 | $0 | $314,838 | $314,838 |
| 2020 | $228,031 | $70,000 | $0 | $298,031 | $298,031 |
| 2019 | $166,391 | $110,000 | $0 | $276,391 | $276,391 |
| 2018 | $166,847 | $95,000 | $0 | $261,847 | $261,847 |
| 2017 | $159,471 | $70,000 | $0 | $229,471 | $229,471 |
| 2016 | $161,243 | $45,000 | $0 | $206,243 | $206,243 |
| 2015 | $163,015 | $35,000 | $0 | $198,015 | $198,015 |
| 2014 | $164,787 | $35,000 | $0 | $199,787 | $199,787 |
| 2013 | $166,560 | $35,000 | $0 | $201,560 | $201,560 |
| 2012 | $168,332 | $35,000 | $0 | $203,332 | $203,332 |
| 2011 | $178,476 | $35,000 | $0 | $213,476 | $213,476 |
| 2010 | $185,861 | $35,000 | $0 | $220,861 | $220,861 |
| 2009 | $191,635 | $55,000 | $0 | $246,635 | $246,635 |
Deed and Sales History
| 1 | 03/05/2018 | WD | Warranty Deed | EELKEMA, S D | HOSKINS, DONALD ROBERT | | | $280,000.00 | 33176 | 4440287 |
| 2 | 04/02/2010 | ESTSEPPROP | Establish Separate Property | EELKEMA, S D | EELKEMA, S D | | | $0.00 | 891 | 4277267 |
| 3 | 04/01/2010 | WD | Warranty Deed | THOMPSON, PETER | EELKEMA, S D | | | $199,900.00 | 890 | 4272266 |
| 4 | 11/18/2008 | QCD | Quit Claim Deed | THOMPSON HOMEBUILDERS INC, | THOMPSON, PETER | | | $0.00 | 83002 | 4240384 |
| 5 | 08/28/2007 | WD | Warranty Deed | ASPENWOOD HOMES INC, | THOMPSON HOMEBUILDERS INC, | | | $52,000.00 | 72947 | 4210712 |
| 6 | 12/20/2005 | 5 | DNU - Marriage License/Name Change | FAKKEMA HOMES INC, | ASPENWOOD HOMES INC, | | | $0.00 | 70768 | 0 |
| 7 | 01/01/1900 | OTHER | Other - Misc. Documents | Unknown | FAKKEMA HOMES INC, | | | $0.00 | 0 | 0 |
Payout Agreement
| No payout information available.. |