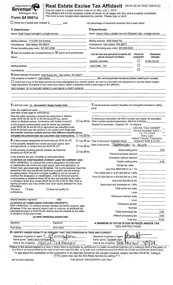
Property
Account |
| Property ID: | 805558 | Abbreviated Legal Description: | 1995 Fairmont 14x56 VIN # MY9594383 |
| Geographic ID: | M905000001520 | Agent Code: | |
| Type: | Mobile Home | | |
| Tax Area: | 100 - APPRAISER-OH Schl Dist, in OH | Land Use Code | 11 |
| Open Space: | N | DFL | N |
| Historic Property: | N | Remodel Property: | N |
| Multi-Family Redevelopment: | N | | |
| Township: | | Section: | |
| Range: | |
Location |
| Address: | 1320 N OAK HARBOR ST # 152 OAK HARBOR, WA 98277 | Mapsco: | |
| Neighborhood: | Cycle 1 | Map ID: | |
| Neighborhood CD: | 1 |
Owner |
| Name: | LITTLE, GALE | Owner ID: | 196073 |
| Mailing Address: | REBECCA LITTLE 1320 N OAK HARBOR ST TRLR 152 OAK HARBOR, WA 98277-3556 | % Ownership: | 100.0000000000% |
| | | Exemptions: | |
Taxes and Assessment Details
Values
| (+) Improvement Homesite Value: | + | $0 | |
| (+) Improvement Non-Homesite Value: | + | $20,240 | |
| (+) Land Homesite Value: | + | $0 | |
| (+) Land Non-Homesite Value: | + | $0 | |
| (+) Curr Use (HS): | + | $0 | $0 |
| (+) Curr Use (NHS): | + | $0 | $0 |
| | | -------------------------- | |
| (=) Market Value: | = | $20,240 | |
| (–) Productivity Loss: | – | $0 | |
| | | -------------------------- | |
| (=) Subtotal: | = | $20,240 | |
| (+) Senior Appraised Value: | + | $0 | |
| (+) Non-Senior Appraised Value: | + | $20,240 | |
| | | -------------------------- | |
| (=) Total Appraised Value: | = | $20,240 | |
| (–) Senior Exemption Loss: | – | $0 | |
| (–) Exemption Loss: | – | $0 | |
| | | -------------------------- | |
| (=) Taxable Value: | = | $20,240 | |
Taxing Jurisdiction
| Owner: | LITTLE, GALE | | |
| % Ownership: | 100.0000000000% | | |
| Total Value: | $20,240 | | |
| Tax Area: | 100 - APPRAISER-OH Schl Dist, in OH |
| CF | Conservation Futures | 0.0316035091 | $20,240 | $20,240 | $0.64 | | |
| CEM1 | Cemetery #1 | 0.0040320932 | $20,240 | $20,240 | $0.08 | | |
| COH | City of Oak Harbor | 2.3001546061 | $20,240 | $20,240 | $46.56 | | |
| OAKBOND | City of Oak Harbor BOND | 0.1926904192 | $20,240 | $20,240 | $3.90 | | |
| HOBOND | Hospital BOND | 0.1910887512 | $20,240 | $20,240 | $3.87 | | |
| HOGEN | Hospital GEN | 0.3902502903 | $20,240 | $20,240 | $7.90 | | |
| CE | County Current Expense | 0.3708482477 | $20,240 | $20,240 | $7.51 | | |
| ISLANDEMS | Hospital GEN (EMS) | 0.5000000000 | $20,240 | $20,240 | $10.12 | | |
| LIB | Library Sno-Isle GEN | 0.3153421757 | $20,240 | $20,240 | $6.38 | | |
| NWHIDPRMT | P & R N Whidbey GEN | 0.2004466701 | $20,240 | $20,240 | $4.06 | | |
| SCH201MO | School 201 Enrichment | 1.8559231640 | $20,240 | $20,240 | $37.56 | | |
| ST | State School | 1.3035497053 | $20,240 | $20,240 | $26.38 | | |
| ST2 | State School Part 2 | 0.8169543533 | $20,240 | $20,240 | $16.54 | | |
| | Total Tax Rate: | 8.4728839852 | | | | | |
| | | | | Taxes w/Current Exemptions: | $171.50 | | |
| | | | | Taxes w/o Exemptions: | $171.50 | | |
Improvement / Building
| Improvement #1: | MANUFACTURED HOME | State Code: | Y | 788.2 sqft | Value: | $20,240 |
| Bathrooms: | 1 | Bedrooms: | 2 | | Ceiling: | PLASTER PAINTED | Cooling: | EVAP NO DUCT | | Exterior Wall/Cover: | VINYL | Floor Covering: | CARPET 100% | | Floor Structure: | SLAB ON GRADE | Foundation: | SLAB | | Heating: | FHA ELECTRIC | Interior Finish: | PLASTER | | Plumbing Fixture Cnt: | 1 | Roof Slope: | FLAT | | Roof Structure/Cover: | CJ ALUMINIUM HEAVY |   |   |
|
Sketch
Property Image
Land
No land segments exist for this property.
Roll Value History
| 2026 | N/A | N/A | N/A | N/A | N/A |
| 2025 | $20,240 | $0 | $0 | $20,240 | $20,240 |
| 2024 | $21,003 | $0 | $0 | $21,003 | $21,003 |
| 2023 | $6,213 | $0 | $0 | $6,213 | $6,213 |
| 2022 | $5,837 | $0 | $0 | $5,837 | $5,837 |
| 2021 | $5,261 | $0 | $0 | $5,261 | $5,261 |
| 2020 | $5,376 | $0 | $0 | $5,376 | $5,376 |
| 2019 | $4,375 | $0 | $0 | $4,375 | $4,375 |
| 2018 | $4,516 | $0 | $0 | $4,516 | $4,516 |
| 2017 | $4,742 | $0 | $0 | $4,742 | $4,742 |
| 2016 | $4,885 | $0 | $0 | $4,885 | $4,885 |
| 2015 | $5,029 | $0 | $0 | $5,029 | $5,029 |
| 2014 | $5,173 | $0 | $0 | $5,173 | $5,173 |
| 2013 | $5,245 | $0 | $0 | $5,245 | $5,245 |
| 2012 | $5,388 | $0 | $0 | $5,388 | $5,388 |
| 2011 | $7,764 | $0 | $0 | $7,764 | $7,764 |
| 2010 | $7,858 | $0 | $0 | $7,858 | $7,858 |
| 2009 | $8,072 | $0 | $0 | $8,072 | $8,072 |
| 2008 | $8,128 | $0 | $0 | $8,128 | $8,128 |
| 2007 | $8,230 | $0 | $0 | $8,230 | $8,230 |
Deed and Sales History
| 1 | 09/21/2006 | OTHER | Other - Misc. Documents | KESTREL LLC, | LITTLE, GALE | | | $0.00 | 64105 | 0 |
| 2 | 12/07/2005 | OTHER | Other - Misc. Documents | OAK HOLLOW MOBILE HOME PARK, | KESTREL LLC, | | | $15,000.00 | 56356 | 0 |
| 3 | 01/01/1900 | OTHER | Other - Misc. Documents | Unknown | OAK HOLLOW MOBILE HOME PARK, | | | $0.00 | 0 | 0 |
Payout Agreement
| No payout information available.. |