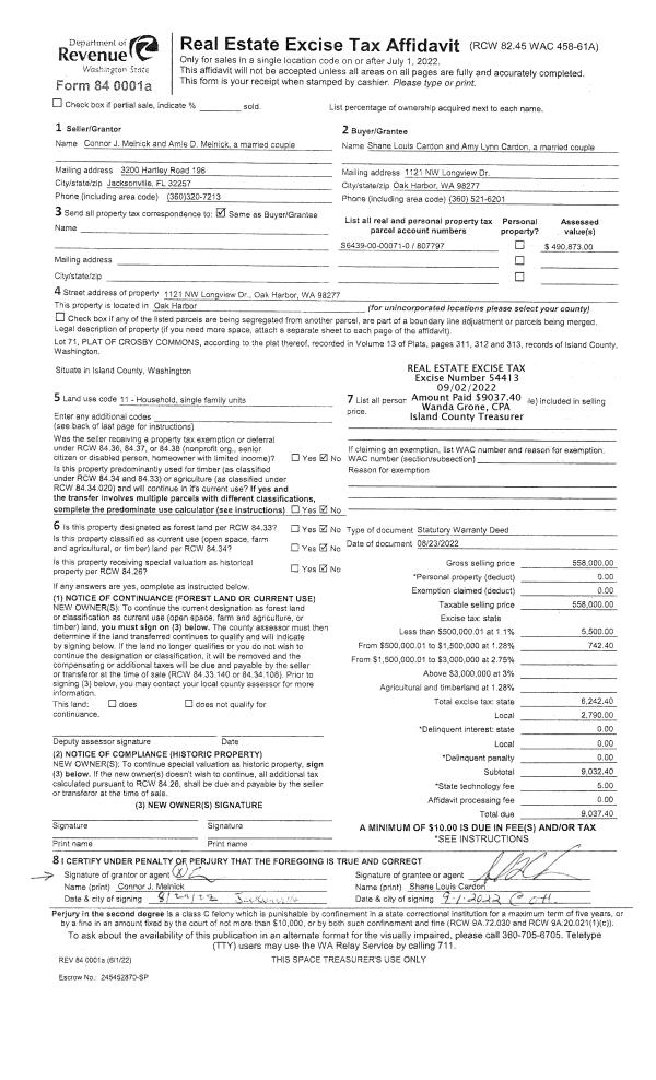
Property
Account |
| Property ID: | 805621 | Abbreviated Legal Description: | CAMANO COMMONS CONDO UNIT 7 1/8 INT |
| Geographic ID: | S6248-00-00007-0 | Agent Code: | |
| Type: | Real | | |
| Tax Area: | 590 - APPRAISER-Stan/Cam Schl Dist, Special Dist, improved & less than 1 acre | Land Use Code | 50 |
| Open Space: | N | DFL | N |
| Historic Property: | N | Remodel Property: | N |
| Multi-Family Redevelopment: | N | | |
| Township: | | Section: | |
| Range: | |
Location |
| Address: | 848 N SUNRISE BLVD UNIT G CAMANO ISLAND, WA 98282 | Mapsco: | |
| Neighborhood: | 51cRR-highway 532 | Map ID: | 964 |
| Neighborhood CD: | 51cRRhw532 |
Owner |
| Name: | TOPOPHILIA, LLC | Owner ID: | 296747 |
| Mailing Address: | 2920 182ND AVE NE SNOHOMISH, WA 98290 | % Ownership: | 100.0000000000% |
| | | Exemptions: | |
Taxes and Assessment Details
Values
| (+) Improvement Homesite Value: | + | $0 | |
| (+) Improvement Non-Homesite Value: | + | $816,709 | |
| (+) Land Homesite Value: | + | $0 | |
| (+) Land Non-Homesite Value: | + | $190,160 | |
| (+) Curr Use (HS): | + | $0 | $0 |
| (+) Curr Use (NHS): | + | $0 | $0 |
| | | -------------------------- | |
| (=) Market Value: | = | $1,006,869 | |
| (–) Productivity Loss: | – | $0 | |
| | | -------------------------- | |
| (=) Subtotal: | = | $1,006,869 | |
| (+) Senior Appraised Value: | + | $0 | |
| (+) Non-Senior Appraised Value: | + | $1,006,869 | |
| | | -------------------------- | |
| (=) Total Appraised Value: | = | $1,006,869 | |
| (–) Senior Exemption Loss: | – | $0 | |
| (–) Exemption Loss: | – | $0 | |
| | | -------------------------- | |
| (=) Taxable Value: | = | $1,006,869 | |
Taxing Jurisdiction
| Owner: | TOPOPHILIA, LLC | | |
| % Ownership: | 100.0000000000% | | |
| Total Value: | $1,006,869 | | |
| Tax Area: | 590 - APPRAISER-Stan/Cam Schl Dist, Special Dist, improved & less than 1 acre |
| CF | Conservation Futures | 0.0316035091 | $1,006,869 | $1,006,869 | $31.82 | | |
| EMS1 | Fire & Rescue Dist #1 Camano GEN (EMS) | 0.3677864386 | $1,006,869 | $1,006,869 | $370.31 | | |
| FIRE1 | Fire & Rescue Dist #1 Camano GEN | 1.2502910536 | $1,006,869 | $1,006,869 | $1,258.88 | | |
| FIRE1BOND | Fire & Rescue Dist #1 Camano BOND | 0.1570001679 | $1,006,869 | $1,006,869 | $158.08 | | |
| CE | County Current Expense | 0.3708482477 | $1,006,869 | $1,006,869 | $373.40 | | |
| CR | County Roads | 0.4584763726 | $1,006,869 | $1,006,869 | $461.63 | | |
| LCIB | Library Sno-Isle BOND (Camano Island) | 0.0396325772 | $1,006,869 | $1,006,869 | $39.90 | | |
| LIB | Library Sno-Isle GEN | 0.3153421757 | $1,006,869 | $1,006,869 | $317.51 | | |
| SCH205_401 | School 205-401 Enrichment | 1.2698420524 | $1,006,869 | $1,006,869 | $1,278.56 | | |
| SCH205BOND | School 205-401 BOND | 0.9396497583 | $1,006,869 | $1,006,869 | $946.10 | | |
| ST | State School | 1.3035497053 | $1,006,869 | $1,006,869 | $1,312.50 | | |
| ST2 | State School Part 2 | 0.8169543533 | $1,006,869 | $1,006,869 | $822.57 | | |
| | Total Tax Rate: | 7.3209764117 | | | | | |
| | | | | Taxes w/Current Exemptions: | $7,371.26 | | |
| | | | | Taxes w/o Exemptions: | $7,371.26 | | |
Improvement / Building
| Improvement #1: | COMMERCIAL | State Code: | F1 | 4205.0 sqft | Value: | $816,709 |
| Bathrooms: | 0 | Ceiling: | SUSPENDED | | Cooling: | PACKAGE HEAT & COOL | Exterior Wall/Cover: | STL/ALUM/SINGWL WD F | | Floor Covering: | COLORED CONCRETE | Floor Structure: | CONCRETE ON GROUND | | Foundation: | SLAB | Interior Finish: | RESTAURANT | | Plumbing Fixture Cnt: | 1 | Roof Structure/Cover: | TERNE WOOD JOIST |
|
| | Type | Description | Class CD | Sub Class CD | Year Built | Area |
| | BAS | BASE/MAIN FLOOR | 4 | 0 | 2004 | 2102.5 |
| | UPS | UPPER STORY | 4 | 0 | 2004 | 2102.5 |
| | oPV1 | PV/ASPH 2" | 4 | 0 | 2004 | 0.0 |
| | OWC | OPEN WOOD PORCH W/STEPS/ROOF/C | 4 | 0 | 2004 | 80.0 |
| | OWC | OPEN WOOD PORCH W/STEPS/ROOF/C | 4 | 0 | 2004 | 80.0 |
Sketch
Property Image
Land
| 1 | 68 | COMMERCIAL RETAIL | 0.1091 | 4754.00 | 0.00 | 0.00 | 1.00 | $190,160 | $0 |
Roll Value History
| 2026 | N/A | N/A | N/A | N/A | N/A |
| 2025 | $816,709 | $190,160 | $0 | $1,006,869 | $1,006,869 |
| 2024 | $834,971 | $190,160 | $0 | $1,025,131 | $1,025,131 |
| 2023 | $983,997 | $190,096 | $0 | $1,174,093 | $1,174,093 |
| 2022 | $752,510 | $190,096 | $0 | $942,606 | $942,606 |
| 2021 | $556,920 | $76,038 | $0 | $632,958 | $632,958 |
| 2020 | $556,304 | $76,038 | $0 | $632,342 | $632,342 |
| 2019 | $544,653 | $76,038 | $0 | $620,691 | $620,691 |
| 2018 | $544,734 | $76,038 | $0 | $620,772 | $620,772 |
| 2017 | $544,887 | $76,038 | $0 | $620,925 | $620,925 |
| 2016 | $545,212 | $76,038 | $0 | $621,250 | $621,250 |
| 2015 | $553,835 | $76,038 | $0 | $629,873 | $629,873 |
| 2014 | $471,244 | $187,730 | $0 | $658,974 | $658,974 |
| 2013 | $471,244 | $166,818 | $0 | $638,062 | $638,062 |
| 2012 | $471,244 | $166,818 | $0 | $638,062 | $638,062 |
| 2011 | $471,244 | $166,818 | $0 | $638,062 | $638,062 |
| 2010 | $475,823 | $166,818 | $0 | $642,641 | $642,641 |
| 2009 | $453,458 | $200,000 | $0 | $653,458 | $653,458 |
| 2008 | $792,392 | $320,000 | $0 | $1,112,392 | $1,112,392 |
| 2007 | $809,504 | $320,000 | $0 | $1,129,504 | $1,129,504 |
Deed and Sales History
| 1 | 11/19/2020 | WD | Warranty Deed | CAMANO COMMONS LLC | TOPOPHILIA, LLC | | | $850,000.00 | 45787 | 4502895 |
| 2 | 08/19/2013 | QCD | Quit Claim Deed | COLBY R E LLC | CAMANO COMMONS LLC | | | $375,000.00 | 12535 | 4347024 |
| 3 | 04/08/2013 | QCD | Quit Claim Deed | OPUS BANK | COLBY R E LLC | | | $0.00 | 11033 | 4337845 |
| 4 | 04/08/2013 | OTHER | Other - Misc. Documents | B & T OLSON FAMILY LLC UNDIV 1/2 INT | OPUS BANK | | | $0.00 | 11032 | 4337844 |
| 5 | 04/02/2010 | QCD | Quit Claim Deed | B & T OLSON FAMILY LLC, | B & T OLSON FAMILY LLC UNDIV 1 | | | $278,000.00 | 791 | 4271760 |
| 6 | 06/10/2004 | WD | Warranty Deed | CAMANO COMMONS LLC, | B & T OLSON FAMILY LLC, | | | $410,000.00 | 42590 | 4103803 |
| 7 | 01/01/1900 | OTHER | Other - Misc. Documents | Unknown | CAMANO COMMONS LLC, | | | $0.00 | 0 | 0 |
Payout Agreement
| No payout information available.. |