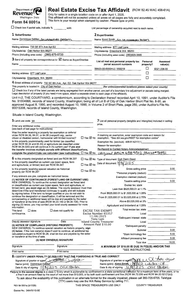
Property
Account |
| Property ID: | 805635 | Abbreviated Legal Description: | ADMIRALS COVE LOT 2 SP 170-03.6010.00.0100B-2 V4 SP P24 AF#4088812 |
| Geographic ID: | S6010-00-0100B-4 | Agent Code: | |
| Type: | Real | | |
| Tax Area: | 390 - APPRAISER-Cpvl Schl Dist, Special Dist, improved & less than 1 acre | Land Use Code | 11 |
| Open Space: | N | DFL | N |
| Historic Property: | N | Remodel Property: | N |
| Multi-Family Redevelopment: | N | | |
| Township: | | Section: | |
| Range: | |
Location |
| Address: | 1276 BYRD DR COUPEVILLE, WA 98239 | Mapsco: | |
| Neighborhood: | Cycle 2 | Map ID: | 81 |
| Neighborhood CD: | 2 |
Owner |
| Name: | MORONEY, PATRICIA ANN | Owner ID: | 292583 |
| Mailing Address: | MICHAEL JOHN WALLACE 3414 W BLAINE ST SEATTLE, WA 98199 | % Ownership: | 100.0000000000% |
| | | Exemptions: | |
Taxes and Assessment Details
Values
| (+) Improvement Homesite Value: | + | $0 | |
| (+) Improvement Non-Homesite Value: | + | $383,283 | |
| (+) Land Homesite Value: | + | $0 | |
| (+) Land Non-Homesite Value: | + | $205,000 | |
| (+) Curr Use (HS): | + | $0 | $0 |
| (+) Curr Use (NHS): | + | $0 | $0 |
| | | -------------------------- | |
| (=) Market Value: | = | $588,283 | |
| (–) Productivity Loss: | – | $0 | |
| | | -------------------------- | |
| (=) Subtotal: | = | $588,283 | |
| (+) Senior Appraised Value: | + | $0 | |
| (+) Non-Senior Appraised Value: | + | $588,283 | |
| | | -------------------------- | |
| (=) Total Appraised Value: | = | $588,283 | |
| (–) Senior Exemption Loss: | – | $0 | |
| (–) Exemption Loss: | – | $0 | |
| | | -------------------------- | |
| (=) Taxable Value: | = | $588,283 | |
Taxing Jurisdiction
| Owner: | MORONEY, PATRICIA ANN | | |
| % Ownership: | 100.0000000000% | | |
| Total Value: | $588,283 | | |
| Tax Area: | 390 - APPRAISER-Cpvl Schl Dist, Special Dist, improved & less than 1 acre |
| CF | Conservation Futures | 0.0316035091 | $588,283 | $588,283 | $18.59 | | |
| CEM2 | Cemetery #2 | 0.0095056933 | $588,283 | $588,283 | $5.59 | | |
| FIRE5 | Fire & Rescue Dist #5 C Whidbey GEN | 1.2008080668 | $588,283 | $588,283 | $706.41 | | |
| FIRE5BOND | Fire & Rescue Dist #5 C Whidbey BOND | 0.1400090713 | $588,283 | $588,283 | $82.36 | | |
| HOBOND | Hospital BOND | 0.1910887512 | $588,283 | $588,283 | $112.41 | | |
| HOGEN | Hospital GEN | 0.3902502903 | $588,283 | $588,283 | $229.58 | | |
| CE | County Current Expense | 0.3708482477 | $588,283 | $588,283 | $218.16 | | |
| CR | County Roads | 0.4584763726 | $588,283 | $588,283 | $269.71 | | |
| ISLANDEMS | Hospital GEN (EMS) | 0.5000000000 | $588,283 | $588,283 | $294.14 | | |
| LIB | Library Sno-Isle GEN | 0.3153421757 | $588,283 | $588,283 | $185.51 | | |
| LIBCAP | Library Sno-Isle BOND (Cap Fac Imp Area) | 0.0543427938 | $588,283 | $588,283 | $31.97 | | |
| POCOUP | Port of Coupeville GEN | 0.1093371703 | $588,283 | $588,283 | $64.32 | | |
| POCOUPIDD | Port of Coupeville IDD | 0.3409740022 | $588,283 | $588,283 | $200.59 | | |
| COUPSDTECH | School 204 CP (TECH) | 0.7545480007 | $588,283 | $588,283 | $443.89 | | |
| SCH204MO | School 204 Enrichment | 0.6716186034 | $588,283 | $588,283 | $395.10 | | |
| ST | State School | 1.3035497053 | $588,283 | $588,283 | $766.86 | | |
| ST2 | State School Part 2 | 0.8169543533 | $588,283 | $588,283 | $480.60 | | |
| | Total Tax Rate: | 7.6592568070 | | | | | |
| | | | | Taxes w/Current Exemptions: | $4,505.79 | | |
| | | | | Taxes w/o Exemptions: | $4,505.79 | | |
Improvement / Building
| Improvement #1: | RESIDENTIAL | State Code: | Y | 1955.7 sqft | Value: | $383,283 |
| Bathrooms: | 2.5 | Bedrooms: | 2 | | Ceiling: | DRYWALL PAINTED | Exterior Wall/Cover: | CEMENT FIBER | | Floor Covering: | CERAMIC TILE/CPT 40-60 | Floor Structure: | SLAB ON GRADE | | Foundation: | CONCRETE | Heating: | FHA GAS | | Interior Finish: | DRYWALL PAINT | Plumbing Fixture Cnt: | 14 | | Roof Slope: | 4" IN 12" | Roof Structure/Cover: | CJ ALUMINIUM HEAVY |
|
| | Type | Description | Class CD | Sub Class CD | Year Built | Area |
| | BAS | BASE/MAIN FLOOR | 4 | 0 | 2009 | 858.2 |
| | OP2 | OPEN PORCH W/STEPS | 4 | 0 | 2009 | 16.0 |
| | BIG | BUILT IN GARAGE | 4 | 0 | 2009 | 224.0 |
| | UPS | UPPER STORY | 4 | 0 | 2009 | 462.0 |
| | OWP | OPEN WOOD PORCH W/STEPS | 4 | 0 | 2009 | 50.0 |
| | DWN | DOWNSTAIRS LIVING AREA | 4 | 0 | 2009 | 635.5 |
| | OWP | OPEN WOOD PORCH W/STEPS | 4 | 0 | 2009 | 488.5 |
| | OWP | OPEN WOOD PORCH W/STEPS | 4 | 0 | 2009 | 80.0 |
Sketch
Property Image
Land
| 1 | HS | HOMESITE | 0.5600 | 24393.60 | 0.00 | 0.00 | 1.00 | $205,000 | $0 |
Roll Value History
| 2026 | N/A | N/A | N/A | N/A | N/A |
| 2025 | $383,283 | $205,000 | $0 | $588,283 | $588,283 |
| 2024 | $378,990 | $195,000 | $0 | $573,990 | $573,990 |
| 2023 | $383,283 | $200,000 | $0 | $583,283 | $583,283 |
| 2022 | $349,995 | $190,000 | $0 | $539,995 | $539,995 |
| 2021 | $307,045 | $130,000 | $0 | $437,045 | $437,045 |
| 2020 | $297,342 | $110,000 | $0 | $407,342 | $407,342 |
| 2019 | $218,802 | $170,000 | $0 | $388,802 | $388,802 |
| 2018 | $217,042 | $140,000 | $0 | $357,042 | $357,042 |
| 2017 | $218,087 | $120,000 | $0 | $338,087 | $338,087 |
| 2016 | $220,432 | $100,000 | $0 | $320,432 | $320,432 |
| 2015 | $214,599 | $65,000 | $0 | $279,599 | $279,599 |
| 2014 | $216,856 | $65,000 | $0 | $281,856 | $281,856 |
| 2013 | $219,116 | $65,000 | $0 | $284,116 | $284,116 |
| 2012 | $239,585 | $55,380 | $0 | $294,965 | $294,965 |
| 2011 | $228,139 | $40,500 | $0 | $268,639 | $268,639 |
| 2010 | $230,935 | $40,500 | $0 | $271,435 | $271,435 |
| 2009 | $0 | $40,500 | $0 | $40,500 | $40,500 |
| 2008 | $0 | $40,500 | $0 | $40,500 | $40,500 |
| 2007 | $0 | $80,000 | $0 | $80,000 | $80,000 |
Deed and Sales History
| 1 | 11/01/2019 | WD | Warranty Deed | PORTIN, BRADLEY S | MORONEY, PATRICIA ANN | | | $495,000.00 | 41112 | 4475610 |
| 2 | 10/20/2018 | QCD | Quit Claim Deed | PORTIN, BRADLEY S | PORTIN, BRADLEY S | | | $0.00 | 36433 | 4454037 |
| 3 | 04/24/2008 | WD | Warranty Deed | KING, MICHAEL | PORTIN, BRADLEY S | | | $35,000.00 | 81082 | 4227568 |
| 4 | 01/01/1900 | OTHER | Other - Misc. Documents | Unknown | KING, MICHAEL | | | $0.00 | 0 | 0 |
Payout Agreement
| No payout information available.. |