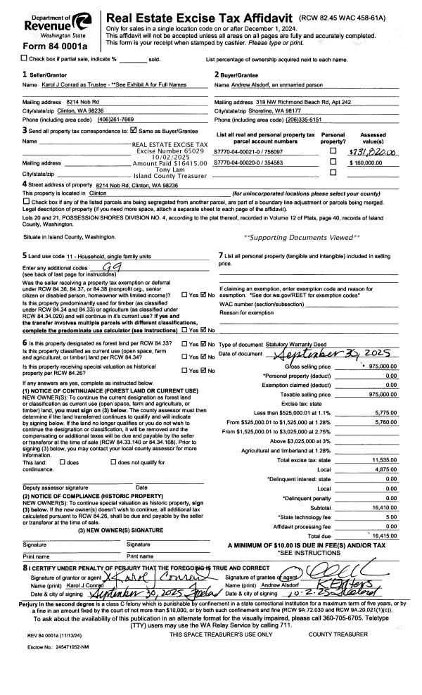
Property
Account |
| Property ID: | 805636 | Abbreviated Legal Description: | ADMIRALS COVE LOT 3 SP 170-03.6010.00.0100B-2 V4 SP P24 AF#4088812 |
| Geographic ID: | S6010-00-0100B-5 | Agent Code: | |
| Type: | Real | | |
| Tax Area: | 399 - APPRAISER-Cpvl Schl Dist, Special Dist, vacant & 50 acres or less | Land Use Code | 93 |
| Open Space: | N | DFL | N |
| Historic Property: | N | Remodel Property: | N |
| Multi-Family Redevelopment: | N | | |
| Township: | | Section: | |
| Range: | |
Location |
| Address: | | Mapsco: | |
| Neighborhood: | Cycle 2 | Map ID: | 81 |
| Neighborhood CD: | 2 |
Owner |
| Name: | MORONEY, PATRICIA ANN | Owner ID: | 292583 |
| Mailing Address: | MICHAEL JOHN WALLACE 3414 W BLAINE ST SEATTLE, WA 98199 | % Ownership: | 100.0000000000% |
| | | Exemptions: | |
Taxes and Assessment Details
Values
| (+) Improvement Homesite Value: | + | $0 | |
| (+) Improvement Non-Homesite Value: | + | $0 | |
| (+) Land Homesite Value: | + | $0 | |
| (+) Land Non-Homesite Value: | + | $95,000 | |
| (+) Curr Use (HS): | + | $0 | $0 |
| (+) Curr Use (NHS): | + | $0 | $0 |
| | | -------------------------- | |
| (=) Market Value: | = | $95,000 | |
| (–) Productivity Loss: | – | $0 | |
| | | -------------------------- | |
| (=) Subtotal: | = | $95,000 | |
| (+) Senior Appraised Value: | + | $0 | |
| (+) Non-Senior Appraised Value: | + | $95,000 | |
| | | -------------------------- | |
| (=) Total Appraised Value: | = | $95,000 | |
| (–) Senior Exemption Loss: | – | $0 | |
| (–) Exemption Loss: | – | $0 | |
| | | -------------------------- | |
| (=) Taxable Value: | = | $95,000 | |
Taxing Jurisdiction
| Owner: | MORONEY, PATRICIA ANN | | |
| % Ownership: | 100.0000000000% | | |
| Total Value: | $95,000 | | |
| Tax Area: | 399 - APPRAISER-Cpvl Schl Dist, Special Dist, vacant & 50 acres or less |
| CF | Conservation Futures | 0.0316035091 | $95,000 | $95,000 | $3.00 | | |
| CEM2 | Cemetery #2 | 0.0095056933 | $95,000 | $95,000 | $0.90 | | |
| HOBOND | Hospital BOND | 0.1910887512 | $95,000 | $95,000 | $18.15 | | |
| HOGEN | Hospital GEN | 0.3902502903 | $95,000 | $95,000 | $37.07 | | |
| CE | County Current Expense | 0.3708482477 | $95,000 | $95,000 | $35.23 | | |
| CR | County Roads | 0.4584763726 | $95,000 | $95,000 | $43.56 | | |
| ISLANDEMS | Hospital GEN (EMS) | 0.5000000000 | $95,000 | $95,000 | $47.50 | | |
| LIB | Library Sno-Isle GEN | 0.3153421757 | $95,000 | $95,000 | $29.96 | | |
| LIBCAP | Library Sno-Isle BOND (Cap Fac Imp Area) | 0.0543427938 | $95,000 | $95,000 | $5.16 | | |
| POCOUP | Port of Coupeville GEN | 0.1093371703 | $95,000 | $95,000 | $10.39 | | |
| POCOUPIDD | Port of Coupeville IDD | 0.3409740022 | $95,000 | $95,000 | $32.39 | | |
| COUPSDTECH | School 204 CP (TECH) | 0.7545480007 | $95,000 | $95,000 | $71.68 | | |
| SCH204MO | School 204 Enrichment | 0.6716186034 | $95,000 | $95,000 | $63.80 | | |
| ST | State School | 1.3035497053 | $95,000 | $95,000 | $123.84 | | |
| ST2 | State School Part 2 | 0.8169543533 | $95,000 | $95,000 | $77.61 | | |
| | Total Tax Rate: | 6.3184396689 | | | | | |
| | | | | Taxes w/Current Exemptions: | $600.24 | | |
| | | | | Taxes w/o Exemptions: | $600.24 | | |
Improvement / Building
Sketch
| No sketches available for this property. |
Property Image
Land
| 1 | 99 | OTHER UNDEVELOPED LAND PLATS/SUBDIVISION | 0.5400 | 23522.40 | 0.00 | 0.00 | 1.00 | $95,000 | $0 |
Roll Value History
| 2026 | N/A | N/A | N/A | N/A | N/A |
| 2025 | $0 | $95,000 | $0 | $95,000 | $95,000 |
| 2024 | $0 | $95,000 | $0 | $95,000 | $95,000 |
| 2023 | $0 | $95,000 | $0 | $95,000 | $95,000 |
| 2022 | $0 | $95,000 | $0 | $95,000 | $95,000 |
| 2021 | $0 | $85,000 | $0 | $85,000 | $85,000 |
| 2020 | $0 | $85,000 | $0 | $85,000 | $85,000 |
| 2019 | $0 | $65,000 | $0 | $65,000 | $65,000 |
| 2018 | $0 | $65,000 | $0 | $65,000 | $65,000 |
| 2017 | $0 | $65,000 | $0 | $65,000 | $65,000 |
| 2016 | $0 | $65,000 | $0 | $65,000 | $65,000 |
| 2015 | $0 | $65,000 | $0 | $65,000 | $65,000 |
| 2014 | $0 | $65,000 | $0 | $65,000 | $65,000 |
| 2013 | $0 | $65,000 | $0 | $65,000 | $65,000 |
| 2012 | $0 | $63,750 | $0 | $63,750 | $63,750 |
| 2011 | $0 | $75,000 | $0 | $75,000 | $75,000 |
| 2010 | $0 | $75,000 | $0 | $75,000 | $75,000 |
| 2009 | $0 | $75,000 | $0 | $75,000 | $75,000 |
| 2008 | $0 | $75,000 | $0 | $75,000 | $75,000 |
| 2007 | $0 | $80,000 | $0 | $80,000 | $80,000 |
Deed and Sales History
| 1 | 09/21/2021 | WD | Warranty Deed | KING, MICHAEL | MORONEY, PATRICIA ANN | | | $225,000.00 | 50249 | 4530331 |
|   | |
| 2 | 01/01/1900 | OTHER | Other - Misc. Documents | Unknown | KING, MICHAEL | | | $0.00 | 0 | 0 |
Payout Agreement
| No payout information available.. |