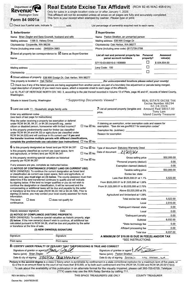
Property
Account |
| Property ID: | 805665 | Abbreviated Legal Description: | MORNINGSIDE HILL LOT 4 |
| Geographic ID: | S7518-00-00004-0 | Agent Code: | |
| Type: | Real | | |
| Tax Area: | 760 - APPRAISER-S Whid Schl Dist, Special District, improved & less than 1 acre | Land Use Code | 11 |
| Open Space: | N | DFL | N |
| Historic Property: | N | Remodel Property: | N |
| Multi-Family Redevelopment: | N | | |
| Township: | | Section: | |
| Range: | |
Location |
| Address: | 5630 EVENINGSIDE LN FREELAND, WA 98249 | Mapsco: | |
| Neighborhood: | Cycle 3 | Map ID: | 332 |
| Neighborhood CD: | 3 |
Owner |
| Name: | PENAFIEL, CARLOS | Owner ID: | 193327 |
| Mailing Address: | 5630 EVENINGSIDE LN FREELAND, WA 98249 | % Ownership: | 100.0000000000% |
| | | Exemptions: | |
Taxes and Assessment Details
Values
| (+) Improvement Homesite Value: | + | $0 | |
| (+) Improvement Non-Homesite Value: | + | $611,081 | |
| (+) Land Homesite Value: | + | $0 | |
| (+) Land Non-Homesite Value: | + | $250,000 | |
| (+) Curr Use (HS): | + | $0 | $0 |
| (+) Curr Use (NHS): | + | $0 | $0 |
| | | -------------------------- | |
| (=) Market Value: | = | $861,081 | |
| (–) Productivity Loss: | – | $0 | |
| | | -------------------------- | |
| (=) Subtotal: | = | $861,081 | |
| (+) Senior Appraised Value: | + | $0 | |
| (+) Non-Senior Appraised Value: | + | $861,081 | |
| | | -------------------------- | |
| (=) Total Appraised Value: | = | $861,081 | |
| (–) Senior Exemption Loss: | – | $0 | |
| (–) Exemption Loss: | – | $0 | |
| | | -------------------------- | |
| (=) Taxable Value: | = | $861,081 | |
Taxing Jurisdiction
| Owner: | PENAFIEL, CARLOS | | |
| % Ownership: | 100.0000000000% | | |
| Total Value: | $861,081 | | |
| Tax Area: | 760 - APPRAISER-S Whid Schl Dist, Special District, improved & less than 1 acre |
| CF | Conservation Futures | 0.0316035091 | $861,081 | $861,081 | $27.21 | | |
| FIRE3 | Fire & Rescue Dist #3 S Whidbey GEN | 1.2004855531 | $861,081 | $861,081 | $1,033.72 | | |
| HOBOND | Hospital BOND | 0.1910887512 | $861,081 | $861,081 | $164.54 | | |
| HOGEN | Hospital GEN | 0.3902502903 | $861,081 | $861,081 | $336.04 | | |
| CE | County Current Expense | 0.3708482477 | $861,081 | $861,081 | $319.33 | | |
| CR | County Roads | 0.4584763726 | $861,081 | $861,081 | $394.79 | | |
| ISLANDEMS | Hospital GEN (EMS) | 0.5000000000 | $861,081 | $861,081 | $430.54 | | |
| LIB | Library Sno-Isle GEN | 0.3153421757 | $861,081 | $861,081 | $271.54 | | |
| PORTWHID | Port of S Whidbey GEN | 0.1094540357 | $861,081 | $861,081 | $94.25 | | |
| SCH206BOND | School 206 BOND | 0.3161759235 | $861,081 | $861,081 | $272.25 | | |
| SCH206MO | School 206 Enrichment | 0.4547169547 | $861,081 | $861,081 | $391.55 | | |
| ST | State School | 1.3035497053 | $861,081 | $861,081 | $1,122.46 | | |
| ST2 | State School Part 2 | 0.8169543533 | $861,081 | $861,081 | $703.46 | | |
| SWHIDPRBD | P & R S Whidbey BOND | 0.0152817568 | $861,081 | $861,081 | $13.16 | | |
| SWHIDPRBD2 | P & R S Whidbey BOND2 | 0.0138911264 | $861,081 | $861,081 | $11.96 | | |
| SWHIDPRMT | P & R S Whidbey GEN | 0.2053334452 | $861,081 | $861,081 | $176.81 | | |
| | Total Tax Rate: | 6.6934522006 | | | | | |
| | | | | Taxes w/Current Exemptions: | $5,763.61 | | |
| | | | | Taxes w/o Exemptions: | $5,763.61 | | |
Improvement / Building
| Improvement #1: | RESIDENTIAL | State Code: | Y | 3985.8 sqft | Value: | $611,081 |
| Bathrooms: | 3 | Bedrooms: | 4 | | Ceiling: | DRYWALL PAINTED | Exterior Wall/Cover: | WOOD SIDING | | Floor Covering: | HARDWOOD/CARP 60-40 | Floor Structure: | WOOD W/SUBFLOOR | | Foundation: | CONCRETE | Heating: | FHA GAS | | Interior Finish: | DRYWALL PAINT | Plumbing Fixture Cnt: | 16 | | Roof Slope: | 6" IN 12" | Roof Structure/Cover: | CJ ASPHALT |
|
| | Type | Description | Class CD | Sub Class CD | Year Built | Area |
| | BAS | BASE/MAIN FLOOR | 4 | 0 | 2005 | 2689.8 |
| | OP1 | OPEN PORCH SLAB | 4 | 0 | 2005 | 66.6 |
| | OP1 | OPEN PORCH SLAB | 4 | 0 | 2005 | 101.0 |
| | OP4 | OPEN PORCH W/CEILING-ROOF | 4 | 0 | 2005 | 62.2 |
| | AGR | ATTACHED GARAGE | 4 | 0 | 2005 | 580.8 |
| | OWP | OPEN WOOD PORCH W/STEPS | 4 | 0 | 2005 | 481.6 |
| | OWC | OPEN WOOD PORCH W/STEPS/ROOF/C | 4 | 0 | 2005 | 70.0 |
| | DWN | DOWNSTAIRS LIVING AREA | 4 | 0 | 2005 | 1296.0 |
Sketch
Property Image
Land
| 1 | 15 | SQ (12001-21780) | 0.0000 | 0.00 | 0.00 | 0.00 | 1.00 | $250,000 | $0 |
Roll Value History
| 2026 | N/A | N/A | N/A | N/A | N/A |
| 2025 | $611,081 | $250,000 | $0 | $861,081 | $861,081 |
| 2024 | $618,248 | $230,000 | $0 | $848,248 | $848,248 |
| 2023 | $625,416 | $230,000 | $0 | $855,416 | $855,416 |
| 2022 | $572,840 | $210,000 | $0 | $782,840 | $782,840 |
| 2021 | $503,751 | $140,000 | $0 | $643,751 | $643,751 |
| 2020 | $490,252 | $115,000 | $0 | $605,252 | $605,252 |
| 2019 | $384,934 | $180,000 | $0 | $564,934 | $564,934 |
| 2018 | $386,037 | $155,000 | $0 | $541,037 | $541,037 |
| 2017 | $388,086 | $120,000 | $0 | $508,086 | $508,086 |
| 2016 | $392,494 | $120,000 | $0 | $512,494 | $512,494 |
| 2015 | $396,906 | $80,000 | $0 | $476,906 | $476,906 |
| 2014 | $401,313 | $80,000 | $0 | $481,313 | $481,313 |
| 2013 | $359,556 | $80,000 | $0 | $439,556 | $439,556 |
| 2012 | $363,454 | $85,680 | $0 | $449,134 | $449,134 |
| 2011 | $367,351 | $100,800 | $0 | $468,151 | $468,151 |
| 2010 | $381,654 | $105,000 | $0 | $486,654 | $486,654 |
| 2009 | $393,379 | $130,000 | $0 | $523,379 | $523,379 |
| 2008 | $397,541 | $135,000 | $0 | $532,541 | $532,541 |
| 2007 | $387,494 | $85,140 | $0 | $472,634 | $472,634 |
Deed and Sales History
| 1 | 03/19/2008 | DECREE | Divorce Decree/Legal Separation | PENAFIEL, CARLOS | PENAFIEL, CARLOS | | | $0.00 | 80934 | 4226565 |
| 2 | 07/28/2005 | WD | Warranty Deed | HANSON, W JOSEPH | PENAFIEL, CARLOS | | | $479,000.00 | 53797 | 4143020 |
| 3 | 08/30/2004 | WD | Warranty Deed | MORNINGSIDE HILL PARTNERSHIP, | HANSON, W JOSEPH | | | $68,000.00 | 44232 | 4112422 |
| 4 | 01/01/1900 | OTHER | Other - Misc. Documents | Unknown | MORNINGSIDE HILL PARTNERSHIP, | | | $0.00 | 0 | 0 |
Payout Agreement
| No payout information available.. |