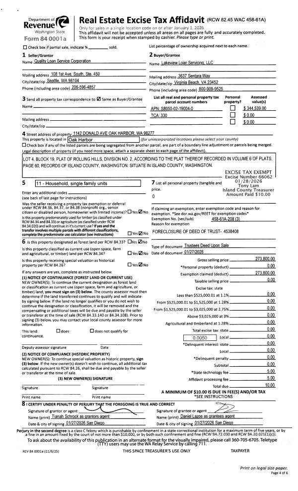
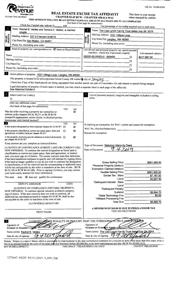
Property
Account |
| Property ID: | 805673 | Abbreviated Legal Description: | MORNINGSIDE HILL LOT 12 |
| Geographic ID: | S7518-00-00012-0 | Agent Code: | |
| Type: | Real | | |
| Tax Area: | 760 - APPRAISER-S Whid Schl Dist, Special District, improved & less than 1 acre | Land Use Code | 11 |
| Open Space: | N | DFL | N |
| Historic Property: | N | Remodel Property: | N |
| Multi-Family Redevelopment: | N | | |
| Township: | | Section: | |
| Range: | |
Location |
| Address: | 5611 EVENINGSIDE LN FREELAND, WA 98249 | Mapsco: | |
| Neighborhood: | Cycle 3 | Map ID: | 332 |
| Neighborhood CD: | 3 |
Owner |
| Name: | STAR, CATHERINE | Owner ID: | 295283 |
| Mailing Address: | RYAN KELLY 5611 EVENINGSIDE LN FREELAND, WA 98249 | % Ownership: | 100.0000000000% |
| | | Exemptions: | |
Taxes and Assessment Details
Values
| (+) Improvement Homesite Value: | + | $0 | |
| (+) Improvement Non-Homesite Value: | + | $366,243 | |
| (+) Land Homesite Value: | + | $0 | |
| (+) Land Non-Homesite Value: | + | $250,000 | |
| (+) Curr Use (HS): | + | $0 | $0 |
| (+) Curr Use (NHS): | + | $0 | $0 |
| | | -------------------------- | |
| (=) Market Value: | = | $616,243 | |
| (–) Productivity Loss: | – | $0 | |
| | | -------------------------- | |
| (=) Subtotal: | = | $616,243 | |
| (+) Senior Appraised Value: | + | $0 | |
| (+) Non-Senior Appraised Value: | + | $616,243 | |
| | | -------------------------- | |
| (=) Total Appraised Value: | = | $616,243 | |
| (–) Senior Exemption Loss: | – | $0 | |
| (–) Exemption Loss: | – | $0 | |
| | | -------------------------- | |
| (=) Taxable Value: | = | $616,243 | |
Taxing Jurisdiction
| Owner: | STAR, CATHERINE | | |
| % Ownership: | 100.0000000000% | | |
| Total Value: | $616,243 | | |
| Tax Area: | 760 - APPRAISER-S Whid Schl Dist, Special District, improved & less than 1 acre |
| CF | Conservation Futures | 0.0316035091 | $616,243 | $616,243 | $19.48 | | |
| FIRE3 | Fire & Rescue Dist #3 S Whidbey GEN | 1.2004855531 | $616,243 | $616,243 | $739.79 | | |
| HOBOND | Hospital BOND | 0.1910887512 | $616,243 | $616,243 | $117.76 | | |
| HOGEN | Hospital GEN | 0.3902502903 | $616,243 | $616,243 | $240.49 | | |
| CE | County Current Expense | 0.3708482477 | $616,243 | $616,243 | $228.53 | | |
| CR | County Roads | 0.4584763726 | $616,243 | $616,243 | $282.53 | | |
| ISLANDEMS | Hospital GEN (EMS) | 0.5000000000 | $616,243 | $616,243 | $308.12 | | |
| LIB | Library Sno-Isle GEN | 0.3153421757 | $616,243 | $616,243 | $194.33 | | |
| PORTWHID | Port of S Whidbey GEN | 0.1094540357 | $616,243 | $616,243 | $67.45 | | |
| SCH206BOND | School 206 BOND | 0.3161759235 | $616,243 | $616,243 | $194.84 | | |
| SCH206MO | School 206 Enrichment | 0.4547169547 | $616,243 | $616,243 | $280.22 | | |
| ST | State School | 1.3035497053 | $616,243 | $616,243 | $803.30 | | |
| ST2 | State School Part 2 | 0.8169543533 | $616,243 | $616,243 | $503.44 | | |
| SWHIDPRBD | P & R S Whidbey BOND | 0.0152817568 | $616,243 | $616,243 | $9.42 | | |
| SWHIDPRBD2 | P & R S Whidbey BOND2 | 0.0138911264 | $616,243 | $616,243 | $8.56 | | |
| SWHIDPRMT | P & R S Whidbey GEN | 0.2053334452 | $616,243 | $616,243 | $126.54 | | |
| | Total Tax Rate: | 6.6934522006 | | | | | |
| | | | | Taxes w/Current Exemptions: | $4,124.80 | | |
| | | | | Taxes w/o Exemptions: | $4,124.80 | | |
Improvement / Building
| Improvement #1: | RESIDENTIAL | State Code: | Y | 2164.0 sqft | Value: | $366,243 |
| Bathrooms: | 1.75 | Bedrooms: | 3 | | Ceiling: | DRYWALL PAINTED | Exterior Wall/Cover: | CEMENT FIBER | | Floor Covering: | CERAMIC TILE/CPT 40-60 | Floor Structure: | WOOD W/SUBFLOOR | | Foundation: | CONCRETE | Heating: | FHA GAS | | Interior Finish: | DRYWALL PAINT | Plumbing Fixture Cnt: | 10 | | Roof Slope: | 5" IN 12" | Roof Structure/Cover: | CJ ASPHALT |
|
| | Type | Description | Class CD | Sub Class CD | Year Built | Area |
| | BAS | BASE/MAIN FLOOR | 3 | 0 | 2005 | 2164.0 |
| | OP4 | OPEN PORCH W/CEILING-ROOF | 3 | 0 | 2005 | 48.0 |
| | AGR | ATTACHED GARAGE | 3 | 0 | 2005 | 528.0 |
| | OWP | OPEN WOOD PORCH W/STEPS | 3 | 0 | 2005 | 260.0 |
Sketch
Property Image
Land
| 1 | 15 | SQ (12001-21780) | 0.0000 | 0.00 | 0.00 | 0.00 | 1.00 | $250,000 | $0 |
Roll Value History
| 2026 | N/A | N/A | N/A | N/A | N/A |
| 2025 | $366,243 | $250,000 | $0 | $616,243 | $616,243 |
| 2024 | $370,642 | $230,000 | $0 | $600,642 | $600,642 |
| 2023 | $375,042 | $230,000 | $0 | $605,042 | $605,042 |
| 2022 | $343,581 | $210,000 | $0 | $553,581 | $553,581 |
| 2021 | $302,235 | $140,000 | $0 | $442,235 | $442,235 |
| 2020 | $294,859 | $115,000 | $0 | $409,859 | $409,859 |
| 2019 | $219,604 | $180,000 | $0 | $399,604 | $399,604 |
| 2018 | $220,240 | $155,000 | $0 | $375,240 | $375,240 |
| 2017 | $221,513 | $120,000 | $0 | $341,513 | $341,513 |
| 2016 | $224,059 | $120,000 | $0 | $344,059 | $344,059 |
| 2015 | $226,605 | $80,000 | $0 | $306,605 | $306,605 |
| 2014 | $229,152 | $80,000 | $0 | $309,152 | $309,152 |
| 2013 | $220,847 | $80,000 | $0 | $300,847 | $300,847 |
| 2012 | $223,273 | $85,680 | $0 | $308,953 | $308,953 |
| 2011 | $257,933 | $100,800 | $0 | $358,733 | $358,733 |
| 2010 | $263,351 | $105,000 | $0 | $368,351 | $368,351 |
| 2009 | $271,662 | $130,000 | $0 | $401,662 | $401,662 |
| 2008 | $274,893 | $135,000 | $0 | $409,893 | $409,893 |
| 2007 | $278,030 | $85,140 | $0 | $363,170 | $363,170 |
Deed and Sales History
| 1 | 07/16/2020 | WD | Warranty Deed | SHEETZ TRUSTEE, CARL P | STAR, CATHERINE | | | $469,000.00 | 43889 | 4491774 |
| 2 | 02/22/2011 | WD | Warranty Deed | WHITTAKER, MICHAEL F | SHEETZ TRUSTEE, CARL P | | | $269,000.00 | 3675 | 4291187 |
| 3 | 02/21/2006 | WD | Warranty Deed | CHISM, STEVEN S | WHITTAKER, MICHAEL F | | | $374,500.00 | 60858 | 4163409 |
| 4 | 03/03/2005 | WD | Warranty Deed | MORNINGSIDE HILL PARTNERSHIP, | CHISM, STEVEN S | | | $74,000.00 | 50887 | 4127502 |
| 5 | 01/01/1900 | OTHER | Other - Misc. Documents | Unknown | MORNINGSIDE HILL PARTNERSHIP, | | | $0.00 | 0 | 0 |
Payout Agreement
| No payout information available.. |