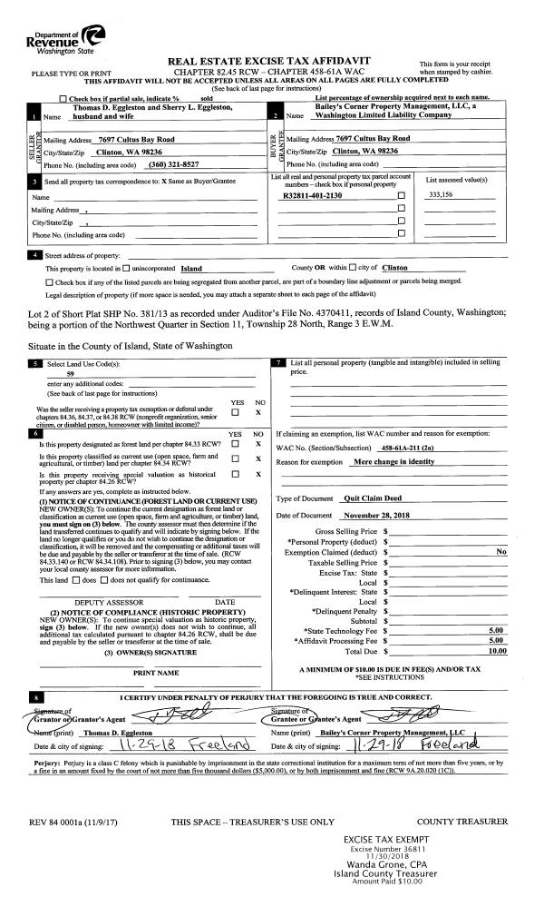
Property
Account |
| Property ID: | 805726 | Abbreviated Legal Description: | LOT 3 SP 33-03.23118.388-0800 V4 SP P32-33 AF#4091462 |
| Geographic ID: | R23118-387-1040 | Agent Code: | |
| Type: | Real | | |
| Tax Area: | 312 - APPRAISER-Cpvl Schl Dist, outside Cpvl, improved, greater than 1 acre | Land Use Code | 11 |
| Open Space: | N | DFL | N |
| Historic Property: | N | Remodel Property: | N |
| Multi-Family Redevelopment: | N | | |
| Township: | 31 | Section: | 18 |
| Range: | R2 |
Location |
| Address: | 74 ALEXIS LN COUPEVILLE, WA 98239 | Mapsco: | |
| Neighborhood: | Cycle 2 | Map ID: | 491 |
| Neighborhood CD: | 2 |
Owner |
| Name: | SINCLAIR, TODD | Owner ID: | 285819 |
| Mailing Address: | TALEENA SINCLAIR 74 ALEXIS LN COUPEVILLE, WA 98239 | % Ownership: | 100.0000000000% |
| | | Exemptions: | |
Taxes and Assessment Details
Values
| (+) Improvement Homesite Value: | + | $0 | |
| (+) Improvement Non-Homesite Value: | + | $147,326 | |
| (+) Land Homesite Value: | + | $0 | |
| (+) Land Non-Homesite Value: | + | $340,100 | |
| (+) Curr Use (HS): | + | $0 | $0 |
| (+) Curr Use (NHS): | + | $0 | $0 |
| | | -------------------------- | |
| (=) Market Value: | = | $487,426 | |
| (–) Productivity Loss: | – | $0 | |
| | | -------------------------- | |
| (=) Subtotal: | = | $487,426 | |
| (+) Senior Appraised Value: | + | $0 | |
| (+) Non-Senior Appraised Value: | + | $487,426 | |
| | | -------------------------- | |
| (=) Total Appraised Value: | = | $487,426 | |
| (–) Senior Exemption Loss: | – | $0 | |
| (–) Exemption Loss: | – | $0 | |
| | | -------------------------- | |
| (=) Taxable Value: | = | $487,426 | |
Taxing Jurisdiction
| Owner: | SINCLAIR, TODD | | |
| % Ownership: | 100.0000000000% | | |
| Total Value: | $487,426 | | |
| Tax Area: | 312 - APPRAISER-Cpvl Schl Dist, outside Cpvl, improved, greater than 1 acre |
| CF | Conservation Futures | 0.0316035091 | $487,426 | $487,426 | $15.40 | | |
| CEM2 | Cemetery #2 | 0.0095056933 | $487,426 | $487,426 | $4.63 | | |
| FIRE5 | Fire & Rescue Dist #5 C Whidbey GEN | 1.2008080668 | $487,426 | $487,426 | $585.31 | | |
| FIRE5BOND | Fire & Rescue Dist #5 C Whidbey BOND | 0.1400090713 | $487,426 | $487,426 | $68.24 | | |
| HOBOND | Hospital BOND | 0.1910887512 | $487,426 | $487,426 | $93.14 | | |
| HOGEN | Hospital GEN | 0.3902502903 | $487,426 | $487,426 | $190.22 | | |
| CE | County Current Expense | 0.3708482477 | $487,426 | $487,426 | $180.76 | | |
| CR | County Roads | 0.4584763726 | $487,426 | $487,426 | $223.47 | | |
| ISLANDEMS | Hospital GEN (EMS) | 0.5000000000 | $487,426 | $487,426 | $243.71 | | |
| LIB | Library Sno-Isle GEN | 0.3153421757 | $487,426 | $487,426 | $153.71 | | |
| LIBCAP | Library Sno-Isle BOND (Cap Fac Imp Area) | 0.0543427938 | $487,426 | $487,426 | $26.49 | | |
| POCOUP | Port of Coupeville GEN | 0.1093371703 | $487,426 | $487,426 | $53.29 | | |
| POCOUPIDD | Port of Coupeville IDD | 0.3409740022 | $487,426 | $487,426 | $166.20 | | |
| COUPSDTECH | School 204 CP (TECH) | 0.7545480007 | $487,426 | $487,426 | $367.79 | | |
| SCH204MO | School 204 Enrichment | 0.6716186034 | $487,426 | $487,426 | $327.36 | | |
| ST | State School | 1.3035497053 | $487,426 | $487,426 | $635.38 | | |
| ST2 | State School Part 2 | 0.8169543533 | $487,426 | $487,426 | $398.20 | | |
| | Total Tax Rate: | 7.6592568070 | | | | | |
| | | | | Taxes w/Current Exemptions: | $3,733.30 | | |
| | | | | Taxes w/o Exemptions: | $3,733.30 | | |
Improvement / Building
| Improvement #1: | MANUFACTURED HOME | State Code: | Y | 1612.0 sqft | Value: | $147,326 |
| Bathrooms: | 2 | Bedrooms: | 3 | | Ceiling: | PLASTER PAINTED | Cooling: | EVAP NO DUCT | | Exterior Wall/Cover: | VINYL | Floor Covering: | CARPET 100% | | Floor Structure: | SLAB ON GRADE | Foundation: | SLAB | | Heating: | FHA ELECTRIC | Interior Finish: | PLASTER | | Plumbing Fixture Cnt: | 1 | Roof Slope: | FLAT | | Roof Structure/Cover: | CJ ALUMINIUM HEAVY |   |   |
|
| | Type | Description | Class CD | Sub Class CD | Year Built | Area |
| | BAS | BASE/MAIN FLOOR | 4 | 0 | 2005 | 1612.0 |
| | OWC | OPEN WOOD PORCH W/STEPS/ROOF/C | 4 | 0 | 2005 | 182.0 |
| | OWP | OPEN WOOD PORCH W/STEPS | 4 | 0 | 2005 | 20.0 |
Sketch
Property Image
Land
| 1 | HS | HOMESITE | 1.0000 | 43560.00 | 0.00 | 0.00 | 1.00 | $220,000 | $0 |
| 2 | 91 | UNDEVELOPED LAND-METES AND BOUNDS | 4.0200 | 175111.20 | 0.00 | 0.00 | 1.00 | $120,100 | $0 |
Roll Value History
| 2026 | N/A | N/A | N/A | N/A | N/A |
| 2025 | $147,326 | $340,100 | $0 | $487,426 | $487,426 |
| 2024 | $147,326 | $300,000 | $0 | $447,326 | $447,326 |
| 2023 | $131,446 | $280,000 | $0 | $411,446 | $411,446 |
| 2022 | $122,029 | $260,000 | $0 | $382,029 | $382,029 |
| 2021 | $108,739 | $170,000 | $0 | $278,739 | $278,739 |
| 2020 | $108,110 | $160,000 | $0 | $268,110 | $268,110 |
| 2019 | $86,160 | $230,000 | $0 | $316,160 | $316,160 |
| 2018 | $79,536 | $200,000 | $0 | $279,536 | $279,536 |
| 2017 | $81,167 | $200,000 | $0 | $281,167 | $281,167 |
| 2016 | $81,983 | $140,000 | $0 | $221,983 | $221,983 |
| 2015 | $82,798 | $121,986 | $0 | $204,784 | $204,784 |
| 2014 | $84,430 | $121,986 | $0 | $206,416 | $206,416 |
| 2013 | $85,245 | $121,986 | $0 | $207,231 | $207,231 |
| 2012 | $86,877 | $121,986 | $0 | $208,863 | $208,863 |
| 2011 | $87,692 | $135,540 | $0 | $223,232 | $223,232 |
| 2010 | $92,399 | $135,540 | $0 | $227,939 | $227,939 |
| 2009 | $95,860 | $150,600 | $0 | $246,460 | $246,460 |
| 2008 | $96,859 | $168,170 | $0 | $265,029 | $265,029 |
| 2007 | $97,846 | $150,600 | $0 | $248,446 | $248,446 |
Deed and Sales History
| 1 | 06/27/2018 | WD | Warranty Deed | MCCLARIN, RICHARD W | SINCLAIR, TODD | | | $325,000.00 | 34795 | 4447185 |
| 2 | 08/18/2005 | WD | Warranty Deed | WESTGATE MOBILE HOMES INC, | MCCLARIN, RICHARD W | | | $203,000.00 | 54171 | 4145385 |
| 3 | 08/18/2005 | WD | Warranty Deed | YOUNG, STUART | WESTGATE MOBILE HOMES INC, | | | $75,000.00 | 54169 | 4145345 |
| 4 | 01/01/1900 | OTHER | Other - Misc. Documents | Unknown | YOUNG, STUART | | | $0.00 | 0 | 0 |
Payout Agreement
| No payout information available.. |