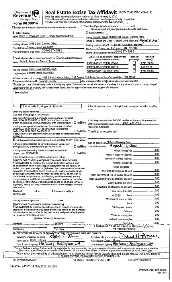
Property
Account |
| Property ID: | 805850 | Abbreviated Legal Description: | PT NE SE DESC: BG NWCR SD NE/4 N89*E662.93' ALG NLN SD NE/4 TO MIDPT OF SD NLN S329.95' ALG N-S MIDLN SD NE/4 S89*W225' S383.57' S63*W492.45' TP ON WLN SD NE/4 380.63' NLY OF SWCR SD NE/4 N930.64' ALG SD WLN TPB |
| Geographic ID: | R33030-236-4580 | Agent Code: | |
| Type: | Real | | |
| Tax Area: | 712 - APPRAISER-S Whid Schl Dist, outside Langley, improved, greater than 1 acre | Land Use Code | 88 |
| Open Space: | N | DFL | Y |
| Historic Property: | N | Remodel Property: | N |
| Multi-Family Redevelopment: | N | | |
| Township: | 30 | Section: | 30 |
| Range: | R3 |
Location |
| Address: | 4295 LONE LAKE RD LANGLEY, WA 98260 | Mapsco: | |
| Neighborhood: | Cycle 4 | Map ID: | 897 |
| Neighborhood CD: | 4 |
Owner |
| Name: | WILBERT, JON S | Owner ID: | 196504 |
| Mailing Address: | CYNTHIA A WILBERT 4295 LONE LAKE RD LANGLEY, WA 98260-9653 | % Ownership: | 100.0000000000% |
| | | Exemptions: | |
Taxes and Assessment Details
Values
| (+) Improvement Homesite Value: | + | $0 | |
| (+) Improvement Non-Homesite Value: | + | $1,219,480 | |
| (+) Land Homesite Value: | + | $0 | |
| (+) Land Non-Homesite Value: | + | $272,263 | |
| (+) Curr Use (HS): | + | $0 | $0 |
| (+) Curr Use (NHS): | + | $97,737 | $1,474 |
| | | -------------------------- | |
| (=) Market Value: | = | $1,589,480 | |
| (–) Productivity Loss: | – | $96,263 | |
| | | -------------------------- | |
| (=) Subtotal: | = | $1,493,217 | |
| (+) Senior Appraised Value: | + | $0 | |
| (+) Non-Senior Appraised Value: | + | $1,493,217 | |
| | | -------------------------- | |
| (=) Total Appraised Value: | = | $1,493,217 | |
| (–) Senior Exemption Loss: | – | $0 | |
| (–) Exemption Loss: | – | $0 | |
| | | -------------------------- | |
| (=) Taxable Value: | = | $1,493,217 | |
Taxing Jurisdiction
| Owner: | WILBERT, JON S | | |
| % Ownership: | 100.0000000000% | | |
| Total Value: | $1,589,480 | | |
| Tax Area: | 712 - APPRAISER-S Whid Schl Dist, outside Langley, improved, greater than 1 acre |
| CF | Conservation Futures | 0.0316035091 | $1,493,217 | $1,493,217 | $47.19 | | |
| FIRE3 | Fire & Rescue Dist #3 S Whidbey GEN | 1.2004855531 | $1,493,217 | $1,493,217 | $1,792.59 | | |
| HOBOND | Hospital BOND | 0.1910887512 | $1,493,217 | $1,493,217 | $285.34 | | |
| HOGEN | Hospital GEN | 0.3902502903 | $1,493,217 | $1,493,217 | $582.73 | | |
| CE | County Current Expense | 0.3708482477 | $1,493,217 | $1,493,217 | $553.76 | | |
| CR | County Roads | 0.4584763726 | $1,493,217 | $1,493,217 | $684.60 | | |
| ISLANDEMS | Hospital GEN (EMS) | 0.5000000000 | $1,493,217 | $1,493,217 | $746.61 | | |
| LIB | Library Sno-Isle GEN | 0.3153421757 | $1,493,217 | $1,493,217 | $470.87 | | |
| PORTWHID | Port of S Whidbey GEN | 0.1094540357 | $1,493,217 | $1,493,217 | $163.44 | | |
| SCH206BOND | School 206 BOND | 0.3161759235 | $1,493,217 | $1,493,217 | $472.12 | | |
| SCH206MO | School 206 Enrichment | 0.4547169547 | $1,493,217 | $1,493,217 | $678.99 | | |
| ST | State School | 1.3035497053 | $1,493,217 | $1,493,217 | $1,946.48 | | |
| ST2 | State School Part 2 | 0.8169543533 | $1,493,217 | $1,493,217 | $1,219.89 | | |
| SWHIDPRBD | P & R S Whidbey BOND | 0.0152817568 | $1,493,217 | $1,493,217 | $22.82 | | |
| SWHIDPRBD2 | P & R S Whidbey BOND2 | 0.0138911264 | $1,493,217 | $1,493,217 | $20.74 | | |
| SWHIDPRMT | P & R S Whidbey GEN | 0.2053334452 | $1,493,217 | $1,493,217 | $306.61 | | |
| | Total Tax Rate: | 6.6934522006 | | | | | |
| | | | | Taxes w/Current Exemptions: | $9,994.78 | | |
| | | | | Taxes w/o Exemptions: | $9,994.78 | | |
Improvement / Building
| Improvement #1: | RESIDENTIAL | State Code: | Y | 3353.7 sqft | Value: | $1,069,600 |
| Bathrooms: | 3.5 | Bedrooms: | 3 | | Ceiling: | DRYWALL PAINTED | Exterior Wall/Cover: | CEMENT FIBER | | Floor Covering: | HARDWOOD/CARP 80-20 | Floor Structure: | WOOD W/SUBFLOOR | | Foundation: | CONCRETE | Heating: | FHA GAS | | Interior Finish: | DRYWALL PAINT | Plumbing Fixture Cnt: | 16 | | Roof Slope: | 4" IN 12" | Roof Structure/Cover: | BEAM ASPHALT |
|
| | Type | Description | Class CD | Sub Class CD | Year Built | Area |
| | BAS | BASE/MAIN FLOOR | 6 | 0 | 2007 | 3353.7 |
| | OP1 | OPEN PORCH SLAB | 6 | 0 | 2007 | 503.7 |
| | OP4 | OPEN PORCH W/CEILING-ROOF | 6 | 0 | 2007 | 108.0 |
| | OP4 | OPEN PORCH W/CEILING-ROOF | 6 | 0 | 2007 | 188.5 |
| | OP4 | OPEN PORCH W/CEILING-ROOF | 6 | 0 | 2007 | 319.0 |
| | AGR | ATTACHED GARAGE | 6 | 0 | 2007 | 720.0 |
| | CPD | OPEN CARPORT DIRT FLOOR | 6 | 0 | 2007 | 54.0 |
| Improvement #2: | RESIDENTIAL | State Code: | Y | 636.0 sqft | Value: | $149,880 |
| Bathrooms: | 0.5 | Bedrooms: | 0 | | Ceiling: | DRYWALL PAINTED | Exterior Wall/Cover: | CEMENT FIBER | | Floor Covering: | CARPET/VINYL 60-40 | Floor Structure: | SLAB ON GRADE | | Foundation: | SLAB | Heating: | WALL HEAT ELECTRIC | | Interior Finish: | DRYWALL PAINT | Plumbing Fixture Cnt: | 3 | | Roof Slope: | 4" IN 12" | Roof Structure/Cover: | CJ ASPHALT |
|
| | Type | Description | Class CD | Sub Class CD | Year Built | Area |
| | BAS | BASE/MAIN FLOOR | 3 | 0 | 2007 | 636.0 |
| | OP3 | OPEN PORCH W/ROOF | 3 | 0 | 2007 | 72.0 |
| | OP4 | OPEN PORCH W/CEILING-ROOF | 3 | 0 | 2007 | 144.0 |
| | AGR | ATTACHED GARAGE | 3 | 0 | 2007 | 566.4 |
| | UTY | STORAGE/UTILITY | 3 | 0 | 2007 | 513.6 |
| | CPD | OPEN CARPORT DIRT FLOOR | 3 | 0 | 2007 | 120.0 |
| | UTY | STORAGE/UTILITY | 3 | 0 | 2007 | 168.0 |
Sketch
Property Image
Land
| 1 | 88 | DESIGNATED FOREST | 1.4600 | 63597.60 | 0.00 | 0.00 | 1.00 | $17,904 | $218 |
| 2 | HS | HOMESITE | 1.0000 | 43560.00 | 0.00 | 0.00 | 1.00 | $260,000 | $0 |
| 3 | 88 | DESIGNATED FOREST | 6.5100 | 283575.60 | 0.00 | 0.00 | 1.00 | $79,833 | $1,256 |
| 4 | 91 | UNDEVELOPED LAND-METES AND BOUNDS | 1.0000 | 43560.00 | 0.00 | 0.00 | 1.00 | $12,263 | $0 |
Roll Value History
| 2026 | N/A | N/A | N/A | N/A | N/A |
| 2025 | $1,219,480 | $370,000 | $1,474 | $1,493,217 | $1,493,217 |
| 2024 | $1,233,456 | $350,000 | $1,482 | $1,494,968 | $1,494,968 |
| 2023 | $1,247,434 | $330,000 | $1,421 | $1,315,054 | $1,315,054 |
| 2022 | $1,136,446 | $280,000 | $1,421 | $1,194,036 | $1,194,036 |
| 2021 | $997,018 | $230,000 | $1,421 | $1,044,577 | $1,044,577 |
| 2020 | $938,580 | $190,000 | $1,421 | $978,115 | $978,115 |
| 2019 | $838,699 | $250,000 | $1,375 | $890,224 | $890,224 |
| 2018 | $840,997 | $190,000 | $1,352 | $880,463 | $880,463 |
| 2017 | $845,456 | $190,000 | $1,352 | $884,922 | $884,922 |
| 2016 | $854,646 | $165,000 | $875 | $888,620 | $888,620 |
| 2015 | $863,837 | $165,000 | $875 | $897,811 | $897,811 |
| 2014 | $871,624 | $149,550 | $875 | $902,499 | $902,499 |
| 2013 | $880,991 | $149,550 | $875 | $911,866 | $911,866 |
| 2012 | $0 | $88,069 | $875 | $875 | $875 |
| 2011 | $0 | $103,610 | $875 | $875 | $875 |
| 2010 | $0 | $103,610 | $875 | $875 | $875 |
| 2009 | $0 | $159,400 | $875 | $875 | $875 |
| 2008 | $0 | $143,460 | $875 | $875 | $875 |
| 2007 | $0 | $144,608 | $875 | $875 | $875 |
Deed and Sales History
| 1 | 06/02/2005 | WD | Warranty Deed | CROSBY RESTORATION INC, | WILBERT, JON S | | | $0.00 | 52737 | 4137376 |
| 2 | 10/06/2004 | SEG | DNU - Segregation | Unknown | CROSBY RESTORATION INC, | | | $0.00 | 70374 | 0 |
Payout Agreement
| No payout information available.. |