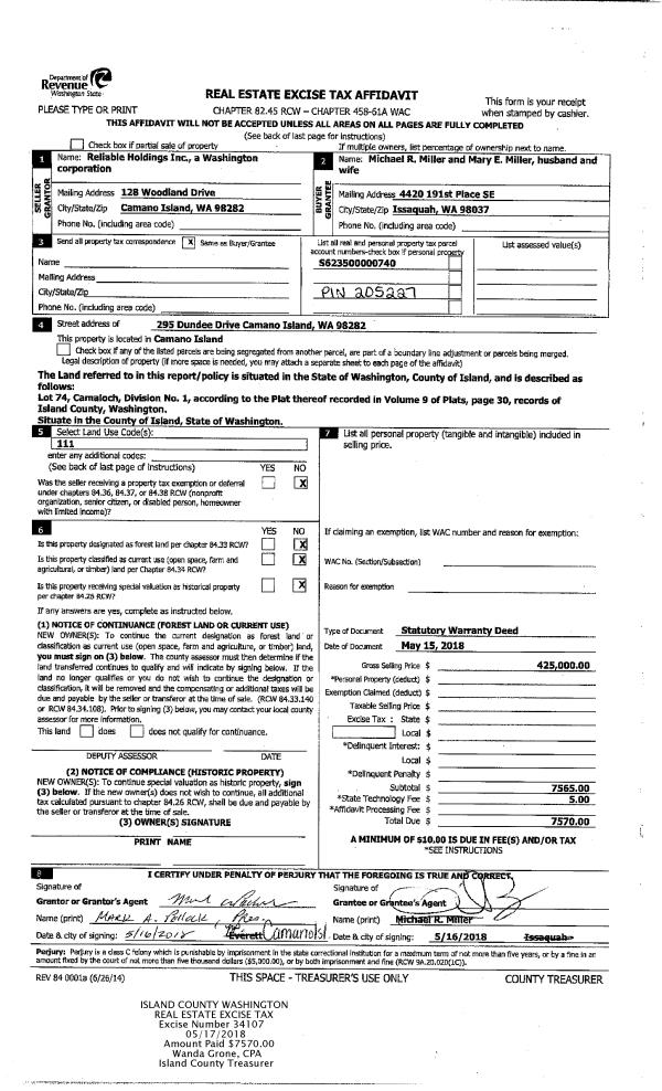
Property
Account |
| Property ID: | 805943 | Abbreviated Legal Description: | W/2 NW NW NW & W/2 SW NW NW |
| Geographic ID: | R23129-465-0290 | Agent Code: | |
| Type: | Real | | |
| Tax Area: | 312 - APPRAISER-Cpvl Schl Dist, outside Cpvl, improved, greater than 1 acre | Land Use Code | 11 |
| Open Space: | N | DFL | N |
| Historic Property: | N | Remodel Property: | N |
| Multi-Family Redevelopment: | N | | |
| Township: | 31 | Section: | 29 |
| Range: | R2 |
Location |
| Address: | 28754 SR 525 COUPEVILLE, WA 98239 | Mapsco: | |
| Neighborhood: | Cycle 2 | Map ID: | 518 |
| Neighborhood CD: | 2 |
Owner |
| Name: | HONEYMOON BAY COFFEE ROASTERS, INC | Owner ID: | 285229 |
| Mailing Address: | 4423 HONEYMOON BAY RD GREENBANK, WA 98253 | % Ownership: | 100.0000000000% |
| | | Exemptions: | |
Taxes and Assessment Details
Values
| (+) Improvement Homesite Value: | + | $0 | |
| (+) Improvement Non-Homesite Value: | + | $4,000 | |
| (+) Land Homesite Value: | + | $0 | |
| (+) Land Non-Homesite Value: | + | $170,885 | |
| (+) Curr Use (HS): | + | $0 | $0 |
| (+) Curr Use (NHS): | + | $0 | $0 |
| | | -------------------------- | |
| (=) Market Value: | = | $174,885 | |
| (–) Productivity Loss: | – | $0 | |
| | | -------------------------- | |
| (=) Subtotal: | = | $174,885 | |
| (+) Senior Appraised Value: | + | $0 | |
| (+) Non-Senior Appraised Value: | + | $174,885 | |
| | | -------------------------- | |
| (=) Total Appraised Value: | = | $174,885 | |
| (–) Senior Exemption Loss: | – | $0 | |
| (–) Exemption Loss: | – | $0 | |
| | | -------------------------- | |
| (=) Taxable Value: | = | $174,885 | |
Taxing Jurisdiction
| Owner: | HONEYMOON BAY COFFEE ROASTERS, INC | | |
| % Ownership: | 100.0000000000% | | |
| Total Value: | $174,885 | | |
| Tax Area: | 312 - APPRAISER-Cpvl Schl Dist, outside Cpvl, improved, greater than 1 acre |
| CF | Conservation Futures | 0.0316035091 | $174,885 | $174,885 | $5.53 | | |
| CEM2 | Cemetery #2 | 0.0095056933 | $174,885 | $174,885 | $1.66 | | |
| FIRE5 | Fire & Rescue Dist #5 C Whidbey GEN | 1.2008080668 | $174,885 | $174,885 | $210.00 | | |
| FIRE5BOND | Fire & Rescue Dist #5 C Whidbey BOND | 0.1400090713 | $174,885 | $174,885 | $24.49 | | |
| HOBOND | Hospital BOND | 0.1910887512 | $174,885 | $174,885 | $33.42 | | |
| HOGEN | Hospital GEN | 0.3902502903 | $174,885 | $174,885 | $68.25 | | |
| CE | County Current Expense | 0.3708482477 | $174,885 | $174,885 | $64.86 | | |
| CR | County Roads | 0.4584763726 | $174,885 | $174,885 | $80.18 | | |
| ISLANDEMS | Hospital GEN (EMS) | 0.5000000000 | $174,885 | $174,885 | $87.44 | | |
| LIB | Library Sno-Isle GEN | 0.3153421757 | $174,885 | $174,885 | $55.15 | | |
| LIBCAP | Library Sno-Isle BOND (Cap Fac Imp Area) | 0.0543427938 | $174,885 | $174,885 | $9.50 | | |
| POCOUP | Port of Coupeville GEN | 0.1093371703 | $174,885 | $174,885 | $19.12 | | |
| POCOUPIDD | Port of Coupeville IDD | 0.3409740022 | $174,885 | $174,885 | $59.63 | | |
| COUPSDTECH | School 204 CP (TECH) | 0.7545480007 | $174,885 | $174,885 | $131.96 | | |
| SCH204MO | School 204 Enrichment | 0.6716186034 | $174,885 | $174,885 | $117.46 | | |
| ST | State School | 1.3035497053 | $174,885 | $174,885 | $227.97 | | |
| ST2 | State School Part 2 | 0.8169543533 | $174,885 | $174,885 | $142.87 | | |
| | Total Tax Rate: | 7.6592568070 | | | | | |
| | | | | Taxes w/Current Exemptions: | $1,339.49 | | |
| | | | | Taxes w/o Exemptions: | $1,339.49 | | |
Improvement / Building
| Improvement #1: | RESIDENTIAL | State Code: | Y | 0.0 sqft | Value: | $4,000 |
Sketch
| No sketches available for this property. |
Property Image
Land
| 1 | 91 | UNDEVELOPED LAND-METES AND BOUNDS | 9.8200 | 427759.20 | 0.00 | 0.00 | 1.00 | $170,885 | $0 |
Roll Value History
| 2026 | N/A | N/A | N/A | N/A | N/A |
| 2025 | $4,000 | $170,885 | $0 | $174,885 | $174,885 |
| 2024 | $4,000 | $140,000 | $0 | $144,000 | $144,000 |
| 2023 | $4,000 | $140,000 | $0 | $144,000 | $144,000 |
| 2022 | $4,000 | $130,000 | $0 | $134,000 | $134,000 |
| 2021 | $4,000 | $130,000 | $0 | $134,000 | $134,000 |
| 2020 | $4,000 | $120,000 | $0 | $124,000 | $124,000 |
| 2019 | $4,000 | $125,000 | $0 | $129,000 | $129,000 |
| 2018 | $4,000 | $100,000 | $0 | $104,000 | $104,000 |
| 2017 | $4,000 | $100,000 | $0 | $104,000 | $104,000 |
| 2016 | $4,000 | $100,000 | $0 | $104,000 | $104,000 |
| 2015 | $4,000 | $100,000 | $0 | $104,000 | $104,000 |
| 2014 | $4,000 | $140,000 | $0 | $144,000 | $144,000 |
| 2013 | $4,000 | $140,000 | $0 | $144,000 | $144,000 |
| 2012 | $4,000 | $132,570 | $0 | $136,570 | $136,570 |
| 2011 | $4,000 | $147,300 | $0 | $151,300 | $151,300 |
| 2010 | $4,000 | $147,300 | $0 | $151,300 | $151,300 |
| 2009 | $4,000 | $196,400 | $0 | $200,400 | $200,400 |
| 2008 | $4,000 | $94,272 | $0 | $98,272 | $98,272 |
| 2007 | $4,000 | $94,272 | $0 | $98,272 | $98,272 |
Deed and Sales History
| 1 | 05/18/2018 | WD | Warranty Deed | MITCHELL, RONALD | HONEYMOON BAY COFFEE ROASTERS, INC | | | $140,000.00 | 34290 | 4445235 |
|   | |
| 2 | 07/05/2005 | WD | Warranty Deed | MARTENS, JERRY T | MITCHELL, RONALD | | | $95,000.00 | 53455 | 4141148 |
| 3 | 07/05/2005 | ESTSEPPROP | Establish Separate Property | MARTENS, JOSEPHINE C | MARTENS, JERRY T | | | $0.00 | 53454 | 4141147 |
| 4 | 02/09/2005 | SEG | DNU - Segregation | Unknown | MARTENS, JOSEPHINE C | | | $0.00 | 70475 | 0 |
Payout Agreement
| No payout information available.. |