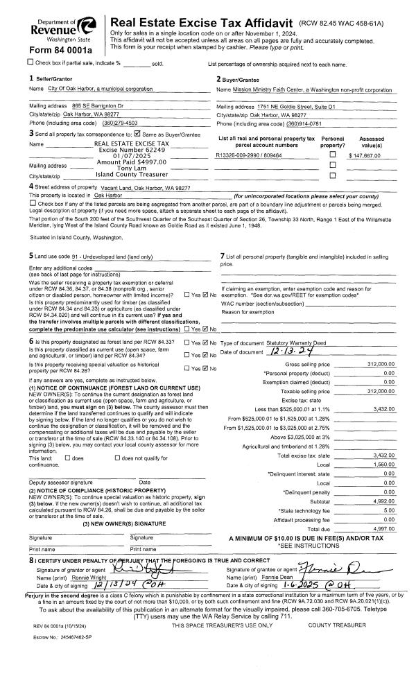
Property
Account |
| Property ID: | 805976 | Abbreviated Legal Description: | LOT 1 SP 294-02.13232.193-4850 V4 SP P41 AF#4096578 ALTERATION (MISC# 80725) LOT 1 SP ALTERATION 185-06.13232.189-4550, .190-4830 & .191-5020 V4 SP P191 AF#4186688 |
| Geographic ID: | R13232-189-4550 | Agent Code: | |
| Type: | Real | | |
| Tax Area: | 312 - APPRAISER-Cpvl Schl Dist, outside Cpvl, improved, greater than 1 acre | Land Use Code | 11 |
| Open Space: | N | DFL | N |
| Historic Property: | N | Remodel Property: | N |
| Multi-Family Redevelopment: | N | | |
| Township: | 32 | Section: | 32 |
| Range: | R1 |
Location |
| Address: | 1647 MADRONA WAY COUPEVILLE, WA 98239 | Mapsco: | |
| Neighborhood: | Area 2 Waterfront Eastside Res | Map ID: | 171 |
| Neighborhood CD: | 2WFTE01R |
Owner |
| Name: | ZUCKERMAN, ANNE | Owner ID: | 273791 |
| Mailing Address: | 1647 MADRONA WAY COUPEVILLE, WA 98239 | % Ownership: | 100.0000000000% |
| | | Exemptions: | |
Taxes and Assessment Details
Values
| (+) Improvement Homesite Value: | + | $0 | |
| (+) Improvement Non-Homesite Value: | + | $306,374 | |
| (+) Land Homesite Value: | + | $0 | |
| (+) Land Non-Homesite Value: | + | $310,662 | |
| (+) Curr Use (HS): | + | $0 | $0 |
| (+) Curr Use (NHS): | + | $0 | $0 |
| | | -------------------------- | |
| (=) Market Value: | = | $617,036 | |
| (–) Productivity Loss: | – | $0 | |
| | | -------------------------- | |
| (=) Subtotal: | = | $617,036 | |
| (+) Senior Appraised Value: | + | $0 | |
| (+) Non-Senior Appraised Value: | + | $617,036 | |
| | | -------------------------- | |
| (=) Total Appraised Value: | = | $617,036 | |
| (–) Senior Exemption Loss: | – | $0 | |
| (–) Exemption Loss: | – | $0 | |
| | | -------------------------- | |
| (=) Taxable Value: | = | $617,036 | |
Taxing Jurisdiction
| Owner: | ZUCKERMAN, ANNE | | |
| % Ownership: | 100.0000000000% | | |
| Total Value: | $617,036 | | |
| Tax Area: | 312 - APPRAISER-Cpvl Schl Dist, outside Cpvl, improved, greater than 1 acre |
| CF | Conservation Futures | 0.0316035091 | $617,036 | $617,036 | $19.50 | | |
| CEM2 | Cemetery #2 | 0.0095056933 | $617,036 | $617,036 | $5.87 | | |
| FIRE5 | Fire & Rescue Dist #5 C Whidbey GEN | 1.2008080668 | $617,036 | $617,036 | $740.94 | | |
| FIRE5BOND | Fire & Rescue Dist #5 C Whidbey BOND | 0.1400090713 | $617,036 | $617,036 | $86.39 | | |
| HOBOND | Hospital BOND | 0.1910887512 | $617,036 | $617,036 | $117.91 | | |
| HOGEN | Hospital GEN | 0.3902502903 | $617,036 | $617,036 | $240.80 | | |
| CE | County Current Expense | 0.3708482477 | $617,036 | $617,036 | $228.83 | | |
| CR | County Roads | 0.4584763726 | $617,036 | $617,036 | $282.90 | | |
| ISLANDEMS | Hospital GEN (EMS) | 0.5000000000 | $617,036 | $617,036 | $308.52 | | |
| LIB | Library Sno-Isle GEN | 0.3153421757 | $617,036 | $617,036 | $194.58 | | |
| LIBCAP | Library Sno-Isle BOND (Cap Fac Imp Area) | 0.0543427938 | $617,036 | $617,036 | $33.53 | | |
| POCOUP | Port of Coupeville GEN | 0.1093371703 | $617,036 | $617,036 | $67.46 | | |
| POCOUPIDD | Port of Coupeville IDD | 0.3409740022 | $617,036 | $617,036 | $210.39 | | |
| COUPSDTECH | School 204 CP (TECH) | 0.7545480007 | $617,036 | $617,036 | $465.58 | | |
| SCH204MO | School 204 Enrichment | 0.6716186034 | $617,036 | $617,036 | $414.41 | | |
| ST | State School | 1.3035497053 | $617,036 | $617,036 | $804.34 | | |
| ST2 | State School Part 2 | 0.8169543533 | $617,036 | $617,036 | $504.09 | | |
| | Total Tax Rate: | 7.6592568070 | | | | | |
| | | | | Taxes w/Current Exemptions: | $4,726.04 | | |
| | | | | Taxes w/o Exemptions: | $4,726.04 | | |
Improvement / Building
| Improvement #1: | RESIDENTIAL | State Code: | Y | 1120.0 sqft | Value: | $306,374 |
| Bathrooms: | 2 | Bedrooms: | 1 | | Ceiling: | PAINT OPEN FLOOR BAS | Exterior Wall/Cover: | CEMENT FIBER | | Floor Covering: | HARDWOOD 100% | Floor Structure: | WOOD W/SUBFLOOR | | Foundation: | CONCRETE | Heating: | FHA GAS | | Interior Finish: | DRYWALL PAINT | Plumbing Fixture Cnt: | 9 | | Roof Slope: | 4" IN 12" | Roof Structure/Cover: | CJ ASPHALT |
|
| | Type | Description | Class CD | Sub Class CD | Year Built | Area |
| | BAS | BASE/MAIN FLOOR | 4 | 0 | 2021 | 1120.0 |
| | OWP | OPEN WOOD PORCH W/STEPS | 4 | 0 | 2021 | 60.0 |
| | OWP | OPEN WOOD PORCH W/STEPS | 4 | 0 | 2021 | 90.0 |
Sketch
Property Image
Land
| 1 | HS | HOMESITE | 1.0000 | 43560.00 | 0.00 | 0.00 | 1.00 | $270,000 | $0 |
| 2 | 91 | UNDEVELOPED LAND-METES AND BOUNDS | 1.7300 | 75358.80 | 0.00 | 0.00 | 1.00 | $40,662 | $0 |
Roll Value History
| 2026 | N/A | N/A | N/A | N/A | N/A |
| 2025 | $306,374 | $310,662 | $0 | $617,036 | $617,036 |
| 2024 | $294,366 | $300,000 | $0 | $594,366 | $594,366 |
| 2023 | $297,457 | $300,000 | $0 | $597,457 | $597,457 |
| 2022 | $274,250 | $280,000 | $0 | $554,250 | $554,250 |
| 2021 | $141,720 | $200,000 | $0 | $341,720 | $341,720 |
| 2020 | $96,443 | $200,000 | $0 | $296,443 | $296,443 |
| 2019 | $67,733 | $270,000 | $0 | $337,733 | $337,733 |
| 2018 | $67,436 | $225,000 | $0 | $292,436 | $292,436 |
| 2017 | $67,882 | $170,000 | $0 | $237,882 | $237,882 |
| 2016 | $68,776 | $155,000 | $0 | $223,776 | $223,776 |
| 2015 | $47,414 | $150,000 | $0 | $197,414 | $197,414 |
| 2014 | $48,218 | $158,313 | $0 | $206,531 | $206,531 |
| 2013 | $49,021 | $158,313 | $0 | $207,334 | $207,334 |
| 2012 | $22,465 | $140,250 | $0 | $162,715 | $162,715 |
| 2011 | $22,544 | $165,000 | $0 | $187,544 | $187,544 |
| 2010 | $15,666 | $165,000 | $0 | $180,666 | $180,666 |
| 2009 | $15,680 | $175,000 | $0 | $190,680 | $190,680 |
| 2008 | $15,695 | $230,000 | $0 | $245,695 | $245,695 |
| 2007 | $15,723 | $205,000 | $0 | $220,723 | $220,723 |
Deed and Sales History
| 1 | 02/05/2016 | WD | Warranty Deed | TACKETT, THOMAS J | ZUCKERMAN, ANNE | | | $310,000.00 | 23208 | 4394402 |
| 2 | 11/09/2013 | EZ | Easement | TACKETT, THOMAS J | TACKETT, THOMAS J | | | $1,000.00 | 13541 | 4351868 |
| 3 | 11/16/2006 | WD | Warranty Deed | WELLS, BONNIE L | TACKETT, THOMAS J | | | $320,000.00 | 64924 | 4187395 |
| 4 | 01/01/1900 | OTHER | Other - Misc. Documents | Unknown | WELLS, BONNIE L | | | $0.00 | 0 | 0 |
Payout Agreement
| No payout information available.. |