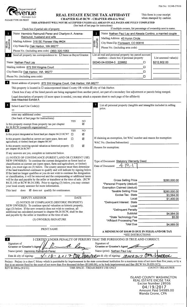
Property
Account |
| Property ID: | 805977 | Abbreviated Legal Description: | LOT 2 SP 294-02.13232.193-4850 V4 SP P41 AF#4096578 ALTERATION (MISC# 80725) LOT 2 SP ALTERATION 185-06.13232.189-4550, .190-4830 & .191-5020 V4 SP P191 AF#4186688 |
| Geographic ID: | R13232-190-4830 | Agent Code: | |
| Type: | Real | | |
| Tax Area: | 312 - APPRAISER-Cpvl Schl Dist, outside Cpvl, improved, greater than 1 acre | Land Use Code | 11 |
| Open Space: | N | DFL | N |
| Historic Property: | N | Remodel Property: | N |
| Multi-Family Redevelopment: | N | | |
| Township: | 32 | Section: | 32 |
| Range: | R1 |
Location |
| Address: | 1637 MADRONA WAY COUPEVILLE, WA 98239 | Mapsco: | |
| Neighborhood: | Area 2 Waterfront Eastside Res | Map ID: | 171 |
| Neighborhood CD: | 2WFTE01R |
Owner |
| Name: | LEMLEY, CRAIG A | Owner ID: | 280041 |
| Mailing Address: | CYNTHIA A SCARINGE 1637 MADORONA WAY COUPEVILLE, WA 98239 | % Ownership: | 100.0000000000% |
| | | Exemptions: | |
Taxes and Assessment Details
Values
| (+) Improvement Homesite Value: | + | $0 | |
| (+) Improvement Non-Homesite Value: | + | $391,142 | |
| (+) Land Homesite Value: | + | $0 | |
| (+) Land Non-Homesite Value: | + | $351,400 | |
| (+) Curr Use (HS): | + | $0 | $0 |
| (+) Curr Use (NHS): | + | $0 | $0 |
| | | -------------------------- | |
| (=) Market Value: | = | $742,542 | |
| (–) Productivity Loss: | – | $0 | |
| | | -------------------------- | |
| (=) Subtotal: | = | $742,542 | |
| (+) Senior Appraised Value: | + | $0 | |
| (+) Non-Senior Appraised Value: | + | $742,542 | |
| | | -------------------------- | |
| (=) Total Appraised Value: | = | $742,542 | |
| (–) Senior Exemption Loss: | – | $0 | |
| (–) Exemption Loss: | – | $0 | |
| | | -------------------------- | |
| (=) Taxable Value: | = | $742,542 | |
Taxing Jurisdiction
| Owner: | LEMLEY, CRAIG A | | |
| % Ownership: | 100.0000000000% | | |
| Total Value: | $742,542 | | |
| Tax Area: | 312 - APPRAISER-Cpvl Schl Dist, outside Cpvl, improved, greater than 1 acre |
| CF | Conservation Futures | 0.0316035091 | $742,542 | $742,542 | $23.47 | | |
| CEM2 | Cemetery #2 | 0.0095056933 | $742,542 | $742,542 | $7.06 | | |
| FIRE5 | Fire & Rescue Dist #5 C Whidbey GEN | 1.2008080668 | $742,542 | $742,542 | $891.65 | | |
| FIRE5BOND | Fire & Rescue Dist #5 C Whidbey BOND | 0.1400090713 | $742,542 | $742,542 | $103.96 | | |
| HOBOND | Hospital BOND | 0.1910887512 | $742,542 | $742,542 | $141.89 | | |
| HOGEN | Hospital GEN | 0.3902502903 | $742,542 | $742,542 | $289.78 | | |
| CE | County Current Expense | 0.3708482477 | $742,542 | $742,542 | $275.37 | | |
| CR | County Roads | 0.4584763726 | $742,542 | $742,542 | $340.44 | | |
| ISLANDEMS | Hospital GEN (EMS) | 0.5000000000 | $742,542 | $742,542 | $371.27 | | |
| LIB | Library Sno-Isle GEN | 0.3153421757 | $742,542 | $742,542 | $234.15 | | |
| LIBCAP | Library Sno-Isle BOND (Cap Fac Imp Area) | 0.0543427938 | $742,542 | $742,542 | $40.35 | | |
| POCOUP | Port of Coupeville GEN | 0.1093371703 | $742,542 | $742,542 | $81.19 | | |
| POCOUPIDD | Port of Coupeville IDD | 0.3409740022 | $742,542 | $742,542 | $253.19 | | |
| COUPSDTECH | School 204 CP (TECH) | 0.7545480007 | $742,542 | $742,542 | $560.28 | | |
| SCH204MO | School 204 Enrichment | 0.6716186034 | $742,542 | $742,542 | $498.71 | | |
| ST | State School | 1.3035497053 | $742,542 | $742,542 | $967.94 | | |
| ST2 | State School Part 2 | 0.8169543533 | $742,542 | $742,542 | $606.62 | | |
| | Total Tax Rate: | 7.6592568070 | | | | | |
| | | | | Taxes w/Current Exemptions: | $5,687.32 | | |
| | | | | Taxes w/o Exemptions: | $5,687.32 | | |
Improvement / Building
| Improvement #1: | RESIDENTIAL | State Code: | Y | 2392.0 sqft | Value: | $391,142 |
| Bathrooms: | 2 | Bedrooms: | 3 | | Ceiling: | DRYWALL PAINTED | Exterior Wall/Cover: | WOOD SIDING | | Floor Covering: | CARPET/VINYL 60-40 | Floor Structure: | WOOD W/SUBFLOOR | | Foundation: | CONCRETE | Heating: | FHA GAS | | Interior Finish: | DRYWALL PAINT | Plumbing Fixture Cnt: | 10 | | Roof Slope: | 8" IN 12" | Roof Structure/Cover: | CJ ASPHALT |
|
| | Type | Description | Class CD | Sub Class CD | Year Built | Area |
| | BAS | BASE/MAIN FLOOR | 4 | 0 | 1925 | 1064.0 |
| | DWN | DOWNSTAIRS LIVING AREA | 4 | 0 | 1925 | 840.0 |
| | OP3 | OPEN PORCH W/ROOF | 4 | 0 | 1925 | 600.0 |
| | UPS | UPPER STORY | 4 | 0 | 1925 | 488.0 |
| | oUTI | UTILITY | 3 | 0 | 1925 | 200.0 |
| | OWP | OPEN WOOD PORCH W/STEPS | 4 | 0 | 1925 | 34.0 |
| | ENP | ENCLOSED PORCH | 4 | 0 | 1925 | 218.8 |
Sketch
Property Image
Land
| 1 | HS | HOMESITE | 1.0000 | 43560.00 | 0.00 | 0.00 | 1.00 | $340,000 | $0 |
| 2 | 91 | UNDEVELOPED LAND-METES AND BOUNDS | 1.1400 | 49658.40 | 0.00 | 0.00 | 1.00 | $11,400 | $0 |
Roll Value History
| 2026 | N/A | N/A | N/A | N/A | N/A |
| 2025 | $391,142 | $351,400 | $0 | $742,542 | $742,542 |
| 2024 | $378,018 | $350,000 | $0 | $728,018 | $728,018 |
| 2023 | $383,251 | $340,000 | $0 | $723,251 | $723,251 |
| 2022 | $351,778 | $300,000 | $0 | $651,778 | $651,778 |
| 2021 | $310,005 | $220,000 | $0 | $530,005 | $530,005 |
| 2020 | $303,006 | $200,000 | $0 | $503,006 | $503,006 |
| 2019 | $227,706 | $250,000 | $0 | $477,706 | $477,706 |
| 2018 | $194,807 | $225,000 | $0 | $419,807 | $419,807 |
| 2017 | $167,861 | $170,000 | $0 | $337,861 | $337,861 |
| 2016 | $170,192 | $155,000 | $0 | $325,192 | $325,192 |
| 2015 | $172,524 | $150,000 | $0 | $322,524 | $322,524 |
| 2014 | $174,855 | $164,438 | $0 | $339,293 | $339,293 |
| 2013 | $177,187 | $164,438 | $0 | $341,625 | $341,625 |
| 2012 | $180,696 | $140,250 | $0 | $320,946 | $320,946 |
| 2011 | $183,027 | $165,000 | $0 | $348,027 | $348,027 |
| 2010 | $196,405 | $165,000 | $0 | $361,405 | $361,405 |
| 2009 | $204,877 | $175,000 | $0 | $379,877 | $379,877 |
| 2008 | $207,518 | $230,000 | $0 | $437,518 | $437,518 |
| 2007 | $77,624 | $215,000 | $0 | $292,624 | $292,624 |
Deed and Sales History
| 1 | 05/23/2017 | WD | Warranty Deed | WELLS, BOYD L | LEMLEY, CRAIG A | | | $418,000.00 | 29421 | 4423090 |
| 2 | 06/17/2009 | ESTSEPPROP | Establish Separate Property | WELLS, BOYD L | WELLS, BOYD L | | | $0.00 | 91373 | 4254227 |
| 3 | 06/04/2009 | WD | Warranty Deed | SULLIVAN, JERRY W | WELLS, BOYD L | | | $390,000.00 | 91372 | 4254226 |
| 4 | 12/09/2006 | WD | Warranty Deed | WELLS, BONNIE L | SULLIVAN, JERRY W | | | $345,500.00 | 65234 | 4189476 |
| 5 | 01/01/1900 | OTHER | Other - Misc. Documents | Unknown | WELLS, BONNIE L | | | $0.00 | 0 | 0 |
Payout Agreement
| No payout information available.. |