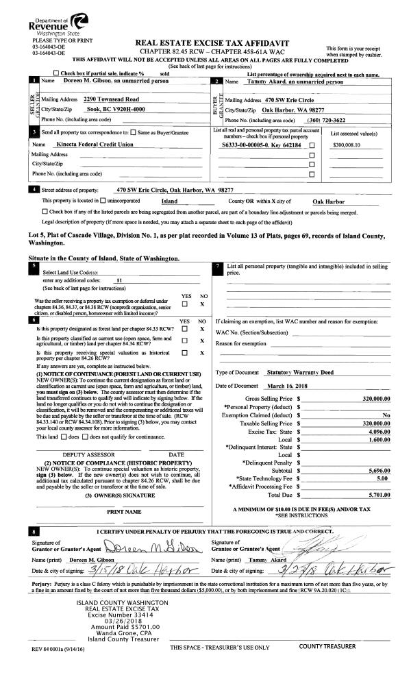
Property
Account |
| Property ID: | 805986 | Abbreviated Legal Description: | LOT 1 SP 179-03.13326.360-1680 V4 SP P44-45 AF#4097891 |
| Geographic ID: | R13326-381-1370 | Agent Code: | |
| Type: | Real | | |
| Tax Area: | 110 - APPRAISER-OH Schl Dist, outside OH, improved & 1 acre or less | Land Use Code | 67 |
| Open Space: | N | DFL | N |
| Historic Property: | N | Remodel Property: | N |
| Multi-Family Redevelopment: | N | | |
| Township: | 33 | Section: | 26 |
| Range: | R1 |
Location |
| Address: | | Mapsco: | |
| Neighborhood: | 6AcOH-goldie rd | Map ID: | 232 |
| Neighborhood CD: | 6AcOHgolde |
Owner |
| Name: | ISLAND COUNTY | Owner ID: | 307759 |
| Mailing Address: | FACILITIES MANAGEMENT 1 NE 7TH ST COUPEVILLE, WA 98239 | % Ownership: | 100.0000000000% |
| | | Exemptions: | EX |
Taxes and Assessment Details
Values
| (+) Improvement Homesite Value: | + | $0 | |
| (+) Improvement Non-Homesite Value: | + | $515,806 | |
| (+) Land Homesite Value: | + | $0 | |
| (+) Land Non-Homesite Value: | + | $192,100 | |
| (+) Curr Use (HS): | + | $0 | $0 |
| (+) Curr Use (NHS): | + | $0 | $0 |
| | | -------------------------- | |
| (=) Market Value: | = | $707,906 | |
| (–) Productivity Loss: | – | $0 | |
| | | -------------------------- | |
| (=) Subtotal: | = | $707,906 | |
| (+) Senior Appraised Value: | + | $0 | |
| (+) Non-Senior Appraised Value: | + | $707,906 | |
| | | -------------------------- | |
| (=) Total Appraised Value: | = | $707,906 | |
| (–) Senior Exemption Loss: | – | $0 | |
| (–) Exemption Loss: | – | $707,906 | |
| | | -------------------------- | |
| (=) Taxable Value: | = | $0 | |
Taxing Jurisdiction
| Owner: | ISLAND COUNTY | | |
| % Ownership: | 100.0000000000% | | |
| Total Value: | $707,906 | | |
| Tax Area: | 110 - APPRAISER-OH Schl Dist, outside OH, improved & 1 acre or less |
| CF | Conservation Futures | 0.0316035091 | $707,906 | $0 | $0.00 | | |
| CEM1 | Cemetery #1 | 0.0040320932 | $707,906 | $0 | $0.00 | | |
| FIRE2 | Fire & Rescue Dist #2 N Whidbey GEN | 0.5475949600 | $707,906 | $0 | $0.00 | | |
| HOBOND | Hospital BOND | 0.1910887512 | $707,906 | $0 | $0.00 | | |
| HOGEN | Hospital GEN | 0.3902502903 | $707,906 | $0 | $0.00 | | |
| CE | County Current Expense | 0.3708482477 | $707,906 | $0 | $0.00 | | |
| CR | County Roads | 0.4584763726 | $707,906 | $0 | $0.00 | | |
| ISLANDEMS | Hospital GEN (EMS) | 0.5000000000 | $707,906 | $0 | $0.00 | | |
| LIB | Library Sno-Isle GEN | 0.3153421757 | $707,906 | $0 | $0.00 | | |
| NWHIDPRMT | P & R N Whidbey GEN | 0.2004466701 | $707,906 | $0 | $0.00 | | |
| SCH201MO | School 201 Enrichment | 1.8559231640 | $707,906 | $0 | $0.00 | | |
| ST | State School | 1.3035497053 | $707,906 | $0 | $0.00 | | |
| ST2 | State School Part 2 | 0.8169543533 | $707,906 | $0 | $0.00 | | |
| | Total Tax Rate: | 6.9861102925 | | | | | |
| | | | | Taxes w/Current Exemptions: | $0.00 | | |
| | | | | Taxes w/o Exemptions: | $4,945.51 | | |
Improvement / Building
| Improvement #1: | COMMERCIAL | State Code: | Y | 1872.0 sqft | Value: | $515,806 |
| Bathrooms: | 2.5 | Bedrooms: | 3 | | Ceiling: | DRYWALL PAINTED | Exterior Wall/Cover: | CEMENT FIBER | | Floor Covering: | COLORED CONCRETE | Floor Structure: | SLAB ABOVE GRADE | | Foundation: | CONCRETE | Heating: | FHA GAS | | Interior Finish: | DRYWALL PAINT | Plumbing Fixture Cnt: | 13 | | Roof Slope: | 4" IN 12" | Roof Structure/Cover: | CJ ASPHALT |
|
| | Type | Description | Class CD | Sub Class CD | Year Built | Area |
| | BAS | BASE/MAIN FLOOR | 4 | 0 | 2006 | 1872.0 |
| | OP1 | OPEN PORCH SLAB | 4 | 0 | 2006 | 12086.4 |
| | OP4 | OPEN PORCH W/CEILING-ROOF | 4 | 0 | 2006 | 79.2 |
| | AGR | ATTACHED GARAGE | 4 | 0 | 2006 | 1720.0 |
| | oFN8 | CHN LK 6' | 4 | 0 | 2006 | 400.0 |
Sketch
Property Image
Land
| 1 | 72 | INDUSTRIAL STORAGE | 0.9800 | 42688.80 | 0.00 | 0.00 | 1.00 | $192,100 | $0 |
Roll Value History
| 2026 | N/A | N/A | N/A | N/A | N/A |
| 2025 | $515,806 | $192,100 | $0 | $707,906 | $0 |
| 2024 | $526,823 | $192,100 | $0 | $718,923 | $0 |
| 2023 | $532,852 | $170,755 | $0 | $703,607 | $0 |
| 2022 | $493,689 | $170,755 | $0 | $664,444 | $0 |
| 2021 | $434,415 | $170,755 | $0 | $605,170 | $0 |
| 2020 | $422,294 | $170,755 | $0 | $593,049 | $0 |
| 2019 | $307,204 | $170,755 | $0 | $477,959 | $0 |
| 2018 | $308,083 | $149,411 | $0 | $457,494 | $0 |
| 2017 | $309,843 | $170,755 | $0 | $480,598 | $0 |
| 2016 | $308,003 | $170,755 | $0 | $478,758 | $478,758 |
| 2015 | $308,003 | $88,835 | $0 | $396,838 | $396,838 |
| 2014 | $308,003 | $88,835 | $0 | $396,838 | $396,838 |
| 2013 | $308,003 | $88,835 | $0 | $396,838 | $396,838 |
| 2012 | $308,003 | $88,835 | $0 | $396,838 | $396,838 |
| 2011 | $308,003 | $88,835 | $0 | $396,838 | $396,838 |
| 2010 | $316,129 | $88,835 | $0 | $404,964 | $404,964 |
| 2009 | $329,286 | $96,911 | $0 | $426,197 | $426,197 |
| 2008 | $332,674 | $102,012 | $0 | $434,686 | $434,686 |
| 2007 | $332,758 | $102,012 | $0 | $434,770 | $434,770 |
Deed and Sales History
| 1 | 02/02/2018 | WD | Warranty Deed | LANGCO NW INC | ISLAND COUNTY | | | $430,000.00 | 32875 | 4438776 |
| 2 | 02/07/2008 | QCD | Quit Claim Deed | LANG BROTHER'S INVESTMENTS LLC | LANGCO NW INC, | | | $0.00 | 80335 | 4221619 |
| 3 | 10/18/2005 | 5 | DNU - Marriage License/Name Change | LANG BROTHER'S HOMES INC, | LANG BROTHER'S INVESTMENTS LLC | | | $0.00 | 55449 | 4152400 |
| 4 | 08/18/2005 | WD | Warranty Deed | KOETJE, GORDON | LANG BROTHER'S HOMES INC, | | | $75,000.00 | 54098 | 4144694 |
| 5 | 06/30/2004 | QCD | Quit Claim Deed | MASSEY, WM L | KOETJE, GORDON | | | $0.00 | 42834 | 4105025 |
| 6 | 01/01/1900 | OTHER | Other - Misc. Documents | Unknown | MASSEY, WM L | | | $0.00 | 0 | 0 |
Payout Agreement
| No payout information available.. |