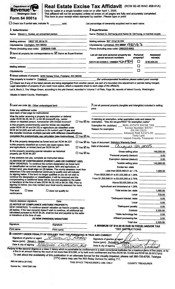
Property
Account |
| Property ID: | 806070 | Abbreviated Legal Description: | SE NW NW |
| Geographic ID: | R13111-447-1080 | Agent Code: | |
| Type: | Real | | |
| Tax Area: | 312 - APPRAISER-Cpvl Schl Dist, outside Cpvl, improved, greater than 1 acre | Land Use Code | 88 |
| Open Space: | N | DFL | Y |
| Historic Property: | N | Remodel Property: | N |
| Multi-Family Redevelopment: | N | | |
| Township: | 31 | Section: | 11 |
| Range: | R1 |
Location |
| Address: | 640 PATMORE RD COUPEVILLE, WA 98239 | Mapsco: | |
| Neighborhood: | Cycle 2 | Map ID: | 52 |
| Neighborhood CD: | 2 |
Owner |
| Name: | PERDUE TTEE, BLAKE C | Owner ID: | 308721 |
| Mailing Address: | ROBIN R CHIANG TTEE 1880 HOLLYHOCK LN GILROY, CA 95020 | % Ownership: | 100.0000000000% |
| | | Exemptions: | |
Taxes and Assessment Details
Values
| (+) Improvement Homesite Value: | + | $0 | |
| (+) Improvement Non-Homesite Value: | + | $638,744 | |
| (+) Land Homesite Value: | + | $0 | |
| (+) Land Non-Homesite Value: | + | $233,684 | |
| (+) Curr Use (HS): | + | $0 | $0 |
| (+) Curr Use (NHS): | + | $121,521 | $1,007 |
| | | -------------------------- | |
| (=) Market Value: | = | $993,949 | |
| (–) Productivity Loss: | – | $120,514 | |
| | | -------------------------- | |
| (=) Subtotal: | = | $873,435 | |
| (+) Senior Appraised Value: | + | $0 | |
| (+) Non-Senior Appraised Value: | + | $873,435 | |
| | | -------------------------- | |
| (=) Total Appraised Value: | = | $873,435 | |
| (–) Senior Exemption Loss: | – | $0 | |
| (–) Exemption Loss: | – | $0 | |
| | | -------------------------- | |
| (=) Taxable Value: | = | $873,435 | |
Taxing Jurisdiction
| Owner: | PERDUE TTEE, BLAKE C | | |
| % Ownership: | 100.0000000000% | | |
| Total Value: | $993,949 | | |
| Tax Area: | 312 - APPRAISER-Cpvl Schl Dist, outside Cpvl, improved, greater than 1 acre |
| CF | Conservation Futures | 0.0316035091 | $873,435 | $873,435 | $27.60 | | |
| CEM2 | Cemetery #2 | 0.0095056933 | $873,435 | $873,435 | $8.30 | | |
| FIRE5 | Fire & Rescue Dist #5 C Whidbey GEN | 1.2008080668 | $873,435 | $873,435 | $1,048.83 | | |
| FIRE5BOND | Fire & Rescue Dist #5 C Whidbey BOND | 0.1400090713 | $873,435 | $873,435 | $122.29 | | |
| HOBOND | Hospital BOND | 0.1910887512 | $873,435 | $873,435 | $166.90 | | |
| HOGEN | Hospital GEN | 0.3902502903 | $873,435 | $873,435 | $340.86 | | |
| CE | County Current Expense | 0.3708482477 | $873,435 | $873,435 | $323.91 | | |
| CR | County Roads | 0.4584763726 | $873,435 | $873,435 | $400.45 | | |
| ISLANDEMS | Hospital GEN (EMS) | 0.5000000000 | $873,435 | $873,435 | $436.72 | | |
| LIB | Library Sno-Isle GEN | 0.3153421757 | $873,435 | $873,435 | $275.43 | | |
| LIBCAP | Library Sno-Isle BOND (Cap Fac Imp Area) | 0.0543427938 | $873,435 | $873,435 | $47.46 | | |
| POCOUP | Port of Coupeville GEN | 0.1093371703 | $873,435 | $873,435 | $95.50 | | |
| POCOUPIDD | Port of Coupeville IDD | 0.3409740022 | $873,435 | $873,435 | $297.82 | | |
| COUPSDTECH | School 204 CP (TECH) | 0.7545480007 | $873,435 | $873,435 | $659.05 | | |
| SCH204MO | School 204 Enrichment | 0.6716186034 | $873,435 | $873,435 | $586.62 | | |
| ST | State School | 1.3035497053 | $873,435 | $873,435 | $1,138.57 | | |
| ST2 | State School Part 2 | 0.8169543533 | $873,435 | $873,435 | $713.56 | | |
| | Total Tax Rate: | 7.6592568070 | | | | | |
| | | | | Taxes w/Current Exemptions: | $6,689.87 | | |
| | | | | Taxes w/o Exemptions: | $6,689.87 | | |
Improvement / Building
| Improvement #1: | RESIDENTIAL | State Code: | Y | 2232.0 sqft | Value: | $448,428 |
| Bathrooms: | 2 | Bedrooms: | 3 | | Ceiling: | DRYWALL PAINTED | Exterior Wall/Cover: | SHINGLE | | Floor Covering: | HARDWOOD/CARP 20-80 | Floor Structure: | WOOD W/SUBFLOOR | | Foundation: | CONCRETE | Heating: | RADIANT FLOOR | | Interior Finish: | DRYWALL PAINT | Plumbing Fixture Cnt: | 14 | | Roof Slope: | 8" IN 12" | Roof Structure/Cover: | CJ ALUMINIUM HEAVY |
|
| | Type | Description | Class CD | Sub Class CD | Year Built | Area |
| | BAS | BASE/MAIN FLOOR | 4 | 0 | 1998 | 1364.0 |
| | UPH | HALF STORY | 4 | 0 | 1998 | 868.0 |
| | OWC | OPEN WOOD PORCH W/STEPS/ROOF/C | 4 | 0 | 1998 | 24.0 |
| | OWC | OPEN WOOD PORCH W/STEPS/ROOF/C | 4 | 0 | 1998 | 315.0 |
| | OWC | OPEN WOOD PORCH W/STEPS/ROOF/C | 4 | 0 | 1998 | 84.0 |
| | oSTA | STABLE | 3 | 0 | 1998 | 392.0 |
| | CPD | OPEN CARPORT DIRT FLOOR | 4 | 0 | 1998 | 160.0 |
| Improvement #2: | RESIDENTIAL | State Code: | Y | 1155.0 sqft | Value: | $190,316 |
| Bathrooms: | 0.75 | Bedrooms: | 0 | | Ceiling: | DRYWALL PAINTED | Exterior Wall/Cover: | WOOD SIDING | | Floor Covering: | CARPET/VINYL 60-40 | Floor Structure: | WOOD W/SUBFLOOR | | Foundation: | CONCRETE | Heating: | WALL HEAT ELECTRIC | | Interior Finish: | DRYWALL PAINT | Plumbing Fixture Cnt: | 6 | | Roof Slope: | 5" IN 12" | Roof Structure/Cover: | CJ ALUMINIUM HEAVY |
|
| | Type | Description | Class CD | Sub Class CD | Year Built | Area |
| | BAS | BASE/MAIN FLOOR | 2 | 0 | 1998 | 672.0 |
| | OP3 | OPEN PORCH W/ROOF | 2 | 0 | 1998 | 360.0 |
| | UTY | STORAGE/UTILITY | 2 | 0 | 1998 | 168.0 |
| | UPH | HALF STORY | 2 | 0 | 1998 | 483.0 |
| | UTY | STORAGE/UTILITY | 2 | 0 | 1998 | 240.0 |
Sketch
Property Image
Land
| 1 | 88 | DESIGNATED FOREST | 6.5800 | 286624.80 | 0.00 | 0.00 | 1.00 | $97,871 | $770 |
| 2 | HS | HOMESITE | 1.0000 | 43560.00 | 0.00 | 0.00 | 1.00 | $220,000 | $0 |
| 3 | 88 | DESIGNATED FOREST | 1.5900 | 69260.40 | 0.00 | 0.00 | 1.00 | $23,650 | $237 |
| 4 | 91 | UNDEVELOPED LAND-METES AND BOUNDS | 0.9200 | 40075.20 | 0.00 | 0.00 | 1.00 | $13,684 | $0 |
Roll Value History
| 2026 | N/A | N/A | N/A | N/A | N/A |
| 2025 | $638,744 | $355,205 | $1,007 | $873,435 | $873,435 |
| 2024 | $605,480 | $310,000 | $1,009 | $826,610 | $826,610 |
| 2023 | $612,843 | $290,000 | $966 | $668,992 | $668,992 |
| 2022 | $561,597 | $260,000 | $966 | $612,483 | $612,483 |
| 2021 | $494,125 | $225,000 | $966 | $537,906 | $537,906 |
| 2020 | $488,097 | $215,000 | $966 | $529,975 | $529,975 |
| 2019 | $363,143 | $250,000 | $932 | $411,647 | $411,647 |
| 2018 | $270,501 | $220,000 | $915 | $313,276 | $313,276 |
| 2017 | $271,797 | $200,000 | $915 | $310,769 | $310,769 |
| 2016 | $274,394 | $170,000 | $825 | $309,219 | $309,219 |
| 2015 | $276,990 | $214,413 | $825 | $318,615 | $318,615 |
| 2014 | $279,585 | $214,413 | $825 | $321,210 | $321,210 |
| 2013 | $282,182 | $214,413 | $825 | $323,807 | $323,807 |
| 2012 | $0 | $173,613 | $825 | $825 | $825 |
| 2011 | $0 | $204,250 | $825 | $825 | $825 |
| 2010 | $0 | $204,250 | $825 | $825 | $825 |
| 2009 | $0 | $204,250 | $825 | $825 | $825 |
| 2008 | $0 | $155,840 | $926 | $926 | $926 |
| 2007 | $0 | $215,630 | $926 | $926 | $926 |
Deed and Sales History
| 1 | 05/17/2023 | WD | Warranty Deed | HANBERG TTEE, ALLEN | PERDUE TTEE, BLAKE C | | | $850,000.00 | 56792 | 4560247 |
| 2 | 03/17/2020 | WD | Warranty Deed | LOBELL JTROS, ROBBIE | HANBERG TTEE, ALLEN | | | $625,000.00 | 42498 | 4483748 |
| 3 | 02/26/2010 | QCD | Quit Claim Deed | LOBELL JTROS, ROBBIE | LOBELL JTROS, ROBBIE | | | $0.00 | 648 | 4270762 |
| 4 | 10/10/2008 | QCD | Quit Claim Deed | LOBELL, ROBBIE | LOBELL JTROS, ROBBIE | | | $0.00 | 82671 | 4238242 |
| 5 | 07/07/2008 | QCD | Quit Claim Deed | LOBELL, CLAIRE | LOBELL, ROBBIE | | | $0.00 | 82014 | 4234053 |
| 6 | 07/12/2005 | SEG | DNU - Segregation | Unknown | SWAIN, CATHERINE | | | $0.00 | 70570 | 0 |
| 7 | 11/01/2004 | WD | Warranty Deed | SWAIN, CATHERINE | LOBELL, CLAIRE | | | $145,000.00 | 45705 | 4120072 |
Payout Agreement
| No payout information available.. |