Property
Account |
| Property ID: | 806111 | Abbreviated Legal Description: | REDWING #2 LOT 81 |
| Geographic ID: | S8008-02-00081-0 | Agent Code: | |
| Type: | Real | | |
| Tax Area: | 100 - APPRAISER-OH Schl Dist, in OH | Land Use Code | 11 |
| Open Space: | N | DFL | N |
| Historic Property: | N | Remodel Property: | N |
| Multi-Family Redevelopment: | N | | |
| Township: | | Section: | |
| Range: | |
Location |
| Address: | 1017 NE KELLY PLACE OAK HARBOR, WA 98277 | Mapsco: | |
| Neighborhood: | Cycle 1 | Map ID: | 254 |
| Neighborhood CD: | 1 |
Owner |
| Name: | SPRINGER, JEREMY | Owner ID: | 312981 |
| Mailing Address: | SHANTEL SPRINGER 1017 NW KELLY PL OAK HARBOR, WA 98277 | % Ownership: | 100.0000000000% |
| | | Exemptions: | |
Taxes and Assessment Details
Values
| (+) Improvement Homesite Value: | + | $0 | |
| (+) Improvement Non-Homesite Value: | + | $329,455 | |
| (+) Land Homesite Value: | + | $0 | |
| (+) Land Non-Homesite Value: | + | $200,000 | |
| (+) Curr Use (HS): | + | $0 | $0 |
| (+) Curr Use (NHS): | + | $0 | $0 |
| | | -------------------------- | |
| (=) Market Value: | = | $529,455 | |
| (–) Productivity Loss: | – | $0 | |
| | | -------------------------- | |
| (=) Subtotal: | = | $529,455 | |
| (+) Senior Appraised Value: | + | $0 | |
| (+) Non-Senior Appraised Value: | + | $529,455 | |
| | | -------------------------- | |
| (=) Total Appraised Value: | = | $529,455 | |
| (–) Senior Exemption Loss: | – | $0 | |
| (–) Exemption Loss: | – | $0 | |
| | | -------------------------- | |
| (=) Taxable Value: | = | $529,455 | |
Taxing Jurisdiction
| Owner: | SPRINGER, JEREMY | | |
| % Ownership: | 100.0000000000% | | |
| Total Value: | $529,455 | | |
| Tax Area: | 100 - APPRAISER-OH Schl Dist, in OH |
| CF | Conservation Futures | 0.0316035091 | $529,455 | $529,455 | $16.73 | | |
| CEM1 | Cemetery #1 | 0.0040320932 | $529,455 | $529,455 | $2.13 | | |
| COH | City of Oak Harbor | 2.3001546061 | $529,455 | $529,455 | $1,217.83 | | |
| OAKBOND | City of Oak Harbor BOND | 0.1926904192 | $529,455 | $529,455 | $102.02 | | |
| HOBOND | Hospital BOND | 0.1910887512 | $529,455 | $529,455 | $101.17 | | |
| HOGEN | Hospital GEN | 0.3902502903 | $529,455 | $529,455 | $206.62 | | |
| CE | County Current Expense | 0.3708482477 | $529,455 | $529,455 | $196.35 | | |
| ISLANDEMS | Hospital GEN (EMS) | 0.5000000000 | $529,455 | $529,455 | $264.73 | | |
| LIB | Library Sno-Isle GEN | 0.3153421757 | $529,455 | $529,455 | $166.96 | | |
| NWHIDPRMT | P & R N Whidbey GEN | 0.2004466701 | $529,455 | $529,455 | $106.13 | | |
| SCH201MO | School 201 Enrichment | 1.8559231640 | $529,455 | $529,455 | $982.63 | | |
| ST | State School | 1.3035497053 | $529,455 | $529,455 | $690.17 | | |
| ST2 | State School Part 2 | 0.8169543533 | $529,455 | $529,455 | $432.54 | | |
| | Total Tax Rate: | 8.4728839852 | | | | | |
| | | | | Taxes w/Current Exemptions: | $4,486.01 | | |
| | | | | Taxes w/o Exemptions: | $4,486.01 | | |
Improvement / Building
| Improvement #1: | RESIDENTIAL | State Code: | Y | 1989.5 sqft | Value: | $329,455 |
| Bathrooms: | 2.5 | Bedrooms: | 4 | | Ceiling: | DRYWALL PAINTED | Exterior Wall/Cover: | VINYL | | Floor Covering: | VINYL 100% | Floor Structure: | WOOD W/SUBFLOOR | | Foundation: | CONCRETE | Heating: | FHA GAS | | Interior Finish: | DRYWALL PAINT | Plumbing Fixture Cnt: | 12 | | Roof Slope: | 6" IN 12" | Roof Structure/Cover: | CJ ASPHALT |
|
| | Type | Description | Class CD | Sub Class CD | Year Built | Area |
| | BAS | BASE/MAIN FLOOR | 3 | 0 | 2005 | 843.0 |
| | BIG | BUILT IN GARAGE | 3 | 0 | 2005 | 426.0 |
| | UPS | UPPER STORY | 3 | 0 | 2005 | 1146.5 |
| | OWP | OPEN WOOD PORCH W/STEPS | 3 | 0 | 2005 | 371.2 |
| | OWC | OPEN WOOD PORCH W/STEPS/ROOF/C | 3 | 0 | 2005 | 44.8 |
Sketch
| No sketches available for this property. |
Property Image
Land
| 1 | 14 | SQ (08001-12000) | 0.2000 | 8712.00 | 0.00 | 0.00 | 1.00 | $200,000 | $0 |
Roll Value History
| 2026 | N/A | N/A | N/A | N/A | N/A |
| 2025 | $329,455 | $200,000 | $0 | $529,455 | $529,455 |
| 2024 | $320,184 | $175,000 | $0 | $495,184 | $495,184 |
| 2023 | $323,897 | $180,000 | $0 | $503,897 | $503,897 |
| 2022 | $296,657 | $180,000 | $0 | $476,657 | $476,657 |
| 2021 | $255,020 | $120,000 | $0 | $375,020 | $375,020 |
| 2020 | $248,378 | $100,000 | $0 | $348,378 | $348,378 |
| 2019 | $188,000 | $150,000 | $0 | $338,000 | $338,000 |
| 2018 | $188,526 | $130,000 | $0 | $318,526 | $318,526 |
| 2017 | $188,155 | $110,000 | $0 | $298,155 | $298,155 |
| 2016 | $190,216 | $90,000 | $0 | $280,216 | $280,216 |
| 2015 | $192,276 | $55,000 | $0 | $247,276 | $247,276 |
| 2014 | $194,339 | $55,000 | $0 | $249,339 | $249,339 |
| 2013 | $196,400 | $25,478 | $0 | $221,878 | $221,878 |
| 2012 | $196,400 | $25,478 | $0 | $221,878 | $221,878 |
| 2011 | $196,400 | $25,478 | $0 | $221,878 | $221,878 |
| 2010 | $205,530 | $25,478 | $0 | $231,008 | $231,008 |
| 2009 | $212,029 | $55,000 | $0 | $267,029 | $267,029 |
| 2008 | $214,527 | $79,500 | $0 | $294,027 | $294,027 |
| 2007 | $216,970 | $95,000 | $0 | $311,970 | $311,970 |
Deed and Sales History
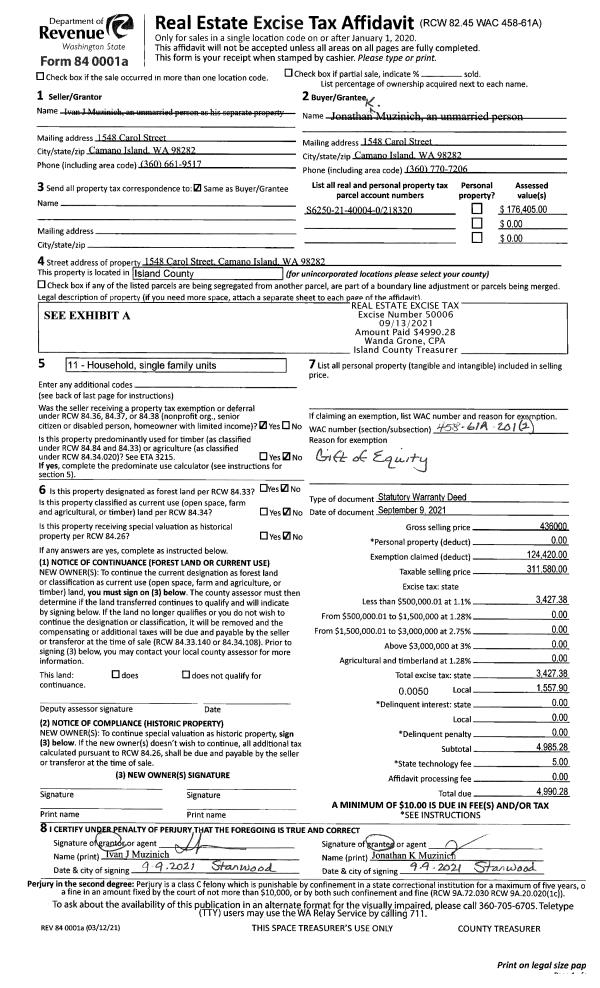
| 1 | 06/21/2024 | WD | Warranty Deed | DYSART, DAVID CHRISTOPHER | SPRINGER, JEREMY | | | $560,000.00 | 60500 | 4574062 |
| 2 | 03/09/2021 | WD | Warranty Deed | RIDGWAY, CHRISTOPHER S | DYSART, DAVID CHRISTOPHER | | | $479,500.00 | 47439 | 4514302 |
| 3 | 05/13/2005 | WD | Warranty Deed | ISLAND CONSTRUCTION INC, | RIDGWAY, CHRISTOPHER S | | | $231,900.00 | 52135 | 4134227 |
| 4 | 11/05/2004 | QCD | Quit Claim Deed | MASSEY, W L | ISLAND CONSTRUCTION INC, | | | $0.00 | 45272 | 4117663 |
| 5 | 01/01/1900 | OTHER | Other - Misc. Documents | Unknown | MASSEY, W L | | | $0.00 | 0 | 0 |
Payout Agreement
| No payout information available.. |