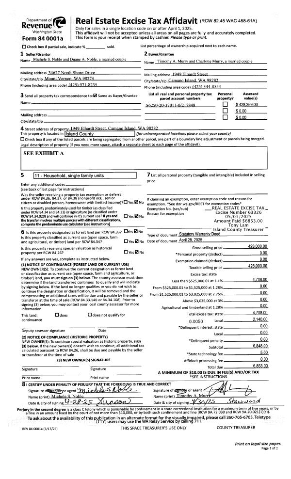
Property
Account |
| Property ID: | 806147 | Abbreviated Legal Description: | LOT 2 SP 81-03.13217.464-3050 V4 SP P93 AF# 4130650 |
| Geographic ID: | R13217-490-3070 | Agent Code: | |
| Type: | Real | | |
| Tax Area: | 112 - APPRAISER-OH Schl Dist, outside OH, improved, greater than 1 acre | Land Use Code | 11 |
| Open Space: | N | DFL | N |
| Historic Property: | N | Remodel Property: | N |
| Multi-Family Redevelopment: | N | | |
| Township: | 32 | Section: | 17 |
| Range: | R1 |
Location |
| Address: | | Mapsco: | |
| Neighborhood: | Cycle 1 | Map ID: | 135 |
| Neighborhood CD: | 1 |
Owner |
| Name: | RODRIGUEZ JR, DANIEL ZACKARY | Owner ID: | 313926 |
| Mailing Address: | RACHEL VANESSA RODRIGUEZ 1740 HASTIE LAKE RD OAK HARBOR, WA 98277 | % Ownership: | 100.0000000000% |
| | | Exemptions: | |
Taxes and Assessment Details
Values
| (+) Improvement Homesite Value: | + | $0 | |
| (+) Improvement Non-Homesite Value: | + | $686,009 | |
| (+) Land Homesite Value: | + | $0 | |
| (+) Land Non-Homesite Value: | + | $290,000 | |
| (+) Curr Use (HS): | + | $0 | $0 |
| (+) Curr Use (NHS): | + | $0 | $0 |
| | | -------------------------- | |
| (=) Market Value: | = | $976,009 | |
| (–) Productivity Loss: | – | $0 | |
| | | -------------------------- | |
| (=) Subtotal: | = | $976,009 | |
| (+) Senior Appraised Value: | + | $0 | |
| (+) Non-Senior Appraised Value: | + | $976,009 | |
| | | -------------------------- | |
| (=) Total Appraised Value: | = | $976,009 | |
| (–) Senior Exemption Loss: | – | $0 | |
| (–) Exemption Loss: | – | $0 | |
| | | -------------------------- | |
| (=) Taxable Value: | = | $976,009 | |
Taxing Jurisdiction
| Owner: | RODRIGUEZ JR, DANIEL ZACKARY | | |
| % Ownership: | 100.0000000000% | | |
| Total Value: | $976,009 | | |
| Tax Area: | 112 - APPRAISER-OH Schl Dist, outside OH, improved, greater than 1 acre |
| CF | Conservation Futures | 0.0316035091 | $976,009 | $976,009 | $30.85 | | |
| CEM1 | Cemetery #1 | 0.0040320932 | $976,009 | $976,009 | $3.94 | | |
| FIRE2 | Fire & Rescue Dist #2 N Whidbey GEN | 0.5475949600 | $976,009 | $976,009 | $534.46 | | |
| HOBOND | Hospital BOND | 0.1910887512 | $976,009 | $976,009 | $186.50 | | |
| HOGEN | Hospital GEN | 0.3902502903 | $976,009 | $976,009 | $380.89 | | |
| CE | County Current Expense | 0.3708482477 | $976,009 | $976,009 | $361.95 | | |
| CR | County Roads | 0.4584763726 | $976,009 | $976,009 | $447.48 | | |
| ISLANDEMS | Hospital GEN (EMS) | 0.5000000000 | $976,009 | $976,009 | $488.00 | | |
| LIB | Library Sno-Isle GEN | 0.3153421757 | $976,009 | $976,009 | $307.78 | | |
| NWHIDPRMT | P & R N Whidbey GEN | 0.2004466701 | $976,009 | $976,009 | $195.64 | | |
| SCH201MO | School 201 Enrichment | 1.8559231640 | $976,009 | $976,009 | $1,811.40 | | |
| ST | State School | 1.3035497053 | $976,009 | $976,009 | $1,272.28 | | |
| ST2 | State School Part 2 | 0.8169543533 | $976,009 | $976,009 | $797.35 | | |
| | Total Tax Rate: | 6.9861102925 | | | | | |
| | | | | Taxes w/Current Exemptions: | $6,818.52 | | |
| | | | | Taxes w/o Exemptions: | $6,818.52 | | |
Improvement / Building
| Improvement #1: | RESIDENTIAL | State Code: | Y | 3306.1 sqft | Value: | $686,009 |
| Bathrooms: | 2.5 | Bedrooms: | 4 | | Ceiling: | DRYWALL PAINTED | Exterior Wall/Cover: | CEMENT FIBER | | Floor Covering: | HARDWOOD 100% | Floor Structure: | WOOD W/SUBFLOOR | | Foundation: | CONCRETE | Heating: | RADIANT FLOOR | | Interior Finish: | DRYWALL PAINT | Plumbing Fixture Cnt: | 15 | | Roof Slope: | 6" IN 12" | Roof Structure/Cover: | CJ ASPHALT |
|
| | Type | Description | Class CD | Sub Class CD | Year Built | Area |
| | BAS | BASE/MAIN FLOOR | 4 | 0 | 2005 | 1936.0 |
| | AGR | ATTACHED GARAGE | 4 | 0 | 2005 | 720.0 |
| | UPS | UPPER STORY | 4 | 0 | 2005 | 1370.1 |
| | OWP | OPEN WOOD PORCH W/STEPS | 4 | 0 | 2005 | 96.0 |
| | OWR | OPEN WOOD PORCH W/STEPS/ROOF | 4 | 0 | 2005 | 371.9 |
| | OWR | OPEN WOOD PORCH W/STEPS/ROOF | 4 | 0 | 2005 | 24.0 |
| | oPOL | POLE BARN | 4 | 0 | 2005 | 1728.0 |
Sketch
| No sketches available for this property. |
Property Image
Land
| 1 | 32 | AC (03.01-09.99) | 7.8000 | 339768.00 | 0.00 | 0.00 | 1.00 | $290,000 | $0 |
Roll Value History
| 2026 | N/A | N/A | N/A | N/A | N/A |
| 2025 | $686,009 | $290,000 | $0 | $976,009 | $976,009 |
| 2024 | $652,541 | $260,000 | $0 | $912,541 | $912,541 |
| 2023 | $629,844 | $250,000 | $0 | $879,844 | $879,844 |
| 2022 | $577,186 | $220,000 | $0 | $797,186 | $797,186 |
| 2021 | $507,855 | $190,000 | $0 | $697,855 | $697,855 |
| 2020 | $495,448 | $140,000 | $0 | $635,448 | $635,448 |
| 2019 | $395,165 | $200,000 | $0 | $595,165 | $595,165 |
| 2018 | $396,297 | $170,000 | $0 | $566,297 | $566,297 |
| 2017 | $374,511 | $160,000 | $0 | $534,511 | $534,511 |
| 2016 | $378,265 | $160,000 | $0 | $538,265 | $538,265 |
| 2015 | $382,017 | $150,000 | $0 | $532,017 | $532,017 |
| 2014 | $385,773 | $150,000 | $0 | $535,773 | $535,773 |
| 2013 | $389,526 | $105,300 | $0 | $494,826 | $494,826 |
| 2012 | $393,280 | $105,300 | $0 | $498,580 | $498,580 |
| 2011 | $451,589 | $117,000 | $0 | $568,589 | $568,589 |
| 2010 | $455,867 | $117,000 | $0 | $572,867 | $572,867 |
| 2009 | $474,050 | $171,600 | $0 | $645,650 | $645,650 |
| 2008 | $475,075 | $222,300 | $0 | $697,375 | $697,375 |
| 2007 | $475,714 | $222,300 | $0 | $698,014 | $698,014 |
Deed and Sales History
| 1 | 09/18/2024 | WD | Warranty Deed | KENWORTHY, WESLEY D | RODRIGUEZ JR, DANIEL ZACKARY | | | $980,000.00 | 61308 | 4577257 |
| 2 | 01/01/1900 | OTHER | Other - Misc. Documents | Unknown | KENWORTHY, WESLEY D | | | $0.00 | 0 | 0 |
Payout Agreement
| No payout information available.. |