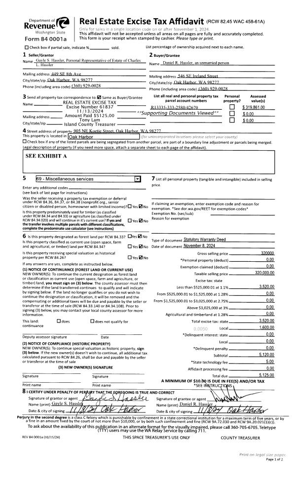
Property
Account |
| Property ID: | 806152 | Abbreviated Legal Description: | SCENIC TERRACE CONDO UNIT C-3 3.3% INT |
| Geographic ID: | S8117-00-0000C-3 | Agent Code: | |
| Type: | Real | | |
| Tax Area: | 100 - APPRAISER-OH Schl Dist, in OH | Land Use Code | 14 |
| Open Space: | N | DFL | N |
| Historic Property: | N | Remodel Property: | N |
| Multi-Family Redevelopment: | N | | |
| Township: | | Section: | |
| Range: | |
Location |
| Address: | 2012 SW SCENIC HEIGHTS ST UNIT C3 OAK HARBOR, WA 98277 | Mapsco: | |
| Neighborhood: | 3A*OH-scenic terr | Map ID: | 91 |
| Neighborhood CD: | 3A*OHscntr |
Owner |
| Name: | BLACK, MATTHEW L | Owner ID: | 310680 |
| Mailing Address: | 854 WEST BLUEWATER LN OAK HARBOR, WA 98277 | % Ownership: | 100.0000000000% |
| | | Exemptions: | |
Taxes and Assessment Details
Values
| (+) Improvement Homesite Value: | + | $0 | |
| (+) Improvement Non-Homesite Value: | + | $240,946 | |
| (+) Land Homesite Value: | + | $0 | |
| (+) Land Non-Homesite Value: | + | $120,000 | |
| (+) Curr Use (HS): | + | $0 | $0 |
| (+) Curr Use (NHS): | + | $0 | $0 |
| | | -------------------------- | |
| (=) Market Value: | = | $360,946 | |
| (–) Productivity Loss: | – | $0 | |
| | | -------------------------- | |
| (=) Subtotal: | = | $360,946 | |
| (+) Senior Appraised Value: | + | $0 | |
| (+) Non-Senior Appraised Value: | + | $360,946 | |
| | | -------------------------- | |
| (=) Total Appraised Value: | = | $360,946 | |
| (–) Senior Exemption Loss: | – | $0 | |
| (–) Exemption Loss: | – | $0 | |
| | | -------------------------- | |
| (=) Taxable Value: | = | $360,946 | |
Taxing Jurisdiction
| Owner: | BLACK, MATTHEW L | | |
| % Ownership: | 100.0000000000% | | |
| Total Value: | $360,946 | | |
| Tax Area: | 100 - APPRAISER-OH Schl Dist, in OH |
| CF | Conservation Futures | 0.0316035091 | $360,946 | $360,946 | $11.41 | | |
| CEM1 | Cemetery #1 | 0.0040320932 | $360,946 | $360,946 | $1.46 | | |
| COH | City of Oak Harbor | 2.3001546061 | $360,946 | $360,946 | $830.23 | | |
| OAKBOND | City of Oak Harbor BOND | 0.1926904192 | $360,946 | $360,946 | $69.55 | | |
| HOBOND | Hospital BOND | 0.1910887512 | $360,946 | $360,946 | $68.97 | | |
| HOGEN | Hospital GEN | 0.3902502903 | $360,946 | $360,946 | $140.86 | | |
| CE | County Current Expense | 0.3708482477 | $360,946 | $360,946 | $133.86 | | |
| ISLANDEMS | Hospital GEN (EMS) | 0.5000000000 | $360,946 | $360,946 | $180.47 | | |
| LIB | Library Sno-Isle GEN | 0.3153421757 | $360,946 | $360,946 | $113.82 | | |
| NWHIDPRMT | P & R N Whidbey GEN | 0.2004466701 | $360,946 | $360,946 | $72.35 | | |
| SCH201MO | School 201 Enrichment | 1.8559231640 | $360,946 | $360,946 | $669.89 | | |
| ST | State School | 1.3035497053 | $360,946 | $360,946 | $470.51 | | |
| ST2 | State School Part 2 | 0.8169543533 | $360,946 | $360,946 | $294.88 | | |
| | Total Tax Rate: | 8.4728839852 | | | | | |
| | | | | Taxes w/Current Exemptions: | $3,058.26 | | |
| | | | | Taxes w/o Exemptions: | $3,058.26 | | |
Improvement / Building
| Improvement #1: | RESIDENTIAL | State Code: | A1 | 1439.0 sqft | Value: | $240,946 |
| Bathrooms: | 2.5 | Bedrooms: | 3 | | Ceiling: | DRYWALL PAINTED | Exterior Wall/Cover: | CEMENT FIBER | | Floor Covering: | CARPET/VINYL 80-20 | Floor Structure: | WOOD W/SUBFLOOR | | Foundation: | CONCRETE | Heating: | FHA GAS | | Interior Finish: | DRYWALL PAINT | Plumbing Fixture Cnt: | 11 | | Roof Slope: | 4" IN 12" | Roof Structure/Cover: | CJ ASPHALT |
|
| | Type | Description | Class CD | Sub Class CD | Year Built | Area |
| | BAS | BASE/MAIN FLOOR | 3 | 0 | 2005 | 665.0 |
| | OP1 | OPEN PORCH SLAB | 3 | 0 | 2005 | 38.7 |
| | OP4 | OPEN PORCH W/CEILING-ROOF | 3 | 0 | 2005 | 43.4 |
| | BIG | BUILT IN GARAGE | 3 | 0 | 2005 | 457.6 |
| | UPS | UPPER STORY | 3 | 0 | 2005 | 656.0 |
| | OWP | OPEN WOOD PORCH W/STEPS | 3 | 0 | 2005 | 60.0 |
| | DWN | DOWNSTAIRS LIVING AREA | 3 | 0 | 2005 | 118.0 |
| | COMA | Common Area Improvement | 3 | 0 | 2005 | 0.0 |
Sketch
Property Image
Land
| 1 | 61 | MULTIPLE RESIDENCES | 0.0000 | 1420.00 | 0.00 | 0.00 | 1.00 | $120,000 | $0 |
Roll Value History
| 2026 | N/A | N/A | N/A | N/A | N/A |
| 2025 | $240,946 | $120,000 | $0 | $360,946 | $360,946 |
| 2024 | $243,770 | $120,000 | $0 | $363,770 | $363,770 |
| 2023 | $232,475 | $120,000 | $0 | $352,475 | $352,475 |
| 2022 | $213,088 | $120,000 | $0 | $333,088 | $333,088 |
| 2021 | $187,543 | $120,000 | $0 | $307,543 | $307,543 |
| 2020 | $182,330 | $80,000 | $0 | $262,330 | $262,330 |
| 2019 | $151,999 | $95,000 | $0 | $246,999 | $246,999 |
| 2018 | $152,422 | $65,000 | $0 | $217,422 | $217,422 |
| 2017 | $153,268 | $24,000 | $0 | $177,268 | $177,268 |
| 2016 | $154,960 | $24,000 | $0 | $178,960 | $178,960 |
| 2015 | $130,020 | $24,000 | $0 | $154,020 | $154,020 |
| 2014 | $131,424 | $24,000 | $0 | $155,424 | $155,424 |
| 2013 | $132,830 | $22,720 | $0 | $155,550 | $155,550 |
| 2012 | $163,420 | $22,720 | $0 | $186,140 | $186,140 |
| 2011 | $163,420 | $22,720 | $0 | $186,140 | $186,140 |
| 2010 | $164,583 | $33,381 | $0 | $197,964 | $197,964 |
| 2009 | $169,712 | $53,471 | $0 | $223,183 | $223,183 |
| 2008 | $171,573 | $53,471 | $0 | $225,044 | $225,044 |
| 2007 | $174,112 | $53,471 | $0 | $227,583 | $227,583 |
Deed and Sales History
| 1 | 11/14/2023 | WD | Warranty Deed | ROSE, KATHERINE | BLACK, MATTHEW L | | | $390,000.00 | 58525 | 4566776 |
| 2 | 11/08/2023 | QCD | Quit Claim Deed | ANDERSON, ERIC ELDON | ROSE, KATHERINE | | | $0.00 | 58524 | 4566775 |
| 3 | 03/30/2021 | WD | Warranty Deed | BECKMAN, JOE | ANDERSON, MARY T | | | $330,150.00 | 47696 | 4516033 |
| 4 | 09/13/2014 | WD | Warranty Deed | MICHELSON, CHAD M | BECKMAN, JOE | | | $173,000.00 | 16830 | 4365652 |
| 5 | 10/19/2006 | WD | Warranty Deed | HEMPFLING, DAVID A | MICHELSON, CHAD M | | | $238,000.00 | 64573 | 4185137 |
| 6 | 03/28/2005 | WD | Warranty Deed | TERRACE LLC, SCENIC | HEMPFLING, DAVID A | | | $170,000.00 | 51270 | 4129811 |
| 7 | 01/01/1900 | OTHER | Other - Misc. Documents | Unknown | TERRACE LLC, SCENIC | | | $0.00 | 0 | 0 |
Payout Agreement
| No payout information available.. |