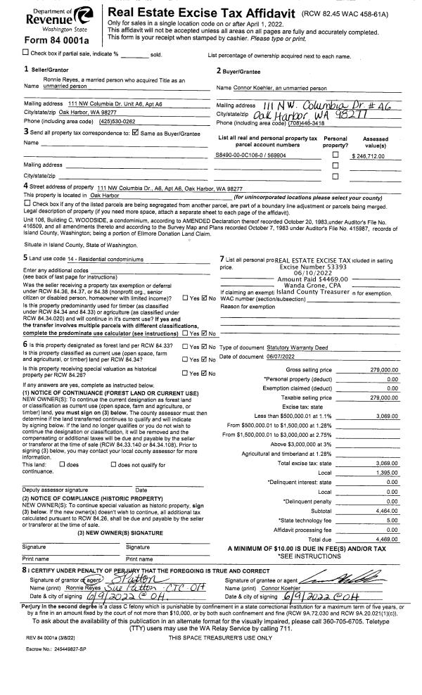
Property
Account |
| Property ID: | 806188 | Abbreviated Legal Description: | SCENIC TERRACE CONDO UNIT E-1 3.1% INT |
| Geographic ID: | S8117-00-0000E-1 | Agent Code: | |
| Type: | Real | | |
| Tax Area: | 100 - APPRAISER-OH Schl Dist, in OH | Land Use Code | 14 |
| Open Space: | N | DFL | N |
| Historic Property: | N | Remodel Property: | N |
| Multi-Family Redevelopment: | N | | |
| Township: | | Section: | |
| Range: | |
Location |
| Address: | 2012 SW SCENIC HEIGHTS ST UNIT E1 OAK HARBOR, WA 98277 | Mapsco: | |
| Neighborhood: | 3A*OH-scenic terr | Map ID: | 91 |
| Neighborhood CD: | 3A*OHscntr |
Owner |
| Name: | ANDERSON, ERIC ELDON | Owner ID: | 302453 |
| Mailing Address: | 1890 SCENIC HEIGHTS ST #E1 OAK HARBOR, WA 98277 | % Ownership: | 100.0000000000% |
| | | Exemptions: | |
Taxes and Assessment Details
Values
| (+) Improvement Homesite Value: | + | $0 | |
| (+) Improvement Non-Homesite Value: | + | $220,215 | |
| (+) Land Homesite Value: | + | $0 | |
| (+) Land Non-Homesite Value: | + | $120,000 | |
| (+) Curr Use (HS): | + | $0 | $0 |
| (+) Curr Use (NHS): | + | $0 | $0 |
| | | -------------------------- | |
| (=) Market Value: | = | $340,215 | |
| (–) Productivity Loss: | – | $0 | |
| | | -------------------------- | |
| (=) Subtotal: | = | $340,215 | |
| (+) Senior Appraised Value: | + | $0 | |
| (+) Non-Senior Appraised Value: | + | $340,215 | |
| | | -------------------------- | |
| (=) Total Appraised Value: | = | $340,215 | |
| (–) Senior Exemption Loss: | – | $0 | |
| (–) Exemption Loss: | – | $0 | |
| | | -------------------------- | |
| (=) Taxable Value: | = | $340,215 | |
Taxing Jurisdiction
| Owner: | ANDERSON, ERIC ELDON | | |
| % Ownership: | 100.0000000000% | | |
| Total Value: | $340,215 | | |
| Tax Area: | 100 - APPRAISER-OH Schl Dist, in OH |
| CF | Conservation Futures | 0.0316035091 | $340,215 | $340,215 | $10.75 | | |
| CEM1 | Cemetery #1 | 0.0040320932 | $340,215 | $340,215 | $1.37 | | |
| COH | City of Oak Harbor | 2.3001546061 | $340,215 | $340,215 | $782.55 | | |
| OAKBOND | City of Oak Harbor BOND | 0.1926904192 | $340,215 | $340,215 | $65.56 | | |
| HOBOND | Hospital BOND | 0.1910887512 | $340,215 | $340,215 | $65.01 | | |
| HOGEN | Hospital GEN | 0.3902502903 | $340,215 | $340,215 | $132.77 | | |
| CE | County Current Expense | 0.3708482477 | $340,215 | $340,215 | $126.17 | | |
| ISLANDEMS | Hospital GEN (EMS) | 0.5000000000 | $340,215 | $340,215 | $170.11 | | |
| LIB | Library Sno-Isle GEN | 0.3153421757 | $340,215 | $340,215 | $107.28 | | |
| NWHIDPRMT | P & R N Whidbey GEN | 0.2004466701 | $340,215 | $340,215 | $68.19 | | |
| SCH201MO | School 201 Enrichment | 1.8559231640 | $340,215 | $340,215 | $631.41 | | |
| ST | State School | 1.3035497053 | $340,215 | $340,215 | $443.49 | | |
| ST2 | State School Part 2 | 0.8169543533 | $340,215 | $340,215 | $277.94 | | |
| | Total Tax Rate: | 8.4728839852 | | | | | |
| | | | | Taxes w/Current Exemptions: | $2,882.60 | | |
| | | | | Taxes w/o Exemptions: | $2,882.60 | | |
Improvement / Building
| Improvement #1: | RESIDENTIAL | State Code: | A1 | 1361.0 sqft | Value: | $220,215 |
| Bathrooms: | 2.5 | Bedrooms: | 3 | | Ceiling: | DRYWALL PAINTED | Exterior Wall/Cover: | CEMENT FIBER | | Floor Covering: | CARPET/VINYL 80-20 | Floor Structure: | WOOD W/SUBFLOOR | | Foundation: | CONCRETE | Heating: | FHA GAS | | Interior Finish: | DRYWALL PAINT | Plumbing Fixture Cnt: | 11 | | Roof Slope: | 4" IN 12" | Roof Structure/Cover: | CJ ASPHALT |
|
| | Type | Description | Class CD | Sub Class CD | Year Built | Area |
| | BAS | BASE/MAIN FLOOR | 3 | 0 | 2005 | 586.4 |
| | OP1 | OPEN PORCH SLAB | 3 | 0 | 2005 | 38.7 |
| | OP4 | OPEN PORCH W/CEILING-ROOF | 3 | 0 | 2005 | 43.4 |
| | BIG | BUILT IN GARAGE | 3 | 0 | 2005 | 457.6 |
| | UPS | UPPER STORY | 3 | 0 | 2005 | 656.6 |
| | OWP | OPEN WOOD PORCH W/STEPS | 3 | 0 | 2005 | 60.0 |
| | DWN | DOWNSTAIRS LIVING AREA | 3 | 0 | 2005 | 118.0 |
| | COMA | Common Area Improvement | 3 | 0 | 2005 | 0.0 |
Sketch
Property Image
Land
| 1 | 61 | MULTIPLE RESIDENCES | 0.0000 | 1329.00 | 0.00 | 0.00 | 1.00 | $120,000 | $0 |
Roll Value History
| 2026 | N/A | N/A | N/A | N/A | N/A |
| 2025 | $220,215 | $120,000 | $0 | $340,215 | $340,215 |
| 2024 | $222,957 | $120,000 | $0 | $342,957 | $342,957 |
| 2023 | $225,699 | $120,000 | $0 | $345,699 | $345,699 |
| 2022 | $206,867 | $120,000 | $0 | $326,867 | $326,867 |
| 2021 | $182,072 | $120,000 | $0 | $302,072 | $302,072 |
| 2020 | $176,919 | $80,000 | $0 | $256,919 | $256,919 |
| 2019 | $146,398 | $95,000 | $0 | $241,398 | $241,398 |
| 2018 | $146,805 | $65,000 | $0 | $211,805 | $211,805 |
| 2017 | $147,621 | $24,000 | $0 | $171,621 | $171,621 |
| 2016 | $149,253 | $24,000 | $0 | $173,253 | $173,253 |
| 2015 | $125,234 | $24,000 | $0 | $149,234 | $149,234 |
| 2014 | $126,588 | $24,000 | $0 | $150,588 | $150,588 |
| 2013 | $127,942 | $21,664 | $0 | $149,606 | $149,606 |
| 2012 | $157,410 | $21,664 | $0 | $179,074 | $179,074 |
| 2011 | $157,410 | $21,664 | $0 | $179,074 | $179,074 |
| 2010 | $157,732 | $31,293 | $0 | $189,025 | $189,025 |
| 2009 | $162,653 | $50,126 | $0 | $212,779 | $212,779 |
| 2008 | $164,441 | $50,126 | $0 | $214,567 | $214,567 |
| 2007 | $166,919 | $50,126 | $0 | $217,045 | $217,045 |
Deed and Sales History
| 1 | 12/21/2021 | QCD | Quit Claim Deed | ANDERSON, MARY T | ANDERSON, ERIC ELDON | | | $0.00 | 51446 | 4536498 |
| 2 | 12/01/2021 | WD | Warranty Deed | MOORE, CALEB C | ANDERSON, ERIC ELDON | | | $345,000.00 | 51445 | 4536497 |
| 3 | 05/29/2008 | OTHER | Other - Misc. Documents | POHNEL, JONATHAN R | MOORE, CALEB C | | | $225,000.00 | 81498 | 4230468 |
| 4 | 05/19/2005 | WD | Warranty Deed | TERRACE LLC, SCENIC | POHNEL, JONATHAN R | | | $180,000.00 | 52575 | 4136418 |
| 5 | 01/01/1900 | OTHER | Other - Misc. Documents | Unknown | TERRACE LLC, SCENIC | | | $0.00 | 0 | 0 |
Payout Agreement
| No payout information available.. |