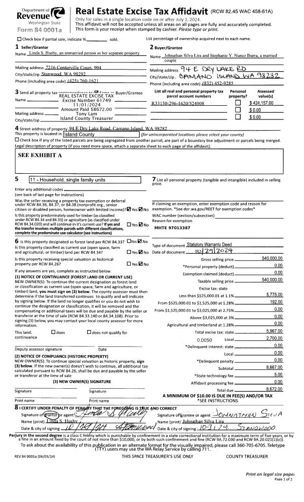
Property
Account |
| Property ID: | 806197 | Abbreviated Legal Description: | 1972 Lamplighter Serial #13970 12x48 TPO $69251 |
| Geographic ID: | M915000000740 | Agent Code: | |
| Type: | Mobile Home | | |
| Tax Area: | 100 - APPRAISER-OH Schl Dist, in OH | Land Use Code | 11 |
| Open Space: | N | DFL | N |
| Historic Property: | N | Remodel Property: | N |
| Multi-Family Redevelopment: | N | | |
| Township: | | Section: | |
| Range: | |
Location |
| Address: | 820 N OAK HARBOR ST # 74 OAK HARBOR, WA 98277 | Mapsco: | |
| Neighborhood: | Cycle 1 | Map ID: | |
| Neighborhood CD: | 1 |
Owner |
| Name: | ROE, THEA | Owner ID: | 291227 |
| Mailing Address: | 820 N OAK HARBOR ST #74 OAK HARBOR, WA 98277 | % Ownership: | 100.0000000000% |
| | | Exemptions: | |
Taxes and Assessment Details
Values
| (+) Improvement Homesite Value: | + | $0 | |
| (+) Improvement Non-Homesite Value: | + | $3,979 | |
| (+) Land Homesite Value: | + | $0 | |
| (+) Land Non-Homesite Value: | + | $0 | |
| (+) Curr Use (HS): | + | $0 | $0 |
| (+) Curr Use (NHS): | + | $0 | $0 |
| | | -------------------------- | |
| (=) Market Value: | = | $3,979 | |
| (–) Productivity Loss: | – | $0 | |
| | | -------------------------- | |
| (=) Subtotal: | = | $3,979 | |
| (+) Senior Appraised Value: | + | $0 | |
| (+) Non-Senior Appraised Value: | + | $3,979 | |
| | | -------------------------- | |
| (=) Total Appraised Value: | = | $3,979 | |
| (–) Senior Exemption Loss: | – | $0 | |
| (–) Exemption Loss: | – | $0 | |
| | | -------------------------- | |
| (=) Taxable Value: | = | $3,979 | |
Taxing Jurisdiction
| Owner: | ROE, THEA | | |
| % Ownership: | 100.0000000000% | | |
| Total Value: | $3,979 | | |
| Tax Area: | 100 - APPRAISER-OH Schl Dist, in OH |
| CF | Conservation Futures | 0.0316035091 | $3,979 | $3,979 | $0.13 | | |
| CEM1 | Cemetery #1 | 0.0040320932 | $3,979 | $3,979 | $0.02 | | |
| COH | City of Oak Harbor | 2.3001546061 | $3,979 | $3,979 | $9.15 | | |
| OAKBOND | City of Oak Harbor BOND | 0.1926904192 | $3,979 | $3,979 | $0.77 | | |
| HOBOND | Hospital BOND | 0.1910887512 | $3,979 | $3,979 | $0.76 | | |
| HOGEN | Hospital GEN | 0.3902502903 | $3,979 | $3,979 | $1.55 | | |
| CE | County Current Expense | 0.3708482477 | $3,979 | $3,979 | $1.48 | | |
| ISLANDEMS | Hospital GEN (EMS) | 0.5000000000 | $3,979 | $3,979 | $1.99 | | |
| LIB | Library Sno-Isle GEN | 0.3153421757 | $3,979 | $3,979 | $1.25 | | |
| NWHIDPRMT | P & R N Whidbey GEN | 0.2004466701 | $3,979 | $3,979 | $0.80 | | |
| SCH201MO | School 201 Enrichment | 1.8559231640 | $3,979 | $3,979 | $7.38 | | |
| ST | State School | 1.3035497053 | $3,979 | $3,979 | $5.19 | | |
| ST2 | State School Part 2 | 0.8169543533 | $3,979 | $3,979 | $3.25 | | |
| | Total Tax Rate: | 8.4728839852 | | | | | |
| | | | | Taxes w/Current Exemptions: | $33.72 | | |
| | | | | Taxes w/o Exemptions: | $33.72 | | |
Improvement / Building
| Improvement #1: | MANUFACTURED HOME | State Code: | Y | 504.0 sqft | Value: | $3,979 |
| Bathrooms: | 0 | Bedrooms: | 0 | | Ceiling: | PLASTER PAINTED | Cooling: | EVAP NO DUCT | | Exterior Wall/Cover: | VINYL | Floor Covering: | CARPET 100% | | Heating: | FHA ELECTRIC | Interior Finish: | PLASTER | | Plumbing Fixture Cnt: | 1 | Roof Slope: | FLAT | | Roof Structure/Cover: | CJ ALUMINIUM HEAVY |   |   |
|
Sketch
Property Image
Land
No land segments exist for this property.
Roll Value History
| 2026 | N/A | N/A | N/A | N/A | N/A |
| 2025 | $3,979 | $0 | $0 | $3,979 | $3,979 |
| 2024 | $3,979 | $0 | $0 | $3,979 | $3,979 |
| 2023 | $2,941 | $0 | $0 | $2,941 | $2,941 |
| 2022 | $2,663 | $0 | $0 | $2,663 | $2,663 |
| 2021 | $2,316 | $0 | $0 | $2,316 | $2,316 |
| 2020 | $2,248 | $0 | $0 | $2,248 | $2,248 |
| 2019 | $1,771 | $0 | $0 | $1,771 | $1,771 |
| 2018 | $1,771 | $0 | $0 | $1,771 | $1,771 |
| 2017 | $1,771 | $0 | $0 | $1,771 | $1,771 |
| 2016 | $1,948 | $0 | $0 | $1,948 | $1,948 |
| 2015 | $2,125 | $0 | $0 | $2,125 | $2,125 |
| 2014 | $2,214 | $0 | $0 | $2,214 | $2,214 |
| 2013 | $2,391 | $0 | $0 | $2,391 | $2,391 |
| 2012 | $2,479 | $0 | $0 | $2,479 | $2,479 |
| 2011 | $5,291 | $0 | $0 | $5,291 | $5,291 |
| 2010 | $1,376 | $0 | $0 | $1,376 | $1,376 |
| 2009 | $1,434 | $0 | $0 | $1,434 | $1,434 |
| 2008 | $1,445 | $0 | $0 | $1,445 | $1,445 |
| 2007 | $1,457 | $0 | $0 | $1,457 | $1,457 |
Deed and Sales History
| 1 | 08/05/2019 | MANHOME | Manufactured Home | COLEMAN, JULIE A | ROE, THEA | | | $17,500.00 | 39724 | |
| 2 | 02/04/2008 | MANHOME | Manufactured Home | RICHARDS, SHERMAN LEE | COLEMAN, JULIE A | | | $1.00 | 39723 | |
| 3 | 05/02/2005 | OTHER | Other - Misc. Documents | HUNT, LEE | RICHARDS, SHERMAN LEE | | | $800.00 | 51848 | 0 |
| 4 | 01/01/2003 | OTHER | Other - Misc. Documents | HUNT, LEE | HUNT, LEE | | | $800.00 | 51847 | 0 |
| 5 | 01/01/1900 | OTHER | Other - Misc. Documents | Unknown | HUNT, LEE | | | $0.00 | 0 | 0 |
Payout Agreement
| No payout information available.. |