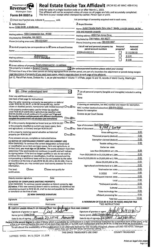
Property
Account |
| Property ID: | 806222 | Abbreviated Legal Description: | LOT 1 OH-SP 5-00001.8120.00-00005-3 V4 SP P87 AF# 4127845 |
| Geographic ID: | S8120-00-00005-6 | Agent Code: | |
| Type: | Real | | |
| Tax Area: | 100 - APPRAISER-OH Schl Dist, in OH | Land Use Code | 11 |
| Open Space: | N | DFL | N |
| Historic Property: | N | Remodel Property: | N |
| Multi-Family Redevelopment: | N | | |
| Township: | | Section: | |
| Range: | |
Location |
| Address: | 1680 SE 2ND CT OAK HARBOR, WA 98277 | Mapsco: | |
| Neighborhood: | Cycle 1 | Map ID: | 257 |
| Neighborhood CD: | 1 |
Owner |
| Name: | NOLEN, AMY | Owner ID: | 317065 |
| Mailing Address: | HOUSTON CARTEE 1680 SE 2ND CT OAK HARBOR, WA 98277 | % Ownership: | 100.0000000000% |
| | | Exemptions: | |
Taxes and Assessment Details
Values
| (+) Improvement Homesite Value: | + | $0 | |
| (+) Improvement Non-Homesite Value: | + | $233,969 | |
| (+) Land Homesite Value: | + | $0 | |
| (+) Land Non-Homesite Value: | + | $180,000 | |
| (+) Curr Use (HS): | + | $0 | $0 |
| (+) Curr Use (NHS): | + | $0 | $0 |
| | | -------------------------- | |
| (=) Market Value: | = | $413,969 | |
| (–) Productivity Loss: | – | $0 | |
| | | -------------------------- | |
| (=) Subtotal: | = | $413,969 | |
| (+) Senior Appraised Value: | + | $0 | |
| (+) Non-Senior Appraised Value: | + | $413,969 | |
| | | -------------------------- | |
| (=) Total Appraised Value: | = | $413,969 | |
| (–) Senior Exemption Loss: | – | $0 | |
| (–) Exemption Loss: | – | $0 | |
| | | -------------------------- | |
| (=) Taxable Value: | = | $413,969 | |
Taxing Jurisdiction
| Owner: | NOLEN, AMY | | |
| % Ownership: | 100.0000000000% | | |
| Total Value: | $413,969 | | |
| Tax Area: | 100 - APPRAISER-OH Schl Dist, in OH |
| CF | Conservation Futures | 0.0316035091 | $413,969 | $413,969 | $13.08 | | |
| CEM1 | Cemetery #1 | 0.0040320932 | $413,969 | $413,969 | $1.67 | | |
| COH | City of Oak Harbor | 2.3001546061 | $413,969 | $413,969 | $952.19 | | |
| OAKBOND | City of Oak Harbor BOND | 0.1926904192 | $413,969 | $413,969 | $79.77 | | |
| HOBOND | Hospital BOND | 0.1910887512 | $413,969 | $413,969 | $79.10 | | |
| HOGEN | Hospital GEN | 0.3902502903 | $413,969 | $413,969 | $161.55 | | |
| CE | County Current Expense | 0.3708482477 | $413,969 | $413,969 | $153.52 | | |
| ISLANDEMS | Hospital GEN (EMS) | 0.5000000000 | $413,969 | $413,969 | $206.98 | | |
| LIB | Library Sno-Isle GEN | 0.3153421757 | $413,969 | $413,969 | $130.54 | | |
| NWHIDPRMT | P & R N Whidbey GEN | 0.2004466701 | $413,969 | $413,969 | $82.98 | | |
| SCH201MO | School 201 Enrichment | 1.8559231640 | $413,969 | $413,969 | $768.29 | | |
| ST | State School | 1.3035497053 | $413,969 | $413,969 | $539.63 | | |
| ST2 | State School Part 2 | 0.8169543533 | $413,969 | $413,969 | $338.19 | | |
| | Total Tax Rate: | 8.4728839852 | | | | | |
| | | | | Taxes w/Current Exemptions: | $3,507.49 | | |
| | | | | Taxes w/o Exemptions: | $3,507.49 | | |
Improvement / Building
| Improvement #1: | RESIDENTIAL | State Code: | Y | 1422.0 sqft | Value: | $233,969 |
| Bathrooms: | 1 | Bedrooms: | 3 | | Ceiling: | DRYWALL PAINTED | Cooling: | HEAT PUMP/CONV/V | | Exterior Wall/Cover: | CEMENT FIBER | Floor Covering: | SOFTWOOD 100% | | Floor Structure: | WOOD W/SUBFLOOR | Foundation: | CONCRETE | | Interior Finish: | DRYWALL PAINT | Plumbing Fixture Cnt: | 6 | | Roof Slope: | 3" IN 12" | Roof Structure/Cover: | CJ COMP ROLL |
|
| | Type | Description | Class CD | Sub Class CD | Year Built | Area |
| | BAS | BASE/MAIN FLOOR | 3 | 0 | 1949 | 1422.0 |
| | OWC | OPEN WOOD PORCH W/STEPS/ROOF/C | 3 | 0 | 1949 | 84.0 |
| | OWC | OPEN WOOD PORCH W/STEPS/ROOF/C | 3 | 0 | 1949 | 132.0 |
Sketch
Property Image
Land
| 1 | 14 | SQ (08001-12000) | 0.2000 | 8712.00 | 0.00 | 0.00 | 1.00 | $180,000 | $0 |
Roll Value History
| 2026 | N/A | N/A | N/A | N/A | N/A |
| 2025 | $233,969 | $180,000 | $0 | $413,969 | $413,969 |
| 2024 | $236,713 | $170,000 | $0 | $406,713 | $406,713 |
| 2023 | $244,983 | $170,000 | $0 | $414,983 | $414,983 |
| 2022 | $221,539 | $160,000 | $0 | $381,539 | $381,539 |
| 2021 | $194,825 | $125,000 | $0 | $319,825 | $319,825 |
| 2020 | $183,388 | $100,000 | $0 | $283,388 | $283,388 |
| 2019 | $133,541 | $140,000 | $0 | $273,541 | $273,541 |
| 2018 | $133,907 | $125,000 | $0 | $258,907 | $258,907 |
| 2017 | $95,597 | $110,000 | $0 | $205,597 | $205,597 |
| 2016 | $96,925 | $90,000 | $0 | $186,925 | $186,925 |
| 2015 | $66,146 | $70,000 | $0 | $136,146 | $136,146 |
| 2014 | $67,554 | $55,000 | $0 | $122,554 | $122,554 |
| 2013 | $68,961 | $55,000 | $0 | $123,961 | $123,961 |
| 2012 | $70,369 | $60,000 | $0 | $130,369 | $130,369 |
| 2011 | $61,823 | $90,000 | $0 | $151,823 | $151,823 |
| 2010 | $70,894 | $90,000 | $0 | $160,894 | $160,894 |
| 2009 | $74,820 | $104,000 | $0 | $178,820 | $178,820 |
| 2008 | $76,761 | $122,000 | $0 | $198,761 | $198,761 |
| 2007 | $0 | $0 | $0 | $135,960 | $135,960 |
Deed and Sales History
| 1 | 05/29/2025 | WD | Warranty Deed | DEATER, MICHAEL | NOLEN, AMY | | | $435,500.00 | 63906 | 4587335 |
| 2 | 11/04/2020 | WD | Warranty Deed | VALLINE, ALEXANDRIA | DEATER, MICHAEL | | | $351,000.00 | 45757 | 4502717 |
| 3 | 08/23/2017 | WD | Warranty Deed | MERRIMAN, KYLE ANDREW | VALLINE, ALEXANDRIA | | | $254,000.00 | 30769 | 4428762 |
| 4 | 12/02/2014 | WD | Warranty Deed | LAKEVIEW LOAN SERVICING LLC | MERRIMAN, KYLE ANDREW | | | $130,000.00 | 17809 | 4369796 |
| 5 | 04/09/2014 | QCD | Quit Claim Deed | SECRETARY OF VETERANS AFFAIRS | LAKEVIEW LOAN SERVICING LLC | | | $0.00 | 16464 | 4364199 |
| 6 | 02/24/2014 | SPWARDEED | Special Warranty Deed | LAKEVIEW LOAN SERVICING LLC | SECRETARY OF VETERANS AFFAIRS | | | $0.00 | 14631 | 4356855 |
| 7 | 12/27/2013 | TRUSTEED | Trustee's Deed | HEATH, ERIC J | LAKEVIEW LOAN SERVICING LLC | | | $103,761.00 | 13908 | 4353347 |
| 8 | 03/11/2005 | WD | Warranty Deed | PFAFF, JAMES A | HEATH, ERIC J | | | $161,700.00 | 51008 | 4128328 |
| 9 | 01/01/1900 | OTHER | Other - Misc. Documents | Unknown | PFAFF, JAMES A | | | $0.00 | 0 | 0 |
Payout Agreement
| No payout information available.. |