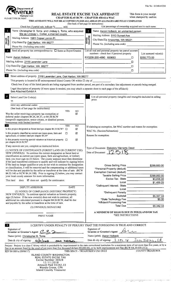
Property
Account |
| Property ID: | 806265 | Abbreviated Legal Description: | WHIDBEY GREEN PRD LOT 7 PHASE 3 |
| Geographic ID: | S8412-00-00007-0 | Agent Code: | |
| Type: | Real | | |
| Tax Area: | 100 - APPRAISER-OH Schl Dist, in OH | Land Use Code | 11 |
| Open Space: | N | DFL | N |
| Historic Property: | N | Remodel Property: | N |
| Multi-Family Redevelopment: | N | | |
| Township: | | Section: | |
| Range: | |
Location |
| Address: | 1696 SW VANGUARD ST OAK HARBOR, WA 98277 | Mapsco: | |
| Neighborhood: | Cycle 1 | Map ID: | 95 |
| Neighborhood CD: | 1 |
Owner |
| Name: | SAUNDERS, GAYLORD JOHN | Owner ID: | 296684 |
| Mailing Address: | PATRICIA DAWN SAUNDERS 1696 SW VANGUARD ST OAK HARBOR, WA 98277 | % Ownership: | 100.0000000000% |
| | | Exemptions: | |
Taxes and Assessment Details
Values
| (+) Improvement Homesite Value: | + | $0 | |
| (+) Improvement Non-Homesite Value: | + | $378,505 | |
| (+) Land Homesite Value: | + | $0 | |
| (+) Land Non-Homesite Value: | + | $170,000 | |
| (+) Curr Use (HS): | + | $0 | $0 |
| (+) Curr Use (NHS): | + | $0 | $0 |
| | | -------------------------- | |
| (=) Market Value: | = | $548,505 | |
| (–) Productivity Loss: | – | $0 | |
| | | -------------------------- | |
| (=) Subtotal: | = | $548,505 | |
| (+) Senior Appraised Value: | + | $0 | |
| (+) Non-Senior Appraised Value: | + | $548,505 | |
| | | -------------------------- | |
| (=) Total Appraised Value: | = | $548,505 | |
| (–) Senior Exemption Loss: | – | $0 | |
| (–) Exemption Loss: | – | $0 | |
| | | -------------------------- | |
| (=) Taxable Value: | = | $548,505 | |
Taxing Jurisdiction
| Owner: | SAUNDERS, GAYLORD JOHN | | |
| % Ownership: | 100.0000000000% | | |
| Total Value: | $548,505 | | |
| Tax Area: | 100 - APPRAISER-OH Schl Dist, in OH |
| CF | Conservation Futures | 0.0316035091 | $548,505 | $548,505 | $17.33 | | |
| CEM1 | Cemetery #1 | 0.0040320932 | $548,505 | $548,505 | $2.21 | | |
| COH | City of Oak Harbor | 2.3001546061 | $548,505 | $548,505 | $1,261.65 | | |
| OAKBOND | City of Oak Harbor BOND | 0.1926904192 | $548,505 | $548,505 | $105.69 | | |
| HOBOND | Hospital BOND | 0.1910887512 | $548,505 | $548,505 | $104.81 | | |
| HOGEN | Hospital GEN | 0.3902502903 | $548,505 | $548,505 | $214.05 | | |
| CE | County Current Expense | 0.3708482477 | $548,505 | $548,505 | $203.41 | | |
| ISLANDEMS | Hospital GEN (EMS) | 0.5000000000 | $548,505 | $548,505 | $274.25 | | |
| LIB | Library Sno-Isle GEN | 0.3153421757 | $548,505 | $548,505 | $172.97 | | |
| NWHIDPRMT | P & R N Whidbey GEN | 0.2004466701 | $548,505 | $548,505 | $109.95 | | |
| SCH201MO | School 201 Enrichment | 1.8559231640 | $548,505 | $548,505 | $1,017.98 | | |
| ST | State School | 1.3035497053 | $548,505 | $548,505 | $715.00 | | |
| ST2 | State School Part 2 | 0.8169543533 | $548,505 | $548,505 | $448.10 | | |
| | Total Tax Rate: | 8.4728839852 | | | | | |
| | | | | Taxes w/Current Exemptions: | $4,647.40 | | |
| | | | | Taxes w/o Exemptions: | $4,647.40 | | |
Improvement / Building
| Improvement #1: | RESIDENTIAL | State Code: | Y | 2045.5 sqft | Value: | $378,505 |
| Bathrooms: | 2 | Bedrooms: | 3 | | Ceiling: | DRYWALL PAINTED | Exterior Wall/Cover: | PLY/HARDBOARD T-111 | | Floor Covering: | HARDWOOD/CARP 20-80 | Floor Structure: | WOOD W/SUBFLOOR | | Foundation: | CONCRETE | Heating: | FHA GAS | | Interior Finish: | DRYWALL PAINT | Plumbing Fixture Cnt: | 12 | | Roof Slope: | 8" IN 12" | Roof Structure/Cover: | CJ ASPHALT |
|
| | Type | Description | Class CD | Sub Class CD | Year Built | Area |
| | BAS | BASE/MAIN FLOOR | 3 | 0 | 2005 | 2045.5 |
| | OP4 | OPEN PORCH W/CEILING-ROOF | 3 | 0 | 2005 | 35.0 |
| | OP4 | OPEN PORCH W/CEILING-ROOF | 3 | 0 | 2005 | 96.0 |
| | AGR | ATTACHED GARAGE | 3 | 0 | 2005 | 583.0 |
Sketch
Property Image
Land
| 1 | 12 | SQ (00000-06000) | 0.0000 | 0.00 | 0.00 | 0.00 | 1.00 | $170,000 | $0 |
Roll Value History
| 2026 | N/A | N/A | N/A | N/A | N/A |
| 2025 | $378,505 | $170,000 | $0 | $548,505 | $548,505 |
| 2024 | $382,794 | $140,000 | $0 | $522,794 | $522,794 |
| 2023 | $379,966 | $130,000 | $0 | $509,966 | $509,966 |
| 2022 | $348,018 | $120,000 | $0 | $468,018 | $468,018 |
| 2021 | $306,042 | $70,000 | $0 | $376,042 | $376,042 |
| 2020 | $297,263 | $60,000 | $0 | $357,263 | $357,263 |
| 2019 | $226,666 | $120,000 | $0 | $346,666 | $346,666 |
| 2018 | $227,287 | $100,000 | $0 | $327,287 | $327,287 |
| 2017 | $234,029 | $90,000 | $0 | $324,029 | $324,029 |
| 2016 | $236,718 | $35,000 | $0 | $271,718 | $271,718 |
| 2015 | $239,408 | $35,000 | $0 | $274,408 | $274,408 |
| 2014 | $242,097 | $35,000 | $0 | $277,097 | $277,097 |
| 2013 | $244,787 | $35,000 | $0 | $279,787 | $279,787 |
| 2012 | $247,478 | $47,000 | $0 | $294,478 | $294,478 |
| 2011 | $249,428 | $47,000 | $0 | $296,428 | $296,428 |
| 2010 | $262,684 | $50,000 | $0 | $312,684 | $312,684 |
| 2009 | $270,772 | $75,000 | $0 | $345,772 | $345,772 |
| 2008 | $273,770 | $75,000 | $0 | $348,770 | $348,770 |
| 2007 | $276,673 | $50,000 | $0 | $326,673 | $326,673 |
Deed and Sales History
| 1 | 11/09/2020 | WD | Warranty Deed | MILLER, DONALD A | SAUNDERS, GAYLORD JOHN | | | $425,000.00 | 45653 | 4502154 |
| 2 | 01/29/2019 | PRD | Personal Representatives Deed | MILLER, DONALD A | MILLER, DONALD A | | | $0.00 | 37478 | 4458671 |
| 3 | 12/05/2005 | WD | Warranty Deed | WHIDBEY GREEN III LLC, | MILLER, DONALD A | | | $333,643.00 | 56217 | 4157197 |
| 4 | 01/01/1900 | OTHER | Other - Misc. Documents | Unknown | WHIDBEY GREEN III LLC, | | | $0.00 | 0 | 0 |
Payout Agreement
| No payout information available.. |