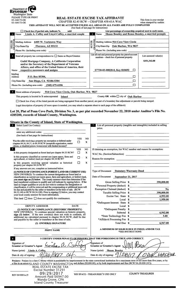
Property
Account |
| Property ID: | 806299 | Abbreviated Legal Description: | LOT 2 SHP 345-02. R23235-031-0680 V 4 SP P 62-63 AF# 4113325 |
| Geographic ID: | R23235-017-0580 | Agent Code: | |
| Type: | Real | | |
| Tax Area: | 512 - APPRAISER-Stan/Cam Schl Dist, improved, greater than 1 acre | Land Use Code | 11 |
| Open Space: | N | DFL | N |
| Historic Property: | N | Remodel Property: | N |
| Multi-Family Redevelopment: | N | | |
| Township: | 32 | Section: | 35 |
| Range: | R2 |
Location |
| Address: | 721 CARP LAKE RD CAMANO ISLAND, WA 98282 | Mapsco: | |
| Neighborhood: | North Camano | Map ID: | 575 |
| Neighborhood CD: | 06-C |
Owner |
| Name: | STOVALL, SERRESA M | Owner ID: | 280464 |
| Mailing Address: | ANDREA R SANDERS 721 CARP LAKE RD CAMANO ISLAND, WA 98282 | % Ownership: | 100.0000000000% |
| | | Exemptions: | |
Taxes and Assessment Details
Values
| (+) Improvement Homesite Value: | + | $0 | |
| (+) Improvement Non-Homesite Value: | + | $414,969 | |
| (+) Land Homesite Value: | + | $0 | |
| (+) Land Non-Homesite Value: | + | $360,000 | |
| (+) Curr Use (HS): | + | $0 | $0 |
| (+) Curr Use (NHS): | + | $0 | $0 |
| | | -------------------------- | |
| (=) Market Value: | = | $774,969 | |
| (–) Productivity Loss: | – | $0 | |
| | | -------------------------- | |
| (=) Subtotal: | = | $774,969 | |
| (+) Senior Appraised Value: | + | $0 | |
| (+) Non-Senior Appraised Value: | + | $774,969 | |
| | | -------------------------- | |
| (=) Total Appraised Value: | = | $774,969 | |
| (–) Senior Exemption Loss: | – | $0 | |
| (–) Exemption Loss: | – | $0 | |
| | | -------------------------- | |
| (=) Taxable Value: | = | $774,969 | |
Taxing Jurisdiction
| Owner: | STOVALL, SERRESA M | | |
| % Ownership: | 100.0000000000% | | |
| Total Value: | $774,969 | | |
| Tax Area: | 512 - APPRAISER-Stan/Cam Schl Dist, improved, greater than 1 acre |
| CF | Conservation Futures | 0.0316035091 | $774,969 | $774,969 | $24.49 | | |
| EMS1 | Fire & Rescue Dist #1 Camano GEN (EMS) | 0.3677864386 | $774,969 | $774,969 | $285.02 | | |
| FIRE1 | Fire & Rescue Dist #1 Camano GEN | 1.2502910536 | $774,969 | $774,969 | $968.94 | | |
| FIRE1BOND | Fire & Rescue Dist #1 Camano BOND | 0.1570001679 | $774,969 | $774,969 | $121.67 | | |
| CE | County Current Expense | 0.3708482477 | $774,969 | $774,969 | $287.40 | | |
| CR | County Roads | 0.4584763726 | $774,969 | $774,969 | $355.30 | | |
| LCIB | Library Sno-Isle BOND (Camano Island) | 0.0396325772 | $774,969 | $774,969 | $30.71 | | |
| LIB | Library Sno-Isle GEN | 0.3153421757 | $774,969 | $774,969 | $244.38 | | |
| SCH205_401 | School 205-401 Enrichment | 1.2698420524 | $774,969 | $774,969 | $984.09 | | |
| SCH205BOND | School 205-401 BOND | 0.9396497583 | $774,969 | $774,969 | $728.20 | | |
| ST | State School | 1.3035497053 | $774,969 | $774,969 | $1,010.21 | | |
| ST2 | State School Part 2 | 0.8169543533 | $774,969 | $774,969 | $633.11 | | |
| | Total Tax Rate: | 7.3209764117 | | | | | |
| | | | | Taxes w/Current Exemptions: | $5,673.52 | | |
| | | | | Taxes w/o Exemptions: | $5,673.52 | | |
Improvement / Building
| Improvement #1: | RESIDENTIAL | State Code: | Y | 2290.0 sqft | Value: | $414,969 |
| Bathrooms: | 2.5 | Bedrooms: | 4 | | Ceiling: | DRYWALL PAINTED | Exterior Wall/Cover: | CEMENT FIBER | | Floor Covering: | CARPET/VINYL 60-40 | Floor Structure: | WOOD W/SUBFLOOR | | Foundation: | CONCRETE | Heating: | FHA GAS | | Interior Finish: | DRYWALL PAINT | Plumbing Fixture Cnt: | 14 | | Roof Slope: | 6" IN 12" | Roof Structure/Cover: | CJ ASPHALT |
|
| | Type | Description | Class CD | Sub Class CD | Year Built | Area |
| | BAS | BASE/MAIN FLOOR | 3 | 0 | 2018 | 1141.4 |
| | UPS | UPPER STORY | 3 | 0 | 2018 | 1148.6 |
| | AGR | ATTACHED GARAGE | 3 | 0 | 2018 | 716.0 |
| | OWR | OPEN WOOD PORCH W/STEPS/ROOF | 3 | 0 | 2018 | 137.5 |
| | OWP | OPEN WOOD PORCH W/STEPS | 3 | 0 | 2018 | 336.0 |
Sketch
Property Image
Land
| 1 | 32 | AC (03.01-09.99) | 5.0800 | 0.00 | 0.00 | 0.00 | 1.00 | $360,000 | $0 |
Roll Value History
| 2026 | N/A | N/A | N/A | N/A | N/A |
| 2025 | $414,969 | $360,000 | $0 | $774,969 | $774,969 |
| 2024 | $418,344 | $340,000 | $0 | $758,344 | $758,344 |
| 2023 | $421,718 | $320,000 | $0 | $741,718 | $741,718 |
| 2022 | $384,909 | $300,000 | $0 | $684,909 | $684,909 |
| 2021 | $337,383 | $230,000 | $0 | $567,383 | $567,383 |
| 2020 | $328,174 | $190,000 | $0 | $518,174 | $518,174 |
| 2019 | $255,198 | $220,000 | $0 | $475,198 | $475,198 |
| 2018 | $257,127 | $175,000 | $0 | $432,127 | $432,127 |
| 2017 | $0 | $90,000 | $0 | $90,000 | $90,000 |
| 2016 | $0 | $90,000 | $0 | $90,000 | $90,000 |
| 2015 | $0 | $97,536 | $0 | $97,536 | $97,536 |
| 2014 | $0 | $97,536 | $0 | $97,536 | $97,536 |
| 2013 | $0 | $97,536 | $0 | $97,536 | $97,536 |
| 2012 | $0 | $97,536 | $0 | $97,536 | $97,536 |
| 2011 | $0 | $121,920 | $0 | $121,920 | $121,920 |
| 2010 | $0 | $121,920 | $0 | $121,920 | $121,920 |
| 2009 | $0 | $152,400 | $0 | $152,400 | $152,400 |
| 2008 | $0 | $167,640 | $0 | $167,640 | $167,640 |
| 2007 | $0 | $125,000 | $0 | $125,000 | $125,000 |
Deed and Sales History
| 1 | 06/14/2017 | WD | Warranty Deed | MILLER ET AL, DAN L | STOVALL, SERRESA M | | | $125,000.00 | 29808 | 4424545 |
| 2 | 10/26/2004 | WD | Warranty Deed | GREEN, DANIEL A / MARCIA M | MILLER ET AL, DAN L | | | $92,500.00 | 45237 | 4117391 |
| 3 | 01/01/1900 | OTHER | Other - Misc. Documents | Unknown | GREEN, DANIEL A / MARCIA M | | | $0.00 | 0 | 0 |
Payout Agreement
| No payout information available.. |