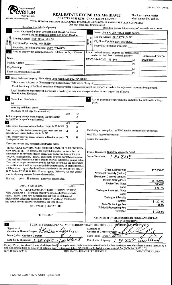
Property
Account |
| Property ID: | 806313 | Abbreviated Legal Description: | Lot 1 SHP 404-03. R23114-172-2940 V 4 SP P 98&99 AF# 4135383 |
| Geographic ID: | R23114-198-2980 | Agent Code: | |
| Type: | Real | | |
| Tax Area: | 510 - APPRAISER-Stan/Cam Schl Dist, improved & 1 acre or less | Land Use Code | 11 |
| Open Space: | N | DFL | N |
| Historic Property: | N | Remodel Property: | N |
| Multi-Family Redevelopment: | N | | |
| Township: | 31 | Section: | 14 |
| Range: | R2 |
Location |
| Address: | 1054 TYLER JAMES LN CAMANO ISLAND, WA 98282 | Mapsco: | |
| Neighborhood: | Cycle 5 | Map ID: | 482 |
| Neighborhood CD: | 5 |
Owner |
| Name: | LEIBOLD, ABYGAIL S | Owner ID: | 313355 |
| Mailing Address: | DONALD GREGORY HENRY 1054 TYLER JAMES LN CAMANO ISLAND, WA 98282 | % Ownership: | 100.0000000000% |
| | | Exemptions: | |
Taxes and Assessment Details
Values
| (+) Improvement Homesite Value: | + | $0 | |
| (+) Improvement Non-Homesite Value: | + | $278,408 | |
| (+) Land Homesite Value: | + | $0 | |
| (+) Land Non-Homesite Value: | + | $240,000 | |
| (+) Curr Use (HS): | + | $0 | $0 |
| (+) Curr Use (NHS): | + | $0 | $0 |
| | | -------------------------- | |
| (=) Market Value: | = | $518,408 | |
| (–) Productivity Loss: | – | $0 | |
| | | -------------------------- | |
| (=) Subtotal: | = | $518,408 | |
| (+) Senior Appraised Value: | + | $0 | |
| (+) Non-Senior Appraised Value: | + | $518,408 | |
| | | -------------------------- | |
| (=) Total Appraised Value: | = | $518,408 | |
| (–) Senior Exemption Loss: | – | $0 | |
| (–) Exemption Loss: | – | $0 | |
| | | -------------------------- | |
| (=) Taxable Value: | = | $518,408 | |
Taxing Jurisdiction
| Owner: | LEIBOLD, ABYGAIL S | | |
| % Ownership: | 100.0000000000% | | |
| Total Value: | $518,408 | | |
| Tax Area: | 510 - APPRAISER-Stan/Cam Schl Dist, improved & 1 acre or less |
| CF | Conservation Futures | 0.0316035091 | $518,408 | $518,408 | $16.38 | | |
| EMS1 | Fire & Rescue Dist #1 Camano GEN (EMS) | 0.3677864386 | $518,408 | $518,408 | $190.66 | | |
| FIRE1 | Fire & Rescue Dist #1 Camano GEN | 1.2502910536 | $518,408 | $518,408 | $648.16 | | |
| FIRE1BOND | Fire & Rescue Dist #1 Camano BOND | 0.1570001679 | $518,408 | $518,408 | $81.39 | | |
| CE | County Current Expense | 0.3708482477 | $518,408 | $518,408 | $192.25 | | |
| CR | County Roads | 0.4584763726 | $518,408 | $518,408 | $237.68 | | |
| LCIB | Library Sno-Isle BOND (Camano Island) | 0.0396325772 | $518,408 | $518,408 | $20.55 | | |
| LIB | Library Sno-Isle GEN | 0.3153421757 | $518,408 | $518,408 | $163.48 | | |
| SCH205_401 | School 205-401 Enrichment | 1.2698420524 | $518,408 | $518,408 | $658.30 | | |
| SCH205BOND | School 205-401 BOND | 0.9396497583 | $518,408 | $518,408 | $487.12 | | |
| ST | State School | 1.3035497053 | $518,408 | $518,408 | $675.77 | | |
| ST2 | State School Part 2 | 0.8169543533 | $518,408 | $518,408 | $423.52 | | |
| | Total Tax Rate: | 7.3209764117 | | | | | |
| | | | | Taxes w/Current Exemptions: | $3,795.26 | | |
| | | | | Taxes w/o Exemptions: | $3,795.26 | | |
Improvement / Building
| Improvement #1: | RESIDENTIAL | State Code: | Y | 1056.0 sqft | Value: | $278,408 |
| Bathrooms: | 2 | Bedrooms: | 3 | | Ceiling: | DRYWALL PAINTED | Cooling: | HEAT PUMP/CONV/V | | Exterior Wall/Cover: | CEMENT FIBER | Floor Covering: | CARPET/VINYL 60-40 | | Floor Structure: | WOOD W/SUBFLOOR | Foundation: | CONCRETE | | Interior Finish: | DRYWALL PAINT | Plumbing Fixture Cnt: | 10 | | Roof Slope: | 5" IN 12" | Roof Structure/Cover: | CJ ALUMINIUM HEAVY |
|
| | Type | Description | Class CD | Sub Class CD | Year Built | Area |
| | BAS | BASE/MAIN FLOOR | 3 | 0 | 2005 | 1056.0 |
| | AGR | ATTACHED GARAGE | 3 | 0 | 2005 | 528.0 |
| | OWR | OPEN WOOD PORCH W/STEPS/ROOF | 3 | 0 | 2005 | 42.0 |
| | OP4 | OPEN PORCH W/CEILING-ROOF | 3 | 0 | 2005 | 192.0 |
Sketch
| No sketches available for this property. |
Property Image
Land
| 1 | 15 | SQ (12001-21780) | 0.5000 | 21780.00 | 0.00 | 0.00 | 1.00 | $240,000 | $0 |
Roll Value History
| 2026 | N/A | N/A | N/A | N/A | N/A |
| 2025 | $278,408 | $240,000 | $0 | $518,408 | $518,408 |
| 2024 | $255,627 | $220,000 | $0 | $475,627 | $475,627 |
| 2023 | $258,524 | $210,000 | $0 | $468,524 | $468,524 |
| 2022 | $236,065 | $210,000 | $0 | $446,065 | $446,065 |
| 2021 | $185,622 | $150,000 | $0 | $335,622 | $335,622 |
| 2020 | $180,236 | $120,000 | $0 | $300,236 | $300,236 |
| 2019 | $127,015 | $160,000 | $0 | $287,015 | $287,015 |
| 2018 | $127,370 | $130,000 | $0 | $257,370 | $257,370 |
| 2017 | $128,083 | $100,000 | $0 | $228,083 | $228,083 |
| 2016 | $129,506 | $100,000 | $0 | $229,506 | $229,506 |
| 2015 | $158,035 | $65,000 | $0 | $223,035 | $223,035 |
| 2014 | $159,458 | $65,000 | $0 | $224,458 | $224,458 |
| 2013 | $160,882 | $41,600 | $0 | $202,482 | $202,482 |
| 2012 | $162,304 | $41,600 | $0 | $203,904 | $203,904 |
| 2011 | $163,727 | $52,000 | $0 | $215,727 | $215,727 |
| 2010 | $165,356 | $52,000 | $0 | $217,356 | $217,356 |
| 2009 | $146,591 | $103,500 | $0 | $250,091 | $250,091 |
| 2008 | $148,098 | $80,150 | $0 | $228,248 | $228,248 |
| 2007 | $148,204 | $80,150 | $0 | $228,354 | $228,354 |
Deed and Sales History
| 1 | 07/30/2024 | WD | Warranty Deed | JOHNSON, KRISTINE MARIE | LEIBOLD, ABYGAIL S | | | $515,000.00 | 60810 | 4575327 |
| 2 | 09/18/2019 | WD | Warranty Deed | LEE, JACKIE | JOHNSON, KRISTINE MARIE | | | $340,000.00 | 40433 | 4472173 |
| 3 | 03/10/2018 | QCD | Quit Claim Deed | WESSON, JACKIE | LEE, JACKIE | | | $0.00 | 33365 | 4441219 |
| 4 | 05/23/2014 | BARGSLD | Bargain And Sale Deed | FEDERAL HOME LOAN MORTGAGE CORPORATION | WESSON, JACKIE | | | $147,000.00 | 15420 | 4359990 |
| 5 | 12/17/2013 | TRUSTEED | Trustee's Deed | HICKS, RACHELLE M | FEDERAL HOME LOAN MORTGAGE CORPORATION | | | $158,486.00 | 13801 | 4352856 |
| 6 | 02/23/2006 | WD | Warranty Deed | JOE SCHMOE CONST INC, | HICKS, RACHELLE M | | | $210,000.00 | 60843 | 4163354 |
| 7 | 06/22/2005 | WD | Warranty Deed | HOMES LLC, DEACON | JOE SCHMOE CONST INC, | | | $40,000.00 | 53008 | 4138948 |
| 8 | 01/01/1900 | OTHER | Other - Misc. Documents | Unknown | HOMES LLC, DEACON | | | $0.00 | 0 | 0 |
Payout Agreement
| No payout information available.. |