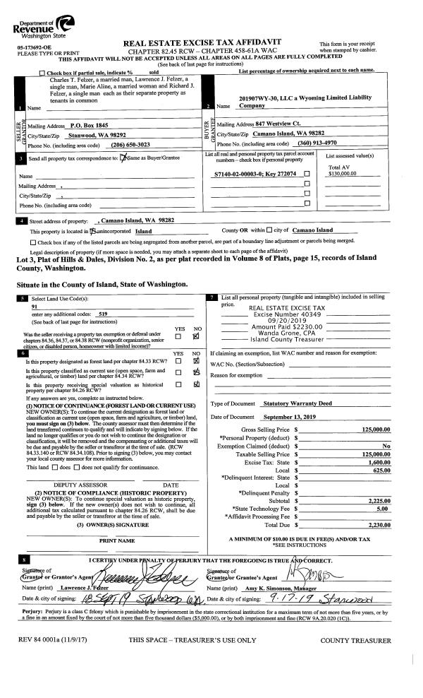
Property
Account |
| Property ID: | 806322 | Abbreviated Legal Description: | WOODBURY PARK PRD LOT 6 |
| Geographic ID: | S8468-00-00006-0 | Agent Code: | |
| Type: | Real | | |
| Tax Area: | 100 - APPRAISER-OH Schl Dist, in OH | Land Use Code | 11 |
| Open Space: | N | DFL | N |
| Historic Property: | N | Remodel Property: | N |
| Multi-Family Redevelopment: | N | | |
| Township: | | Section: | |
| Range: | |
Location |
| Address: | 1100 NE BERRY LOOP OAK HARBOR, WA 98277 | Mapsco: | |
| Neighborhood: | Cycle 1 | Map ID: | 258 |
| Neighborhood CD: | 1 |
Owner |
| Name: | TILL, MICHAEL JAMS | Owner ID: | 304436 |
| Mailing Address: | TERESA ANN TILL 1100 NE BIG BERRY LOOP OAK HARBOR, WA 98277 | % Ownership: | 100.0000000000% |
| | | Exemptions: | |
Taxes and Assessment Details
Values
| (+) Improvement Homesite Value: | + | $0 | |
| (+) Improvement Non-Homesite Value: | + | $289,204 | |
| (+) Land Homesite Value: | + | $0 | |
| (+) Land Non-Homesite Value: | + | $170,000 | |
| (+) Curr Use (HS): | + | $0 | $0 |
| (+) Curr Use (NHS): | + | $0 | $0 |
| | | -------------------------- | |
| (=) Market Value: | = | $459,204 | |
| (–) Productivity Loss: | – | $0 | |
| | | -------------------------- | |
| (=) Subtotal: | = | $459,204 | |
| (+) Senior Appraised Value: | + | $0 | |
| (+) Non-Senior Appraised Value: | + | $459,204 | |
| | | -------------------------- | |
| (=) Total Appraised Value: | = | $459,204 | |
| (–) Senior Exemption Loss: | – | $0 | |
| (–) Exemption Loss: | – | $0 | |
| | | -------------------------- | |
| (=) Taxable Value: | = | $459,204 | |
Taxing Jurisdiction
| Owner: | TILL, MICHAEL JAMS | | |
| % Ownership: | 100.0000000000% | | |
| Total Value: | $459,204 | | |
| Tax Area: | 100 - APPRAISER-OH Schl Dist, in OH |
| CF | Conservation Futures | 0.0316035091 | $459,204 | $459,204 | $14.51 | | |
| CEM1 | Cemetery #1 | 0.0040320932 | $459,204 | $459,204 | $1.85 | | |
| COH | City of Oak Harbor | 2.3001546061 | $459,204 | $459,204 | $1,056.24 | | |
| OAKBOND | City of Oak Harbor BOND | 0.1926904192 | $459,204 | $459,204 | $88.48 | | |
| HOBOND | Hospital BOND | 0.1910887512 | $459,204 | $459,204 | $87.75 | | |
| HOGEN | Hospital GEN | 0.3902502903 | $459,204 | $459,204 | $179.20 | | |
| CE | County Current Expense | 0.3708482477 | $459,204 | $459,204 | $170.29 | | |
| ISLANDEMS | Hospital GEN (EMS) | 0.5000000000 | $459,204 | $459,204 | $229.60 | | |
| LIB | Library Sno-Isle GEN | 0.3153421757 | $459,204 | $459,204 | $144.81 | | |
| NWHIDPRMT | P & R N Whidbey GEN | 0.2004466701 | $459,204 | $459,204 | $92.05 | | |
| SCH201MO | School 201 Enrichment | 1.8559231640 | $459,204 | $459,204 | $852.25 | | |
| ST | State School | 1.3035497053 | $459,204 | $459,204 | $598.60 | | |
| ST2 | State School Part 2 | 0.8169543533 | $459,204 | $459,204 | $375.15 | | |
| | Total Tax Rate: | 8.4728839852 | | | | | |
| | | | | Taxes w/Current Exemptions: | $3,890.78 | | |
| | | | | Taxes w/o Exemptions: | $3,890.78 | | |
Improvement / Building
| Improvement #1: | RESIDENTIAL | State Code: | Y | 1563.1 sqft | Value: | $289,204 |
| Bathrooms: | 2 | Bedrooms: | 3 | | Ceiling: | DRYWALL PAINTED | Exterior Wall/Cover: | CEMENT FIBER | | Floor Covering: | CARPET/VINYL 20-80 | Floor Structure: | WOOD W/SUBFLOOR | | Foundation: | CONCRETE | Heating: | FHA GAS | | Interior Finish: | DRYWALL PAINT | Plumbing Fixture Cnt: | 9 | | Roof Slope: | 6" IN 12" | Roof Structure/Cover: | CJ ASPHALT |
|
| | Type | Description | Class CD | Sub Class CD | Year Built | Area |
| | BAS | BASE/MAIN FLOOR | 3 | 0 | 2006 | 1563.1 |
| | OP1 | OPEN PORCH SLAB | 3 | 0 | 2006 | 210.0 |
| | AGR | ATTACHED GARAGE | 3 | 0 | 2006 | 462.0 |
| | OWC | OPEN WOOD PORCH W/STEPS/ROOF/C | 3 | 0 | 2006 | 33.2 |
| | OP3 | OPEN PORCH W/ROOF | 3 | 0 | 2006 | 38.8 |
Sketch
Property Image
Land
| 1 | 12 | SQ (00000-06000) | 0.0000 | 0.00 | 0.00 | 0.00 | 1.00 | $170,000 | $0 |
Roll Value History
| 2026 | N/A | N/A | N/A | N/A | N/A |
| 2025 | $289,204 | $170,000 | $0 | $459,204 | $459,204 |
| 2024 | $292,519 | $160,000 | $0 | $452,519 | $452,519 |
| 2023 | $287,960 | $160,000 | $0 | $447,960 | $447,960 |
| 2022 | $263,740 | $150,000 | $0 | $413,740 | $413,740 |
| 2021 | $231,949 | $115,000 | $0 | $346,949 | $346,949 |
| 2020 | $225,250 | $100,000 | $0 | $325,250 | $325,250 |
| 2019 | $156,113 | $150,000 | $0 | $306,113 | $306,113 |
| 2018 | $156,562 | $125,000 | $0 | $281,562 | $281,562 |
| 2017 | $166,538 | $110,000 | $0 | $276,538 | $276,538 |
| 2016 | $150,379 | $90,000 | $0 | $240,379 | $240,379 |
| 2015 | $152,070 | $70,000 | $0 | $222,070 | $222,070 |
| 2014 | $153,759 | $55,000 | $0 | $208,759 | $208,759 |
| 2013 | $155,449 | $55,000 | $0 | $210,449 | $210,449 |
| 2012 | $157,138 | $50,000 | $0 | $207,138 | $207,138 |
| 2011 | $159,109 | $35,000 | $0 | $194,109 | $194,109 |
| 2010 | $154,276 | $35,000 | $0 | $189,276 | $189,276 |
| 2009 | $160,712 | $90,000 | $0 | $250,712 | $250,712 |
| 2008 | $162,419 | $95,000 | $0 | $257,419 | $257,419 |
| 2007 | $162,526 | $80,000 | $0 | $242,526 | $242,526 |
Deed and Sales History
| 1 | 05/26/2022 | WD | Warranty Deed | RAZ, RAQUEL | TILL, MICHAEL JAMS | | | $462,500.00 | 53237 | 4545756 |
| 2 | 09/04/2019 | WD | Warranty Deed | MATTIELLO JR, ANTHONY J | RAZ, RAQUEL | | | $320,000.00 | 40207 | 4471125 |
| 3 | 09/07/2016 | WD | Warranty Deed | THEOPHILUS, DAVID | MATTIELLO JR, ANTHONY J | | | $279,000.00 | 26058 | 4406928 |
| 4 | 06/19/2015 | ESTSEPPROP | Establish Separate Property | THEOPHILUS, DAVID | THEOPHILUS, DAVID | | | $0.00 | 20422 | 4382006 |
| 5 | 09/29/2012 | QCD | Quit Claim Deed | THEOPHILUS, LEILA | THEOPHILUS, DAVID | | | $0.00 | 9265 | 4325854 |
| 6 | 07/27/2009 | WD | Warranty Deed | UMAYAM, BENJAMIN A | THEOPHILUS, DAVID | | | $240,000.00 | 91751 | 4257538 |
| 7 | 01/26/2006 | WD | Warranty Deed | WALDRON CONSTRUCTION INC, | UMAYAM, BENJAMIN A | | | $230,317.00 | 60440 | 4161309 |
| 8 | 03/18/2005 | WD | Warranty Deed | WOODBURY PARK LLC, | WALDRON CONSTRUCTION INC, | | | $51,000.00 | 51062 | 4128619 |
Payout Agreement
| No payout information available.. |