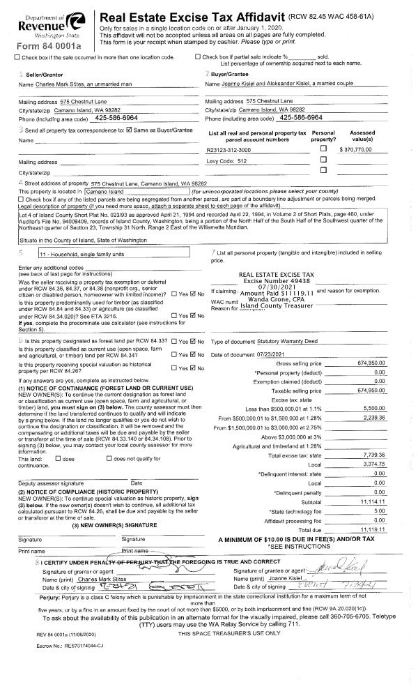
Property
Account |
| Property ID: | 806369 | Abbreviated Legal Description: | LOT 2 SP 436-03.32903.074-2850 V4 SP P52 AF#4103050 |
| Geographic ID: | R32903-037-2910 | Agent Code: | |
| Type: | Real | | |
| Tax Area: | 712 - APPRAISER-S Whid Schl Dist, outside Langley, improved, greater than 1 acre | Land Use Code | 11 |
| Open Space: | N | DFL | N |
| Historic Property: | N | Remodel Property: | N |
| Multi-Family Redevelopment: | N | | |
| Township: | 29 | Section: | 03 |
| Range: | R3 |
Location |
| Address: | 5163 MAXWELTON RD LANGLEY, WA 98260 | Mapsco: | |
| Neighborhood: | Cycle 4 | Map ID: | 723 |
| Neighborhood CD: | 4 |
Owner |
| Name: | SCHMIDT, KURT F | Owner ID: | 258877 |
| Mailing Address: | LAURA S SCHMIDT 5163 MAXWELTON RD LANGLEY, WA 98260 | % Ownership: | 100.0000000000% |
| | | Exemptions: | |
Taxes and Assessment Details
Values
| (+) Improvement Homesite Value: | + | $0 | |
| (+) Improvement Non-Homesite Value: | + | $544,634 | |
| (+) Land Homesite Value: | + | $0 | |
| (+) Land Non-Homesite Value: | + | $370,000 | |
| (+) Curr Use (HS): | + | $0 | $0 |
| (+) Curr Use (NHS): | + | $0 | $0 |
| | | -------------------------- | |
| (=) Market Value: | = | $914,634 | |
| (–) Productivity Loss: | – | $0 | |
| | | -------------------------- | |
| (=) Subtotal: | = | $914,634 | |
| (+) Senior Appraised Value: | + | $0 | |
| (+) Non-Senior Appraised Value: | + | $914,634 | |
| | | -------------------------- | |
| (=) Total Appraised Value: | = | $914,634 | |
| (–) Senior Exemption Loss: | – | $0 | |
| (–) Exemption Loss: | – | $0 | |
| | | -------------------------- | |
| (=) Taxable Value: | = | $914,634 | |
Taxing Jurisdiction
| Owner: | SCHMIDT, KURT F | | |
| % Ownership: | 100.0000000000% | | |
| Total Value: | $914,634 | | |
| Tax Area: | 712 - APPRAISER-S Whid Schl Dist, outside Langley, improved, greater than 1 acre |
| CF | Conservation Futures | 0.0316035091 | $914,634 | $914,634 | $28.91 | | |
| FIRE3 | Fire & Rescue Dist #3 S Whidbey GEN | 1.2004855531 | $914,634 | $914,634 | $1,098.00 | | |
| HOBOND | Hospital BOND | 0.1910887512 | $914,634 | $914,634 | $174.78 | | |
| HOGEN | Hospital GEN | 0.3902502903 | $914,634 | $914,634 | $356.94 | | |
| CE | County Current Expense | 0.3708482477 | $914,634 | $914,634 | $339.19 | | |
| CR | County Roads | 0.4584763726 | $914,634 | $914,634 | $419.34 | | |
| ISLANDEMS | Hospital GEN (EMS) | 0.5000000000 | $914,634 | $914,634 | $457.32 | | |
| LIB | Library Sno-Isle GEN | 0.3153421757 | $914,634 | $914,634 | $288.42 | | |
| PORTWHID | Port of S Whidbey GEN | 0.1094540357 | $914,634 | $914,634 | $100.11 | | |
| SCH206BOND | School 206 BOND | 0.3161759235 | $914,634 | $914,634 | $289.19 | | |
| SCH206MO | School 206 Enrichment | 0.4547169547 | $914,634 | $914,634 | $415.90 | | |
| ST | State School | 1.3035497053 | $914,634 | $914,634 | $1,192.27 | | |
| ST2 | State School Part 2 | 0.8169543533 | $914,634 | $914,634 | $747.21 | | |
| SWHIDPRBD | P & R S Whidbey BOND | 0.0152817568 | $914,634 | $914,634 | $13.98 | | |
| SWHIDPRBD2 | P & R S Whidbey BOND2 | 0.0138911264 | $914,634 | $914,634 | $12.71 | | |
| SWHIDPRMT | P & R S Whidbey GEN | 0.2053334452 | $914,634 | $914,634 | $187.80 | | |
| | Total Tax Rate: | 6.6934522006 | | | | | |
| | | | | Taxes w/Current Exemptions: | $6,122.07 | | |
| | | | | Taxes w/o Exemptions: | $6,122.07 | | |
Improvement / Building
| Improvement #1: | RESIDENTIAL | State Code: | Y | 2383.4 sqft | Value: | $544,634 |
| Bathrooms: | 2.5 | Bedrooms: | 3 | | Ceiling: | DRYWALL PAINTED | Exterior Wall/Cover: | WOOD SIDING | | Floor Covering: | VINYL 100% | Floor Structure: | WOOD W/SUBFLOOR | | Foundation: | CONCRETE | Heating: | RADIANT FLOOR | | Interior Finish: | DRYWALL PAINT | Plumbing Fixture Cnt: | 12 | | Roof Slope: | 3" IN 12" | Roof Structure/Cover: | CJ ASPHALT |
|
| | Type | Description | Class CD | Sub Class CD | Year Built | Area |
| | BAS | BASE/MAIN FLOOR | 4 | 0 | 2005 | 2383.4 |
| | DGR | DETACHED GARAGE | 4 | 0 | 2005 | 528.0 |
| | UTY | STORAGE/UTILITY | 4 | 0 | 2005 | 120.0 |
Sketch
Property Image
Land
| 1 | 32 | AC (03.01-09.99) | 4.9300 | 0.00 | 0.00 | 0.00 | 1.00 | $370,000 | $0 |
Roll Value History
| 2026 | N/A | N/A | N/A | N/A | N/A |
| 2025 | $544,634 | $370,000 | $0 | $914,634 | $914,634 |
| 2024 | $551,022 | $350,000 | $0 | $901,022 | $901,022 |
| 2023 | $557,411 | $330,000 | $0 | $887,411 | $887,411 |
| 2022 | $510,532 | $280,000 | $0 | $790,532 | $790,532 |
| 2021 | $448,959 | $230,000 | $0 | $678,959 | $678,959 |
| 2020 | $427,786 | $190,000 | $0 | $617,786 | $617,786 |
| 2019 | $322,230 | $250,000 | $0 | $572,230 | $572,230 |
| 2018 | $323,132 | $210,000 | $0 | $533,132 | $533,132 |
| 2017 | $324,938 | $190,000 | $0 | $514,938 | $514,938 |
| 2016 | $305,719 | $165,000 | $0 | $470,719 | $470,719 |
| 2015 | $309,079 | $135,000 | $0 | $444,079 | $444,079 |
| 2014 | $255,443 | $157,760 | $0 | $413,203 | $413,203 |
| 2013 | $258,259 | $157,760 | $0 | $416,019 | $416,019 |
| 2012 | $261,076 | $157,760 | $0 | $418,836 | $418,836 |
| 2011 | $263,892 | $157,760 | $0 | $421,652 | $421,652 |
| 2010 | $291,112 | $157,760 | $0 | $448,872 | $448,872 |
| 2009 | $300,336 | $216,920 | $0 | $517,256 | $517,256 |
| 2008 | $301,704 | $169,708 | $0 | $471,412 | $471,412 |
| 2007 | $0 | $147,900 | $0 | $147,900 | $147,900 |
Deed and Sales History
| 1 | 07/16/2012 | WD | Warranty Deed | NICHOLS, BRYAN | SCHMIDT, KURT F | | | $495,000.00 | 8446 | 4320513 |
| 2 | 01/01/1900 | OTHER | Other - Misc. Documents | Unknown | NICHOLS, BRYAN | | | $0.00 | 0 | 0 |
Payout Agreement
| No payout information available.. |