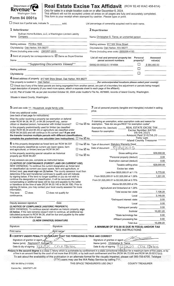
Property
Account |
| Property ID: | 806402 | Abbreviated Legal Description: | NE NW NW |
| Geographic ID: | R13111-514-1080 | Agent Code: | |
| Type: | Real | | |
| Tax Area: | 312 - APPRAISER-Cpvl Schl Dist, outside Cpvl, improved, greater than 1 acre | Land Use Code | 88 |
| Open Space: | N | DFL | Y |
| Historic Property: | N | Remodel Property: | N |
| Multi-Family Redevelopment: | N | | |
| Township: | 31 | Section: | 11 |
| Range: | R1 |
Location |
| Address: | 642 PATMORE RD COUPEVILLE, WA 98239 | Mapsco: | |
| Neighborhood: | Cycle 2 | Map ID: | 52 |
| Neighborhood CD: | 2 |
Owner |
| Name: | SOTIRIU, SHANE PATRICK | Owner ID: | 292215 |
| Mailing Address: | 642 PATMORE RD COUPEVILLE, WA 98239 | % Ownership: | 100.0000000000% |
| | | Exemptions: | |
Taxes and Assessment Details
Values
| (+) Improvement Homesite Value: | + | $0 | |
| (+) Improvement Non-Homesite Value: | + | $198,423 | |
| (+) Land Homesite Value: | + | $0 | |
| (+) Land Non-Homesite Value: | + | $220,000 | |
| (+) Curr Use (HS): | + | $0 | $0 |
| (+) Curr Use (NHS): | + | $135,205 | $1,064 |
| | | -------------------------- | |
| (=) Market Value: | = | $553,628 | |
| (–) Productivity Loss: | – | $134,141 | |
| | | -------------------------- | |
| (=) Subtotal: | = | $419,487 | |
| (+) Senior Appraised Value: | + | $0 | |
| (+) Non-Senior Appraised Value: | + | $419,487 | |
| | | -------------------------- | |
| (=) Total Appraised Value: | = | $419,487 | |
| (–) Senior Exemption Loss: | – | $0 | |
| (–) Exemption Loss: | – | $0 | |
| | | -------------------------- | |
| (=) Taxable Value: | = | $419,487 | |
Taxing Jurisdiction
| Owner: | SOTIRIU, SHANE PATRICK | | |
| % Ownership: | 100.0000000000% | | |
| Total Value: | $553,628 | | |
| Tax Area: | 312 - APPRAISER-Cpvl Schl Dist, outside Cpvl, improved, greater than 1 acre |
| CF | Conservation Futures | 0.0316035091 | $419,487 | $419,487 | $13.26 | | |
| CEM2 | Cemetery #2 | 0.0095056933 | $419,487 | $419,487 | $3.99 | | |
| FIRE5 | Fire & Rescue Dist #5 C Whidbey GEN | 1.2008080668 | $419,487 | $419,487 | $503.72 | | |
| FIRE5BOND | Fire & Rescue Dist #5 C Whidbey BOND | 0.1400090713 | $419,487 | $419,487 | $58.73 | | |
| HOBOND | Hospital BOND | 0.1910887512 | $419,487 | $419,487 | $80.16 | | |
| HOGEN | Hospital GEN | 0.3902502903 | $419,487 | $419,487 | $163.70 | | |
| CE | County Current Expense | 0.3708482477 | $419,487 | $419,487 | $155.57 | | |
| CR | County Roads | 0.4584763726 | $419,487 | $419,487 | $192.32 | | |
| ISLANDEMS | Hospital GEN (EMS) | 0.5000000000 | $419,487 | $419,487 | $209.74 | | |
| LIB | Library Sno-Isle GEN | 0.3153421757 | $419,487 | $419,487 | $132.28 | | |
| LIBCAP | Library Sno-Isle BOND (Cap Fac Imp Area) | 0.0543427938 | $419,487 | $419,487 | $22.80 | | |
| POCOUP | Port of Coupeville GEN | 0.1093371703 | $419,487 | $419,487 | $45.87 | | |
| POCOUPIDD | Port of Coupeville IDD | 0.3409740022 | $419,487 | $419,487 | $143.03 | | |
| COUPSDTECH | School 204 CP (TECH) | 0.7545480007 | $419,487 | $419,487 | $316.52 | | |
| SCH204MO | School 204 Enrichment | 0.6716186034 | $419,487 | $419,487 | $281.74 | | |
| ST | State School | 1.3035497053 | $419,487 | $419,487 | $546.82 | | |
| ST2 | State School Part 2 | 0.8169543533 | $419,487 | $419,487 | $342.70 | | |
| | Total Tax Rate: | 7.6592568070 | | | | | |
| | | | | Taxes w/Current Exemptions: | $3,212.95 | | |
| | | | | Taxes w/o Exemptions: | $3,212.95 | | |
Improvement / Building
| Improvement #1: | RESIDENTIAL | State Code: | Y | 848.0 sqft | Value: | $198,423 |
| Bathrooms: | 1.5 | Bedrooms: | 1 | | Ceiling: | DRYWALL PAINTED | Exterior Wall/Cover: | VINYL | | Floor Covering: | VINYL 100% | Floor Structure: | WOOD W/SUBFLOOR | | Foundation: | CONCRETE | Heating: | GAS HEATERS | | Interior Finish: | DRYWALL PAINT | Plumbing Fixture Cnt: | 8 | | Roof Slope: | 4" IN 12" | Roof Structure/Cover: | CJ ALUMINIUM HEAVY |
|
| | Type | Description | Class CD | Sub Class CD | Year Built | Area |
| | BAS | BASE/MAIN FLOOR | 2 | 0 | 2004 | 848.0 |
| | BIG | BUILT IN GARAGE | 2 | 0 | 2004 | 1152.0 |
| | OWR | OPEN WOOD PORCH W/STEPS/ROOF | 2 | 0 | 2004 | 158.0 |
| | OWP | OPEN WOOD PORCH W/STEPS | 2 | 0 | 2004 | 52.8 |
Sketch
Property Image
Land
| 1 | 88 | DESIGNATED FOREST | 9.0900 | 395960.40 | 0.00 | 0.00 | 1.00 | $135,205 | $1,064 |
| 2 | HS | HOMESITE | 1.0000 | 43560.00 | 0.00 | 0.00 | 1.00 | $220,000 | $0 |
Roll Value History
| 2026 | N/A | N/A | N/A | N/A | N/A |
| 2025 | $198,423 | $355,205 | $1,064 | $419,487 | $419,487 |
| 2024 | $192,232 | $310,000 | $1,064 | $403,296 | $403,296 |
| 2023 | $194,569 | $290,000 | $1,018 | $224,328 | $224,328 |
| 2022 | $178,309 | $260,000 | $1,018 | $205,327 | $205,327 |
| 2021 | $156,891 | $225,000 | $1,018 | $180,208 | $180,208 |
| 2020 | $152,421 | $215,000 | $1,018 | $174,747 | $174,747 |
| 2019 | $107,900 | $250,000 | $982 | $133,882 | $133,882 |
| 2018 | $98,958 | $220,000 | $964 | $121,922 | $121,922 |
| 2017 | $99,537 | $200,000 | $964 | $120,501 | $120,501 |
| 2016 | $94,818 | $170,000 | $873 | $112,691 | $112,691 |
| 2015 | $95,907 | $171,530 | $873 | $113,780 | $113,780 |
| 2014 | $96,996 | $171,530 | $918 | $114,914 | $114,914 |
| 2013 | $98,087 | $171,530 | $918 | $116,005 | $116,005 |
| 2012 | $0 | $154,530 | $918 | $918 | $918 |
| 2011 | $0 | $181,800 | $918 | $918 | $918 |
| 2010 | $0 | $181,800 | $918 | $918 | $918 |
| 2009 | $0 | $227,250 | $918 | $918 | $918 |
| 2008 | $0 | $105,280 | $918 | $918 | $918 |
| 2007 | $0 | $215,630 | $918 | $918 | $918 |
Deed and Sales History
| 1 | 09/12/2019 | WD | Warranty Deed | WILCOX, JORDAN | SOTIRIU, SHANE PATRICK | | | $330,000.00 | 40453 | 4472279 |
| 2 | 07/23/2014 | WD | Warranty Deed | KROGSENG, PETE | WILCOX, JORDAN | | | $245,000.00 | 16401 | 4363927 |
| 3 | 07/12/2005 | SEG | DNU - Segregation | Unknown | KROGSENG, PETE | | | $0.00 | 70570 | 0 |
Payout Agreement
| No payout information available.. |