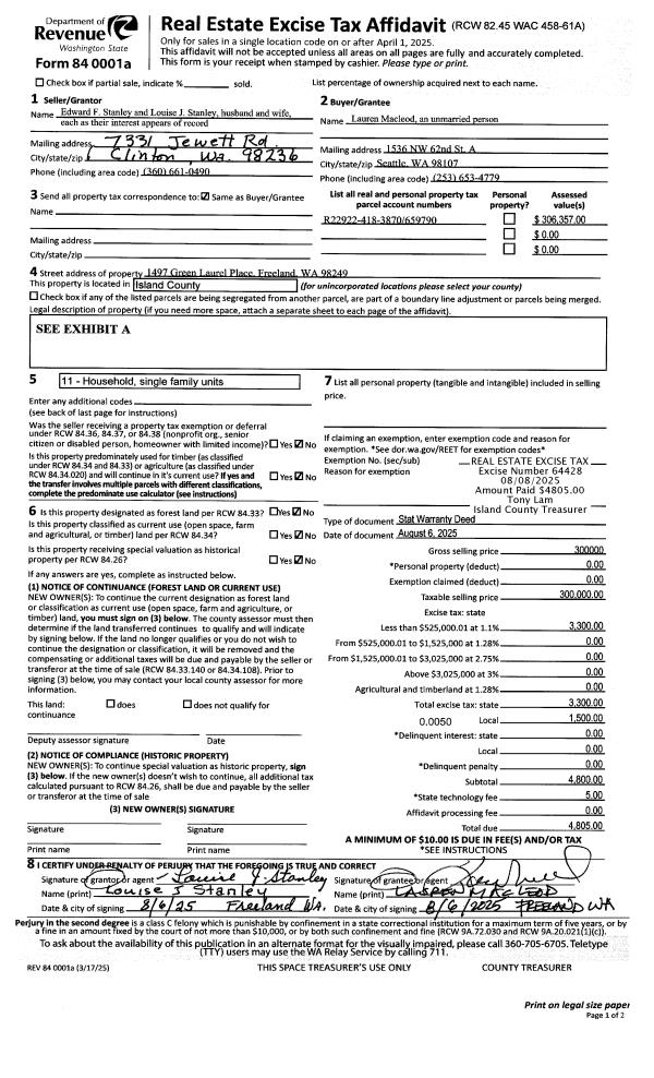
Property
Account |
| Property ID: | 806404 | Abbreviated Legal Description: | SW NW NW |
| Geographic ID: | R13111-450-0410 | Agent Code: | |
| Type: | Real | | |
| Tax Area: | 312 - APPRAISER-Cpvl Schl Dist, outside Cpvl, improved, greater than 1 acre | Land Use Code | 88 |
| Open Space: | N | DFL | Y |
| Historic Property: | N | Remodel Property: | N |
| Multi-Family Redevelopment: | N | | |
| Township: | 31 | Section: | 11 |
| Range: | R1 |
Location |
| Address: | 463 JACOBS RD COUPEVILLE, WA 98239 | Mapsco: | |
| Neighborhood: | Cycle 2 | Map ID: | 52 |
| Neighborhood CD: | 2 |
Owner |
| Name: | WILSON, TIM | Owner ID: | 287623 |
| Mailing Address: | MARIA WILSON 453 JACOBS RD COUPEVILLE, WA 98239-9003 | % Ownership: | 100.0000000000% |
| | | Exemptions: | |
Taxes and Assessment Details
Values
| (+) Improvement Homesite Value: | + | $0 | |
| (+) Improvement Non-Homesite Value: | + | $153,054 | |
| (+) Land Homesite Value: | + | $0 | |
| (+) Land Non-Homesite Value: | + | $270,000 | |
| (+) Curr Use (HS): | + | $0 | $0 |
| (+) Curr Use (NHS): | + | $125,237 | $1,357 |
| | | -------------------------- | |
| (=) Market Value: | = | $548,291 | |
| (–) Productivity Loss: | – | $123,880 | |
| | | -------------------------- | |
| (=) Subtotal: | = | $424,411 | |
| (+) Senior Appraised Value: | + | $0 | |
| (+) Non-Senior Appraised Value: | + | $424,411 | |
| | | -------------------------- | |
| (=) Total Appraised Value: | = | $424,411 | |
| (–) Senior Exemption Loss: | – | $0 | |
| (–) Exemption Loss: | – | $0 | |
| | | -------------------------- | |
| (=) Taxable Value: | = | $424,411 | |
Taxing Jurisdiction
| Owner: | WILSON, TIM | | |
| % Ownership: | 100.0000000000% | | |
| Total Value: | $548,291 | | |
| Tax Area: | 312 - APPRAISER-Cpvl Schl Dist, outside Cpvl, improved, greater than 1 acre |
| CF | Conservation Futures | 0.0316035091 | $424,411 | $424,411 | $13.41 | | |
| CEM2 | Cemetery #2 | 0.0095056933 | $424,411 | $424,411 | $4.03 | | |
| FIRE5 | Fire & Rescue Dist #5 C Whidbey GEN | 1.2008080668 | $424,411 | $424,411 | $509.64 | | |
| FIRE5BOND | Fire & Rescue Dist #5 C Whidbey BOND | 0.1400090713 | $424,411 | $424,411 | $59.42 | | |
| HOBOND | Hospital BOND | 0.1910887512 | $424,411 | $424,411 | $81.10 | | |
| HOGEN | Hospital GEN | 0.3902502903 | $424,411 | $424,411 | $165.63 | | |
| CE | County Current Expense | 0.3708482477 | $424,411 | $424,411 | $157.39 | | |
| CR | County Roads | 0.4584763726 | $424,411 | $424,411 | $194.58 | | |
| ISLANDEMS | Hospital GEN (EMS) | 0.5000000000 | $424,411 | $424,411 | $212.21 | | |
| LIB | Library Sno-Isle GEN | 0.3153421757 | $424,411 | $424,411 | $133.83 | | |
| LIBCAP | Library Sno-Isle BOND (Cap Fac Imp Area) | 0.0543427938 | $424,411 | $424,411 | $23.06 | | |
| POCOUP | Port of Coupeville GEN | 0.1093371703 | $424,411 | $424,411 | $46.40 | | |
| POCOUPIDD | Port of Coupeville IDD | 0.3409740022 | $424,411 | $424,411 | $144.71 | | |
| COUPSDTECH | School 204 CP (TECH) | 0.7545480007 | $424,411 | $424,411 | $320.24 | | |
| SCH204MO | School 204 Enrichment | 0.6716186034 | $424,411 | $424,411 | $285.04 | | |
| ST | State School | 1.3035497053 | $424,411 | $424,411 | $553.24 | | |
| ST2 | State School Part 2 | 0.8169543533 | $424,411 | $424,411 | $346.72 | | |
| | Total Tax Rate: | 7.6592568070 | | | | | |
| | | | | Taxes w/Current Exemptions: | $3,250.65 | | |
| | | | | Taxes w/o Exemptions: | $3,250.65 | | |
Improvement / Building
| Improvement #1: | MANUFACTURED HOME | State Code: | Y | 1008.0 sqft | Value: | $153,054 |
| Bathrooms: | 1 | Bedrooms: | 2 | | Ceiling: | PLASTER PAINTED | Cooling: | EVAP NO DUCT | | Exterior Wall/Cover: | VINYL | Floor Covering: | CARPET 100% | | Floor Structure: | SLAB ON GRADE | Foundation: | SLAB | | Heating: | FHA ELECTRIC | Interior Finish: | PLASTER | | Roof Slope: | FLAT | Roof Structure/Cover: | CJ ALUMINIUM HEAVY |
|
| | Type | Description | Class CD | Sub Class CD | Year Built | Area |
| | BAS | BASE/MAIN FLOOR | 4 | 0 | 2021 | 1008.0 |
| | OWC | OPEN WOOD PORCH W/STEPS/ROOF/C | 4 | 0 | 2021 | 240.0 |
| | oUTI | UTILITY | 3 | 0 | 2021 | 192.0 |
| | oUTI | UTILITY | 3 | 0 | 2021 | 160.0 |
| | CPD | OPEN CARPORT DIRT FLOOR | 4 | 0 | 2021 | 160.0 |
Sketch
| No sketches available for this property. |
Property Image
Land
| 1 | HS | HOMESITE | 1.0000 | 43560.00 | 0.00 | 0.00 | 1.00 | $270,000 | $0 |
| 2 | 88 | DESIGNATED FOREST | 9.1100 | 396831.60 | 0.00 | 0.00 | 1.00 | $125,237 | $1,357 |
Roll Value History
| 2026 | N/A | N/A | N/A | N/A | N/A |
| 2025 | $153,054 | $395,237 | $1,357 | $424,411 | $424,411 |
| 2024 | $140,035 | $370,000 | $1,367 | $391,402 | $391,402 |
| 2023 | $123,026 | $350,000 | $1,312 | $158,957 | $158,957 |
| 2022 | $112,530 | $330,000 | $1,312 | $146,842 | $146,842 |
| 2021 | $97,852 | $290,000 | $1,312 | $128,164 | $128,164 |
| 2020 | $0 | $245,000 | $1,312 | $25,545 | $25,545 |
| 2019 | $0 | $200,000 | $1,405 | $1,405 | $1,405 |
| 2018 | $0 | $150,000 | $1,385 | $1,385 | $1,385 |
| 2017 | $0 | $135,000 | $1,385 | $1,385 | $1,385 |
| 2016 | $0 | $135,000 | $1,294 | $1,294 | $1,294 |
| 2015 | $0 | $171,870 | $1,294 | $1,294 | $1,294 |
| 2014 | $0 | $171,870 | $1,294 | $1,294 | $1,294 |
| 2013 | $0 | $171,870 | $1,294 | $1,294 | $1,294 |
| 2012 | $0 | $171,870 | $1,294 | $1,294 | $1,294 |
| 2011 | $0 | $202,200 | $1,021 | $1,021 | $1,021 |
| 2010 | $0 | $202,200 | $1,021 | $1,021 | $1,021 |
| 2009 | $0 | $202,200 | $1,021 | $1,021 | $1,021 |
| 2008 | $0 | $171,870 | $1,021 | $1,021 | $1,021 |
| 2007 | $0 | $117,150 | $1,021 | $1,021 | $1,021 |
Deed and Sales History
| 1 | 10/30/2018 | WD | Warranty Deed | FIDDLER, MARY L | WILSON, TIM | | | $245,000.00 | 36516 | 4454424 |
| 2 | 05/21/2010 | WD | Warranty Deed | FIDDLER, MARY L | FIDDLER, MARY L | | | $0.00 | 36406 | 4453936 |
| 3 | 05/21/2010 | ESTSEPPROP | Establish Separate Property | FIDDLER, MARY L | FIDDLER, MARY L | | | $0.00 | 1392 | 4275092 |
| 4 | 05/21/2010 | WD | Warranty Deed | SWAIN, CATHERINE | FIDDLER, MARY L | | | $225,000.00 | 1391 | 4275091 |
| 5 | 07/12/2005 | SEG | DNU - Segregation | Unknown | SWAIN, CATHERINE | | | $0.00 | 70570 | 0 |
Payout Agreement
| No payout information available.. |