Property
Account |
| Property ID: | 806406 | Abbreviated Legal Description: | 1979 FLEETWOOD 24X52 VIN# IDFL2B920041716 TPO $74894 To Terry Mobile home park, permit dated 04/10/02 |
| Geographic ID: | M91300000065-2 | Agent Code: | |
| Type: | Mobile Home | | |
| Tax Area: | 300 - APPRAISER-Cpvl Schl Dist, in Cpvl | Land Use Code | 11 |
| Open Space: | N | DFL | N |
| Historic Property: | N | Remodel Property: | N |
| Multi-Family Redevelopment: | N | | |
| Township: | | Section: | |
| Range: | |
Location |
| Address: | 204 SW TERRY RD # 65 COUPEVILLE, WA 98239 | Mapsco: | |
| Neighborhood: | Cycle 2 | Map ID: | |
| Neighborhood CD: | 2 |
Owner |
| Name: | TENNANT, MARGOT E | Owner ID: | 284559 |
| Mailing Address: | MANETTE MERRILL 204 SW TERRY RD #65 COUPEVILLE, WA 98239 | % Ownership: | 100.0000000000% |
| | | Exemptions: | SNR/DSBL |
Taxes and Assessment Details
Values
| (+) Improvement Homesite Value: | + | $52,184 | |
| (+) Improvement Non-Homesite Value: | + | $52,184 | |
| (+) Land Homesite Value: | + | $0 | |
| (+) Land Non-Homesite Value: | + | $0 | |
| (+) Curr Use (HS): | + | $0 | $0 |
| (+) Curr Use (NHS): | + | $0 | $0 |
| | | -------------------------- | |
| (=) Market Value: | = | $104,368 | |
| (–) Productivity Loss: | – | $0 | |
| | | -------------------------- | |
| (=) Subtotal: | = | $104,368 | |
| (+) Senior Appraised Value: | + | $5,677 | |
| (+) Non-Senior Appraised Value: | + | $52,184 | |
| | | -------------------------- | |
| (=) Total Appraised Value: | = | $57,861 | |
| (–) Senior Exemption Loss: | – | $5,677 | |
| (–) Exemption Loss: | – | $0 | |
| | | -------------------------- | |
| (=) Taxable Value: | = | $52,184 | |
Taxing Jurisdiction
| Owner: | TENNANT, MARGOT E | | |
| % Ownership: | 100.0000000000% | | |
| Total Value: | $104,368 | | |
| Tax Area: | 300 - APPRAISER-Cpvl Schl Dist, in Cpvl |
| CF | Conservation Futures | 0.0316035091 | $104,368 | $52,184 | $1.65 | | |
| CEM2 | Cemetery #2 | 0.0095056933 | $104,368 | $52,184 | $0.50 | | |
| COUP | City: Town of Coupeville | 0.8426414490 | $104,368 | $52,184 | $43.97 | | |
| FIRE5 | Fire & Rescue Dist #5 C Whidbey GEN | 1.2008080668 | $104,368 | $52,184 | $62.66 | | |
| FIRE5BOND | Fire & Rescue Dist #5 C Whidbey BOND | 0.0000000000 | $104,368 | $52,184 | $7.31 | | |
| HOBOND | Hospital BOND | 0.0000000000 | $104,368 | $52,184 | $9.97 | | |
| HOGEN | Hospital GEN | 0.3902502903 | $104,368 | $52,184 | $20.36 | | |
| CE | County Current Expense | 0.3708482477 | $104,368 | $52,184 | $19.35 | | |
| ISLANDEMS | Hospital GEN (EMS) | 0.5000000000 | $104,368 | $52,184 | $26.09 | | |
| LIB | Library Sno-Isle GEN | 0.3153421757 | $104,368 | $52,184 | $16.46 | | |
| LIBCAP | Library Sno-Isle BOND (Cap Fac Imp Area) | 0.0000000000 | $104,368 | $52,184 | $2.84 | | |
| POCOUP | Port of Coupeville GEN | 0.1093371703 | $104,368 | $52,184 | $5.71 | | |
| POCOUPIDD | Port of Coupeville IDD | 0.3409740022 | $104,368 | $52,184 | $17.79 | | |
| COUPSDTECH | School 204 CP (TECH) | 0.0000000000 | $104,368 | $52,184 | $39.38 | | |
| SCH204MO | School 204 Enrichment | 0.0000000000 | $104,368 | $52,184 | $35.05 | | |
| ST | State School | 1.3035497053 | $104,368 | $52,184 | $68.02 | | |
| ST2 | State School Part 2 | 0.0000000000 | $104,368 | $52,184 | $42.63 | | |
| | Total Tax Rate: | 5.4148603097 | | | | | |
| | | | | Taxes w/Current Exemptions: | $419.74 | | |
| | | | | Taxes w/o Exemptions: | $839.46 | | |
Improvement / Building
| Improvement #1: | MANUFACTURED HOME | State Code: | Y | 1242.7 sqft | Value: | $104,368 |
| Bathrooms: | 0 | Bedrooms: | 0 | | Ceiling: | PLASTER PAINTED | Cooling: | EVAP NO DUCT | | Exterior Wall/Cover: | VINYL | Floor Covering: | CARPET 100% | | Floor Structure: | SLAB ON GRADE | Foundation: | SLAB | | Heating: | FHA ELECTRIC | Interior Finish: | PLASTER | | Plumbing Fixture Cnt: | 1 | Roof Slope: | FLAT | | Roof Structure/Cover: | CJ ALUMINIUM HEAVY |   |   |
|
Sketch
Property Image
Land
No land segments exist for this property.
Roll Value History
| 2026 | N/A | N/A | N/A | N/A | N/A |
| 2025 | $104,368 | $0 | $0 | $104,368 | $52,184 |
| 2024 | $107,131 | $0 | $0 | $107,131 | $53,565 |
| 2023 | $49,047 | $0 | $0 | $49,047 | $24,523 |
| 2022 | $46,028 | $0 | $0 | $46,028 | $23,014 |
| 2021 | $42,131 | $0 | $0 | $42,131 | $21,065 |
| 2020 | $42,264 | $0 | $0 | $42,264 | $21,132 |
| 2019 | $34,370 | $0 | $0 | $34,370 | $17,185 |
| 2018 | $11,353 | $0 | $0 | $11,353 | $5,676 |
| 2017 | $11,853 | $0 | $0 | $11,853 | $11,853 |
| 2016 | $12,354 | $0 | $0 | $12,354 | $12,354 |
| 2015 | $12,854 | $0 | $0 | $12,854 | $12,854 |
| 2014 | $13,354 | $0 | $0 | $13,354 | $13,354 |
| 2013 | $13,854 | $0 | $0 | $13,854 | $13,854 |
| 2012 | $14,179 | $0 | $0 | $14,179 | $14,179 |
| 2011 | $24,447 | $0 | $0 | $24,447 | $24,447 |
| 2010 | $24,956 | $0 | $0 | $24,956 | $24,956 |
| 2009 | $26,702 | $0 | $0 | $26,702 | $26,702 |
| 2008 | $27,852 | $0 | $0 | $27,852 | $27,852 |
| 2007 | $28,966 | $0 | $0 | $28,966 | $28,966 |
Deed and Sales History
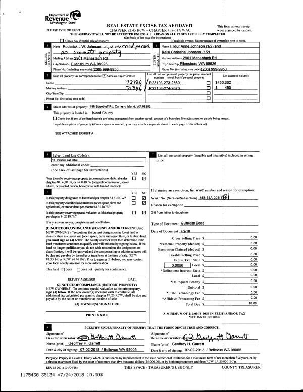
| 1 | 04/11/2018 | MANHOME | Manufactured Home | SKOW, CHARLES | TENNANT, MARGOT E | | | $0.00 | 33636 | |
| 2 | 08/30/2006 | OTHER | Other - Misc. Documents | BINGISSER, GREGORY B | SKOW, CHARLES | | | $33,000.00 | 63880 | 0 |
| 3 | 01/01/1900 | OTHER | Other - Misc. Documents | Unknown | BINGISSER, GREGORY B | | | $0.00 | 0 | 0 |
Payout Agreement
| No payout information available.. |