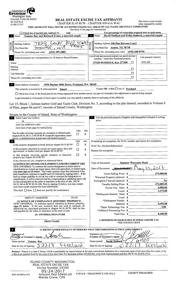
Property
Account |
| Property ID: | 806421 | Abbreviated Legal Description: | NW NW SW EX PT TO IS CO AF#4382943 |
| Geographic ID: | R23120-234-0330 | Agent Code: | |
| Type: | Real | | |
| Tax Area: | 312 - APPRAISER-Cpvl Schl Dist, outside Cpvl, improved, greater than 1 acre | Land Use Code | 88 |
| Open Space: | N | DFL | Y |
| Historic Property: | N | Remodel Property: | N |
| Multi-Family Redevelopment: | N | | |
| Township: | 31 | Section: | 20 |
| Range: | R2 |
Location |
| Address: | 1426 GRATEFUL ACRE PLACE COUPEVILLE, WA 98239 | Mapsco: | |
| Neighborhood: | Cycle 2 | Map ID: | 497 |
| Neighborhood CD: | 2 |
Owner |
| Name: | TIMMRECK ET AL, ERIC | Owner ID: | 317229 |
| Mailing Address: | 1426 GRATEFUL ACRE PL COUPEVILLE, WA 98239 | % Ownership: | 100.0000000000% |
| | | Exemptions: | |
Taxes and Assessment Details
Values
| (+) Improvement Homesite Value: | + | $0 | |
| (+) Improvement Non-Homesite Value: | + | $447,780 | |
| (+) Land Homesite Value: | + | $0 | |
| (+) Land Non-Homesite Value: | + | $252,746 | |
| (+) Curr Use (HS): | + | $0 | $0 |
| (+) Curr Use (NHS): | + | $96,721 | $1,121 |
| | | -------------------------- | |
| (=) Market Value: | = | $797,247 | |
| (–) Productivity Loss: | – | $95,600 | |
| | | -------------------------- | |
| (=) Subtotal: | = | $701,647 | |
| (+) Senior Appraised Value: | + | $0 | |
| (+) Non-Senior Appraised Value: | + | $701,647 | |
| | | -------------------------- | |
| (=) Total Appraised Value: | = | $701,647 | |
| (–) Senior Exemption Loss: | – | $0 | |
| (–) Exemption Loss: | – | $0 | |
| | | -------------------------- | |
| (=) Taxable Value: | = | $701,647 | |
Taxing Jurisdiction
| Owner: | TIMMRECK ET AL, ERIC | | |
| % Ownership: | 100.0000000000% | | |
| Total Value: | $797,247 | | |
| Tax Area: | 312 - APPRAISER-Cpvl Schl Dist, outside Cpvl, improved, greater than 1 acre |
| CF | Conservation Futures | 0.0316035091 | $701,647 | $701,647 | $22.17 | | |
| CEM2 | Cemetery #2 | 0.0095056933 | $701,647 | $701,647 | $6.67 | | |
| FIRE5 | Fire & Rescue Dist #5 C Whidbey GEN | 1.2008080668 | $701,647 | $701,647 | $842.54 | | |
| FIRE5BOND | Fire & Rescue Dist #5 C Whidbey BOND | 0.1400090713 | $701,647 | $701,647 | $98.24 | | |
| HOBOND | Hospital BOND | 0.1910887512 | $701,647 | $701,647 | $134.08 | | |
| HOGEN | Hospital GEN | 0.3902502903 | $701,647 | $701,647 | $273.82 | | |
| CE | County Current Expense | 0.3708482477 | $701,647 | $701,647 | $260.20 | | |
| CR | County Roads | 0.4584763726 | $701,647 | $701,647 | $321.69 | | |
| ISLANDEMS | Hospital GEN (EMS) | 0.5000000000 | $701,647 | $701,647 | $350.82 | | |
| LIB | Library Sno-Isle GEN | 0.3153421757 | $701,647 | $701,647 | $221.26 | | |
| LIBCAP | Library Sno-Isle BOND (Cap Fac Imp Area) | 0.0543427938 | $701,647 | $701,647 | $38.13 | | |
| POCOUP | Port of Coupeville GEN | 0.1093371703 | $701,647 | $701,647 | $76.72 | | |
| POCOUPIDD | Port of Coupeville IDD | 0.3409740022 | $701,647 | $701,647 | $239.24 | | |
| COUPSDTECH | School 204 CP (TECH) | 0.7545480007 | $701,647 | $701,647 | $529.43 | | |
| SCH204MO | School 204 Enrichment | 0.6716186034 | $701,647 | $701,647 | $471.24 | | |
| ST | State School | 1.3035497053 | $701,647 | $701,647 | $914.63 | | |
| ST2 | State School Part 2 | 0.8169543533 | $701,647 | $701,647 | $573.21 | | |
| | Total Tax Rate: | 7.6592568070 | | | | | |
| | | | | Taxes w/Current Exemptions: | $5,374.09 | | |
| | | | | Taxes w/o Exemptions: | $5,374.09 | | |
Improvement / Building
| Improvement #1: | RESIDENTIAL | State Code: | Y | 1941.0 sqft | Value: | $447,780 |
| Bathrooms: | 2 | Bedrooms: | 3 | | Ceiling: | DRYWALL PAINTED | Cooling: | HEAT PUMP/CONV/V | | Exterior Wall/Cover: | CEMENT FIBER | Floor Covering: | CARPET/VINYL 60-40 | | Floor Structure: | WOOD W/SUBFLOOR | Foundation: | CONCRETE | | Interior Finish: | DRYWALL PAINT | Plumbing Fixture Cnt: | 10 | | Roof Slope: | 8" IN 12" | Roof Structure/Cover: | CJ ASPHALT |
|
| | Type | Description | Class CD | Sub Class CD | Year Built | Area |
| | BAS | BASE/MAIN FLOOR | 4 | 0 | 2020 | 1941.0 |
| | UTY | STORAGE/UTILITY | 4 | 0 | 2020 | 224.0 |
| | AGR | ATTACHED GARAGE | 4 | 0 | 2020 | 540.0 |
| | OP4 | OPEN PORCH W/CEILING-ROOF | 4 | 0 | 2020 | 48.0 |
| | OP2 | OPEN PORCH W/STEPS | 4 | 0 | 2020 | 48.0 |
Sketch
Property Image
Land
| 1 | HS | HOMESITE | 1.0000 | 43560.00 | 0.00 | 0.00 | 1.00 | $220,000 | $0 |
| 2 | 88 | DESIGNATED FOREST | 1.6000 | 69696.00 | 0.00 | 0.00 | 1.00 | $24,256 | $232 |
| 3 | 88 | DESIGNATED FOREST | 4.7800 | 208216.80 | 0.00 | 0.00 | 1.00 | $72,465 | $889 |
| 4 | 91 | UNDEVELOPED LAND-METES AND BOUNDS | 2.1600 | 94089.60 | 0.00 | 0.00 | 1.00 | $32,746 | $0 |
Roll Value History
| 2026 | N/A | N/A | N/A | N/A | N/A |
| 2025 | $447,780 | $349,467 | $1,121 | $701,647 | $701,647 |
| 2024 | $451,332 | $320,000 | $1,128 | $720,165 | $720,165 |
| 2023 | $456,071 | $310,000 | $1,080 | $559,834 | $559,834 |
| 2022 | $420,484 | $330,000 | $1,080 | $530,872 | $530,872 |
| 2021 | $373,115 | $170,000 | $1,080 | $430,506 | $430,506 |
| 2020 | $23,221 | $125,000 | $1,080 | $65,706 | $65,706 |
| 2019 | $0 | $125,000 | $1,043 | $42,448 | $42,448 |
| 2018 | $0 | $100,000 | $1,030 | $34,155 | $34,155 |
| 2017 | $0 | $100,000 | $1,030 | $34,155 | $34,155 |
| 2016 | $0 | $100,000 | $952 | $34,077 | $34,077 |
| 2015 | $0 | $110,500 | $1,025 | $35,943 | $35,943 |
| 2014 | $0 | $110,500 | $1,010 | $1,010 | $1,010 |
| 2013 | $0 | $110,500 | $1,010 | $1,010 | $1,010 |
| 2012 | $0 | $110,500 | $1,010 | $1,010 | $1,010 |
| 2011 | $0 | $130,000 | $1,010 | $1,010 | $1,010 |
| 2010 | $0 | $130,000 | $1,010 | $1,010 | $1,010 |
| 2009 | $0 | $200,000 | $1,010 | $1,010 | $1,010 |
| 2008 | $0 | $82,400 | $1,010 | $1,010 | $1,010 |
| 2007 | $0 | $0 | $0 | $1,030 | $1,030 |
Deed and Sales History
| 1 | 06/14/2025 | QCD | Quit Claim Deed | TIMMRECK, ERIC | TIMMRECK ET AL, ERIC | | | $0.00 | 64028 | 4587716 |
| 2 | 07/23/2021 | WD | Warranty Deed | REMSING, THOMAS J | TIMMRECK, ERIC | | | $735,000.00 | 49377 | 4525539 |
| 3 | 07/24/2018 | EZ | Easement | REMSING, THOMAS J | REMSING, THOMAS J | | | $0.00 | 35680 | 4450832 |
| 4 | 07/24/2018 | EZ | Easement | REMSING, THOMAS J | REMSING, THOMAS J | | | $0.00 | 35543 | 4450233 |
| 5 | 04/04/2017 | WD | Warranty Deed | LEONARD, LAWRENCE F | REMSING, THOMAS J | | | $135,000.00 | 28786 | 4420304 |
| 6 | 07/16/2015 | WD | Warranty Deed | LEONARD, LAWRENCE F | LEONARD, LAWRENCE F | | | $0.00 | 20648 | 4382943 |
| 7 | 09/20/2007 | SEG | DNU - Segregation | Unknown | LEONARD, LAWRENCE F | | | $0.00 | 80365 | 0 |
Payout Agreement
| No payout information available.. |