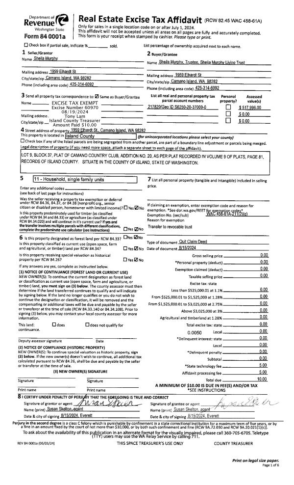
Property
Account |
| Property ID: | 806448 | Abbreviated Legal Description: | E439' OF FOLL DESC: S/2 S/2 NW SE EX N30' OF W483' EX W260' TGW N/2 SW SE EX W542' TGW EZ AF#86013181 |
| Geographic ID: | R13208-114-3750 | Agent Code: | |
| Type: | Real | | |
| Tax Area: | 112 - APPRAISER-OH Schl Dist, outside OH, improved, greater than 1 acre | Land Use Code | 83 |
| Open Space: | Y | DFL | N |
| Historic Property: | N | Remodel Property: | N |
| Multi-Family Redevelopment: | N | | |
| Township: | 32 | Section: | 08 |
| Range: | R1 |
Location |
| Address: | 2028 ZYLSTRA RD OAK HARBOR, WA 98277 | Mapsco: | |
| Neighborhood: | Cycle 1 | Map ID: | 109 |
| Neighborhood CD: | 1 |
Owner |
| Name: | RIEPMA, CHAD | Owner ID: | 300749 |
| Mailing Address: | CARRIE RIEPMA 2028 ZYLSTRA RD OAK HARBOR, WA 98277 | % Ownership: | 100.0000000000% |
| | | Exemptions: | |
Taxes and Assessment Details
Values
| (+) Improvement Homesite Value: | + | $0 | |
| (+) Improvement Non-Homesite Value: | + | $617,462 | |
| (+) Land Homesite Value: | + | $0 | |
| (+) Land Non-Homesite Value: | + | $320,930 | |
| (+) Curr Use (HS): | + | $0 | $0 |
| (+) Curr Use (NHS): | + | $79,070 | $3,116 |
| | | -------------------------- | |
| (=) Market Value: | = | $1,017,462 | |
| (–) Productivity Loss: | – | $75,954 | |
| | | -------------------------- | |
| (=) Subtotal: | = | $941,508 | |
| (+) Senior Appraised Value: | + | $0 | |
| (+) Non-Senior Appraised Value: | + | $941,508 | |
| | | -------------------------- | |
| (=) Total Appraised Value: | = | $941,508 | |
| (–) Senior Exemption Loss: | – | $0 | |
| (–) Exemption Loss: | – | $0 | |
| | | -------------------------- | |
| (=) Taxable Value: | = | $941,508 | |
Taxing Jurisdiction
| Owner: | RIEPMA, CHAD | | |
| % Ownership: | 100.0000000000% | | |
| Total Value: | $1,017,462 | | |
| Tax Area: | 112 - APPRAISER-OH Schl Dist, outside OH, improved, greater than 1 acre |
| CF | Conservation Futures | 0.0316035091 | $941,508 | $941,508 | $29.75 | | |
| CEM1 | Cemetery #1 | 0.0040320932 | $941,508 | $941,508 | $3.80 | | |
| FIRE2 | Fire & Rescue Dist #2 N Whidbey GEN | 0.5475949600 | $941,508 | $941,508 | $515.57 | | |
| HOBOND | Hospital BOND | 0.1910887512 | $941,508 | $941,508 | $179.91 | | |
| HOGEN | Hospital GEN | 0.3902502903 | $941,508 | $941,508 | $367.42 | | |
| CE | County Current Expense | 0.3708482477 | $941,508 | $941,508 | $349.16 | | |
| CR | County Roads | 0.4584763726 | $941,508 | $941,508 | $431.66 | | |
| ISLANDEMS | Hospital GEN (EMS) | 0.5000000000 | $941,508 | $941,508 | $470.75 | | |
| LIB | Library Sno-Isle GEN | 0.3153421757 | $941,508 | $941,508 | $296.90 | | |
| NWHIDPRMT | P & R N Whidbey GEN | 0.2004466701 | $941,508 | $941,508 | $188.72 | | |
| SCH201MO | School 201 Enrichment | 1.8559231640 | $941,508 | $941,508 | $1,747.37 | | |
| ST | State School | 1.3035497053 | $941,508 | $941,508 | $1,227.30 | | |
| ST2 | State School Part 2 | 0.8169543533 | $941,508 | $941,508 | $769.17 | | |
| | Total Tax Rate: | 6.9861102925 | | | | | |
| | | | | Taxes w/Current Exemptions: | $6,577.48 | | |
| | | | | Taxes w/o Exemptions: | $6,577.48 | | |
Improvement / Building
| Improvement #1: | RESIDENTIAL | State Code: | Y | 3719.7 sqft | Value: | $617,462 |
| Bathrooms: | 2 | Bedrooms: | 2 | | Ceiling: | DRYWALL PAINTED | Exterior Wall/Cover: | CEMENT FIBER | | Floor Covering: | CARPET/VINYL 60-40 | Floor Structure: | WOOD W/SUBFLOOR | | Foundation: | CONCRETE | Heating: | FHA ELECTRIC | | Interior Finish: | DRYWALL PAINT | Plumbing Fixture Cnt: | 10 | | Roof Slope: | 4" IN 12" | Roof Structure/Cover: | CJ ALUMINIUM HEAVY |
|
| | Type | Description | Class CD | Sub Class CD | Year Built | Area |
| | BAS | BASE/MAIN FLOOR | 3 | 0 | 2009 | 2280.0 |
| | BIG | BUILT IN GARAGE | 3 | 0 | 2009 | 1200.0 |
| | BAW | BALCONY WOOD RAIL | 3 | 0 | 2009 | 200.0 |
| | DGR | DETACHED GARAGE | 3 | 0 | 2009 | 2879.8 |
| | OP1 | OPEN PORCH SLAB | 3 | 0 | 2009 | 1776.0 |
| | DWN | DOWNSTAIRS LIVING AREA | 3 | 0 | 2019 | 1439.7 |
| | OP4 | OPEN PORCH W/CEILING-ROOF | 3 | 0 | 2009 | 216.0 |
| | OP4 | OPEN PORCH W/CEILING-ROOF | 3 | 0 | 2009 | 644.0 |
Sketch
| No sketches available for this property. |
Property Image
Land
| 1 | HS | HOMESITE | 1.0000 | 43560.00 | 0.00 | 0.00 | 1.00 | $260,000 | $0 |
| 2 | 83 | OPEN AGRICULTURE | 5.1000 | 222156.00 | 0.00 | 0.00 | 1.00 | $79,070 | $3,116 |
| 3 | 91 | UNDEVELOPED LAND-METES AND BOUNDS | 3.9300 | 171190.80 | 0.00 | 0.00 | 1.00 | $60,930 | $0 |
Roll Value History
| 2026 | N/A | N/A | N/A | N/A | N/A |
| 2025 | $617,462 | $400,000 | $3,116 | $941,508 | $941,508 |
| 2024 | $605,752 | $370,000 | $3,116 | $905,446 | $905,446 |
| 2023 | $612,695 | $350,000 | $3,116 | $787,845 | $787,845 |
| 2022 | $561,059 | $330,000 | $3,116 | $729,175 | $729,175 |
| 2021 | $491,972 | $260,000 | $3,116 | $622,488 | $622,488 |
| 2020 | $480,040 | $220,000 | $3,116 | $591,292 | $591,292 |
| 2019 | $310,014 | $280,000 | $3,116 | $450,757 | $450,757 |
| 2018 | $232,729 | $160,000 | $3,116 | $314,489 | $314,489 |
| 2017 | $207,192 | $160,000 | $0 | $367,192 | $367,192 |
| 2016 | $209,468 | $160,000 | $0 | $369,468 | $369,468 |
| 2015 | $166,120 | $150,000 | $0 | $316,120 | $316,120 |
| 2014 | $160,396 | $150,000 | $0 | $310,396 | $310,396 |
| 2013 | $162,103 | $135,405 | $0 | $297,508 | $297,508 |
| 2012 | $163,809 | $135,405 | $0 | $299,214 | $299,214 |
| 2011 | $165,514 | $150,450 | $0 | $315,964 | $315,964 |
| 2010 | $168,754 | $150,450 | $0 | $319,204 | $319,204 |
| 2009 | $175,685 | $190,570 | $0 | $366,255 | $366,255 |
| 2008 | $0 | $200,600 | $0 | $200,600 | $200,600 |
| 2007 | $0 | $160,480 | $0 | $160,480 | $160,480 |
Deed and Sales History
| 1 | 08/11/2021 | QCD | Quit Claim Deed | RIEPMA, CHAD | RIEPMA, CHAD | | | $0.00 | 49655 | 4527007 |
| 2 | 06/30/2006 | QCD | Quit Claim Deed | RIEPMA, KELLY | RIEPMA, CHAD | | | $0.00 | 62920 | 4175020 |
| 3 | 07/28/2005 | SEG | DNU - Segregation | Unknown | RIEPMA, KELLY | | | $0.00 | 70590 | 0 |
Payout Agreement
| No payout information available.. |